Козырьки для дома фото – Козырек для частного дома 80 фото идей, как сделать козырек над дверью частного дома | Ремонт и стройка
alexxlab | 21.05.2020 | 0 | Разное
Козырек для частного дома 80 фото идей, как сделать козырек над дверью частного дома | Ремонт и стройка
Как приятно в дождливую погоду сидеть на крыльце и попивать теплый чай или кофе, в то время, как тело обдувает охлажденный дождем воздух. Но козырек есть не у всех частных домов. Это не беда – его можно достроить. Читайте и смотрите, как сделать козырек частного дома.
Архитектура
Козырьки для загородного дома можно отнести к малым архитектурным формам. Они выполняют функцию защиты дверей, окон или лестниц от неблагоприятных воздействий природных явлений. Одновременно с этим козырьки становятся декоративными элементами, улучшающими эстетический облик загородного дома.
Конструкция козырька над входной дверью в частном доме
Их конструкция обычно состоит из двух частей: покрытия и основания. Основание может быть выполнено навесным, закрепленным на вертикальной стене. Если размеры козырька для частного дома большие, то в его основании могут применяться поддерживающие колонны или опоры. Все зависит от того, какой объект будет находиться под защитой козырька:
- окно,
- входная дверь в дом,
- крыльцо,
- лестница на второй этаж и т. д.
Материалы изготовления покрытия козырька
При изготовлении покрытий могут быть использованы различные материалы:
- листовая сталь,
- профнастил,
- поликарбонат,
- мягкие кровли.
Для того чтобы козырек выполнял свою защитную функцию, он должен быть, прежде всего, прочным. Это определяет выбор материалов для изготовления основания.
Козырек с дополнительными опорами
В том случае, если в вашем доме стропила выполнены из недостаточно мощного бруса, советуем обустроить козырек над крыльцом частного дома, который будет переносить на карниз лишь небольшую часть своего веса, а лучше и вовсе не подвергать карниз дополнительным нагрузкам.
Для этого нам потребуется три или четыре дополнительных опоры, в некоторых случаях можно обойтись всего двумя. Опоры, которые прилегают к входу, мы должны разместить на такой высоте, чтобы вода, стекающая с крыши, перетекала на козырек.

К примеру, можно сделать толстый столбик у входа с правой стороны, и один толстый столбик с левой, но уже в том месте, где навес заканчивается. Эти колоны можно красиво оформить, например, если они выполнены из кирпича, можно обложить их специальным декоративным кафелем. Смотрите фото — козырьки над крыльцом дома:
Но, при выполнении подобной конструкции, необходим жесткий и прочный каркас для кровельного покрытия козырька, ведь точек опоры всего две и он может прогибаться. В качестве каркаса рекомендуем использовать металлический уголок, на него будут установлены деревянные брусья, которые будут выполнять функцию обрешетки.
Но, если ваша крыша уложена тяжелым материалом, таким, как натуральная черепица, то сделайте более основательную конструкцию, с большим количеством опор или более мощным каркасом. Ведь вес натуральной черепицы достаточно велик и она дает большую нагрузку на всю конструкцию.
Кровельное покрытие для козырька
Конечно, предпочтительней использовать то же покрытие, которому вы отдали предпочтение при укладке кровли. Если это битумная черепица, лучше использовать ее, если профнастил – тогда для козырька нужно использовать его. С точки зрения доступности, из всех современных и качественных строительных материалов наиболее доступным, скорее всего, окажется именно металлочерепица и профнастил.
Битумная черепица потребует сплошную обрешетку, ее можно выполнить с помощью листа фанеры нашитого на обрешетку. Это необходимо, ведь этот материал очень пластичен, и при укладке его на обычную обрешетку он будет просто прогибаться.
Возможно, что ваша крыша выполнена фланцевым методом, из листов меди. В таком случае, любой другой металлический материал будет выглядеть просто убого. Представьте медную фланцевую крышу и козырек над крыльцом частного дома, который пристроен к ней из не крашенного, оцинкованного профнастила, это смотрится не слишком гармонично.
У меди много полезных свойств, со временем она окисляется и покрывается так называемой «Патиной» которая позволяет кровле надежнее противостоять коррозии. Так что, если крыша накрыта листами меди, то лучше всего отдать предпочтение именно этому материалу для покрытия козырька.
Но для качественного выполнения фланцев, которые будут обеспечивать герметичность кровельному покрытию, необходим специальный инструмент и навыки. В случае хорошо выполненной работы, такая кровля будет представлять собой единый лист меди.
От тяжелых материалов предпочтительней отказаться, ведь, даже при максимально прочной конструкции опор, тяжелый вес кровли убавит срок службы подобного козырька.
А можно изготовить два Г-образных элемента, которые будут установлены у дома, и на них будет сверху крепиться обрешетка, но тут нужно учитывать материал, которым вы будете накрывать козырек входной двери.
Для металлочерепицы это неприемлемо, ведь ей необходим угол для стекания воды. А для профнастила подобные элементы вполне подойдут.
Опоры для козырька входной двери
В качестве опор можно заказать специально отлитые, монолитные формы. К примеру, она может быть даже со всего одной внешней колонной, но это сложная бетонная конструкция.
Представьте квадрат по периметру, отлитый из бетона, сверху такой же квадрат, а их соединение выполняет одна колонна. В специализированной мастерской возможно выполнить и более сложные конструкции. Но, все таки, этот элемент козырька именно то, что можно выполнить своими руками. Здесь подойдет кирпич, или даже обычные брусья.
Деревянных конструкций вполне достаточно для того, чтобы выдержать незначительный вес металлочерепицы или профнастила. Если вы делаете эти элементы из дерева, побеспокойтесь о качественном крепеже этих составляющих, ведь именно они часто расшатываются и выходят из строя.
Чтобы этого не случилось, нужны длинные шурупы, и угол крепежа должен быть максимально прямой, который не будет способствовать дополнительным напряжениям и размягчению дерева в местах соединения.
Деревянные опоры лучше обработать снизу обработанным маслом, это придаст дополнительную защиту против гнили и различных жуков.
Вот фото примеры красивого крыльца с козырьком частного дома, надеемся вы найдете подходящий дизайн для вас.
stroyka-tools.ru
Козырьки и навесы над входом в частный дом: 100 вариантов на фото
Содержание
- Необходимость козырька или навеса
- Разновидности козырьков и навесов
- Как правильно выбрать козырек?
- Установить навес самостоятельно или обратиться к специалистам?
- Итог
Козырек или навес над входной дверью в жилое здание – это компактное сооружение, защищающее вход и человека, находящегося возле него от внешних факторов в виде дождя, ветра и снега. Установка навеса – это ответственный этап, который нуждается в непосредственном участии владельца постройки, ведь он должен определиться с видом конструкции и материалом, используемым для ее изготовления. Попробуем для начала разобраться, какие виды козырьков и навесов существуют, выясним, зачем они нужны и нужны ли в принципе?
Необходимость козырька или навеса
В первую очередь нужно разобраться, нужны ли они в принципе, а если нужны, то зачем? Многие считают, что такая конструкция, как навес или козырек над входом в дом или дачу не нужна и можно смело обойтись без нее, однако специалисты убеждают в обратном.
Все дело в том, что такая конструкция создает не только приятный визуальный эффект, но и является многофункциональным дополнением частного дома. С помощью козырька или навеса можно спрятаться как от палящего солнца, так и от дождя или снега, помимо этого данная конструкция призвана защищать вход и прилегающие стены от негативного воздействия внешних факторов.
Также стоит отметить, что козырек над входом – это красивый элемент, создающий привлекательный внешний вид постройки. Если правильно подобрать конструкцию, то можно сделать дом более привлекательным и интересным. Если уделить этому элементу должное внимание, то можно создать надежную защиту от капризов погоды и реализовать свою идею по созданию красивой конструкции. Вывод – навес или козырек над входом очень полезная вещь, обойтись без которой практически невозможно.
Разновидности козырьков и навесов
Прежде, чем устанавливать козырек над входом в частный дом нужно предусмотреть то, как он будет выглядеть. В целом навесы можно разделить на несколько категорий. Прежде, чем выбрать одну из них необходимо знать, какими они бывают:
- Модульные – навесы, имеющий максимально простую конструкцию и установку, включают в себя несколько основных элементов, одними из которых являются боковые козырьки, защищающие вход в дом.
- Монолитные – внушительные конструкции, имеющие высокий уровень прочности и создаются на долгие годы. В целом такой козырек может являться полноценной частью здания, включать в себя небольшую территорию, где можно удобно расположиться перед входом в дом.
- Подвесные конструкции – козырек, который устанавливают над дверью с помощью специальных систем крепления. Имеют компактный размер, для изготовления используют легкие материалы, например, поликарбонат.
- Кованые – это скорее не разновидность, а вариант отделки конструкции. Кованые навесы способны преобразить частный дом, изменить его визуальный облик, прибавив постройке привлекательности и изящности. Зачастую принято использовать для домов, выполненных в готическом стиле. Данный вариант навеса самый популярный, но и стоит недешево.
- Козырек на опорах – конструкция, которая оснащается опорами в виде колон, сдерживающих конструкцию. Опоры можно выполнять из дерева, камня, металла или кирпича, все зависит от вкуса и финансовых возможностей.
Стоит отметить, что для производства навеса или козырька могут использоваться различные строительные материалы. Среди наиболее популярных материалов: древесина, металл, поликарбонат и металлическая черепица. Главное условие, которое выдвигается к навесу – сочетаемость с частным домом, ведь козырек должен дополнять постройку, а не противоречить ей.
Как правильно выбрать козырек?
Прежде, чем выбирать конструкцию необходимо проанализировать, как она будет смотреться. Для этого лучше всего зайти в сеть интернет, где можно найти сотни готовых вариантов козырьков, после чего выбрать оптимальный вариант, учитывая собственные предпочтения, стиль дома и финансовые возможности. Для того чтобы выбор был точно правильным лучше всего посоветоваться со специалистами, способными дать дельный совет.
При самостоятельном выборе козырька в первую очередь нужно определиться с его размерами. Он не должен быть слишком большим, но и обязан справляться со своими функциональными задачами. В случае выбора кованого козырька придется обратиться к профессионалам, так как соорудить его самостоятельно практически невозможно.
После того, как размеры выбраны, нужно переходить к стилю и цветовой гамме материала. Также при этом нужно выбрать материал, используемый для изготовления козырька. При выборе цветовой гаммы и материалов нужно учитывать особенности частного дома, его цветовое решение, так как навес должен гармонировать с основной постройкой.
Установить навес самостоятельно или обратиться к специалистам?
После того, как тип козырька, материалы для его изготовления и цветовая гамма выбраны, нужно решить самый главный вопрос – произвести монтаж навеса самостоятельно или же обратиться к специалисту. Многие хотят сэкономить, пытаясь произвести установку самостоятельно, однако насколько правильно это решение и правильно ли оно вообще?
Сразу же стоит сказать, что изготавливать и устанавливать кованый навес категорически запрещается. Все дело в том, что такой элемент требует максимум внимания к себе, ведь он должен быть стильным, гармоничным, подчеркивать экстерьер частного дома. Обратившись к специалистам можно получить дизайнерский кованый навес, который быстро установят над входом в дом.
Если мысль установить козырек своими руками владельца дома не покидает, то сделать это можно, но только в том случае, если сооружается навес из поликарбоната. Подобный навес не имеет сложностей в установке, а значит, произвести монтаж можно самостоятельно за минимальный период времени. Для установки можно найти готовый алгоритм в сети, после чего следовать инструкциям.
Итог
Козырек или навес над входом в дом – это обязательный атрибут современного красивого частного дома, который требует к себе определенного внимания. При выборе козырька нужно учитывать стиль и внешний вид дома. После того, как оптимальный вариант выбран, нужно решить, кто установит козырек. Кованый навес – это работа мастеров, поэтому влезать туда самостоятельно лучше не стоит. При работе с профессионалами можно получить не только услуги по качественному монтажу, но и оригинальный дизайнерский козырек, способный подчеркнуть внешний облик дома.
krov-torg.ru
Навесы, пристроенные к дому: фото и секреты монтажа
Ссылка на статью успешно отправлена!
Отправим материал вам на e-mail
Важной частью экстерьера загородного дома является навес. Он призван защищать часть двора от осадков и ультрафиолетовых лучей, а также выполняет декоративную функцию. Небольшой участок, закрытый сверху материалом, представляют собой навесы пристроенные к дому. Фото подобных сооружений можно увидеть в данном обзоре. При этом опоры конструкции выводятся на нужную высоту. Присоединение к основному строению подразумевает крепление одной стороны конструкции к стене дома.

Навесная конструкция позволяет создать великолепную зону отдыха на свежем воздухе
Содержание статьи
Выбор материалов для строительства навесов
Навесы, пристроенные к дому, можно сделать своими руками. Фото отображает основные этапы монтажа. Каркас сооружения часто выполняется из профилированной трубы или бруса. Подобная конструкция примыкает к стене и принимает на себя нагрузку от скопившегося на крыше снега.

Пристроенная конструкция может быть выполнена из очень прочных и массивных материалов
Кровлю обычно покрывают профлистом, шифером или оцинкованным материалом. Металл для каркасной конструкции обладает пластичностью и прочностью. Он подходит для разных стилей оформления. Подобные конструкции можно возводить своими руками.

Пристройки отличаются оригинальностью дизайна
Каркасная система из древесины замечательно сочетается с другими материалами. Дерево подходит большинству архитектурных решений. Перед использованием данный материал следует обрабатывать защитными препаратами. Все большей популярностью пользуются навесы из поликарбоната пристроенные к дому, фото которых можно посмотреть в интернете.

Поликарбонат отличается простотой сборки и разнообразием цветовой палитры
Поликарбонат пользуется следующими преимуществами:
- пластик характеризуется прочностью. Для него не страшно механическое воздействие;
- небольшой вес материала;
- поликарбонат хорошо пропускает свет;
- гибкость полотна.
Полезная информация! Приобретая комплект конструкции для самостоятельной сборки, необходимо проверить целостность и прочность всех соединений.

Удобные конструкции из данного материала могут улучшить внешний вид основного строения и прикрыть территорию от любопытных глаз
Навесы пристроенные к дому: фото и особенности конструкций
Навесы пристроенные к дому, как показано на фото, могут быть двух видов. Это консольные модели и навесы на опорах. Консольный вариант может быть любой длины, но его ширина не должна быть более двух метров. Опорные конструкции могут использоваться для различных целей.

Маркизы на опорах отличаются высокой прочностью
Навесы могут иметь разное предназначение:
- пристройка веранды, которая применяется в качестве зоны отдыха;

Веранда особенно цениться на открытой местности, где нет деревьев
- террасы отличаются большей площадью и могут даже размещаться на втором этаже строения. Подобные конструкции могут быть односкатными или двускатными;

Терраса может быть намного просторней веранды и иметь необычную форму
- тенты для защиты авто;

Пристройка для машины может закрывать большую часть дворовой территории
- различные маркизы: со стойками, выдвижные или корзинные.

Отличается функциональностью складная маркиза
Статья по теме:
Особенности навесов из дерева пристроенных к дому: фото и дизайнерские решения
Часто домовладельцы выбирают навесы из древесины. Подобные сооружения обладают отличным набором характеристик:
- отличаются простотой возведения;
- выдерживают долгое пребывание на открытом воздухе, особенно при правильной обработке;
- характеризуются безопасностью для человеческого здоровья;
- обладают доступной ценой.
Полезная информация! Для комфортного использования навеса стоит позаботиться о проведении света и монтаже осветительных приборов.

Деревянные сооружения передают сельский колорит и обладают массивностью
Варианты навесов пристроенных к дому из профнастила: фото и особенности конструкции
Тент из профнастила может выполняться в различных конфигурациях. Из профнастила создаются односкатные, двускатные и арочные конструкции. Кроме того, сооружение из данного материала обладает следующими особенностями:
- простота изготовления;
- экономия денежных средств;
- длительный эксплуатационный срок.
Важно! Навес из профнастила монтируется только оцинкованными саморезами, которые имеют уплотнительную резину.

Пристройки из профнастила обладают надежностью и долговечностью
Создание проекта
Выбирая проект конструкции, стоит определиться со следующими параметрами:
- габариты и назначение сооружения;
- размер участка;
- снеговые и ветровые нагрузки;
- глубина снежного покрова и ожидаемое выпадение количества осадков в год;
- конструкционные особенности основного строения.

Заранее созданный проект позволяет выбрать лучшее решение и подобрать качественный материал
Перед монтажными работами обязательно выполняется чертеж. Исходя из размеров постройки, определяется необходимое количество материала.
Полезная информация! При создании навеса под машину, стоит учитывать прохождение автомобиля с грузом.
Подготовительные работы
Прежде, чем будут созданы спланированные навесы пристроенные к дому, фото которых можно посмотреть на сайте, необходимо произвести подготовительные работы. Для этого размечается подходящая площадка, и на ней выкорчевываются деревья. Чистый участок выравнивается. При этом подсыпается песок и щебенка.

Некоторые прочные навесы требуют создания фундамента
Под опоры навесы бурятся углубления. И на данном этапе стоит продумать прокладку кабеля под источники освещения. Выбирается определенный шаг расстановки опор. Он зависит от тяжести крыши и каркасной части.

Количество и расстановку стоек нужно рассчитать заранее
В подготовленные ямы опускаются стойки, которые заливаются бетонной смесью. Столбы выставляются по уровню.
Важная информация! Если близко располагаются грунтовые воды, то концы столбов требуется дополнительно гидроизолировать. Металлические опоры предварительно обрабатывают грунтовкой.
Как сделать навес из поликарбоната, пристроенный к дому: фото и этапы монтажа
Через 12-15 дней после полного застывания бетона, можно начинать сборку конструкции. На стену монтируются кронштейны, а затем сверху поперечная балка.

Сборка конструкции требует подготовки специальных инструментов
Создание обрешетки
Выполняется верхняя обвязка. Торцевые части стоек соединяются при помощи поперечной балки и между собой. При этом используются параллельно уложенные профили. Металлическая каркасная система сваривается между собой, а деревянная стягивается стальными уголками.

Обрешетка крепится к основной балке
Места сварки зачищаются, обрабатываются грунтовкой и красятся. Стропила монтируются поперечными деталями с шагом в 600 мм. К несущей балки конструкция крепится при помощи стальных уголков. Обрешетка прокладывается поперек стропил и монтируется саморезами.
Монтаж крыши
Листы кровельного материала нарезаются по размеру. Затем крепятся к обрешетке. Предварительно в поликарбонате проделываются отверстия под саморезы.

При монтаже крыши может понадобиться специальная страховка
Чтобы облегчить отвод воды, ячейки должны быть направлены вниз. Работая с пластиком, не стоит забывать оставлять зазоры между панелями. Размеры отверстий должны делаться с запасом в 2-3 мм. Существуют некоторые особенности монтажа кровли из других материалов.

Элементы кровли крепятся к обрешетке
В качестве балок могут использоваться брусья из древесины. С течением времени в материале могут появиться трещины, которые снизят жесткость конструкции. После монтажа балок устанавливаются поперечные доски, а затем производится крепление металлочерепицы. Монтаж данного материала производится с нижних листов. Стоит учитывать, что должен быть нахлест верхних листов на нижние.
Полезная информация! После установки кровли выполняется монтаж сливных желобов. Для этого отмеряется необходимая длина желоба и производится обрезка лишнего металла болгаркой.

В некоторых случаях будет сложно установить кровлю в одиночку
Полезные советы
После монтажа основной пристройки можно сделать площадку. Самый простой способ – это засыпать территорию гравием. Для этого снимается дерн, вкапывается бордюр и насыпается щебень. Затем его нужно хорошо утрамбовать.

Стильное и прочное покрытие повышает комфортные условия использования конструкции
Также можно сделать площадку, вымощенную брусчаткой или тротуарной плиткой. Недорого обойдется оборудование площадки с помощью бетона.

Качественная площадка позволяет увеличить полезную площадь дворовой зоны
С помощью подручного материала и инструментов можно создать красивый навес своими руками. Подобные конструкции позволят соорудить прекрасное место для семейного отдыха или надежную защиту для автомобиля и садового инвентаря.

Красивый навес может стать частью экстерьера здания
Видео: навес своими руками

Экономьте время: отборные статьи каждую неделю по почте
homemyhome.ru
Навесы (козырьки) над крыльцом: 45 фото
Первое впечатление о доме создает козырек. И речь идет, не только о защите от непогоды. Козырек важный элемент дизайна всего дома. Он создает оригинальное и красивое оформление входа в дом.
1.
2.
3.
4.
5.
6.
7.
8.
9.
10.
11.
12.
13.
14.
15.
16.
17.
18.
19.
20.
21.
22.
23.
24.
25.
26.
27.
28.
29.
30.
31.
32.
33.
34.
35.
36.
37.
38.
39.
40.
41.
42.
43.
44.
45.
Все изображения получены через Google изображения, Yandex картинки, Pinterest или где указано иное.
P.S. Понравились козырьки – навесы? Жмите на кнопку “Нравится” и поделитесь с друзьями!
P.P.S. Подпишитесь на сообщество журнала “Живу за городом” в Facebook
Вам точно понравится:
bezgoroda.com
Как сделать козырек над крыльцом
Входная дверь в частном доме/на даче подвергается агрессивному воздействию окружающей среды. Козырек отчасти защитит дверь от разрушения. Существует немало вариантов монтажа этих конструкций. Из этой статьи вы узнаете, как сделать козырек над крыльцом так, чтобы он был красивым и надежным украшением дома, исправно выполняющим свои основные функции.
Предназначение
Основное функциональное назначение козырьков:
- Защищать входную дверь от осадков и палящего солнца.
- Обеспечить комфорт домовладельцу. Например, открывать замок приятней под навесом, особенно в непогоду.
- Украшать экстерьер дома.
Разновидности
Чаще всего владельцы частных домов делают козырьки под заказ. Если у вас тоже нет времени для изготовления этой конструкции, то вы можете поступить так же. Но при необходимости сэкономить семейный бюджет, сделать козырек можно и своими руками. Как бы там ни было, чтобы козырек у вас был качественным и соответствующим вашим запросам, предлагаем вам ознакомиться с разновидностями козырьков и их особенностями.
Из поликарбоната
Козырьки из поликарбоната сегодня пользуются большим спросом среди потребителей. Это и не удивительно, ведь этот материал обладает рядом преимуществ:
- Долговечный.
- Прочный.
- Практичный.
- Продается в широкой цветовой гамме.
Хотя есть материалы для покрытия козырька и подешевле, но эксплуатационные характеристики поликарбоната полностью оправдывают его стоимость. Ниже будет приведена инструкция по изготовлению арочного козырька из этого материала.
Из металла
Для работы с металлом нужен сварочный аппарат и некоторые навыки в работе с ним. Хотя металл дешевле поликарбоната, но работать с ним на порядок сложнее. Обойти сварочные работы можно, используя механические стандартные соединения металлических элементов при помощи болтов и гаек.
Среди преимуществ металла стоит отметить:
- Надежность.
- Доступность по цене.
- Долговечность (при условии, что он будет своевременно обрабатываться антикоррозийными средствами).
Именно из-за необходимости в регулярном уходе за металлом, многие потребители отказываются от изготовления козырьков из него.
Чтобы установить поликарбонатный козырек вам все равно придется сделать под него металлическое основание. В этом случае преимуществ у поликарбоната все-таки больше, так как каркас под него занимает до 30% от всей конструкции, ввиду легкости кровельного материала. А если покрыть конструкцию козырьком из металла, то ухаживать придется и за каркасом, и за крышей.
Из пластика
Пластиковые плиты, пригодные для устройства козырька дороже, чем ПВХ, используемый для внутренних работ. Поэтому и стоимость ПВХ кровли не так мала, как хотелось бы. Внешне такие плиты напоминают поликарбонат.
Пластик можно установить на каркас любой формы. Вы можете купить белые плиты и наклеить на них пленку желаемого цвета или приобрести их уже оклеенными.
Преимущества материала:
- Легкий вес.
- Долговечность.
- Надежность.
- Простота монтажа.
Из профнастила
Сегодня профнастил пользуется большим спросом среди потребителей. По продажам можно сказать, что он занял на рынке лидирующие позиции. Его используют для изготовления заборов и кровли. Из недостатков материала стоит отметить неустойчивость к механическим повреждениям. Даже самую легкую вмятину уже будет заметно на профнастиле.
Если вы решите приобрести для обустройства козырька именно этот вариант покрытия, то купите профнастил более высокого качества и более толстый. Работать с ним гораздо проще, чем с металлочерепицей и металлом.
Из металлочерепицы
Если вы решили сделать козырек из металлочерепицы, то помните, ее цвет и структура должны соответствовать кровельному материалу крыши. Разница в цвете и текстуре, хотя бы самая незначительная, будет очень заметна.
Делать козырек из металлочерепицы лучше всего на этапе накрытия дома или другой постройки, на входной двери к которой вы решили сделать козырек. В таком случае у вас получится сделать козырек из остатков металлочерепицы от кровли крыши.
В качестве кровельного материала для козырька может также выступать битумная черепица либо другой похожий кровельный материал, даже рубероид отечественного производителя.
Из дерева
Здесь подразумевается изготовление деревянного каркаса. В качестве кровельного материала может сгодиться тот же поликарбонат, металлочерепица, листовой металл, шифер и т. д. Для домов старого типа такой козырек подходит лучше всего. Кроме того, в числе построек, для экстерьера которых подойдет деревянная конструкция козырька – дома из сруба, реставрированные мазанки и сооружения, выполненные в стиле фахверк.
Из ковки
Лучшим дизайнерским решением станет козырек, каркас которого выполнен из ковки. Он будет служить достойным украшением дома. Однако такая конструкция обойдется вам в копеечку. Кованный козырек можно совмещать с такими кровельными материалами, как поликарбонат, черепица и даже пластик.
Кованный козырек довольно тяжелый, поэтому для того, чтобы он служил действительно долго, нужно его правильно установить.
Ковка подходит практически под любой дизайн, так как она может состоять как из грубых, так и утонченных элементов. Если на приусадебном участке уже есть кованные элементы, то и козырек следует выполнить в одном стиле с ними.
Изготовление односкатного козырька
Для изготовления такой конструкции, вам понадобится перечень материалов:
- Карнизная планка.
- Водосточный желоб.
- Металлические уголки.
- Планка примыкания.
- Труба.
- Бруски.
- Профнастил/гибкая черепица.
- Анкеры, саморезы и шурупы.
Из инструментов вам пригодятся следующие:
- Сварочный аппарат.
- Измерительная рулетка.
- Ножовка по металлу/болгарка.
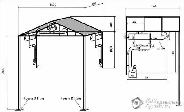
Перед началом изготовления козырька нужно зарисовать его эскиз. Для строительства вполне конкретного козырька нужно сделать определенные замеры, такие как ширина и длина крыльца. К полученной цифре добавьте еще 60 см. Это и будет ширина вашей конструкции. Для получения длины козырька вам нужно померить расстояние от входной двери до конца крыльца, добавив до этой цифры еще порядка 15–20 см. высота козырька высчитывается в зависимости от архитектуры дома.
Наклон козырька должен составлять около 20º.
С помощью этих данных можно нарисовать эскиз на бумаге или в специальной программе на компьютере в масштабе.
Изготовление каркаса
В соответствии с проектом нарежьте металлические уголки. Длина стропил из уголков равняется высоте ската. Из уголков также нужно сделать подкосы и пристенные балки. Детали каркаса соединяют между собой при помощи сварочного аппарата. Каркас закрепляется над крыльцом.
Зафиксируйте пристенную балку. Делается это при помощи шурупов из нержавейки, а для крепления подкосов используются анкеры. Изготовьте обрешетку из брусков, установив ее на стропила. Если в качестве кровельного материала будет использован профнастил, то между рейками должно быть расстояние равное 30 см. Для гибкой черепицы нужно подготовить сплошную обрешетку. На нее впоследствии будет выложен кровельный материал.
Односкатный козырек
Закрепить гибкую черепицу можно при помощи саморезов. Гибкая черепица укладывается внахлест, а не встык.
Теперь нужно зафиксировать металлическую планку примыкания к верхней части ската. На нижнюю его сторону нужно прикрепить карнизную планку, а затем соединить и установить водосточный желоб и трубу.
Изготовление арочного козырька из поликарбоната
Сделать такую конструкцию не составит труда даже для неопытного в строительстве человеку. Готовый каркас можно приобрести в строительном магазине или соорудить самостоятельно.
Как и в предыдущем случае, перед началом работ по изготовлению арочного козырька, необходимо сделать замеры и нарисовать эскиз.
- Сделайте каркас из трубы квадратного сечения 12–16 мм или алюминиевой трубы. Согните трубу по радиусу арочного козырька. Вам нужно будет изготовить 2 идентичных дуги.
- Соедините дуги прямыми отрезками трубы с обоих концов. Чтобы каркас арочного козырька был более жестким, наварите на него с внутренней стороны соединительную балку.
- Затем к задней дуге приварите навесы. С их помощью будет осуществлено крепление козырька к стене дома.
- Теперь зачистите каркас от ржавчины и окалины. Прогрунтуйте его и покрасьте.
- Установите арочную конструкцию над крыльцом при помощи шурупов.
- Закрепите саморезами поликарбонат.
Ферма для арочного козырька
Если вы изготавливаете козырек над крыльцом одноэтажного дома, то сделайте его так, чтобы края свесов выступали над крыльцом на 20–30 см. Таким образом, будет исключена возможность попадания воды/снега на место крепления козырька к стене, что продлит его эксплуатационный срок.
Изготовление двускатной конструкции
Двускатный козырек сделать сложнее. Но он предоставляет наилучшую защиту от косого дождя. Да и при необходимости его очистки от снега сделать это будет легче. Двускатный козырек жестче своих аналогов, поэтому отличается высоким уровнем ветрозащиты.
Для начала нужно сделать замеры и выполнить эскиз. Потом следует провести расчет размеров треугольных кронштейнов и обрешетки.
Конечный результат изготовления козырька полностью зависит от точности проведения замеров. Поэтому к этому этапу работ нельзя относиться легкомысленно.
Двускатный козырек
- Сделайте 2 кронштейна. Они могут быть металлическими или деревянными. Для этого соедините две перпендикулярные балки между собой и закрепите их подкосом под углом 45–60º.
- Закрепите кронштейны на расстоянии, которое было бы равно ширине козырька. Вертикальные балки получившегося кронштейна приложите к стене, выровняйте по уровню и закрепите при помощи 3–4 шурупов из нержавейки.
- Если козырек должен быть опорным, то изготавливать кронштейны не нужно. Вместо них, нужно установить металлические/деревянные столбы. Выкопайте ямы под столбы на необходимом расстоянии друг от друга. В яме сделайте песчаную подушку, утрамбуйте ее. Чтобы песок дал усадку, слегка намочите его водой. Установите столб и залейте бетоном. Верхние концы столбов соединяются несущими балками.
- Стропила изготовьте из деревянных брусков/обрезной доски. Если козырек небольшой, то вам будет достаточно двух пар стропил. Скрепите между собой стропильные ноги ригелями. Затем закрепите стропила на верхних балках кронштейнов и осуществите установку конькового бруса.
- Сделайте обрешетку. Ее можно изготовить из доски/бруса/фанеры. Выбор материала осуществляется по желанию.
- Установите крюки для установки водосточных желобов.
- Уложите кровельный материал в соответствии с инструкцией от производителя. Теперь нужно установить примыкающую к стене планку и ветровые планки к передней части двускатного козырька. Они, среди прочего, будут защищать конструкцию от попадания влаги и снега.
- Теперь нужно установить водосточный желоб и карнизную планку. Помните, что нижний край планки должен быть опущен внутрь желоба. Закрепите водосточную трубу.
Перед установкой деревянных элементов конструкции, каждый из них нужно обработать антисептиками, которые значительно увеличат их эксплуатационный срок.
Итак, в зависимости от вида козырька и ваших умений в работе с перечисленным в статье инструментами, вы сможете сделать козырек самостоятельно. Если, прочитав инструкции, вы поняли, что эти работы вам не по зубам, то лучше закажите готовый козырек. Есть вопросы по теме? Задавайте их нашему эксперту. Опытом можно делиться в комментариях к статье.
Видео
В предоставленном видео, вы сможете наглядно узнать о тонкостях изготовления козырька над крыльцом:
;
Фото
В этой фотогалереи, вы увидите немало интересных идей, по изготовлению козырька:
Деревянный козырек
Металлический
На балконе
Угловой над крыльцом
Над входом
Оригинальной формы
С элементами ковки
Красивый козырек
Небольшого размера
Декоративный
Схемы
Если вы решили самостоятельно сделать козырек, то схемы, изложенные ниже, помогут вам сконструировать собственную модель козырька:
Чертеж козырька
Чертеж арочной формы
Схема арочного козырька
Деревянный навес
Двухскатный
Конструкция козырька
Козырек с опорами
Схема металлического козырька
Навес над крыльцом
Плоский козырек
Простая конструкция
kakpravilnosdelat.ru
6 советов по обустройству навеса (козырька) над крыльцом частного дома + фото
Содержание статьи
Навес над крыльцом – это, казалось бы, достаточно небольшая деталь здания, но без нее представить себе частный дом невозможно. Стоит хотя бы однажды выйти на крыльцо в дождь, чтобы понять, как важно обустроить надежный козырек над ним. Обеспечением комфорта его функции не ограничиваются – навес также необходим для защиты входной группы от негативного воздействия осадков, а также для украшения дома. Когда наступает время переходить к обустройству навеса над крыльцом дома, возникает масса вопросов: начиная от материала изготовления и заканчивая возможностью создания козырька своими руками. Каждый из этих вопросов требует подробного рассмотрения, чтобы в дальнейшем навес на 100% справлялся со своими задачами.
№1. Основные требования к козырьку
Вне зависимости от того, будете ли вы покупать готовый козырек или изготавливать его самостоятельно, он должен отвечать некоторым требованиям:
- навес должен выдерживать вес осадков, которые могут на нем скапливаться, или же растений, которые будут его обвивать;
- по возможности козырек обустраивают не только над входной дверью, но и надо всем крыльцом;
- желательно предусмотреть систему сбора и отвода дождевой воды;
- козырек должен соответствовать стилю дома, его входной группы и участка, поэтому при его обустройстве необходимо выбирать подходящие материалы, цвета и формы. Можно применить в его оформлении тот же материал, что и для крыши дома, или же использовать такие же элементы, как в ограждении.
№2. Материал навеса над крыльцом
Две основные составляющие части любого козырька – это каркас и внешнее покрытие. Именно от них и зависят основные прочностные и декоративные качества козырька. Каркас может быть деревянным или металлическим (кованый или сварной из трубок и уголков). Металлический более долговечный и практичный, а кованый – это еще и роскошный внешний вид. Каркас из металла – это наилучший вариант, если речь не идет о деревянном доме: в этом случае он может просто не сочетаться с основной постройкой. За деревом придется больше ухаживать, да и долговечность его существенно ниже.
Вариантов внешнего покрытия немало. Рассмотрим основные преимущества и недостатки каждого из них.
Козырек из поликарбоната
Полупрозрачные гибкие листы поликарбоната нашли широкое применение не только при обустройстве теплиц, зимних садов, беседок, балконов и ограждений, но и при оформлении навесов.
Преимущества:
- разнообразие оттенков;
- способность рассеивать солнечные лучи;
- низкий вес;
- высокая гибкость, поэтому из поликарбоната можно обустроить козырек любой формы. Работать с материалом легко, поэтому часто при необходимости сделать навес своими руками мастера выбирают именно поликарбонат;
- устойчивость к порывам ветра, огню и гниению, способность выдерживать солидные ветровые нагрузки;
- долговечность.
Среди недостатков не самая высокая устойчивость к механическим повреждениям, поэтому на материале со временем могут появиться царапины и трещины. К тому же, поликарбонат без защитного покрытия под воздействием солнечных лучей будет темнеть или желтеть.
Пластиковый козырек
Внешне похожий на поликарбонат, специальный плотный пластик для наружных работ отличается более низкой ценой. По основным свойствам материал очень близок к поликарбонату, но по прочности немного уступает ему. Материал представлен в широком разнообразии цветов, но при желании оттенок можно изменить с помощью специальной пленки: во время монтажа или эксплуатации.
Козырек из металла
Преимущества металлического козырька очевидны: прочность, способность выдерживать большие нагрузки, долговечность, устойчивость к перепадам температур. Из металла можно соорудить козырьки интересных форм, но все же данный вариант используется нечасто ввиду некоторых причин: большой вес и необходимость регулярно проводить антикоррозионную обработку.
Козырек из профнастила
Профнастил по популярности может сравниться разве что с поликарбонатом. Материал, который представляет собой металл, с двух сторон покрытый полимерным защитным составом, используется для облицовки домов и балконов, возведения ограждений, а также нашел применение и в качестве материала для обустройства козырьков.
Преимущества:
- долговечность;
- широкое разнообразие цветов, возможность имитации других материалов;
- низкий вес и гибкость, что значительно упрощает работу;
- долговечность.
Профнастил отлично сочетается с металлическим каркасом, а среди его недостатков называют излишнюю шумность во время осадков. Материал имеет низкую устойчивость к механическим повреждениям, а отремонтировать его практически невозможно, поэтому лучше выбирать более толстые листы профнастила (не менее 10 мм).
Кованый козырек
Кованые козырьки над крыльцом заслуживают отдельного внимания. Это самый дорогой вариант из всех, но и выглядеть такой навес будет роскошно. Обычно кованые изделия изготавливаются на заказ с учетом всех пожеланий заказчика. Преимущества и недостатки данных козырьков такие же, как у металлических. Из элементов ковки может быть изготовлен не только каркас, но и кровельная часть козырька, но в любом случае, придется комбинировать ее с другим материалом, чтобы обеспечить крыльцу полную защиту от осадков. Отлично ковка сморится с поликарбонатом.
Козырек из металлочерепицы
Из металлочерепицы можно сооружать симпатичные навесы, но лучше всего они будут смотреться тогда, когда и крыша дома выполнена из идентичного материала.
Преимущества:
- небольшой вес;
- устойчивость к механическим нагрузкам;
- долговечность;
- устойчивость к влаге, перепадам температур;
- эстетичный внешний вид.
Во время дождя металлочерепица будет давать характерный звук. Если это проблема, можно использовать битумную черепицу: она, плюс ко всему, имеет более низкий вес.
Козырек из дерева
Деревянные козырьки могут стать украшением дома, построенного из сруба, а также неплохо гармонируют с кирпичными грубоватыми постройками. Дерево – это идеал экологичности и красоты, но боится влаги, огня, насекомых и плесени, поэтому периодически древесину придется обрабатывать защитными составами. Очень редко древесина используется в качестве внешнего покрытия, но и подобный вариант имеет право на жизнь – только ухода понадобится еще больше. Чаще деревянный каркас покрывают сверху профнастилом, металлом, поликарбонатом, шифером или черепицей.
Козырек из стекла
Стеклянный навес – это решение для самых требовательных. Такой козырек отлично будет сочетаться с домами и участками, выполненными в стиле хай-тек или минимализм. Для обустройства подобных навесов используется закаленное стекло, которое может выдерживать значительные нагрузки, а в случае повреждения никого не поранит. Преимущества: превосходный внешний вид, оригинальность и способность пропускать свет. К тому же, стекло не подвержено коррозии, гниению, перепады температур ему нипочем. Минусы: высокая цена и большой вес.
№3. Форма козырька
Форма подбирается в зависимости от собственных предпочтений, размера козырька и особенностей дома. Самые распространенные варианты:
№4. Варианты монтажа козырька
Способ крепления козырька выбирают в зависимости от того, какой материал используется и какой площади будет навес. Выбирать можно из таких вариантов:
№5. Готовый козырек или самостоятельно изготовленный?
Когда уже есть представления на счет того, какой формы, размера и из какого материала должен быть козырек, наступает время решить, кому же доверить его изготовление – профессионалам или себе самому. В магазинах есть неплохой выбор готовых навесов для крыльца, ассортимент таких конструкций немалый. В этом случае затраты времени и усилий минимальны, но возрастает цена конструкции, да и вероятность найти именно то, что нужно, не очень высокая. Альтернатива – заказать козырек по индивидуальному проекту, но при этом цена станет еще выше.
Если есть хоть какие-то навыки строительных и сварочных работ, достаточное количество времени и большое желание сэкономить, то можно попробовать сделать козырек своими руками. Такая конструкция будет максимально соответствовать облику дома и требованиям владельцев.
№6. Как сделать козырек своими руками?
Несложные конструкции можно попробовать сделать самостоятельно – это большая экономия. При наличии достаточного опыта можно взяться и за сложные козырьки арочной формы. Весь процесс изготовления состоит из таких этапов, как проектирование и расчет необходимых материалов, создание каркаса (деревянного или металлического), монтаж каркаса на стену и обустройство внешнего покрытия.
Проектирование
Когда речь идет о строительных работах, пусть даже и не самых серьезных, без чертежа не обойтись. На чертеже указывается форма и размеры будущего навеса. Ширина козырька должна быть на 50-60 см больше ширины входной двери. Минимальна длина свеса – 80 см. Если речь идет об односкатном козырьке, то обязательно необходимо предусмотреть наклон: оптимальное значение – 20 градусов. Полученный чертеж будет помогать при проведении монтажных работ, а также поможет сориентироваться, сколько и каких материалов понадобится.
Создание металлического каркаса
Проще всего будет работать с профильной трубой треугольного сечения. Сначала необходимо нарезать отрезки трубы необходимого размера, а затем переходить к сварке. Первым делом сваривают основу каркаса козырька в виде буквы П, затем закрепляют основные элементы. Как правило, каркас полностью собирают на земле, гораздо реже продолжают крепить некоторые элементы уже на смонтированный на стену каркас.
Количество перемычек зависит от длины свеса и типа используемого для покрытия материала. Если будет использоваться профнастил, то между рейками необходимо делать расстояние не менее 30 см. Завершающий этап – монтаж карнизной планки, а также водосточного желоба и трубы, если они предусмотрены конструкцией.
Работать с прямыми деталями не так сложно – трудоемкость повышается, если необходимо сделать навес арочной формы. В этом случае металлические трубы нарезают с большим запасом и сгибают их трубогибом или газовым ключом. За неимением таких инструментов можно воспользоваться болгаркой. С ее помощью на трубе каждый 30-40 см делаются встречные надрезы, после чего ее сгибают до достижения нужного радиуса, а места соединения прорезей соединяют сваркой. Со второй и последующими трубами поступают точно также, а для достижения одинакового изгиба необходимо постоянно прикладывать первую трубу в качестве образца. Теперь остается отрезать лишнее и сварить с заготовкой.
Если козырек будет достаточно большим и тяжелым, не забудьте приварить к каркасу упоры, которые будут вести от наружных углов козырька к стене. Когда все сварочные работы окончены, швы можно сгладить болгаркой, затем загрунтовать и покрасить металл. Следующий этап – создание отверстий в трубах для крепления конструкции к стене. В этих целях используют анкера или саморезы. Небольшие козырьки крепят в четырех местах: вверху и внизу с каждого края, но большие тяжелые конструкции будут нуждаться в дополнительных крепежах. Предварительно на стене лучше отметить место установки козырька – это упростит работу. К установленному каркасу можно крепить покрытие.
Монтаж внешнего покрытия
Для самостоятельного создания козырька лучше выбирать поликарбонат или профнастил – они максимально просты в работе, и в случае ошибок монтажа финансовые потери будут не столь значительны. Профнастил крепят к каркасу с помощью кровельных саморезов с резиновыми шайбами, поликарбонат – с использованием саморезов и термошайб.
На местах крепления к каркасу на поликарбонате высверливают отверстия. Между каркасом и поликарбонатам обязательно обустраивают силиконовую или резиновую прослойку. Термошайбы прикручивают не очень сильно, чтобы обеспечить листам возможность небольшого смещения. Срезы листов необходимо обязательно закрыть торцевым профилем. Желательно между листами поликарбоната оставить небольшие зазоры для температурного расширения. После того, как материал полностью установлен на каркас, можно загерметизировать шов в месте примыкания навеса к стене, для чего используют металлическую планку.
Козырек на опорах
Для больших и тяжелых козырьков описанная выше схема не подходит. Возводить навес на опорах решится не каждый – процесс требует специальных знаний и большого опыта, поэтому в ознакомительных целях приводим приблизительную последовательность действий. Сначала делаются опоры с расстоянием не более 2 м друг от друга. Они могут быть из кирпича, бетона или металла, требуют подготовки фундамента. В стене делаются выемки для балок, которые укладываются на опоры и в выемки. После этого возводят стропильную часть козырька, производят обшивку и нижнюю подшивку, можно обустроить в навесе точечное освещение.
Создание деревянного каркаса
Каркас из дерева можно изготовить, имея минимальную подготовку в строительных работах. Последовательность действий такова:
- над дверью необходимо отметить линию будущего козырька, просверлить несколько отверстий, а затем закрепить деревянный брусок нужной длины с помощью анкеров;
- под установленным брусом по краям закрепляют два вертикальных бруса;
- под углом к горизонтальной балке с двух сторон крепятся бруски, которые станут основой для монтажа внешнего покрытия. Для поддержки несущих балок крепятся дополнительные балки, ведущие от вертикальных брусков;
- если козырек большой, на балки укладывается обрешетка, и только потом – кровельный материал.
В завершение
Широкий выбор материалов позволяет создать козырек над крыльцом любой формы и размера, но увлекшись декоративной составляющей, не забывайте об основных функциях навеса. Браться за самостоятельное изготовление можно в случае полной уверенности в своих силах, иначе процесс рискует обернуться зря потраченными деньгами и временем.
remstroiblog.ru
Фото навеса для дома своими руками, виды и особенности
Загородный дом. В современном видении он предстает как оазис покоя и абсолютной приватности, поэтому в его проект изначально закладывается зона отдыха. Какой ей быть – решать исключительно вам. Кто-то представляет ее как патио, кому-то кажется, что комфортнее будет в беседке, но посмотрите на фото навесов во дворе дома. Они – отличный вариант благоустроить небольшую площадь, к тому же эти легкие постройки не сложно вписать в уже обжитую обстановку участка. Знакомимся ближе?
Виды навесов
Возводимые во доре навесные конструкции подразделяются:
- на пристроенные к дому;
- отдельно стоящие.
Первые представляют собой козырьки на консолях, вторые являются тентами, зафиксированными на капитальных опорах.
Консольные варианты могут иметь большую протяженность, вплоть до того, что опоясывать весь дом, однако эти постройки ограничиваются по ширине. Их не рекомендуют делать шире двух метров, так как есть опасность сноса крыш ветром.

Навес пристроенный к дому
Вглядитесь в фото: навесы, пристроенные к дому – это не просто дополнительное защищенное от солнца и дождя пространство, они являются еще и элементом декора фасада. Например, козырьки с резьбой и ковкой станут отличным дополнением входной группы.
Пристройка не обязательно должна располагаться у глухой стены. Ее можно вынести за домик или переместить место для посиделок к парадному входу.
Навес можно облагородить не только зону отдыха на загородном участке. Им зачастую обустраивают:
- Автомобильную стоянку.
- Бассейн.
- Подходы к дому.
- Детскую площадку.
- Зону барбекю.
- Хозяйственную зону.

Навес для автомобильной стоянки
Как будут выглядеть конструкции?
Навес «козырек»
Одна из важнейших конструкций, так как является средством защиты от непогоды крыльца и двери. При правильно продуманной структуре, козырек надежно защитит ступеньки от налипания снега и обледенения, что сделает выход из дома безопасным. Риск поскользнуться и упасть с крыльца сводится к нулю. Мало кому известно, но так часто попадающиеся на глаза фото навеса, который пристроен к дому над террасой, специалисты тоже относят к разновидности козырька. Причиной тому – особенности фиксации. Ведь он тоже одной стороной крепится к капитальной стене здания. Все отличие заключается лишь в размерах пристройки. Под такой крышей можно обустроить полноценную зону комфорта с удобной мебелью и мангалом.

Навес “козырек” сделает выход из дома безопасным
Поскольку такого типа навес будет смотреться как дополнительная часть дома, то и делать его нужно из идентичных строительных материалов. К деревянному дому пристраивается конструкция из бруса, на фоне кирпичных стен хорошо будут смотреться металлические покрытия.
Очень важно удачно вписать навес в тему дизайна основной постройки. Для этого придется позаботиться о цветовом соответствии, чтобы пристройка не выглядела белой вороной и не портила общий архитектурный ансамбль.

Навес должен гармонично вписываться в архитектуру дома
Навес-пристройка
Это достаточно габаритная конструкция, призванная скрыть под собой большой участок земли. Она может растянуться от ворот до входа в дом или вести от дома к иной постройке, имеющейся на облагораживаемой территории. Как показывают фото проектов, навес к дому своими руками можно пристроить не только стационарно. Его допустимо сделать разборным или смешанного типа. Какому варианту отдать предпочтение – решают на основании предназначения загородного дома. Если это летний вариант дачи, то ставить стационарный навес – смысла нет, а вот в обжитом коттедже он будет нелишним и зимой. Под крышей гораздо комфортнее перемещаться в дождь и снегопад.

Пример складного навеса для дома
Навес-беседка
Наиболее распространенное решение в дачной архитектуре. Конструкции могут появляться в любом дизайне. Им может быть придана форма шестигранника, квадрата, круга. Навес можно сделать и нестандартной конфигурации.

Фото навеса-беседки
Поскольку это всегда отдельно стоящая постройка, выделяющаяся красотой форм, то ее стараются размещать в самых живописных уголках участка, на возвышенностях. Открытость конструкции можно оригинально обыграть, сделав ее еще более уютной, но об этом ниже.
Навес для бассейна
Отличное решение, позволяющее прекрасно провести время у воды. Некоторые проекты предлагают делать его закрытого типа, снабжая раздвижными панелями-стенами. В этом случае купаться в резервуаре можно будет и в прохладную ветреную погоду.

Раздвижной навес для бассейна
Стоит присмотреться и к идеям, предлагаемым фото, где навес из поликарбоната, примыкающий к дому, объединяет постройку в единую композицию с бассейном. Прозрачное перекрытие выглядит очень эстетично и не мешает единению с природой.

Навес объединяет дом и бассейн в единую композицию
Навес-гараж
Сооружение такой конструкции – простейший способ защитить свой автомобиль. Его ставят на участках, где нет возможности обустроить полноценный гараж или в нем попросту нет нужды. Основная выгода в этом случае сводится к экономии финансов, ведь навес обойдется гораздо дешевле стационарного гаража.

Навес-гараж – отличный способ защитить свой автомобиль
Навес для детской площадки
Он должен быть достаточно большим и желательно с тканевым покрытием. Под него должно войти все, что имеется в этой зоне:
- качели;
- песочница;
- турники;
- горка.
Кроме того, что не перегреется на солнце ребенок, конструкция продлит жизнь и комплектующим элементам игровой зоны, защищая их от дождя.

Детская площадка с навесом
Нет места для площадки, но можно было бы выкроить уголок и поставить небольшой игровой домик? Ставьте, и пусть вас не смущает отсутствие тени на этом участке. Навес, растянутый над домом, как на фото, снова-таки спасет ситуацию. Его наличие позволит малышу комфортно себя чувствовать в игровой зоне даже в полуденный зной. Под раскидистой крышей конструкции может хватить места для импровизированной из автомобильного ската песочницы и удобной скамеечки.
к оглавлению ↑Формы навесов во дворе дома: фото, особенности конструкций
«Насколько привлекательно может выглядеть пристроенный к дому навес из поликарбоната, расскажут фото в нашей галерее»
Прежде чем говорить о форме навесов, надо четко представлять себе, что это в принципе такое. Данная уличная конструкция состоит из крыши и держащих ее опор. Чтобы сделать навес соответствующим запросам, необходимо определиться с его назначением, габаритами и местом расположения на участке.
Конструкционная форма крыши может быть:
- Односкатной.
- Двускатной.
- Шатровой.
- Арочной.
- Композиционно сложной.
Односкатные отличаются односторонним уклоном. Их может поддерживать как одна опора, так и несколько. Угол кровельного ската должен быть достаточно крутым, чтобы на крыше не задерживался снег и не застаивалась вода. Важно правильно установить конструкцию, поскольку она склонна «парусить». Скат должен «смотреть» на подветренную сторону, тогда риск быть сорванной, для крыши снизится в разы.

Односкатная конструкция навеса
Двускатные модели традиционно устойчивы к любым катаклизмам, поэтому достаточно востребованы в строительстве навесов.

Фото навеса с двускатной крышей
Шатровые крыши актуальны для навесов-беседок, бассейнов, уголков релакса. Представляют собой собранные в коньке плоские треугольники. В зависимости от их количества крыша может быть куполообразной, конусообразной или пирамидальной.

Навес-беседка с шатровой крышей
Арочными часто делают конструкции над бассейнами, тропинками и не только. Насколько привлекательно может выглядеть пристроенный к дому навес из поликарбоната, расскажут фото в нашей галерее. Полукруглая крыша оригинальна сама по себе, плюс отлично защищает от непогоды. Кроме этого она способна преобразить даже самое неказистое строение, представив его сказочными хоромами.

Арочный навес из поликарбоната, пристроенный к дому
Сложные композиции
Крыши фигурных навесов представляют собой ансамбль из волнообразных, каскадных, арочных перекрытий. Безусловно, выглядят они весьма впечатляюще, но самостоятельно их воспроизвести крайне сложно.
Маркизы
Этим термином называют мобильные навесы, имеющие вид тканевых тентов. Их задача защищать окна дома, открытые балконы, террасы от дождя и палящего солнца. Маркизы выдвигают по необходимости. Есть возможность регулировки величины их раскрытия.

Маркизы выдвигаются при необходимости
к оглавлению ↑Как создаются классические навесы
Проектов пристройки навеса к дому своими руками с фото предлагается немало, но все работы по их возведению, по сути, будут сводиться к стандартным действиям, то есть обустройству каркаса и накрытия его крышей.
Как собрать каркас
Этап I. Крепление несущей балки к стене дома.
Этап II. Отмеряем требуемое расстояние от стены и вкапываем опорные столбы.
Этап III. Крепление второй несущей балки на установленных опорах.
Этап IV. Делаем обрешетку под крышу. Для этого укладываем доски на несущие балки и надежно фиксируем к ним.

Схема навеса, пристроенного к дому
Из чего собрать каркас
Поскольку это основной конструкционный элемент, несущий не только весовую нагрузку, то и делать его нужно из особо прочных материалов.
Естественно, на первом месте окажется металл. Он высокопрочен, быстр в сборке. Пустотелый прокат имеет небольшой вес, и после соответствующей обработки будет достаточно стоек к коррозии.

Металлический каркас высокопрочен и быстр в сборке
Металлический каркас бывает сварным и сборным. Последний несложно собрать своими руками без посторонней помощи.
Следующим по популярности стоит дерево. Материал отличается конструкционной вариативностью. Выбрав его, вы получите возможность сконструировать навесы любой архитектурной сложности. Обработка антисептическими и защитными составами существенно продлевает эксплуатационный срок службы постройки. Основными преимуществами дерева, как строительного материала являются:
- экологичность;
- доступность материала;
- эстетичность;
- простота в сборке.

Фото навеса с деревянным каркасом
Хоть дерево и уступает металлу по прочностным показателям, и служить будет меньше него, это не мешает материалу быть лидером выбора. Секрет в том, что деревянные конструкции несут в себе особый уют, которого нам так не хватает в городских обителях.
Можно пойти на компромисс и сделать каркас навеса из поликарбоната, пристроенного к дому, как на фото, комбинированным. То есть, опоры сделать металлическими, а несущие балки и обрешетку оставить деревянными.
Отличной альтернативой металлу и дереву является камень. Каркасы из него массивные, готовые выдерживать значительные нагрузки, но их создание требует солидных вложений. В случае, когда вы строите конструкцию «на века», это ваш вариант.

Опоры из камня выдерживают значительные нагрузки
Чем накрыть каркас
Кровельных материалов, пригодных для обустройства навесов, сегодня масса. В принципе, сделать крышу можно из чего угодно, хоть из стекла. Вопрос лишь в рациональности. В этом аспекте наибольшей популярностью пользуются следующие их виды.
Профнастил
Для простенькой конструкции это отличный вариант. Листы профнастила плотны, рассчитаны на длительный срок службы, их не трудно настелить и закрепить. Материал практичен. Его можно сочетать с другими текстурами.

Практичный навес из профнастила
Металлопрофиль
Практичное покрытие, оправданное в проектах навесов-гаражей, навесов для хоздворов. Находящиеся под ним вещи будут надежно защищены. При использовании в качестве кровельного материала из металлопрофиля обычно обустраивают односкатные крыши. Это позволяет поставить конструкцию быстро и без лишних затрат.

Металлопрофиль в качестве кровельного материала
Металлочерепица
Эстетичное современное решение, довольно часто используемое, судя по фото, для покрытия навесов, пристроенных к дому, защищающих веранды и террасы. Легкий, но при этом прочный материал хорошо режется, не прогибается под порывами ветра и весовыми нагрузками.

Отделка навеса металлочерепицей
Шифер
Современный шифер разительно отличается дизайном и качеством от своего пращура. Он представлен в различных цветовых решениях, имеет хорошие показатели морозоустойчивости и противостояния влаге, поэтому используется не только для покрытия навесов на заднем дворе, но и в благоустройстве придомовых территорий.
Ондулин
Представитель эконом сегмента современных кровельных материалов. Гибкий, легкий, «тихий», ондулин позволяет монтировать крыши навесов в любой конфигурации, имеет неплохие декоративные показатели и доступен сборке своими руками.

Ондулин позволяет монтировать навесы любой формы
Поликарбонат
Универсальное решение. Фото навеса из поликарбоната, примыкающего к дому, наглядно демонстрируют, что такая крыша способна стать надежной преградой солнечным лучам и проливному дождю. Под поликарбонатным навесом можно спрятать детскую площадку, небольшой бассейн, автостоянку. Материал легок, имеет хороший запас прочности, гибок. Из него часто делают фигурные и покатые кровли. По лицевой стороне листов нанесен защитный слой, отвечающий за ультрафильтрацию.

Поликарбонат станет надежной защитой от солнца и дождя
В продаже поликарбонат представлен в различной модификации. Для накрытия навесов нужно выбирать ячеистый, имеющий воздушные каналы. Под такой крышей не будет парникового эффекта. Важно обращать внимание и на степень прозрачности материала. В погоне за красотой не стоит забывать, что вы обустраиваете крышу, а она все-таки должна давать тень.
Дерево
Данный материал постепенно отвоевывает свои позиции и вновь выходит в лидеры. Его натуральность создает иллюзию абсолютного единства с окружающим пространством. Деревянный навес во дворе дома (см. фото) может появиться как отдельно стоящий объект или конструкция, примыкающая к основному строению. Поскольку дерево просто в обработке, то проблем с созданием оригинальных форм построек не будет. С таким материалом удастся воплотить самые смелые дизайнерские идеи.

Дерево поможет воплотить любые дизайнерские идеи
Триплекс
Закаленное стекло надежно. Ему нипочем температурные перепады. Есть возможность декоративной тонировки. Вроде бы все хорошо, но вот монтаж собственноручно выполнить не удастся. Тут потребуются специалисты.

Навес из триплекса
Синтетические ткани
Акрил, полиэстер и ПВХ-полотно в основном задействуются при изготовлении маркиз. Материал покрывают тефлоном, чтобы обеспечить ему большую сопротивляемость влаге и повысить антисептические показатели.

Синтетические материалы используют при изготовлении маркиз
Тростник
Невероятно эффектное решение кровли. Тростниковые крыши получаются легкими и прочными, так что под них не придется сооружать мощные каркасы. Да и прослужат они довольно долго, несмотря на природность своего происхождения, так как материал не боится сырости, и его не любит плесень.

Эффектный навес из тростника
Выбрав такое решение, позаботьтесь об обеспечении огнезащиты уникального строения. Для этого достаточно будет обработать крышу антипиренами.
к оглавлению ↑Не просто навес
«Сделайте к навесу, который пристроен к дому, обрешеточные панели, как на фото, и установите их между опорами»
Столбы с крышей – это скучно? Конструкцию можно облагородить. Проще всего скрыть простецкие металлические опоры. Их можно выкрасить в необычный цвет, декорировать под колонны или озеленить вьющимися растениями. Готовы пойти еще дальше – сделайте к навесу, который пристроен к дому, обрешеточные панели, как на фото, и установите их между опорами.
Изготовить «стены» сможет любой, кто умеет держать в руках молоток. Все, что нужно сделать, это набить на деревянную раму нужных размеров тонкие рейки. Последние укладываются крестообразно, чтобы получались достаточно широкие ромбовидные или квадратные «окошки».

Навес простой конструкции из дерева
Вдоль таких стен неплохо высадить вьюны. Они красиво оплетут получившуюся беседку и создадут в ней релаксирующую атмосферу. Поставьте туда диван и пару кресел, повесьте телевизор, и вы получите отличную зону отдыха. Неплохо там будет и трапезничать. В этом случае обстановка должна быть несколько иной. Вместо мягкой мебели ставим стол и скамейки, а стены украшаем тематическими атрибутами.

Вьющиеся растения красиво оплетают беседку
Кстати, вопрос озеленения можно решить и иным способом, например, повесив на несущую балку кашпо с петуниями. Горшки с цветами могут появиться и на самих стенах. А еще вдоль них, по периметру навеса высаживают живую изгородь из низкорослых кустарников.
к оглавлению ↑Несколько идей на закуску
«Углубившись в разработку проекта, обратите внимание на один нюанс, явно просматривающемся на любом фото навеса, который пристроен к дому»
Идеи дизайна навесов во дворе дома с фото предлагаются в неограниченном количестве. Хотите сделать и свою постройку неотразимой? Не ищите сложных решений. Просто перекрасьте ее в белый цвет, и она вмиг приобретет праздничный вид. Белая краска настолько нарядна, что способна придать визуальную легкость и представить воздушной даже самую тяжелую конструкцию.

Белый цвет придает визуальную легкость навесу
Навес для посиделок станет действительно любимым местом домочадцев, если вместо обрешетки его межопорные пролеты декорировать нарядными занавесками и соответствующе обставить. Какой будет обстановка под навесом зависит от выбора фактуры штор. Невесомые и прозрачные ткани позволят представить его в виде восточного шатра. Внутри такого пространства можно расстелить ковер и разложить красивые подушки. Хорошо будет смотреться в подобном интерьере плетеная мебель.

Занавески создают уютную атмосферу
Среди фото навесов, пристроенных к дому, есть еще одно оригинальное предложение, доступное к реализации своими руками. Возможно, вас заинтересует конструкция с продолжением. О чем речь? О навесе для двухэтажного дома. И действительно, зачем ограничиваться оформлением входной группы, если можно обустроить пристройку вдоль всей стены дома, а вместо крыши разбить террасу? Задумайтесь о перспективах. Работа над таким проектом, скорее всего, растянется на пару сезонов, но зато вы получите сразу два уютных уголка для проведения досуга.

Навес с террасой для двухэтажного дома
Чтобы реализовать планы, строя каркас будущего навеса, разоритесь на мощные опоры и солидное балочное перекрытие. Если сразу не сможете продолжить строительство, то накройте получившееся недорогой крышей, возможно даже тканевым тентом, который потом вам пригодится в хозяйстве. Под ним можно будет разбить зону мангала или повесить гамаки для дневной сиесты. В следующем году вы просто уберете временную крышу и застелите что-то более прочное, подходящее на роль полов, поставите перила на балясинах, оградив площадь террасы. И вот у вас уже есть возможность провести вечер под звездами, дополнив идиллию чаепитием с самоваром. Шикарно, не правда ли? А если учесть, что реализация данного грандиозного проекта начиналась с туманного желания соорудить какой-нибудь простенький навесик…
Углубившись в разработку проекта, обратите внимание на один нюанс, явно просматривающемся на любом фото навеса, который пристроен к дому. Конструкцию крайне редко располагают с северной стороны. Причиной тому и без того скудное освещение окон. Дополнительно же затемнять их – полный нонсенс. Недостаток света плохо скажется на микроклимате в доме. В нем могут даже отсыреть стены.
к оглавлению ↑Заключение
Фото проектов навесов к дому своими руками полны необычных предложений. Какое из них придется вам по душе – сказать сложно, но что вы точно отыщете нечто неординарное и удовлетворяющее вашим запросам, можете не сомневаться. Удачи!
Фотогалерея – навес для дома
yellowhome.ru