Откидной верстак с креплением к стене своими руками чертежи: Верстак складной своими руками 500 фото, чертежи, инструкции
alexxlab | 04.07.2023 | 0 | Разное
Как сделать откидной верстак в гараже своими руками, фото, идеи
- Блог
- Советы
Довольно редко кто использует гараж только для хранения автомобиля. Если габариты помещения позволяют, то зачастую его оборудуют как домашнюю мастерскую. Для комфортной работы целесообразно подготовить рабочее место со столом и хорошим освещением. Стол в таком случае может выступать в виде верстака, как откидного, так зафиксированного без возможности складываться.
Складной верстак в гараже имеет значительное преимущество по сравнению с зафиксированным верстаком – в сложенном виде он экономит пространство. Это преимущество актуально для гаражей, где недостаточно свободного места.
Рассмотрим вариант складного верстака, сделанного своими руками.
На фото: откидной стол в гараже, сконструированный компанией «ГаражТек»
Перед началом работ следует выбрать место, где будет располагаться верстак. Для удобства лучше выбрать место поблизости от розетки. Далее составить чертеж верстака. Такая схема отразит все параметры будущего верстака и поможет не ошибиться с габаритами. В конце подготовительных работ вам только останется приобрести необходимые материалы и инструменты.
Важно заранее выбрать из какого материала будет изделие. По большей части используют металл либо дерево. Можно также комбинировать данные материалы. К примеру, столешницу сделать деревянной, а крепление металлическим для большей стойкости изделия. Либо наоборот, изготовить столешницу из металлического листа, что позволит производить слесарные работы, а крепление сделать деревянным. Таким образом, комбинация материалов уменьшит вес, по сравнению с полностью металлическим изделием.
Для создания верстака с металлическими элементами могут понадобиться навыки сварочных работ.
На фото: откидной верстак в гараже в разложенном и сложенном положении от «ГаражТек»
Из инструментов и материалов понадобится:
- дрель или перфоратор,
- саморезы,
- 4 бруска дерева для ножек,
- 1 брусок дерева для опоры стола,
- дерево или металлический лист для столешницы,
- дверные петли.
После окончания подготовительных работ можно приступать к созданию конструкции. Сначала необходимо сконструировать ножки для стола. Их будет две. К двум удлиненным брускам необходимо прикрепить поперечные бруски дерева покороче с помощью саморезов. Далее ножки фиксируются у стены на дверные петли, которые позволяют приводить в движение ножки верстака.
Потом к стене на равном расстоянии от ножек верстака необходимо закрепить 1 брусок дерева. Данный брус создаст дополнительную точку опоры для столешницы и позволит столешнице складываться.
Важно перед монтажом к стене ножек и бруска оштукатурить предварительно стены. Это защитит от т от образования конденсата и, соответственно, продлит срок службы откидного верстака.
На конечном этапе к брусу посередине сверху закрепляется дверная петля. Уже на петлю фиксируется столешница. Перед использованием поднимается столешница, раздвигаются ножки и на них опирается столешница.
Складывается такой верстак в обратном порядке – приподнимается стол, чтобы на ножки ничего не давило и они могли свободно складываться, задвигаются ножки и опускается сверху стол.
В итоге получается нехитрая конструкция, которую можно сделать своими руками или обратиться за помощью к специалистам «ГаражТек». «ГаражТек» помогут создать любые конструкции в зависимости от пожеланий.
разновидности конструкций и их особенности Стол для гаража
Организация рабочего места своими руками — верстак для гаража: фото, чертежи и размеры стола. Верстак в гараж: разновидности конструкций и их особенности Стол для гаража
Этот откидной стол идеально подходит для тех, у кого малогабаритный, небольшой гараж.
Ведь он не занимает много места, сделать его можно своими руками, использовав старую межкомнатную дверь.
Чтобы сделать откидной стол нам понадобятся:
– дверь.
– 2 деревянные бруски 20 х 94 х 2032мм -передний рельс.
– 1 доску размером 32 х 67 х 2032мм – крепление щита.
– 2 куска 20 х 67 х 100 мм PAR – блоки для ног (отрегулировать это, чтобы приспособить откидные кронштейны для ног).
– 2 деревянных отрезка 44 х 44 х 860 мм – ножки*
– саморезы или шурупы.
– 3 стыковых петли, 100мм и 16мм винты.
– 2 складных ножки / закрылков кронштейнов и винтов 25 мм.
– Самым оптимальным вариантом дерева будет сосна.
ИНСТРУМЕНТЫ:
– электродрель,
– орбитальный шлифовальный станок,
– рулетка и карандаш.
* Регулировка высоты ножек для высоты стола.
Ход работы по изготовлению стола в гараж
1 . Приготовленные двери пока отставим в сторонку.
2 . Выпиливаем планка и крепления той же длины, что и двери и шириной, и толщиной от 20 х 94 мм и 32 х 67 мм. Большинство стандартных дверей высотой 2000мм, но перепроверьте ведь как говорится: “семь раз отмерь и один отрежь”.
3 . Сверлим планку, чтобы закрепить планку- полку на верхней части крепежной планки. Задняя полка находится на одном уровне с монтажной планкой.
4 . На передней части стола просверлите отверстие для монтажа под столешницей передней рейки. Закрепите саморезами или шурупами.
5 . Выпиливаем две ножки и крепим к нижней стороне стола при помощи 30 мм винтов. Крепим каждую ножку на раздвижные шарниры, а затем монтируем к столу.
6 . Устанавливаем петли к задней кромке стола (двери). 2 петли крепим отступив 100 мм от краев и одну по центу стола.
7 .
Закрепите другую сторону стола на монтажной планке с помощью 30-милиметровых винтов.
8 . Для того, чтобы собрать рабочий откидной стол, отметьте место на стене для крепления монтажного шипа. Отмерьте от пола среднюю высоту ноги (860мм) плюс трап для ног (20 мм). Используйте строительный уровень, чтобы отметить ровную линию на стене. Установите монтажную планку выше этой линии. Используйте дюбели и винты для крепления стола к стене.
Уважаемые посетители сайта «В гостях у Самоделкина » в представленном материале вам будет показано, как самостоятельно сделать прочный и надежный верстак в мастерскую либо гараж .
Без верстака в гараже, ну никак не обойтись, постоянно что то нужно отремонтировать, разобрать, собрать, а где это делать если не на верстаке, тиски прикручены к столешнице и инструмент весь необходимый всегда находится под рукой.
Верстак предназначен для слесарных работ, имеет металлический каркас из уголка и профтрубы, а так же удобные ящики для хранения мелкого инструмента, болтов, гаек и прочей полезной мелочи, так же имеются удобные полочки, а сама столешница обязательно должна быть отделана железом 1.
5-2 мм толщиной. Дополнительно к задней части стола крепится панель для инструмента, что тоже очень удобно ибо необходимое будет висеть прямо перед вами, так же желательно вывести на панель розетку или тройник, чтобы можно было подключить электроинструмент.
Необходимо защитить металлические поверхности от коррозии, а именно покрыть их антикоррозийным составом и краской, таким образом стол будет выглядеть всегда опрятным и прослужит вам долгие годы.
И так, давайте рассмотрим, что конкретно понадобится для изготовления верстака?
Материалы
1. проф труба квадратного сечения
2. уголок 40х40 мм
3. металлический лист 2 мм
4. фанера
5. саморезы по металлу
6. краска
7. пропитка для дерева
8. саморезы по дереву
9. антикоррозийное покрытие
10. металлическая пластина
11. мебельные направляющие для ящиков
Инструменты
1. сварочный аппарат
2. болгарка (УШМ)
3. дрель
4. рулетка
5. ножовка по дереву
6.
7. кисть
8. молоток
9. шуруповерт
10. линейка
11. маркер
12. уровень
13. уголок
14. наждачная бумага
15. шлифовальная машинка
Пошаговая инструкция по созданию верстака своими руками .
Сборка и установка данного стола в гараже или же мастерской, дело серьезное и ответственное. При его изготовлении нужно прежде всего знать, что он должен быть устойчивым и выдерживать нагрузку порядка 200 кг, проверять уровнем нет ли перекосов, потому как желательно чтоб стол в итоге получился ровным. Перед началом работ следует изучить чертежи и схемы предоставленные автором.
После чего мастер из проф трубы квадратного сечения сварил основу для будущего верстака.
Места сварки тщательно зачистил при помощи болгарки (УШМ)
К задней части стола наварил металлические уголки, на них будет закреплена панель для инструмента.
Затем усиливается зона под столешницу, а именно навариваются дополнительные трубы.
Сама столешница будет из доски 50 мм и под ее размещение автор сделал раму из уголка.
После чего все места соединения необходимо усилить металлическими пластинами.
В углы навариваются распорки.
На верстак будут действовать различные нагрузки: вес, удары, вибрация итд, на этапе создания все эти моменты надо учесть и перестраховаться.
Для удобства хранения малого инструмента, запчастей, болтов и гаек мастер сделал специальные ящики из фанеры.
Поверхность верстака окрашивается краской.
На ящики по бокам прикручиваются мебельные направляющие.
Дерево будет принимать на себя часть нагрузки от ударов, вибрации и веса.
Полученную поверхность следует хорошо зашлифовать, мастер для этого использовал болгарку (УШМ) с шлифовальным кругом.
Чтобы дерево долго прослужило и не загнило под металлом, то его следует обработать специальной пропиткой для дерева.
После чего по размеру столешницы выпиливается лист металла 2 мм.
Металл необходимо с обеих сторон обработать антикоррозионным составом, чтобы металлический лист не ржавел.
Ящики устанавливаются в полость стола где мастер вмонтировал салазки под каждый ящик.
Таким образом ящики будут удобно открываться и закрываться.
В передней части каждого ящика прикручена ручка для удобного открывания.
На готовый верстак можно разместить к примеру наждак прикрутив его болтами к столешнице.
В нижней части сделаны открытые полки, где можно хранить электроинструмент.
Очень удобно работать когда у тебя все под рукой и собрано в одном месте.
Так же на верстак можно установить тиски, которые так же прикручиваются к столешнице болтами и стягивается гайками.
У меня в гараже очень мало места. Писал уже. Но — места мало. Машина входит впритирку. Ну почти. Ходить вокруг можно и ладно. Но хочется и поделать что-то.
Поэтому приходится прикладывать ум.
Мне очень не хватает места, где можно попаять.
Собрать-разобрать что-то тонкое и/или электронное. А то и оптическое. То есть “чистое”. На верстаке — не вариант. Рядом пыльные сверлильно-варильно-наждаковые столы. Да и тесно на 50 см верстаке. Постоянно надо его разбирать от всякого.
Короче, было решено сделать откидной стол в чистой зоне.
Причем, откидной, а не подъемный. Откидной сохраняет больше места. Если под подъемным все равно ничего не поставишь — там нужно место для хождения вокруг машины. А вот на стене он сожрет место под полочки. А если делать “бутерброд”, то это будет уже не “столик”, а вундервафля.
Короче, откидной.
Конструкция — натуральный кухонный стол производства Польша))) Ввиду подножности и дешевизны, петли и тяги сделаны из 3 мм металла и круга 14 мм. Другого ничего не было. 14 мм круг не влезает внутрь водопроводной трубы, поэтому державки для петель просто нарезаны из листа 3 мм. На слона, конечно, ну фиг с ним. Не люблю хлипкие вещи.
Подвес тоже из 14 мм круга и таких же державок. Чтобы можно было откидывать подвес в сторону, в державках сделан свободный ход для подвеса.
Все собрано на болтах и анкерах. Выше столика сделаны полки, которые огорожены и разгорожены планкой из дерева. Полочки установлены на самодельные опоры. Я их режу из 2 мм листа, а потом сверлю и варю. При монтаже планок использовался нейлер.
Выше стола изготовлен распределительный блок:
1. Источник 12 В на 10А. При включении источника, работает нижняя полочная подсветка из китайской LED-ленты.
2. Крепление под тестер
3. Розетки 4 шт.
4. Выключатель для источника.
5. Выключатели для вытяжки и настольной лампы. Вытяжка сейчас работает как “втяжка”, а лампа еще делается.
Примечания:
* Я почти ничего никогда не покупаю. Делаю из того, что есть здесь и сейчас.
** Почему фанэрка, а не листовой металл? Фанэрка — легкая. И есть. А металл тяжелый и нет его. Поэтому — фанерка и асбест.
*** Асбокартон, да. Асбест. Ни фига не “пипец вредно”. Запретили асбест ЮАРовский, который мелкой пылью.
Только заодно, почему-то, запретили и российский, который крошкой. И дешевый. А ввели кевлар. КОторый бешено дорогой. Тоже почему-то.
Большинство автовладельцев используют гараж, как место для хранения автомобиля, предпочитая ремонтировать авто в специальных сервисах. Однако есть категория граждан, любящих заниматься автомобилем самостоятельно, ремонтируя и модернизируя его. Для этого в помещении необходим верстак, на котором удобно ремонтировать разные механизмы транспортного средства. Как сделать откидной стол в собственном гараже, чтобы он не занимал много места, разберёмся ниже.
Раскладной стол имеет много особенностей, выгодно отличающих его от обычной конструкции:
- Раскладной стол, установленный в гараж, не занимает свободное место и раскладывается лишь при необходимости.
- Выполняет разные функций, которые без него реализовать проблематично. На откидном столе в гараже можно починить сломавшуюся деталь, пообедать и разложить чертежи или схемы, необходимые при ремонте автомобиля.

- Красиво вписывается в интерьер.
- Можно собрать самостоятельно.
Обратите внимание! Рядом со складным верстаком можно организовать стеллаж с инструментами, что повысит удобство работы.
Выбор материала
Складной стол делается из следующих материалов:
- металл;
- дерево;
- комбинирование металлических и деревянных деталей конструкции.
Преимущество деревянных откидных столов, сделанных в гараже своими руками:
- низкая стоимость;
- дерево легко и быстро обрабатывается, принимая нужную форму. Для создания простых конструкций не требуется специального инструмента;
- деревянные изделия придают обстановке домашнюю атмосферу, разбавляя большое количество металла, которое окружает вас в помещении.
Металлический откидной стол, закрепленный на стену в гараже, обладает следующими преимуществами над деревянными конструкциями:
- долговечность металла намного выше;
- металлический лист сложнее повредить.

Минусы металла:
- тяжело сделать в одиночку;
- потребуется наличие специальных инструментов;
- некоторые инструменты требуют определенного навыка в использовании. Например, недостаточно иметь сварочный аппарат, надо знать, как с ним обращаться;
- дороже деревянных моделей.
Многие владельцы предпочитают комбинировать материалы. Это облегчает общий вес конструкции и позволяет снизить конечную стоимость.
Проектирование
Проектирование – главная и самая сложная часть в создании складного стола в гараже своими руками . Без грамотно подготовленного чертежа, в котором указаны основные элементы конструкции, у вас не получится правильно закупить материалы и подготовить необходимый набор инструментов. Чертеж делается самостоятельно или скачивается с сайта и впоследствии модернизируется под нужды конкретного владельца.
Важно! Не пренебрегайте этапом проектирования, иначе после сборки окажется, что конструкция вышла неудобной и только мешается, вместо того, чтобы приносить пользу.
Необходимые инструменты
Для деревянных конструкций понадобится:
- ножовка по дереву;
- молоток;
- гвозди;
- шуруповерт или отвертка;
- шурупы;
- рулетка;
- уголок;
- карандаш для разметки.
При создании металлической модели понадобится:
- сварочный аппарат;
- болгарка;
- мелок для разметки;
- шуруповерт;
- набор шурупов;
- уголок;
- рулетка.
В зависимости от сложности выбранного чертежа, может понадобиться дополнительный набор инструментов.
Как сделать откидной стол в гараж своими руками
Откидной верстак делается по следующему алгоритму:
- собираем столешницу;
- изготавливаем опоры, которые будут поддерживать конструкцию в разобранном состоянии;
- на высоте ножек крепим к стене деревянный брус или металлический уголок. К нему будут крепиться петли, объединяющие брус и столешницу в единую конструкцию;
- крепим опоры.

Обратите внимание! Не забудьте оборудовать рабочую зону вокруг верстака, подведя к ней электричество и установив грамотное освещение.
Рабочий стол в гараже своими руками для большинства автолюбителей является незаменимым оборудованием, особенно, если он достаточно тяжелый и прочный. На нем можно обрабатывать деревянные или металлические детали, собирать узлы автомобиля, производить их ремонт и многое другое. Статья подскажет, как изготовить стол для гаража своими руками.
Особенности оборудования для гаража
Для большинства автолюбителей гараж является укрытием для авто и вторым домом, где они могут проводить довольно много времени. Это требует и особого подхода к оборудованию помещения. При халатном отношении к этому вопросу может значительно сократиться длительность полезной службы автотранспорта, а проводить ремонт в плохо оборудованном гараже очень неудобно.
Прежде всего, при обустройстве помещения необходимо:
- Обеспечить минимальный уровень влаги в нем и поддержание нужной температуры.
Даже в достаточно суровые морозы автомобиль не должен слишком промерзать. - Создать комфортные и приятные условия для работы владельца.
- Обеспечить достаточное пространство для удобного хранения запчастей. При этом доступ к ним необходимо выполнить наиболее удобным.
- Обеспечить возможность быстрого прогрева гаража и надежную защиту его от проникновения преступников.
Особое значение для автовладельца имеет правильный .
Здесь необходимо иметь:
- Различные стеллажи и полки для размещения инструментов и запасных частей.
- Верстак или стол в гараж.
- Аппарат для сварки.
- Компрессор (см. ).
- Отделитель воды и масла.
В своем гараже каждый автовладелец может установить много дополнительных приспособлений и оборудования на свое усмотрение.
Как сделать удобный стол для гаража
Место для работы должно быть:
- Удобным для работы.
- Уютным.
- Эргономичным и практичным.
- Здесь должно быть все, что необходимо.
Совет: Начинать обустройство места для работы своими руками следует, исходя из собственных предпочтений. Каждый человек имеет свои предпочтения, кто-то здесь будет заниматься резьбой любимых пейзажей по дереву, кто-то собирать радиоприемники, а кому-то больше по душе делать модернизацию садового инструмента.
Первое, что необходимо сделать, – это собрать стол своими руками в гараж.
Он может быть:
- Деревянным.
- Металлическим.
- Готовым верстаком в гараж . На столе можно будет рисовать проекты и планы, мастерить, заниматься другим любимым делом.
Правильно обустроенный стол должен укомплектовываться ящиками для хранения мелких рабочих принадлежностей:
- Инструментов.
- Метизов.
- Со специальными удобными ящичками и баночкам для размещения разных размеров нужных гаечек, болтиков, диодов и всего подобного.

- Размещать инструмент и мелкие детали можно на специальных стеллажах и , что упрощает конструкцию стола.
Как сделать складной стол
Совет: Прежде, чем приступить к сборке стола, следует определиться, какой он будет иметь вид, для чего предназначен.
- При наличии кривого пола его следует выровнять. Не обязательно выравнивать весь, достаточно лишь тот участок, где будет размещаться откидной гаражный стол.
- Делается столешница склеиванием доски. Ее можно не изготавливать, а просто оторвать столешницу от уже ненужного стола или использовать старую дверь. Главное, чтобы этот предмет не был слишком тяжелым, иначе будет очень трудно раскладывать, а затем складывать стол.
- Вырезаются ножки из любых досок или брусков. Главное условие – их прочность.
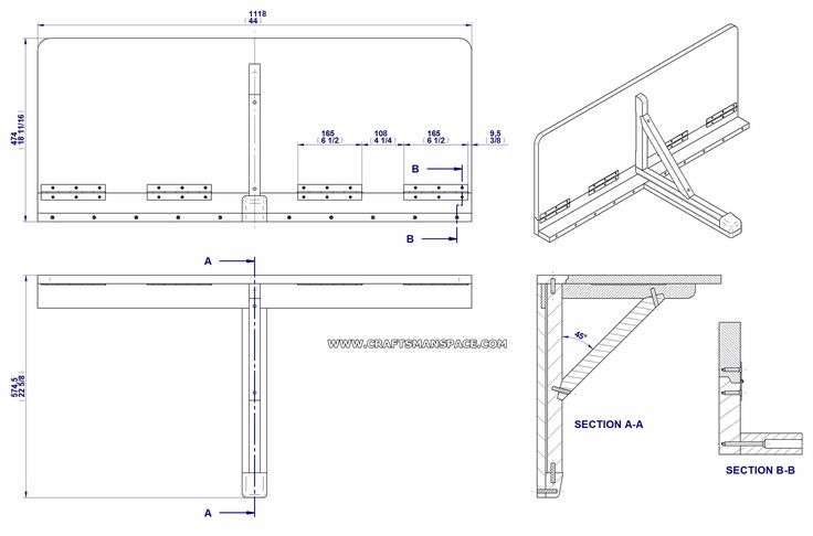
Настенный складной верстак Планы
Этот пошаговый проект по деревообработке своими руками представляет собой настенный складной верстак p lans .
В этой статье представлены подробные инструкции по сборке небольшого складного верстака. Если у вас небольшой магазин, вашей главной задачей должно стать максимальное использование пространства. Используйте эти бесплатные планы, чтобы построить верстак, который крепится к стене и складывается. Взгляните на остальные наши чертежи по дереву , если вы хотите получить больше вдохновения для строительства.
При покупке пиломатериалов следует тщательно выбирать доски, следить за тем, чтобы они были ровными и без видимых дефектов (трещин, сучков, перегибов, гнили). Инвестиции в кедр или другие устойчивые к атмосферным воздействиям пиломатериалы — хорошая идея, так как они окупятся в долгосрочной перспективе. Используйте спиртовой уровень, чтобы отвесить и выровнять компоненты, прежде чем вставлять оцинкованные винты, иначе проект не будет иметь симметричного вида. Если у вас есть все материалы и инструменты, необходимые для проекта, вы можете выполнить работу примерно за день.
Посмотреть все мои Премиум планы ЗДЕСЬ .
Проекты, сделанные на основе этих чертежей
Планы складного верстака
Построение складного верстака
9 tabs=
2 «Материалы» вкладка 2 = «Инструменты» вкладка 3 = «Время» вкладка 4 = «Связанные планы»] [tab id = 1]
- A — 2 куска бруса 4 × 4 — длина 34 1/2 дюйма, 1 кусок бруса 2 × 4 — длина 39 дюймов НОГИ
- B – 1 кусок фанеры 3/4″ – длина 30″x48″, 2 куска бруса 1×1 – 491/2″ в длину, 2 шт. – 31 1/2″ в длину СТОЛЕШНИЦА
- C – 2 куска бруса 2×4 – длина 42″, 1 кусок – длина 9 1/2″ ОПОРЫ
- D – 2 куска бруса 2×4 – длина 50″ НАСТЕННЫЕ ОПОРЫ
- 2 пиломатериала 2×4 – 8 футов
- 1 кусок пиломатериала 4×4 – 8 футов
- 2 пиломатериала 1×1 – 8 футов
- 1 кусок фанеры 3/4″ – 4’x4’
- 50 шт.
винтов 2 1/2″ - 50 шт. винтов 1 1/4″
- 2 шт. 7-дюймовых болтов с квадратным подголовком
- 2 петли, 1 защелка
- клей для дерева, морилка/краска
[/tab] [tab id=2]
Молоток, Рулетка, Квадрат, Уровень
Торцовочная пила, Дрель, Отвертка, Шлифовальный станок
Защитные перчатки, Защитные очки
[/tab] [tab id =3]
Один день
[/tab][tab id=4]
- Планы верстака
- Чертежи стоек для торцовочных пил
[/tab][/tabs]
Подпишитесь на нас на Facebook, чтобы первыми узнавать о наших последних планах и другом эксклюзивном контенте. Кроме того, подпишитесь на нас в Pinterest и получите много идей для своего двора со всего Интернета! Посетите наш канал на YouTube! Узнайте, как вы можете Поддержать нас без дополнительных затрат.
Схемы настенного складного верстака
Изготовление столешницы
Первым этапом проекта является изготовление столешницы для верстака.
Используйте фанеру 3/4″ для верхней части и доски 1×1 для отделки. Обрежьте оба конца накладок под углом 45 градусов и зафиксируйте их сверху с помощью гвоздей диаметром 1 1/4 дюйма. Добавьте клей в стыки и удалите излишки влажной тряпкой. Отшлифуйте поверхность наждачной бумагой и удалите излишки влажной тряпкой.
Изготовление ножек
Изготовьте ножки складного верстака из бруса 4×4. С помощью электролобзика закруглите верхнюю часть ножек и зачистите поверхность наждачной бумагой. Кроме того, вам нужно сделать надрез глубиной 1 1/2 дюйма в нижней части ножек. Просверлите пилотное отверстие в верхней части стоек, как показано на схеме.
Сборка ножек
Далее необходимо скрепить ножки верстака, прикрепив скобу. Убедитесь, что углы прямые, добавьте клей на стыки и вставьте винты 2 1/2″, чтобы плотно скрепить их вместе.
Сборка опор для ног
Используйте доски 2×4, чтобы построить опоры для ног. Просверлите направляющие отверстия в планке длиной 42″ и вставьте винты 2 1/2″ в перпендикулярные опоры.
Добавьте клей на стыки и убедитесь, что углы прямые.
Просверливание направляющих отверстий
Просверливание направляющих отверстий в компонентах 3 1/2″x3 1/2″. Отметьте диагонали карандашом, чтобы можно было определить центр. Затем просверлите пилотное отверстие и очистите его.
Установка опор для ног
Прикрепите опору к задней части стола, выровняв края, как показано на чертежах. Самый простой способ зафиксировать опору наверху — просверлить направляющие отверстия и вставить винты 1 1/4″. Убедитесь, что вы также добавили клей в суставы.
Установка ножек
Затем установите ножки на опоры и вставьте 7-дюймовые болты с квадратным подголовком. Перед продолжением проекта убедитесь, что ножки легко складываются.
Крепление стены к настенной опоре
Прикрепите к стене опору 2×4, как показано на чертежах. Используйте спиртовой уровень, чтобы убедиться, что опора находится в горизонтальном положении. Просверлите направляющие отверстия и вставьте винты 2 1/2″ в шпильки.
Используйте петли, чтобы зафиксировать стол на опоре.
Установка верхней опоры
Прикрепите к стене еще одну опору 2×4, как показано на чертежах. Просверлите направляющие отверстия и вставьте винты 2 1/2″ в шпильки.
Установка защелки
Используйте защелку, чтобы зафиксировать верстак на верхней опоре. Таким образом, вы сэкономите место в своей мастерской.
Настенный складной верстак планы
Вы можете увидеть, как верстак выглядит в сложенном и разложенном виде.
Складной верстак
Заполните отверстия шпатлевкой по дереву и дайте им высохнуть в течение нескольких часов. Отшлифуйте поверхность наждачной бумагой с зернистостью 100-220 и удалите остатки влажной тканью.
Главный совет: Нанесите несколько слоев краски или морилки на компоненты, чтобы улучшить внешний вид проекта.
Этот проект по деревообработке включал около чертежей складного верстака бесплатно .
Если вы хотите увидеть больше наружных планов, ознакомьтесь с остальными нашими пошаговыми проектами и следуйте инструкциям, чтобы получить профессиональный результат.
Складной настенный верстак Easy DIY от двери
- Фейсбук
- Твиттер
Соберите собственный складной верстак для гаража всего за один день! В этом учебном пособии для начинающих и плане деревообработки используется дверь с цельным сердечником и недорогие пиломатериалы, чтобы сделать настенный складной стол менее чем за 100 долларов, который идеально подходит для деревообработки и других проектов «сделай сам».
Вы также можете построить большой складной переносной рабочий стол или модернизировать свою мастерскую в гараже с помощью верстака для настольной пилы с местом для хранения.
Складной верстак для гаража «сделай сам»
У меня ненавистные отношения с моим гаражом.
Я люблю, когда он чистый, и я действительно могу в нем припарковаться.
Ненавижу (90% года), когда это не так!
Мне пришла в голову отличная идея использовать покрытый краской складной стол в качестве рабочего стола в гараже. На самом деле стол превратился в свалку. Почти после каждого проекта, над которым мы работаем дома, инструменты и оставшиеся детали оказываются на столе. Я бы поделился фотографией, но это слишком неловко!
Я, наконец, получил его на прошлой неделе, все почистил и вынес стол из гаража. Теперь мне нужен стол. Так почему бы не построить один?
Вот обязательные предметы моего «рабочего стола»:
- Можно легко убрать, чтобы не скапливался беспорядок
- Прочный и достаточно прочный для сборки мебели
- Большая рабочая зона
Кажется, это довольно короткий список, но это то, что мне нужно! Так что после беглого пролистывания всемирной паутины для вдохновения даю вам Настенный складной стол-верстак .
Я делюсь всей информацией о том, как собрать собственный стол (плюс быстрый самодельный хак для еще более быстрого настенного складного стола!), так что продолжайте читать, чтобы прочитать подробные инструкции по сборке.
Этот пост содержит партнерские ссылки. Узнайте больше и ознакомьтесь с нашей полной политикой раскрытия информации здесь.
Что делает этот настенный складной стол своими руками доступным и простым?0009
- простота сборки (здесь нет необходимости в дополнительных инженерных работах!)
- легко складывается, освобождая место в гараже
- дает вам большую поверхность рабочего стола из цельного дерева
- все материалы менее чем за 100 долларов!
Секрет этого быстрого и легкого настенного складного стола заключается в том, что я использовал дверь из цельного дерева вместо фанеры для столешницы. №
Дверь из цельного дерева (без отверстий) — идеальное решение для поверхности верстака в гараже или сарае (или для настенного откидного стола), потому что она очень гладкая, очень прочная, не требует разрезов.
И это довольно доступная альтернатива одному или двум листам фанеры с повышенной прочностью.
Всего несколько долларов за другие пиломатериалы и пару петель, чтобы превратить дверь в большой складной верстак для вашего гаража или других мест, где вам нужен стол с откидными полами.
Вы можете отрегулировать размер, чтобы сделать стоячий стол или стол для ноутбука для большего рабочего кабинета, или даже компактный обеденный стол для небольшой квартиры или узкой комнаты. Этот откидной складной столик также может стать отличным столом для складывания одежды в прачечной!
Никаких роликов, никаких полок — только прочный и простой настенный складной стол, не занимающий места на полу.
Вам понадобится приспособление для карманных отверстий, чтобы прикрепить юбку переднего стола. Помимо этого, торцовочная пила и пистолет для гвоздей ускоряют сборку, но если вы только начинаете и у вас нет инструментов, вы можете легко использовать молоток и ручную пилу со стуслом.
Или, может быть, самое время инвестировать в циркулярную пилу или торцовочную пилу!
Для еще более простого настенного складного стола, который не требует инструментов для деревообработки, используйте пару мощных складных кронштейнов. (24″ / 61 см) и меньшую цельную дверь 24″ или 28″. Несколько шурупов в настенные шпильки и рабочий стол, и все готово!
Обратите внимание, что столешница (дверь) сама по себе будет весить не менее 20 фунтов, поэтому убедитесь, что ваше оборудование является высококачественным и сверхмощным с высокой максимальной нагрузкой (500+ фунтов / 250 кг), как этот набор, и ВСЕГДА крепятся непосредственно к стенным шпилькам.
Размеры и регулировки верстака
Готовый складной верстак, сделанный своими руками, имеет размеры 36 дюймов (Г) x 80 дюймов (Ш) x 41,25 дюйма (В) при сборке, как показано на рисунке.
Вы можете отрегулировать высоту до идеальной высоты стола стоя, а также отрегулировать ширину и глубину столешницы с помощью двери со сплошным сердечником 78 или 84 дюйма.
- Для изготовления этого большого настенного рабочего стола я использовал цельную деревянную плиту 36×80 без отверстий. Отрегулируйте длину 80-дюймовых пиломатериалов, если вместо этого вы используете дверь 78 или 84 дюйма, чтобы она соответствовала доступному пространству на стене.
- Высота складной поверхности верстака, как указано, составляет 41-1/4″. Для более высокого или более короткого верстака отрегулируйте длину ножек (и высоту, на которой установлена бухгалтерская доска).
- Стандартная высота барной стойки составляет 42″, но для моего (среднего) роста оптимальная высота стола для стоя должна быть немного короче, поэтому я сделал рабочую скамью немного ниже, но все же достаточно высокой, чтобы использовать стандартный барный стул.
- Убедитесь, что вы можете дотянуться до верхней части стола в сложенном состоянии, чтобы зафиксировать защелку.

Список материалов для складного верстака «Сделай сам»
Вот что вам нужно, чтобы построить собственный складной рабочий стол для гаража — только дверь с прочным сердечником, 4 доски, несколько петель и крепеж. Возможно, у вас уже есть некоторые из этих материалов в вашей куче металлолома.
Ищете выгодное предложение? Обязательно проверьте строительные материалы и оборудование в местном магазине Habitat For Humanity ReStore!
Пиломатериалы- 1 – 2x6x8
- 1 – 2x4x8
- 1 – 2x2x8
- 1 – 1x4x8
Включите JavaScript для просмотра контента
При выборе пиломатериалов обязательно следуйте этим советам и рекомендациям, чтобы выбрать самые лучшие и прямые доски. Это особенно важно, когда вы используете менее дорогие отрезы, например полоски для обшивки.
- 1 – Дверь со сплошным сердечником 36″x80″ (новая или восстановленная)
- # – Шурупы для дерева 2-1/2″ или 3″
- # – Шурупы для дерева 1-1/2″
- 10-12 – винты с потайным отверстием 2-1/2″
- 2 – маленькие петли 1-1/2″
- 3 – 3″ дверные петли
- 1 – защитная накладка 3-1/2″*
Примечание: Существует несколько способов крепления складного рабочего стола к стене. Вы можете использовать защелки с крючками и проушинами, пару кусков дерева, замок с бочкообразным болтом и т. д. Я выбрал прочную защелку, потому что она прочная, простая в установке и легко запирается.
Рекомендуемые инструменты- Торцовочная пила или циркулярная пила
- Дрель/винтоверт
- Воздушный компрессор
- Пистолет для финишных гвоздей (с финишными гвоздями 2-1/2″)
- Приспособление для карманных отверстий, подобное зажимному приспособлению Kreg
- Уровень
- Карандаш
- Зажимы (дополнительно)
Включите JavaScript для просмотра содержимого
Список вырезов
- Книга: вырез 1 – 2×6 @ 80″
- Опора верстака: вырез 1 – 2×4 @ 80″
- Опора для ног: вырез 1 – 2×4 @ 6″
- Опоры петель: вырез 2 – 2×4 @ 2″
- Ноги: вырез 2 – 2×2 @ 38″
- Юбка для стола: вырез 1 – 1×4 @ 80″
Подготовка деталей
В опоре для ног (2×4 @ 6 дюймов) просверлите 3 карманных отверстия вдоль одной длинной кромки.
Предварительно просверлите 3 отверстия в каждой опорной части петли (2×4 @ 2″) для последующего прикрепления.
В юбке стола (1×4 @ 80″) просверлите карманные отверстия на расстоянии 2″ от концов и примерно через каждые 8-10″ по длине доски.
Слегка отшлифуйте все детали. Вы можете запечатать дополнительным слоем полимера сейчас или после сборки.
Как собрать складной верстак своими руками
Шаг 1: Отметьте стену, гроссбух и настенные шпильки
Сначала найдите центр стены, где будет стоять ваш стол — убедитесь, что ваш 80-дюймовый стол подходит! Отметьте 40-дюймовый центр на стене.
Затем отметьте высоту гроссбуха 2×6, который будет составлять 41-1/4″ от пола. Если вы выше или ниже, вы можете отрегулировать эту высоту по своему усмотрению. Вам также нужно будет отрегулировать длину ножек складного верстака 2×2.
Отметьте центр (40″) вашего отрезка 2 × 6 @ 80″.
Найдите и отметьте места для шипов. В моем гараже стены не были окрашены, поэтому я мог легко увидеть, где были мои настенные шпильки.
Вы захотите найти и отметить, где находятся все ваши шипы, прежде чем повесить свою бухгалтерскую доску 2 × 6.
Шаг 2. Подвесьте верстак
Журнал будет удерживать весь складной верстак «сделай сам» к стене, поэтому убедитесь, что он выровнен и хорошо закреплен на стенных шпильках с помощью прочных крепежных деталей. Для этого шага вам может понадобиться дополнительная пара рук.
Совместите две центральные отметки на стене и гроссбухе 2 × 6. Поместите уровень на доску и убедитесь, что он находится на уровне 41″.
С помощью пистолета для финишных гвоздей забейте 3 или 4 гвоздя в шпильки, чтобы удерживать 2×6 на месте.
Завершите просверливанием 2 – 3 дюймовых шурупов через 2 × 6 в каждом месте настенной стойки.
Шаг 3: Повесьте опору верстака 2×4
Отмерьте от верха ведомой доски 1-3/4″. Это будет монтажная высота для вашей 80-дюймовой опоры верстака 2 × 4, и она позволит складному столу сидеть на 2 × 4 во время использования, добавляя устойчивости вашему столу.
Следующий шаг такой же, как повесить 2×6. Верхняя часть вашего 2×4 должна быть на отметке 1-3/4″. Убедитесь, что концы находятся на одном уровне с 2 × 6, выровняйте 2 × 4 и прикрепите 3-4 гвоздями, как и раньше.
Затем просверлите 2–3″ шурупа через 2×4 в 2×6 в каждом месте шпильки.
Шаг 4. Прикрепите опоры петель к столешнице
Теперь пришло время поработать над настоящим столом!
Если вы не обладаете сверхчеловеческой силой, вам понадобится кто-то, кто поможет вам переместить дверь с цельным сердечником в подходящее рабочее место. В моем случае это было на подъездной дорожке, потому что у меня не было рабочего стола! Козлы — отличное дополнение к вашей мастерской, чтобы поднять вашу работу над проектом, подобным этому.
Измерьте на нижней стороне двери 3-1/2″ от переднего угла с обеих сторон. Поместите опорные детали шарнира размером 2x4x2″ за отметкой. Вы также можете использовать зажимы для удержания на месте.
Привинтите 2 × 4 детали с помощью винтов 2-1/2″ или 3″.
(Я предварительно просверлил 3 отверстия в этих деталях, чтобы они не раскололись, когда я вкручивал в них шурупы.)
Для дополнительной безопасности вы также можете использовать столярный клей с шурупами.
(ножки еще не прикреплены, так что не обращайте внимания на мои на этой картинке!)Шаг 5: Прикрепите юбку стола
Прикрепите юбку стола к нижней стороне столешницы верстака на расстоянии 1-1/2″ от переднего края с помощью винтов с потайными отверстиями.
Для установки передней части юбки я сделал приспособление, чтобы ускорить процесс.
Я использовал оставшуюся часть 2×2 и прибил ее к части 1×4. Затем я поместил сторону 2 × 2 сверху двери и прижал к ней юбку, прикручивая юбку к нижней части стола с помощью карманных отверстий. Убедитесь, что концы выровнены, прежде чем начинать крепление винтами с потайными отверстиями!
Шаг 6: Прикрепите ножки и петли верстака
Прикрепите маленькие петли к ножкам 2x2x38. Отметьте центр на противоположной стороне ножки от шарнира на каждой ножке и отметьте центр на внешней стороне частей 2x4x2, прикрепленных к столу.
Совместите центральные отметки и прикрепите другую сторону шарнира к внутренней стороне блока 2x4x2.
Сначала я использовал винты, предназначенные для этого шага, но обнаружил, что они допускают слишком большое движение при опускании двери. Поэтому я заменил их на 2-дюймовые винты.
Шаг 7. Прикрепите опору для ног
Сложите ноги так, чтобы они располагались у нижней части стола, и прикрепите детали 2x4x6, используя карманные отверстия и 2-дюймовые винты, чтобы доска прилегала к ножкам стола. Сюда будут опираться ножки, когда стол сложен.
Шаг 8: Прикрепите стол к гроссбуху с помощью петель
Пришло время снова вызвать помощника по подъему тяжестей! Удерживая ножки на месте, перенесите рабочий стол к бухгалтерской доске, которую вы уже прикрепили к стене.
Это момент истины. Позвольте ножкам сложиться и поставьте заднюю часть стола на 2×4. Ваш стол должен твердо стоять на земле. Возможно, вам придется выпрямить ножки, чтобы они плотно прилегали к земле и к блокам 2×4 на нижней стороне стола.
Совет: если пол не совсем ровный и вам нужен более надежный контакт ноги с землей, используйте большую шайбу под ногой.
Теперь измерьте зазор 1/2″ между 2×6 и задней частью стола. Это позволит шарниру свободно двигаться.
Прикрепите петли к столу и 2×6. Я установил 2 петли в 4″ от края и одну в центре.
Проверьте эти петли с помощником! Сложите дверь и отметьте место, где верхний край встречается со стеной, на стенной стойке как можно ближе к центру стола. Снова опустите стол. Весело не правда ли!
Еще два штриха и готово!
Шаг 9: Установите защелку
Эта защелка и защелка являются ключом к складной части складного верстака. Поворотная часть засова идет со стороны рабочего стола, а шарнирная часть засова заходит на стену (в стенной шпильке для надежного крепления).
Измерьте, где эта стойка находится по отношению к концу вашего стола. Перенесите это измерение на переднюю часть стола и прикрепите скручивающуюся часть засова к столу.
Установите шарнирную часть засова на 1/2″ выше отмеченной линии и на таком же расстоянии от края стола.
Теперь вы сможете сложить стол и зафиксировать его на месте! Попробуйте!
Шаг 10. Нанесение финишного покрытия (дополнительно)
Последний шаг не является обязательным. Я нанесла слой полиуретана, чтобы защитить столешницу. Это полностью зависит от вас!
Надеюсь, вам понравится ваше новое ЧИСТОЕ рабочее место!
Следующим шагом для меня является уборка места в гараже, и я подумываю добавить перфорированную доску под скамейкой для хранения удлинителей и других низкопрофильных инструментов и материалов.
Дополнительные решения для экономии места в гараже
- Легкая лестница-стремянка для барного стула 2×4 для гаражной мастерской
- Быстрый и простой органайзер для электроинструментов своими руками для дрелей и многого другого
- Модернизация мастерской: мобильный пылесборник и стойка для зажимов
- 16 любимых инструментов для организации гаража
- 15 советов по организации гаража
Пиломатериал
- 1 2x6x8 1 пропил @ 80″
- 1 2x4x8 1 пропил @ 80″, 1 отрезок 6″, 2 пропила @ 2″
- 1 2x9x8 3 90 54 2 пропила 1 2x4x8 1 разрез @ 80″
Другие материалы и фурнитура
- 1 Дверь с цельным сердечником 36 x 80 дюймов, новая или восстановленная
- Шурупы # 2-1/2″ или 3″
- Шурупы # 1-1/2″
- # 2-1/2″ винты с отверстием для кармана
- 2 Маленькие петли 1-1/2″
- 3 Петли 3″
- 1 3 1/2″ накладки для тяжелых условий эксплуатации
Список вырезов
Ригель: вырез 1 – 2×009 @ 9006
Опора верстака: вырез 1 – 2×4 @ 80″
Опора для ног: вырез 1 – 2×4 @ 6″
Опора шарнира: вырез 2 – 2×903 @ 2″
8
Ножки: вырез 2 – 2×2 @ 38″
Юбка стола: вырез 1 – 1×4 @ 80″
Подготовка деталей
В опоре для ног (2×4 @ 6″) просверлите 3 карманных отверстия вдоль одного длинного края.

Предварительно просверлите 3 отверстия в каждой опорной части петли (2×4 @ 2″) для последующего крепления.
В части юбки стола (1×4 @ 80″) просверлите карманные отверстия на расстоянии 2″ от концов и примерно через каждые 8-10″ по длине доски.
Слегка отшлифуйте все детали. Вы можете запечатать дополнительным слоем полимера сейчас или после сборки.
Шаг 1: Отметьте стену, гроссбух и настенные шпильки
Сначала найдите центр стены, где будет стоять ваш стол — убедитесь, что ваш 80-дюймовый стол подходит! Отметьте 40-дюймовый центр на стене.
Затем отметьте высоту гроссбуха 2 × 6, которая будет составлять 41-1/4 дюйма от пола. Если вы выше или ниже, вы можете отрегулировать эту высоту по своему усмотрению. Вам также понадобится чтобы отрегулировать длину ножек складного верстака 2×2.
Отметьте центр (40″) отрезка 2×6 на 80″.
Найдите и отметьте места для шипов.
Найдите и отметьте, где находятся все ваши настенные шпильки, прежде чем повесить бухгалтерскую доску 2 × 6.
Шаг 2. Повесьте гроссбух
Для этого шага вам может понадобиться дополнительная пара рук.
Совместите две центральные метки со стены и гроссбуха 2×6. Поместите уровень на доску и убедитесь, что он находится на уровне 41″.
С помощью пистолета для финишных гвоздей вбейте 3 или 4 гвоздя в шпильки, чтобы удерживать 2×6 на месте.
В завершение просверлите шурупы 2–3 дюйма в 2×6 в каждом месте стойки. Убедитесь, что длины шурупа достаточно, чтобы пройти через 2×6 и гипсокартон, чтобы надежно прикрепиться к стойке стены сзади.
Шаг 3: Повесьте опору верстака 2×4
Отмерьте от верхней части ведомой доски 1-3/4″. и позволит складному столу сидеть на 2 × 4 во время использования, добавляя устойчивости вашему столу.
Следующий шаг такой же, как повесить 2×6.
Верхняя часть вашего 2×4 должна быть на отметке 1-3/4″. Убедитесь, что концы находятся на одном уровне с 2 × 6, выровняйте 2 × 4 и прикрепите 3-4 гвоздями, как и раньше.Затем просверлите 2–3″ винта через 2×4 в 2×6 в каждом месте шпильки.
Шаг 4: Прикрепите опоры петель к столешнице
Измерьте на нижней стороне двери 3-1/2″ от переднего угла с обеих сторон. Поместите опорные детали шарнира размером 2x4x2″ за отметкой.
Привинтите 2 × 4 детали с помощью винтов 2-1/2″ или 3″. (Я предварительно просверлил 3 отверстия в этих деталях, чтобы они не раскололись, когда я вкручивал в них винты.)
Шаг 5. Прикрепите юбку стола
Прикрепите юбку стола к нижней части столешницы верстака. на расстоянии 1-1/2″ от переднего края, используя винты с потайными отверстиями.
Для установки передней части юбки я сделал приспособление, чтобы ускорить процесс. Я использовал оставшуюся часть 2×2 и прибил ее к части 1×4.
Затем я поместил сторону 2 × 2 сверху двери и прижал к ней юбку, прикручивая юбку к нижней части стола с помощью карманных отверстий. Убедитесь, что ваши концы находятся на одном уровне, прежде чем начать крепление винтами с потайными отверстиями!
Шаг 6: Прикрепите ножки и петли верстака
Прикрепите маленькие петли к ножкам 2x2x38. Отметьте центр на противоположной стороне ножки от шарнира на каждой ножке и отметьте центр на внешней стороне частей 2x4x2, прикрепленных к столу.
Совместите центральные метки и прикрепите другую сторону шарнира к внутренней стороне блока 2x4x2. Сначала я использовал винты, предназначенные для этого шага, но обнаружил, что они допускают слишком много движений при опускании двери. Поэтому я заменил их на 2-дюймовые винты.
Шаг 7. Прикрепите опору для ног
Сложите ноги так, чтобы они прилегали к нижней стороне стола, и прикрепите детали 2x4x6 с помощью карманных отверстий и 2-дюймовых винтов, чтобы доска прилегала к ножкам стола.
Сюда будут опираться ножки, когда стол сложен.
Шаг 8: Прикрепите стол к гроссбуху с помощью петель
Пришло время снова вызвать помощника по подъему тяжестей! Удерживая ножки на месте, перенесите рабочий стол к бухгалтерской доске, которую вы уже прикрепили к стене.
Сложите ножки и поставьте заднюю часть стола на 2×4. Ваш стол должен твердо стоять на земле. Возможно, вам придется выпрямить ножки, чтобы они плотно прилегали к земле и к блокам 2×4 на нижней стороне стола.
Теперь измерьте зазор 1/2 дюйма между 2×6 и задней частью стола. Это позволит петле свободно двигаться.
Прикрепите петли к столу и 2×6. I установлены 2 петли в 4″ от края и одна в центре.
Проверьте эти петли с помощником! Сложите дверь и отметьте место, где верхний край встречается со стеной, на стойке как можно ближе к центру стола. Снова опустите стол.
Шаг 9: Установите защелку
Эта защелка и защелка являются ключом к складной части складного верстака.
Скручивающаяся часть засова выходит на боковую часть рабочего стола, а откидная часть засова – на стену (в шпильку для надежного крепления). Измерьте, где эта стойка находится по отношению к концу вашего стола. Перенесите это измерение на переднюю часть стола и прикрепите скручивающуюся часть засова к столу.
Установите шарнирную часть засова на 1/2″ выше отмеченной линии и на таком же расстоянии от конца стола.
Теперь вы сможете сложить стол и зафиксировать его на месте!
Шаг 10. Нанесите финишное покрытие (дополнительно)
Примечания/корректировки
Для изготовления этого большого настенного рабочего стола я использовал цельную деревянную дверь размером 36×80 без отверстий. Отрегулируйте длину 80-дюймовых пиломатериалов, если вместо этого вы используете дверь 78 или 84 дюйма, чтобы она соответствовала доступному пространству на стене.





Даже в достаточно суровые морозы автомобиль не должен слишком промерзать.

винтов 2 1/2″

Найдите и отметьте, где находятся все ваши настенные шпильки, прежде чем повесить бухгалтерскую доску 2 × 6.
Верхняя часть вашего 2×4 должна быть на отметке 1-3/4″. Убедитесь, что концы находятся на одном уровне с 2 × 6, выровняйте 2 × 4 и прикрепите 3-4 гвоздями, как и раньше.
Затем я поместил сторону 2 × 2 сверху двери и прижал к ней юбку, прикручивая юбку к нижней части стола с помощью карманных отверстий. Убедитесь, что ваши концы находятся на одном уровне, прежде чем начать крепление винтами с потайными отверстиями!
Сюда будут опираться ножки, когда стол сложен.
Скручивающаяся часть засова выходит на боковую часть рабочего стола, а откидная часть засова – на стену (в шпильку для надежного крепления).