Печь на масле своими руками чертежи из газового баллона: подробная инструкция по сборке и эксплуатации.
alexxlab | 19.06.1995 | 0 | Разное
Печка на отработке (Схемы + Чертежи). Как можно сделать своими руками | 5energy
Эта статья о том, как можно сделать простую печку на отработке из подручных материалов для отопления небольшого помещения.
Так как подключение газового отопления стоит достаточно много, а отапливать помещения электричеством невозможно (в связи с экономичной нецелесообразностью или невозможностью из-за устарелых линий электроснабжения) автономные котлы до сих пор не теряют своей актуальности. В качестве топлива используют как твердое топливо (дрова, уголь, торфяные брикеты и т.д.) так и жидкое (солярка, бензин, мазут, отработанное масло).
Преимущества жидкого топлива перед твердым
Несмотря на распространенность котлов и печек на твердом топливе, в последнее время котлы на жидком топливе занимают лидирующие позиции. В современном мире время – самый ценный ресурс.
Жидкое топливо позволяет значительно экономить время. В первую очередь, связано это с тем, что жидкое топливо гораздо лучше сгорает. Оно имеет более однородную форму. Намного проще, с помощью электроники настроить автоматическую подачу жидкого топлива.
Твердое топливо также имеет свои преимущества и недостатки. Преимущества: универсальность (можно засыпать все что горит), простота конструкции и эксплуатации.
Недостатки: трудозатратность(требует постоянного участия: вычистка камеры сгорания от остатков угля, постоянное ручное подбрасывания дров/угля и т.д.), дороговизна топлива (цены на дрова, уголь и т.д. достаточно высокие. Если вы не имеете доступ к дешевому твердому топливу, такие печки для вас не выгодны).
Как сделать печку / котел на отработке своими руками?
Мы рассмотрим самый простую печку / котел на отработанном масле из старого газового баллона без электроники. Если вы обладаете навыками работы с металлом, сваркой и в своем арсенале имеете соответствующие инструменты, то сделать это Вам будет под силу.
Нам понадобится:
- Баллон на 50 литров, ресивер от автомобиля или просто труба не менее 220 мм в диаметре.
Это будет камера сгорания. Рекомендуемая толщина металла камеры сгорания от 6 мм. Если найдете металл 10мм, то это будет еще лучше.
- Труба для дымохода и горелки в диаметре от 90 мм до 100 мм
- Металл 2-3 мм для дна и крышки.
- Металл для чаши. можно из нержавейки, чугуна или толстый металл.
- Стальные уголки, куски металла, труб и т.д.
Что касается инструментов, нам понадобятся: болгарка, сварочный аппарат, дрель и другие инструменты из стандартного набора, который есть практически у всех.
Это пример того, что можно сделать самостоятельно для гаража или небольшого помещения:
Дымоход должен быть длинным, обеспечивая хорошую тягу. Высота дымохода – от 4,5 м (индивидуально в каждом случае).
Подача воздуха и масла – сверху.
Примерный алгоритм действий:
1) Если используете газовые баллоны: сливаем конденсат, наполняем баллон водой. Срезаем верхнюю часть. Сливаем воду.
2) Привариваем 3 ножки примерно высотой 20-25 см от пола из уголков.
3) С помощью дрели высверливаем отверстия для патрубка дымоотвода в верхней части котла.
4) Далее приваривается специальный вертикальный участок, 3-4 метра, от которого уже идет труба с выходом на улицу.
5) В нижней части необходимо вырезать стенку для дверки (лючка), которая позволит осуществлять чистку. Или же это можно делать через верх, снимая крышку.
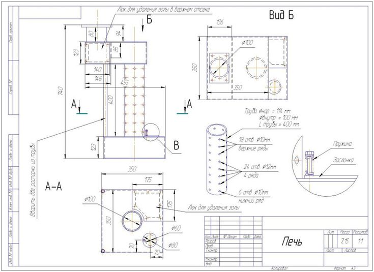
6) После этого, необходимо чашу для испарения отработанного масла. Обычно ее делают из трубы, размещают на дне баллона, высота 70-90 мм (диаметр 140 мм).
7) Вырезаем из метала крышку, в нем делаем два отверстия, одно в центре 100 х 100 мм. Другое немного сбоку крышки, диаметр 60 мм примерно.
8) К крышке привариваем трубу, в ней высверливаем много небольших отверстий для подачи воздуха, вокруг этой трубы и будет происходить образование паров отработанного масла. Такая печь может работать как на естественной тяге, так и на принудительной, адаптировав вентилятор наддува в камеру сгорания. При принудительном наддуве, топливо будет сгорать лучше, оставляя серый пескообразный шлак.
Вот еще одна схема печи на отработке, кардинально отличающаяся от предыдущей.
9) В нижний резервуар для топлива заливаем отработку. Проводим небольшие испытания на улице. Если все нормально работает, ничего не сочится и т.д., печь можно устанавливать на свое место с подключением дымохода. О том, какой дымоход выбрать, как установить и т.д. читайте в нашем блоге.
К сожалению, без электроники невозможно сделать полноценную печь на отработке, которая сможет работать автономно без вмешательства. Заказать котел с автоматической подачей топлива можете у нас, в разделе “Котлы на отработке”.
Бесплатная консультация!
Если появились у вас вопросы – задавайте их здесь в комментариях – будем отвечать.
полезные советы, чертежи и рекомендации
Печка, работающая на отработанном масле – отличный и экономный вариант обогрева, к тому же подобные печи на отработке вы сможете изготовить своими руками, используя ряд материалов и руководствуясь чертежами.
- Что такое отработка: преимущества и недостатки
- Классификация печей на отработанном масле
- Как сделать печь на отработке из газового баллона
- Печь на отработке из стальных листов
- Противопожарные меры
Что такое отработка: преимущества и недостатки
Отработанное масло, или же просто отработка, широко используется для работы печи. Такое масло можно найти в больших количествах на всевозможных автомобильных предприятиях, СТО и мастерских. Для печей используется индустриальное, трансмиссионное и моторное масло.
Утилизировать отработку можно, но зачем, когда можно сэкономить хорошие деньги, изготовив из нее печку своими руками. Отработанное масло дает теплоотдачу, которая равняется 15 кВт работы электрообогревателя. Расход при этом составляет от 05 и до 2 литров в час.
Печи на отработке работают по принципу прямого нагревания воздуха, с их помощью можно отапливать такие небольшие помещения, как мастерские, теплицы, гаражи и так далее.
Печи на отработки имеют следующие преимущества:
- отсутствие гари и копоти при сгорании масла;
- печь проста в работе;
- высокий уровень пожаробезопасности, поскольку горят лишь пары топлива, а не оно само.
Но стоит учитывать и недостатки топлива:
- отработанное масло содержит массу примесей, влаги, спиртов и многого другого, что, при использовании в котлах может засорить фильтры и форсунки, и даже спровоцировать взрыв в блоге подогрева;
- масло перед использованием в котле нужно фильтровать и очищать, что невозможно сделать самостоятельно;
- невозможность держать на холоде отработку, оно должно храниться либо в отапливаемом помещении, либо в закрытом виде в бочке на глубине, соответствующей уровню замерзания земли.
Классификация печей на отработанном масле
Наиболее распространенными в быту видами печей на отработанном масле являются печки на пиролизе и турбогорелки.
Особенность пиролизных печей состоит в том, что отработанное топливо нагревается от кислородного недостатка в камере, где разлагается масло. Остатки разложения во второй камере сгорают вместе с кислородом, что провоцирует выделение тепла в большом количестве. Температура пиролиза может быть изменена, если прибавить или убавить уровень подачи воздуха в камеру. Но подобную печь нужно будет постоянно чистить, а еще в ней невозможно поддерживать ту или иную температуру в автоматическом режиме.
Турбогорелки работают как двигатели для дизелей: масло попадает в камеру и начинается горение паров. Однако подобные печи очень привередливые в отношении качества топлива также их нужно каждый раз перед использованием подогревать.
По конструкции печи на отработке делятся на такие:
- агрегаты, изготовленные на основе газового баллона;
- агрегаты с поддувом;
- агрегаты с капельной подачей масла.
Как сделать печь на отработке из газового баллона
Печка на основе газовых, кислородных либо же углеродных баллонов – наиболее проста для изготовления своими руками. У баллонов толстые стены, что сделает печку долгоиграющей, кроме того, печка на газовом баллоне сможет отопить помещение до 90 квадратных метров. Ее не нужно будет оснащать системой принудительной подачи воздуха, масло же поступит в нее само. Обратите внимание, что высота контура должна соответствовать источнику горения, размещенного внутри. Чтобы изготовить такую модель своими руками вам понадобится следующий перечень материалов:
- Дымоходные трубы с диаметров внутри 10 см и стенками толщиной по 2 мм и длиной по 4 мм.
- Емкость для топлива на 8–15 литров.
- Трубки для горелок.
- Электроды и аппарат для сварки.
- Напильник.
- Болгарка.
- Уголки из стали.
- Дрель и сверла.
- Рулетка с уровнем.
Теперь, когда все готово, можно приступать к работе. Бесшовный баллон емкостью 50 л и толщиной стенок по 1,5 см, но не более. Важно, чтобы температура кипения была порядка 300 градусов, а температура в камере выше 600 соответственно.
Чтобы избавиться от запаха одоранта, характерного для газового баллона, нужно вынести его на улицу и слить конденсат, а потом несколько раз ополоснуть водой. После этого его заливают водой до горла, ставят вертикально на поддон либо же закапывают в землю так, чтобы он оставался в вертикальном положении.
Верхнюю часть баллона срезают болгаркой, при первом надрезе вода начинает стекать. Когда она стечет, продолжайте делать надрезы. Итак, нижнюю часть баллона мы применим в качестве камеры, а срезанную верхнюю часть – в качестве крышки для печи.
Внизу к баллону привариваем печные «ножки» в виде стальных двадцатисантиметровых уголков. А вверху делаем отверстие, которое послужит для протяжения вытяжной трубы.
Также нам потребуется дымоходная тонкостенная труба, она будет работать как вытяжка. Ее диаметр должен быть порядка 10 см, а длина – от 4 м. Вставьте трубу в отверстие и приварите, соблюдая вертикальное положение. Кроме этого отверстия, нужно сделать еще одно, прикрыв пластиной, чтобы можно было регулировать процесс подачи воздуха.
Затем сверлим небольшое отверстие через 10 см от предыдущего с диаметром до 3 мм, а через несколько миллиметров – еще такое же. Всего подобных отверстий в итоге должно быть 10. Также здесь же, на трубе просверлите еще одно отверстие под новую трубу с диаметром до 6 см и длиной от 2 до 4 м. Ее нужно вставить параллельно уровню пола и приварить.
Отрезанную часть баллона мы будем использовать в качестве емкости для заливания переработанного масла. Помните, что нельзя заливать неочищенное масло, чтобы не спровоцировать пожар или взрыв.
В верхней съемной части баллона при желании можно присоединить так называемый поднос для подогрева готовых блюд. Чтобы его сделать, возьмите стальной лист, вырежьте из него квадрат или прямоугольник и приварите к крышке или же на трубе, которая находится параллельно уровню пола.

Чтобы очистить печку после работы, снимите верхнюю часть и постучите крышкой по баллону, чтобы сажа оттуда выпала.
Печь на отработке из стальных листов
Чертежи и сборка конструкции печи из стальных листов.
А сейчас мы узнаем, как сделать печку на отработке из стальных листов. Подобная печь более компакта и не очень много весит. Кроме того, она подключается к отоплению, морозоустойчива также на ней можно готовить еду.
Перечень необходимых инструментов такой:
- Стальные листы по 4 и 6 мм толщиной каждый.
- Болгарка.
- Напильник.
- Инструмент для сварки и электроды.
- Труба для дымохода.
- Чертежи.
- Стальные уголки под печные ножки.
- Рулетка с уровнем.
- Молоток.
- Труба для горелки (стальная, медная или жестяная).
Подготовьте чертеж конструкции и прорисуйте все детали. Сделайте детали для резервуара из стального листа, имеющего толщину 4 мм. Затем из листа толщиной 6 мм изготавливается топливник и крышка. Листы нужно разложить на полу и на них делаются разметки. Потом их вырезают на детали болгаркой и сваривают швы.
Вырежьте полоску 115 мм в ширину из листа толщиной 4 мм, сложите на станке полосу и приварите ее сварочным аппаратом – у вас должна выйти труба для масла. Из этого же листа вырезаем круг с диаметром 34,5 см, который будет служить крышкой для масляной емкости. Привариваем ее к трубе, а к ней – уголки со всех сторон.
Берем лист толщиной 6 мм и вырезаем 6-сантиметровую полоску, сворачиваем ее кольцом с диаметром 35,2 см. Вырезаем круг с диаметром 35,2 см из этого же листа, посередине просверливаем дыру диаметром 10 см для дымоходной трубы. С правой стороны через 4 см сверлим еще одно отверстие на 5 см для вливания масла. Теперь кольцо и круг свариваем и получаем бак для заливания масла.
Чтобы сделать нижнюю часть емкости, берем лист на 6 мм и вырезаем из него круг с диаметром на 35,2 см, потом отступите пару сантиметров от его края и вырежьте отверстие на 10 см. Оно будет служить для прохождения патрубка, в который будет вставлена труба для дымохода. Сам патрубок делается из трубы диаметром 10 см, от которой отрезается отрезок размером в 13 сантиметров.
Вырежьте прямоугольник из 6-миллиметрового листа, ширина его должна составлять 7 см, а длина – 33 соответственно, он будет служить в качестве перегородки. Ее приваривают к кругу диаметром 35,2. А во второе отверстие вставляют готовый патрубок.
На трубе для горелки просверливают 48 отверстий на 9 мм, они должны располагаться друг от друга на расстоянии 6 см.
Готовую трубу вставьте в крышку для масляного контейнера, проверьте уровнем, чтобы она стояла ровно. Погрешности следует удалить болгаркой или напильником. Части должны плотно входить друг в друга, приваривать их не нужно.
Вставьте выхлопной патрубок на 16 см в отверстие бака, куда будет заливаться масло.
Соедините верхнюю часть резервуара с нижней не приваривая их, а просто соедините плотно деталями. Чтобы максимально их закрепить, сделайте кольцо для уплотнения диаметром 35,4 см и наденьте на резервуар.
Приварите заливочный бак к трубе, где сделано много отверстий. С обратной стороны к этой же трубе приварите скрепленную конструкцию резервуара. Чтобы контейнер для заливки масла легко открывался и закрывался, его оснащают круглой пластинкой.
Сделайте дымоход из 4-метровой трубы. Дымоход нельзя проводить горизонтально, внутри помещения он может проходить под наклоном, но на улице – только вертикально.
Противопожарные меры
Какой бы вы ни сделали вашу печь на отработке, следует придерживаться следующих правил по безопасности:
- не оставляйте печку на сквозняке;
- не ставьте печь рядом с предметами, способными легко воспламеняться;
- соблюдайте дистанцию на полметра вокруг печи, чтобы на нем ничего не находилось;
- в масло не должна попадать вода;
- регулярно проверяйте дымоход на герметичность;
- используйте только техническое очищенное масло;
- не оставляйте работающий агрегат без присмотра.
Если вы будете соблюдать эти правила, то ваша печь прослужит максимально долго и позволит вам сэкономить значительные средства на отоплении.
Печь из газового баллона своими руками. Газовая баллонная печь: Пошаговая инструкция
С наступлением холодов многие задумываются о том, как лучше утеплить свой дом и сделать его более комфортным для зимовки. Помимо основных теплоизоляционных работ со стенами, крышей и полом, можно создать дополнительный источник тепла – печь из газового баллона. Практика конструирования таких устройств насчитывает десятилетия, и за это время было придумано множество схем и способов создания функциональных печей из простых газовых баллонов. В этой статье мы расскажем о самых популярных из них.
Характеристики баллонов
Самодельные печи из газовых баллонов значительно превосходят по экономичности и экономичности аналогичные конструкции от других подружек. Это объясняется формой баллона – она идеально подходит для процессов пиролиза. Качество печи зависит от ее топки. Как показывает практика, идеальной формой для дымохода является сфера. Плюс в ней должно быть два отверстия: для входа кислорода и вывода газов и дыма в дымоход. Продолговатый газовый баллон позволяет реализовать все необходимые требования к идеальной топке без существенных деформаций.
Типы печей
Старый цилиндр, годами бесцельно пылившийся где-нибудь в сарае, может послужить основой для создания печи для дома. И самое замечательное, что она не ограничивается каким-то разнообразием – вы можете выбрать дизайн на свой вкус. Каждый тип газовой баллонной печи отличается степенью сложности сборки, экономичностью и принципом работы. Итак, самый популярный вариант — это всем знакомый буржуйк. О его преимуществах, недостатках и способе монтажа мы поговорим чуть позже.
Печь также популярна, так как стоимость отработанного масла очень мала и позволяет экономить на топливе. Можно соорудить газовую плиту из газового баллона, но новичкам лучше начать с чего-нибудь попроще, так как подобная конструкция очень сложна и требует больших временных и трудозатрат. Ниже на фото показана схема такой ракетной печи и как она выглядит в интерьере.
Главное правило при сборке печи из газового баллона, своими руками, сведения финансовых вложений к минимуму. Также важно обеспечить удобство и безопасность конструкции конструкции, особенно если она находится в жилом доме.
Выбор воздушного шарика
Для изготовления печки подойдет не любой газовый баллон. В первую очередь он должен быть цельнометаллическим, так как взрывобезопасные композитные изделия не отличаются термостойкостью. Вместительность баллона тоже играет значение – из маленькой 5-литровой фляги вряд ли получится эффективная печка. Такой цилиндр можно применить разве что для создания бака для топливно-топливной печи. Из баллонов 12 л и 27 л печи мощностью 2-3 кВт и 5-7 кВт соответственно.
Но, самый оптимальный вариант для сооружения качественной печи, способной высушить небольшой частный дом, это 50-литровый баллон диаметром 30 см и высотой 85 см. Его объема вполне достаточно для практически безотходного сжигания любого вида топлива. К тому же такие баллоны до сих пор пользуются спросом и хороший товар можно приобрести совсем недорого. Описываемые ниже технологии печей предусматривают использование таких цилиндров.
Полезный совет: Если вам достался баллон с клапаном, то лучше выбирать его для плиты, а не изделие с клапаном. С помощью вентиля удобно регулировать мощность горения топки, подавая больше или меньше кислорода в топочный отсек.
Также стоит упомянуть баллоны для технических газов на 40 литров. Для создания печей их лучше не использовать, так как они слишком узкие, тяжелые и громоздкие. Из небольших промблелонов на 2-10 литров некоторые делают походные печки, но они годятся только в том случае, если вы едете на машине – слишком много весят изделия.
Буржуй из баллона
Как мы уже говорили, самой популярной печкой, которую можно собрать из баллона, считается буржуйка. Для его изготовления подойдет небольшой баллон на 12 литров или 27 литров, но можно взять емкость и на 50 литров, если загородный дом отапливается. Буржуй подойдет для обогрева небольшого помещения, например, загородного дома, гаража или мастерской. Если вы построили новый загородный дом, но не успели провести отопительные коммуникации в холода, буржуйка станет вашим спасением на зиму.
Устройство буржуйки из баллона довольно простое: топка с решеткой, топка и дымоход. Ставить можно в любом помещении, из которого дымоход удобно выводить наружу. Конструкция отличается компактностью и безопасностью. Она очень быстро прогревается и сразу отдает тепло в помещение. Некоторые прикрепляются к верхней части варочной поверхности плиты для приготовления пищи или теплой воды.
Однако есть у буржуйки один серьезный минус – какими бы толстыми ни были стенки духовки, со временем она прогорает. И чем чаще пользоваться печкой, тем быстрее это произойдет. По этой причине такую печь лучше делать в качестве временного или запасного источника тепла, например, в аварийных ситуациях или для дополнительного обогрева.
На видео – печь из газового баллона для отопления гаража:
В видео материале выше продемонстрирована печь из двух газовых баллонов, но для создания эффектной конструкции достаточно и одного. Кроме баллона потребуются стальные уголки (ножки топки), металлическая решетка для колосника, листовая сталь толщиной 3-4 мм, дверца и дымоходная труба нужной длины. Из инструментов вам понадобится болгарка, сварочный аппарат, ножницы по металлу, молоток, отвертка и перфоратор с набором сверла по металлу.
Как сделать печь из газового баллона:
- Открутите обод краном, расположенным в верхней части цилиндра. Если не получается открутить, его можно аккуратно выбить молотком.
- Наполните баллон холодной водой или погрузите его до середины ямы в землю.
- Вверху сделать отверстие размером с дверцу будущей печи.
- С помощью сварочного аппарата изготовьте из стальных уголков рамку для двери и прикрепите ее к цилиндру.
- Прикрепите дверь к раме в том положении, в котором она будет зафиксирована, и сделайте отверстия под болты в углах. Прикрутите дверь к раме.
- Там, где дно печки, вырезать отверстие под колосник и заварить сетку.
- На вырезанном проеме с 3-х сторон прикрепите боковины из листовой стали. В итоге у вас должна получиться коробка без верха. Привариваем его к нижней части баллона, повернув открытой стороной к двери — через этот проход вы будете удалять пепел. Важно, чтобы коробка была полностью герметичной.
- Установите металлическую заслонку для регулирования подачи кислорода в печь.
- К низу баллона приварите ножки из стальных уголков.
- На стене, расположенной с противоположной от двери стороны, вырежьте отверстие в соответствии с диаметром трубы дымохода.
Оборудуйте коленвал, тогда тепло из печки будет уходить не так быстро.
Печь на отработке
Духовку на отработке из газового баллона сделать немного сложнее, чем буржуйку, но эта работа вполне посильна даже для начинающих самоделок. Если все сделать по инструкции, то получится очень эффективное устройство, способное быстро обогреть гараж, небольшой загородный дом или кабинет.
Принцип работы печи на работе следующий: вы заливаете масло в топливный отсек и поджигаете его, через воздушный дроссель дозируется воздух, что влияет на интенсивность горения. Теплота сгорания кислорода здесь в основном расходуется на испарение — пары устремляются вверх и попадают в реактор с перфорированными стенками. Через отверстия проникает свежий воздух, который только усиливает сгорание паров масла, в результате чего температура растет, и начинается процесс пиролиза. Горит не только масло, но и пар, поэтому отходов такой печи практически нет. В верхней части пиролизного отсека газы практически сгорают и выходят в топочную камеру, состоящую из двух отсеков: в первом дожигаются пиролизные испарения, которые поддерживают температуру во втором за счет высокой температуры и отсутствия кислорода оксиды азота газов разлагаются на кислород и азот. Кислород поддерживает уцелевшие газы, а температура печи стабильно поддерживается примерно на один уровень.
Выход в трубу дымохода из камеры дожигания должен располагаться как можно дальше от перегородки – около 20 см. КПД такой печи составляет около 80%, что является одним из самых высоких показателей среди самодельных отопительных приборов.
Как правило, баллоны на 50 л используют для изготовления печей на отработанном масле. Их нарезают в пропорции 2:1 – меньшая часть идет на создание резервуара, а большая на торопливую камеру. В результате получается печь мощностью до 30 кВт. Однако из-за специфики топлива следует принять все возможные меры безопасности – сжигание воркаута может наделать много бед. Не устанавливайте такую печь в жилом помещении и прекратите доступ к ней детей и домашних животных.
Печь длительного горения
Для изготовления печи длительного горения из газового баллона понадобится большая емкость на 50 литров. В качестве топлива можно использовать любые изделия из дерева, начиная от опилок, заканчивая старой мебелью и ветками садовых деревьев. Так как топливо в таких печах сгорает тонким слоем у самой поверхности, их еще называют длинными хирургическими печами. Процесс пиролиза может осуществляться двумя способами: в отдельной небольшой камере с последующим сжиганием газов в камере дожигания (печи раздельного сжигания), либо газы будут переходить в просторное отапливаемое буферное отделение, где они будут храниться (комбинированные печи ). Для обеспечения максимально возможной эффективности и в первом, и во втором случае воздух, поступающий в зону пиролиза, рекомендуется подогревать.
Пучок бубонии
Печь длительного горения с забавным названием связки очень популярна в кругах дачников и дачников. В этой конструкции процесс пиролиза сосредоточен под особым гнетом. На изображении ниже показана схема такой печи, исходя из которой можно понять принцип ее устройства и работы.
КПД бубфони может составлять 85% и более, при этом продолжительность теплоотдачи от одной топливной загрузки составляет 18-24 часа. Если необходимо постоянно следить за обычной буржуйкой, иначе рискуете замерзнуть, то связка может посещаться только раз в сутки, что очень удобно. Влажность топлива для топки должна быть не более 12%. В процессе горения можно подбросить еще дров или щепок, но крайне рекомендуется останавливать печь до полного сгорания топлива.
Важно: Для изготовления буфонной печи необходимо использовать баллон на 50 л диаметром 30 см, так как он обеспечивает минимально допустимый объем.
Такая печь очень экономична, несмотря на то, что ее можно сделать в домашних условиях:
- Легче всего собрать большую печь из баллонов. Срежьте его сверху и разведите, чтобы прикрыть фиксаторы или упоры, чтобы они удерживали его на корпусе.
- Для изготовления поршня вам понадобится металлическая “блинка” диаметром чуть меньше внутреннего диаметра цилиндра. Главное, чтобы поршень с «поддоном» свободно перемещался внутри топки, а пиролизные газы могли выходить через боковые зазоры между ним и внутренней стенкой камеры.
- Кроме блина для поршня нужна трубка, по которой кислород будет идти в нижний отсек, и несколько отрезков стального уголка (металлических полос) – их нужно принять на заднюю часть “блина”.
- В центре блина сделать отверстие, диаметр которого соответствует диаметру трубы.
- К нижней стороне “блинчика” привариваем несколько кусочков стального уголка – они не дадут поршню приблизиться к дровам и перекроют подачу кислорода. Расположите металлические «распорки» так, чтобы они шли от внутреннего проема наружу (прямые или изогнутые). По каналам, поступившим на «блин», будет идти воздух, поэтому необходимо, чтобы он попал в отверстие, иначе топливо не сгорит.
- Трубка, по которой пойдет воздух, должна быть длиннее корпуса баллона на 7-10 см. Вставьте трубу в центральное отверстие «блинчика» и герметично разведите ее. Для большей прочности можно добавить ребра жесткости. Иначе через некоторое время «блин» начнет деформироваться от запредельно высоких температур.
- В центре крышки сделать отверстие диаметром чуть больше поршневой трубы – через него будет проходить поршень. Герметичность здесь не нужна — нужно, чтобы внутрь поступал кислород.
- В корпусе цилиндра чуть ниже крышки сделать отверстие для трубы дымохода. Чтобы обеспечить стабильно хорошую тягу, используйте трубу диаметром не менее 10 см. Горизонтальный участок дымохода должен достигать примерно 40 см, затем устанавливают колено и направляют трубу вверх. Общая высота должна быть не менее 2,5 м (чем выше, тем лучше).
Полезный совет: Лучше всего сделать дымоходную сборку, и начинать собирать ее не с печи, а с обратной стороны – с крыши (тогда ее будет удобнее разбирать для обслуживания и ремонта). Многие предпочитают устанавливать стекло с ревизиями, чтобы не разбирать дымоход для удаления сажи.
Духовка газовая баллонная: фото
Напоследок предлагаем вам посмотреть чертежи печей из газовых баллонов и посмотреть, какие конструкции можно построить своими руками.
Так выглядит “Банч” внутри:
Духовка из газового баллона своими руками +чертеж | Своими руками
В прошлом году по просьбе друга сделал мусоросжигатель из газового баллона. В итоге конструкция пригодилась не только в весенне-осенний сезон, зимой нашла место в столярной мастерской товарища.
Собран необходимый материал. Я купил старый баллон с пропаном на 50 литров. Листы толщиной 2,4 и 5 мм и отрезки от водопроводной трубы были куплены в магазине отходов на местном машиностроительном заводе. Для дымоудаления подошёл старый садовый столб с внутренним d 100 мм. Подготовил чертеж конструкции с учетом размеров баллона (см. чертеж)
Остатки газа из баллона продул. Он открутил бронзовый кран. Я налил полную бутылку воды с помощью ведра и воронки. Заткнул отверстие деревянной пробкой и положил цилиндр на бок, оставил на двое суток.
По чертежу разметил проемы на стене и вырезал окна размером 170×180 внизу и 130×170 мм вверху — дверцы топочного отсека и для подвода продуктов горения (мусора и веток) .
ВСЕ НЕОБХОДИМОЕ ДЛЯ ЭТОЙ СТАТЬИ ЗДЕСЬ >>>
Затем отпилил нижний опорный обод, прорезал окна для поддувала размером 200х 150 мм. а сверху для дымохода – 120×80 мм. Я зачистил заусеницы всех порезов и отшлифовал старую банку с краской.
От водопроводной трубы я отрезал четыре куска длиной 250 мм и приварил их к днищу баллона – это ножки.
Нижняя большая часть использовалась как дверь для верхнего окна. Просверлил в нем четыре отверстия d 10 мм и приварил кусок от этого отверстия на электрозаклепки с внутренней стороны дуги, тем самым загерметизировав дверь. Затем прикрутил защелку болтом М 6 через заранее просверленное отверстие, а поверх нее приварил ограничительную скобу. Я прикрепил его к цилиндру в районе проема и приварил две петли и крючок-защелку (фото 1).
Ш Нижнее запальное окно окантовано квадратным стержнем сечением 12×12 мм. Проварил по периметру, зачистил швы. Врезал дверцу размером 180х170х5 мм и так же, как и верхнюю, закрепил в районе проема (фото 2). вареный. Затем приварил готовую деталь к днищу. Сразу согнул и приварил ковш с ручкой (фото 2)
Поверх цилиндра из листового металла толщиной 4 мм приварил надстройку дымохода (дожигателя) размерами 280х210х120 мм (длина, ширина, высота). В передней стойке вырезал окошко для чистки. Выпилил металлическую пластину 101 х 9Размер 0 х 4 мм – это крышка. Закрепил двумя приваренными кронштейнами и продольным стальным клином (фото 4)
В верхней площадке форсажной камеры разметил и вырезал отверстие d 100 мм под дымовую трубу и приварил поверх него кусок труба (столб) необходимой длины.
Сварил решетку из толстой арматуры (фото 5) для этого предварительно сделал шаблон из алюминиевой проволоки.
Читайте также: Автоклав из бутылки своими руками
ГАЗОБАЛЛОННАЯ ПЕЧЬ СВОИМИ РУКАМИ – ЧЕРТЕЖ
Ссылка по теме: Отличный мангал из газового баллона своими руками – мастер класс и фото
Плита “Буржуйка” за один день (DR)
Смотреть это видео на YouTube
Плита Буржуйка в Гараж с хорошей теплоотдачей от газового баллона! Печка из баллона своими руками.