Пт 6: Пневмотрамбовка ПТ-6 в Москве купить по низкой цене
alexxlab | 14.12.1990 | 0 | Разное
ПТ 6 и-1 по стандарту: Серия НК 029
увеличить изображение
Стандарт изготовления изделия: Серия НК 029
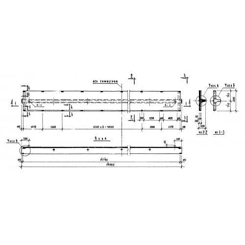
Плиты перекрытия ПТ 6 и-1 – это унифицированные железобетонные изделия для промышленного строительства, которые входят в состав Серии НК 029 – типового проекта по выпуску сборных железобетонных тоннелей. Об основном предназначении этих прямоугольных конструкций догадаться не сложно: они нужны для перекрытия лотковых элементов подземных коммуникационных тоннелей и обеспечения надежной герметизации внутреннего пространства. За счет своей большой массы плиты не сдвигаются и не нарушают целостности конструкции ни при каких обстоятельствах. Они служат отличной защитой подземных коммуникаций и легко выдерживают довольно внушительные нагрузки.
1. Варианты маркировки
Маркирование ЖБ строительных материалов должно осуществляться в полном соответствии с действующими стандартами.
1. ПТ 6;
2. ПТ 6-1;
3. ПТ 6д;
6. ПТ 6д-1;
7. ПТ 6д-2;
8. ПТ 6д-3.
2. Основная сфера применения
Подобные изделия чаще всего применяются для обустройства теплотрасс и прочих инженерных коммуникаций в обычных климатических условиях и неагрессивной среде. Сборные ЖБ тоннели не боятся постоянного контакта с влагой, не подвержены коррозийным процессам и обладают стойкостью к температурным перепадам, а потому спрос на плиты перекрытия ПТ 6 и-1, как на одни из основных элементов подобных установок, довольно велик. Задействование этих прочных изделий гарантирует высокую надежность и долговечность подземных каналов.
3.
Обозначения маркировки изделия
Маркировка элементов перекрытия сборных железобетонных тоннелей изображается в виде нескольких последовательных групп буквенно-цифровых обозначений. Она указывает на типоразмер изделия и его основные конструктивные особенности. Так по марке ПТ 6 и-1 про материал можно сказать следующее:
1. ПТ – плита перекрытия тоннеля;
2. 6 – порядковый номер элемента;
3. 1 – тип закладного изделия.
Такие обозначения при маркировании продукции перед отправкой на склад дополняются и более полными данными о размерных параметрах:
Длина = 4000;
Ширина = 1190
Высота = 400;
Вес = 4750;
Объем бетона = 1,9;
Геометрический объем = 1,904.
Данные наносятся на боковые грани каждого десятого элемента выпущенной партии с помощью стойкой черной краски. Они способствуют упрощению процесса сортировки продукции и несут в себе всю необходимую информацию о конкретном типоразмере.
4. Изготовление и основные характеристики
Изготовление элементов ЖБ тоннелей осуществляется с учетом технических условий, прописанных в типовом проекте Серия Серии НК 029. Плиты ПТ 6 и-1 делаются из тяжелого бетона марки прочности на сжатие М300, который по готовности сможет выдерживать вплоть до 300 циклов замораживания и оттаивания. Для армирования берутся сварные сетки и каркасы из стали классов А-І, А-ІІ и А-ІІІ. При этом рабочие участки арматуры должны покрываться бетонным раствором не менее чем на 20 мм. Выпуск подобных изделий допускается лишь на специализированных заводах железобетонных конструкций для промышленного строительства, где налажено современное, оборудованное всем необходимым производство.
По стандарту изготовление плит происходит в специальных стальных опалубочных формах и делится на несколько стадий. Алгоритм включает закрепление в проектном положении металлического каркаса, подачу бетонной смеси, формовку с возможным применением вибрационного оборудования, термическую обработку в автоклавах до достижения бетоном отпускной прочности, которая составляет 70% от проектной марки, и распалубку. После распалубки подъем изделий на высоту может осуществляться исключительно за подъемные петли. Плиты маркируются с помощью особых трафаретов с официально утвержденным шрифтом и направляются на приемку, в ходе которой каждая партия подвергается тщательным проверкам на предмет недопустимых отклонений.
5. Транспортировка и хранение
Перевозка ЖБ плит перекрытия тоннелей ПТ 6 и-1 осуществляется в положении «на ребро» с обязательным применением деревянных подкладок и прокладок в местах расположения подъемных петель.
Такие же инвентарные материалы используются и при хранении. Кроме того во время транспортировки важным условием сохранности всех стройматериалов является тщательная фиксация плит с помощью специальных крепежных систем.
На стадии складирования в пределах подготовленных крытых площадок изделия укладывают штабелями высотой не более чем в 2,5 метров. При этом важно обеспечить хорошую просматриваемость маркировочных обозначений и свободный доступ соответствующей подъемной техники к каждому отдельному штабелю изделий. Сброс плит, навал материалов, их перемещение волоком и прочее халатное отношение на складских площадках не допускается.
Уважаемые покупатели! Сайт носит информационный характер. Указанные на сайте информация не являются публичной офертой (ст.435 ГК РФ). Стоимость и наличие товара просьба уточнять в офисе продаж или по телефону 8 (800) 500-22-52
ПОДОГРЕВАТЕЛЬ ПУТЬЕВОЙ АВТОМАТИЗИРОВАННЫЙ ПТ-6,3/200
ПОДОГРЕВАТЕЛЬ ПУТЬЕВОЙ АВТОМАТИЗИРОВАННЫЙ ПТ-6,3/200
Сертификат соответствия N№
РОСС.
RU.АВ67.Н02260 Разрешение Ростехнадзора РРС РРС 41-00170
Рис.39 Общий вид ПТ-6,3/200.
ОБЩИЕ
СВЕДЕНИЯ
Путевой подогреватель ПТ-6,3/200 предназначен для нагрева нефтепродуктов при транспортировке, а также нефтяных эмульсий,
газа на установках подготовки нефти.
ИСПОЛНЕНИЯ ИЗДЕЛИЯ
ПТ-6,3/200 изготавливается в одном
исполнении.
ОСОБЕННОСТИ «ПТ-6,3/200»
Условия эксплуатации
должны соответствовать исполнению У по ГОСТ 15150-69. Категория размещения 1 по ГОСТ15150-69.
ОСНОВНЫЕ ТЕхНИЧЕСКИЕ ДАННЫЕ
| N№ п/п | Параметр | Значение |
| 1 | Номинальная тепловая мощность, МВт (Гкал/ч) | 4,2(3,7) |
| 2 |
Производительность по нагревательному продукту, кг/с (т/ч):
– нефтяная эмульсия, обводненностью до 100% масс |
27,2(98) |
| 3 | Температура продукта, °С: |
+5
+90 |
|
-
при входе в подогреватель ,не менее;
- нагрева продукта; |
||
– стенок калорифера, максимально допустимая.
|
+250 | |
| 4 | КПД, % | 65 |
| 5 |
Давление в
продуктовом змеевике, МПа (кгс/см2):
- рабочее, не более; - расчетное; - пробное гидравлическое. |
6,3(63)
6,3(63) 8,2(82) |
| 6 | Перепад давления в змеевике, МПа (кгс/см2), не более | 0,2-0,3(2,0-3,0) |
| 7 |
Параметры нагреваемой среды:
- наименование; - содержание сероводорода (Н S), % об. , не
более;
|
нефть, нефтяная эмульсия, пластовая вода
0,01 |
| – двуокись углерода (С02), мол, не более. | 1,0 | |
| 8 | Параметры топлива: | природный газ или по- |
| – наименование; | путный нефтяной газ | |
| -содержание сероводорода (Н2S), масс. доля, % не более; | 0,002 | |
| -теплотворная способность МДж/нм3; | ||
| -номинальное давление перед горелками, МПа (кгс/см2), | 0,07…0,15(0,7…1,5) | |
| в пределах; | ||
| -расход топливного газа, нм3/ч не более | 644 | |
| 9 | Масса, кг не более: |
22000
18800 |
|
-
общая;
- подогреватель; |
||
– блок регулирования.
|
1500 | |
| 10 | Срок службы, лет, не менее | 10 |
| 11 |
Показатели надежности:
– средний ресурс до капитального ремонта, год, не менее. |
3,5 |
Рис.40 Габаритный чертеж ПП-0,63/200.
Патрон ПТ, патрон ПТ 1,1, патрон ПТ-10, ПТ-6, патрон высоковольтный, Патрон ПТ, ПТ1.1, ПТ 1.2, патрон Пт 1.3
оптовая продажа высоковольтного оборудования
Главная / Предохранители ПКТ, ПКН,ППН, ПН, патроны ПТ, ПН / Патроны ПТ, ПН, ПЭ, ПЭН / Патрон ПТ
1-6(10)-(2;3,2;5;8;10;16;20;31,5А)-ХХХ У3 предназначены для защиты силовых трансформаторов, воздушных и кабельных линий на номинальное напряжение 6(10) кВ.- Патроны (предохранители) ПТ 1.2-6(10)-(31,5;40;50А)-ХХХ У3 предназначены для защиты силовых трансформаторов, воздушных и кабельных линий на номинальное напряжение 6(10) кВ.

- Патроны (предохранители) ПТ 1.2-6(10)-(31,5;40;50А)-ХХХ У3 с кварцевым наполнителем являются токоограничивающими. Отключение тока короткого замыкания в предохранителях с кварцевым песком обеспечивается за счет интенсивной деионизации дуги, возникающей на месте пролегания плавкой вставки, в узких щелях между песчинками наполнителя.
Патрон ПТ Патрон ПТ 1.3
- Патроны (предохранители) ПТ 1.3-10-(80;100;160А)-ХХ У3 предназначены для защиты силовых трансформаторов, воздушных и кабельных линий на номинальное напряжение 10 кВ.
- Патроны (предохранители) ПТ 1.3-10-(80;100;160А)-ХХ У3с кварцевым наполнителем являются токоограничивающими. Отключение тока короткого замыкания в предохранителях с кварцевым песком обеспечивается за счет интенсивной деионизации дуги, возникающей на месте пролегания плавкой вставки, в узких щелях между песчинками наполнителя.
- Не допускается применение патронов ПТ и высоковольтных предохранителей ПКТ в сетях с напряжением, меньшим номинального напряжения предохранителя.
Маркировка патрона наносится на середину фарфоровой трубки. Маркировка выполняется аппликационными этикетками. - Патроны (предохранители) ПТ 1.3-10-(80;100;160А)-ХХ У3 являются заменяемым элементом высоковольтных предохранителей ПКТ 103-10-(80;100;160А)-ХХ У3.
- Патрон ПТ 1.1-10-10-12,5 У3 Патрон ПТ 1.2-10-31,5-31,5 У3
- Патрон ПТ 1.1-10-10-31,5 У3 Патрон ПТ 1.2-10-40-31,5 У3
- Патрон ПТ 1.1-10-16-12,5 У3 Патрон ПТ 1.2-10-50-12,5 У3
- Патрон ПТ 1.1-10-16-31,5 У3 Патрон ПТ 1.2-6-31,5-31,5 У3
- Патрон ПТ 1.1-10-2-12,5 У3 Патрон ПТ 1.2-6-40-31,5 У3
- Патрон ПТ 1.
1-10-2-31,5 У3 Патрон ПТ 1.2-6-50-31,5 У3 - Патрон ПТ 1.1-10-2-20 У1 Патрон ПТ 1.2-6-80-20 У3
- Патрон ПТ 1.1-10-20-12,5 У3
- Патрон ПТ 1.1-10-20-20 У1 Патрон ПТ 1.3-10-50-31,5 У3
- Патрон ПТ 1.1-10-20-31,5 У3 Патрон ПТ 1.3-10-80-20 У3
- Патрон ПТ 1.1-10-3,2-12,5 У3 Патрон ПТ 1.3-10-100-12,5 У3
- Патрон ПТ 1.1-10-3,2-20 У1 Патрон ПТ 1.3-6-80-31,5 У3
- Патрон ПТ 1.1-10-3,2-31,5 У3 Патрон ПТ 1.3-6-100-31,5 У3
- Патрон ПТ 1.1-10-31,5-12,5 У1 Патрон ПТ 1.
3-6-160-20 У3 - Патрон ПТ 1.1-10-31,5-12,5 У3
- Патрон ПТ 1.1-10-31,5-31,5 У3
- Патрон ПТ 1.1-10-5-12,5 У3
- Патрон ПТ 1.1-10-5-20 У1
- Патрон ПТ 1.1-10-5-31,5 У3
- Патрон ПТ 1.1-10-8-12,5 У3
- Патрон ПТ 1.1-10-8-20 У1
- Патрон ПТ 1.1-10-8-31,5 У3
- Патрон ПТ 1.1-6-2-20 У3
- Патрон ПТ 1.1-6-2-40 У1
- Патрон ПТ 1.1-6-2-40 У3
- Патрон ПТ 1.1-6-3,2-20 У3
- Патрон ПТ 1.1-6-3,2-40 У1
- Патрон ПТ 1.1-6-3,2-40 У3
- Патрон ПТ 1.1-6-5-20 У3
- Патрон ПТ 1.1-6-5-40 У1
- Патрон ПТ 1.1-6-5-40 У3
- Патрон ПТ 1.1-6-8-20 У3
- Патрон ПТ 1.1-6-8-40 У1
- Патрон ПТ 1.
1-6-8-40 У3 - Патрон ПТ 1.1-6-10-20 У3
- Патрон ПТ 1.1-6-10-40 У1
- Патрон ПТ 1.1-6-10-40 У3
- Патрон ПТ 1.1-6-16-20 У3
- Патрон ПТ 1.1-6-16-40 У1
- Патрон ПТ 1.1-6-16-40 У3
- Патрон ПТ 1.1-6-20-20 У3
- Патрон ПТ 1.1-6-20-40 У1
- Патрон ПТ 1.1-6-20-40 У3
- Патрон ПТ 1.1-6-31,5-20 У1
- Патрон ПТ 1.1-6-31,5-20 У3
Адрес пункта выдачи продукции
13.02.20
Уважаемые партнёры! Пункт выдачи укомплектованных заказов находится по адресу: Московская область, Подольский район, д. Лаговское, ул. Родниковая, д. 2.
Схема проезда
подробнее
Источники Бесперебойного питания ИПБФ по самым выгодным ценам! Гарантия качества!
26.01.18
Рады сообщить, что ООО “ТД “Альфа-Энергетика” теперь является официальным дилером ООО “Промформат” – изготовителя Источников бесперебойного питания серии ИПБФ.
Самые выгодные цены и гарантия качества! Ждем Ваши заказы!
подробнее
Уважаемые коллеги! Наш склад переезжает!
23.08.17
Уважаемые коллеги! С 1.09.17 наш склад по отгрузке продукции начинает работать на новом месте, наш новый адрес: Московская область, Подольский район, д. Лаговское (Рынок строительных материалов ООО “Лаговское”)
подробнее
Новый номер телефона
02.11.16
+7(967)204-45-62
подробнее
Изолятор ИПУ 10-630/7,5 УХЛ1 всегда в наличии
15.08.16
подробнее
или оставьте заявку, и мы вам перезвоним!
Оставить заявку
Сайт создан в megagroup.ru
Сравнить текущие процентные ставки по ипотечным кредитам
Приведенные ниже ставки по ипотечным кредитам являются примерными ставками, основанными на допущениях. Воспользуйтесь нашим калькулятором, чтобы увидеть ориентировочные ставки по ипотечным кредитам и кредитам рефинансирования на сегодняшний день в зависимости от ваших конкретных потребностей.
Индивидуальные ставки покупки
Предварительная квалификация ипотечного кредита проверяет вашу кредитную историю на предмет достоверной оценки ставки и не влияет на ваш кредит.
Пройти предварительную квалификацию
Индивидуальные ставки рефинансирования
Воспользуйтесь нашим ипотечным калькулятором, чтобы быстро проверить ставки в зависимости от вашего местоположения, стоимости имущества и суммы кредита.
Расчет ставок
- Стоимость покупки
- Ставки рефинансирования
| Продукт | Процентная ставка | Апрель |
|---|---|---|
| Крупные кредиты Суммы, превышающие соответствующие кредитные лимиты | ||
| ARM Jumbo на 7/6 месяцев | 5,375% | 5,473% |
| 15-летний Jumbo с фиксированной процентной ставкой | 5,375% | 5,561% |
| 30-летний Jumbo с фиксированной процентной ставкой | 5,625% | 5,736% |
| Соответствующие и государственные займы | ||
| ARM 7/6 месяцев | 6. 000% | 5,881% |
| 30-летняя фиксированная ставка VA | 5,875% | 6,226% |
| 30-летняя фиксированная ставка | 6,625% | 6,835% |
Тарифы, условия и сборы по состоянию на 11.10.2022, 10:15 по восточному летнему времени и могут быть изменены без предварительного уведомления.
| Продукт | Процентная ставка | Апрель |
|---|---|---|
| Крупные кредиты Суммы, превышающие соответствующие кредитные лимиты | ||
| ARM Jumbo на 7/6 месяцев | 5,625% | 5,597% |
| 15-летний Jumbo с фиксированной процентной ставкой | 5,625% | 5,788% |
| 30-летний Jumbo с фиксированной процентной ставкой | 5,875% | 5,961% |
| Соответствующие и государственные займы | ||
| ARM 7/6 месяцев | 6,250% | 5,991% |
| 30-летняя фиксированная ставка | 6,875% | 7,077% |
Тарифы, условия и сборы по состоянию на 11.
10.2022, 10:15 по восточному летнему времени и могут быть изменены без предварительного уведомления.
Выберите продукт, чтобы просмотреть важную информацию о раскрытии информации, платежах, допущениях и годовой процентной ставке, поскольку некоторые ставки могут включать до 1,0 дисконтного пункта в качестве авансовых платежей для заемщиков. Тарифы на рефинансирование предполагают отсутствие обналичивания. Обратите внимание, что мы предлагаем дополнительные варианты ипотечного кредита, которые здесь не показаны.
Показать больше продуктов
Ищете процентные ставки по ипотечным кредитам, не указанным выше? Проверить ставки по ипотеке
Свяжитесь с нами
Позвоните по телефону 1-866-290-0462 или найдите консультанта по ипотеке в вашем районе
Остались вопросы?
- Завершить сохраненное приложение
- Проверить статус заявки
- Войдите, чтобы управлять своей учетной записью
- Часто задаваемые вопросы об ипотеке
- Помощь клиентам и способы оплаты
- Озвучить беспокойство
Новые кредиты
1-866-290-0462
Пн – Пт: 7:00 – 20:00
Сб: 8:00 – 18:00
Центральное время
Существующие кредиты
1-800-357-6675
Пн – Пт: 6:00 – 22:00
Сб: 8:00 – 14:00
Центральное время
Marque 9 para recibi atención en español.
Кредитор, предоставляющий равные жилищные условия
Wells Fargo Home Mortgage является подразделением Wells Fargo Bank, N.A.
LRC-0721
Madison Square Garden | Официальный сайт
AE6742D5-9178-4116-B35D-B2DE743A4F37Создано с помощью Sketchtool.Muse
Will Of The People Tour
Doors at 5:30pm
See Details
blink-182
2023 Tour
Doors at 6:30pm
See Details
Billy Joel – In Concert
Doors at 7:00pm
See Details
Depeche Mode
Memento Mori Tour
Doors at 6:30pm
See Details
Reba McEntire
Doors at 6:00pm
See Details
Jimmy V Классика
Illinois vs.
Texas / Iowa vs. Duke
Doors at 6:00pm
See Details
Z100’s Jingle Ball
ДВЕРЫ В 18:00
См. Подробная информация
Phish
ДВЕРЫ В 18:30
СМ. 27 ноября 2022 г. / 1:00
ДВЕРЫ В 19:00
См. Подробности
Muse
Will of the People Tour
DOORS по адресу 5:30.309
9000
9000
3039000
3039000
.
303.
39.303.
3
3930439000
303
3139.303.
3.
3.
393303
.30393303
3330 / 10:30 9000 9000 9000 9000.
303
303 9000.9000
3330.
Blink -182
2023 Tour
Двери в 18:30
. См.
Билл Жиль -Желл – в концерте
8.
Подробнее
Depeche Mode
Memento Mori Tour
Doors at 6:30pm
See Details
Reba McEntire
ДВЕРЫ В 18:00
См. Подробности
Джимми против классика
Иллинойс против Техаса / Айова против Duke

, не
более;
000%