Станок чертеж: Чертежи станков на 2d-3d.ru
alexxlab | 25.08.2021 | 0 | Разное
Как сделать токарный станок своими руками чертежи. Токарный станок своими руками
Сейчас можно купить токарный станок по дереву и по металлу на любой вкус (и за любую стоимость). Конечно же, добавляют к станку множество самых современных и дополнительных функций (которые чаще всего и не нужны).
Не спорю токарный станок – весьма нужная и полезная вещь для мастерской, но в 90% случаев он не стоит потраченных на него денег.
Мы же хотим вам помочь сэкономить ваши финансы. Ради чего покупать модель с множеством ненужных функций, если можно сделать самостоятельно стандартную простую модель?
Токарный станок по дереву материалыСама конструкция состоит из следующих частей (смотрите на рисунке)
- Станина – является основой для станка, обычно изготовляется металлической и представляет собой несколько соединенных балок.
- Поперечная П — образная балка.
- Электрический двигатель – служит источником питания для правильного движения округ своей оси (подходят однофазные моторы мощностью от 200-400 Ватт).

- Токарный патрон.
- Опора для задней бабки.
- Элемент что крутится.
- Упор для заготовки или инструмента.
- Упор для подручника.
- Направляющие балки.
- Угол, стойка или опора для задней бабки.
- Обойма.
- Металлическая пластина под упор.
- Деталь поперечной направляющей.
- Винтики для закрепления.
- Опорная ось.
Прежде всего, можно не покупать новый мотор, а взять б-у, он обойдется вам значительно дешевле.
Элементы закрепляют на основе (№1 по рис.) 2 п -образных балки сваркой соединяют с двумя поперечными (№2 по рис.).
Направляющие сверху дополнительно фиксируются двумя углами (№10 по рис.), которые закрепляют к основной поверхности.
Двигатель (№3 по рис.) прикрепляют боковой части и закрепляют переднюю бабку.
В качестве основы задней бабки стоит использовать крутящийся центр (купить деталь от покупного варианта) закрепить его к опоре (№5 по рис.
) и приварить на площадке (№12 по рис.)
Упор (№5) изготавливается из уголка и прикрепляется к опоре (№8) которая сама по себе закрепляется на обойме. Упор и обойму нанизывают на опорную ось (№15) а после этого приваривают к направляющим балкам.
Тот же упор (№5) и крутящийся элемент (№6) закрепляют на металлических пластинах (№12) которые содержат специальные движущиеся обоймы (№11).
Учтите что упор и задняя бабка – это подвижные элементы, которые должны без проблем двигаться по направляющим (№9).
Чтоб подвижные элементы были хорошо прикреплены к обоймам, в обоймах делаются предварительные отверстия (№14) и малейшая неточность снижает качество работы всего аппарата.
Сама сварка может повлечь за собой деформацию материала – сначала все материалы скрепляются точечной сваркой, а затем уже проводят полную работу.
Для изготовления такого инструмента вам будет необходимо:
- Лист металла;
- П — образные балки из металла;
- Полоски из стали;
- Углы из стали;
- Электрический двигатель;
- Передаточный механизм;
- Несколько гаек и болтов для скрепления;
- Болгарка;
Отдельно стоит сказать о двигателе, он не обязательно должен быть новый, можно ограничиться и старым или б-у, его мощность должна составлять 2 кВт с количеством оборотов минуту в пределах 2000.
Чем массивнее заготовки – тем мощнее должен быть двигатель, если вы хотите сделать компактный станок с малой мощностью – подойдет мотор даже от стиралки или электродрели.
Что касается передаточного механизма – можно отыскать через интернет или купить у знакомых старую коробку передач и снять с коробки муфту. Таким образом, вы получите механизм, который создает вашему станку несколько скоростей. А если установить дополнительный шкив – то можно улучшить количество оборотов.
Токарный станок по металлу пошаговая инструкцияУстановку стоит начать с использования стальных углов и п-образной балки, из них (1 уголок и 1 балка) нужно сварить раму для основы.
Для этого нужно расклинить основу. Направляющие собирают из квадратных труб и стальных полосок.
Помимо этого их металлического листа делают коробку для кулачного патрона, после установки в ней помещаются подшипники с регулировкой.
Заднюю бабку нужно сварить из уголка и толстой пластинки, опорой которой будут служить направляющие.
Бабка должна легко, свободно перемещаться по направляющим. К верхней части бабки приварите гайки (чтоб фиксировать поддерживающий центр).
Заточенный конус следует вмонтировать в балку, при этом соблюдая максимальную точность. Такой конус можно изготовить из любого болт, который подходить вам размером.
После этого собирают всю конструкцию, проверяют на легкость вращения шпинделя, регулирую передний и задний центры для создания ровной оси.
Теперь вы знаете, что построить станок для дерева или металла вполне реально и требует от вас немногих знаний и усилий, и при этом он вам обойдется значительно дешевле (да и в случае поломки вы сможете самостоятельно его починить).
В целом же изготовление такого станка вам поможет даже если вы и не часто занимаетесь такими работами, единственно такие механизма весьма громоздкие и нужно место для их хранения (или можно сделать «карманные» модели).
Цилиндрические изделия из дерева распространены во всех сферах быта. Это могут быть рукояти для инструмента, балясины под перилами, детали для мебели, ручки дверей. На строительных рынках и в хозяйственных магазинах можно подобрать любую заготовку, которые, как правило, делаются на токарном станке по дереву.
Если вы покупаете комплект для лестницы на второй этаж вашего частного дома – сумма может стать неподъемной даже для владельца загородной недвижимости.
Все знают, что дерево – самый простой в обработке материал. С помощью топора, ножовки, и наждачной бумаги, можно сделать все что угодно. За исключением деталей круглой формы.
Именно такие практичные украшения сделанные из дерева продаются дороже всего. Чтобы производить их в мало-мальски большом количестве – нужен настольный токарный станок. И снова встает вопрос стоимости (готовые станки в ассортименте представлены в магазинах).
Глядя на фото, любой домашний мастер задумается, а что сложного в конструкции? И будет абсолютно прав.
Деревообрабатывающий станок можно и нужно сделать своими руками.
Конструкция его достаточно простая. Заготовка закрепляется вдоль оси вращения. К одному из упоров подается крутящий момент. Изделие вращается, и его можно обрабатывать любым режущим или шлифующим инструментом.
Пример простой конструкции токарного станка по дереву, который можно собрать своими руками за пару дней — видео
Короткие заготовки малого диаметра, вообще можно зажимать одним концом в патроне ручной дрели (предварительно ее закрепив), и обтачивать до нужной формы.
Кстати о дрели – с ее помощью легко изготовить токарный станок малой мощности.
Еще в старых журналах «Моделист конструктор» предлагались простейшие приспособления для обработки дерева.
Делаем токарный станок по дереву своими руками
Конструкция примитивная, но абсолютно работоспособная. И главное – эскиз дает представление о том, как именно должен выглядеть станок.
Составные части:
Представляет собой горизонтальную рамную конструкцию, на которой расположены все остальные части агрегата.
Важно! Токарный станок обязательно должен быть цельным. Поэтому нельзя крепить составные части обособлено. При работе, аппарат вибрирует (из-за асимметрии заготовки). Все части должны работать синхронно, иначе деталь может войти в резонанс и вырваться из крепежа.
Самодельный токарный станок по дереву с надежной станиной. Подробное руководство как сделать своими руками.
Рама может устанавливаться на верстак (настольный вариант), или иметь собственные опоры (ножки). Важным элементом станины является продольная направляющая, рельса (или иное приспособление), для перемещения отдельных элементов (задняя бабка вдоль, подручник поперек оси вращения).
Подручник токарного станка
Является опорой для режущего инструмента. Эта конструкция наиболее критична с точки зрения безопасности оператора. Если заготовка выскочит из фиксаторов – она просто упадет. А если по причине ненадежного подручника из рук вырвется резец – травмы не избежать.
Изготавливая кронштейн для подручника, желательно предусмотреть не только горизонтальное перемещение, но и поворот вокруг оси крепления.
Привод станка
Собственно, двигатель, вращающий заготовку. Самый простой вариант – прямая передача. Непосредственно на вал мотора закрепляется шпиндель, никаких передаточных устройств не предусмотрено.
Преимущество – простота конструкции , не нужно искать дополнительных деталей. К тому же, размещенный непосредственно на станине двигатель, экономит место. Недостатки тоже имеются.
Во-первых , – невозможно регулировать скорость (разве только вы нашли мотор с регулятором). Во-вторых, – на вал будет постоянно действовать нагрузка. Помимо вредных вибраций, подшипники будут изнашиваться неравномерно. Электродвигатели оснащены обычными, т.н. беговыми подшипниками. Они не рассчитаны на продольную нагрузку.
Однако при обработке заготовок среднего и крупного размера, нагрузки на вал могут быть критичными.
- Да, это создает дополнительные сложности в конструкции, но они перекрываются преимуществами: во-первых, двигатель работает в щадящем режиме, во-вторых, с помощью набора шкивов можно регулировать скорость без потери мощности.
- Шпиндель токарного станка по дереву. Фиксирующий элемент, передающий крутящий момент на заготовку. Может быть простым упором с зубьями от проскальзывания, или иметь фиксирующие винтовые зажимы (конструкция называется планшайба).
Важно! Любой регулятор скорости (читай питающего напряжения) приводит к потерям крутящего момента мотора.
Устройство, поддерживающее заготовку на воображаемой оси вращения. Это может быть простой болт с конусной заточкой (правда в точке крепления будет высокое трение). Или же упор может быть выполнен на опорном подшипнике.
Тогда и заготовка целее будет, и вращение более плавное.
При желании можно найти готовую деталь от списанного токарного станка.
Важно! Центры передней и задней бабки, а также плоскость подручника должны совпадать. В противном случае обработка заготовки будет невозможна.
В идеале, самодельный токарный станок по дереву должен выглядеть так:
Только надо обеспечить устойчивость, поскольку боковое усилие при обработке может быть высоким, и станок можно опрокинуть.
Простой токарный станок по дереву из швеллера и электродвиггателя, смотрите подробности в этом видео.
Если вы будете работать на верстаке – станина прикручивается к столешнице. Тогда ножки не понадобятся. Можно вообще обойтись без рамы – тогда все элементы раз и навсегда прикручиваются к верстаку, и более не перемещаются.
Возможно они покажутся излишними, но лучше как говорится «перебдеть».
- Заготовка должна вращаться на вас (и соответственно на режущую кромку инструмента)
- Перед началом обработки резцами, необходимо придать заготовке форму, приближенную к цилиндрической (разумеется, по возможности).
Для этого можно использовать рашпиль, прижимая его плоскостью - Резец безопаснее прижимать к заготовке не под прямым, а под острым углом. Затем, по мере придания формы, не отрывая от поверхности, выводить угол на прямой
- Не надо стараться получить гладкую поверхность с помощью режущего инструмента. Шлифовка производится наждачной бумагой. Только не забудьте одеть рукавицы – от трения можно обжечь руки
- Твердые породы дерева обрабатываются на высоких скоростях, мягкие на малых оборотах.
Станок начального уровня
Если рассмотренная конструкция слишком сложная – вернемся к варианту, как сделать токарный станок по дереву из дрели или шуруповерта. Разумеется, элементы художественной отделки на таком оборудовании не выточить. Но изготовить ручку для напильника или сковороды – запросто.
Достаточно закрепить дрель на ровном основании с помощью зажима для шейки инструмента. А напротив, строго соосно, установить заднюю бабку.
Разумеется, незачем стремиться к эстетическому идеалу, как на эскизе.
Главное – чтобы конструкция получилась прочной и удобной.
И наконец, главный бонус – дрелью по прежнему можно будет пользоваться по назначению.
Делаем своими руками токарный станок по дереву из дрели, советы и рекомендации по изготовлению.
Многие домашние мастера задумываются о том, как самостоятельно изготовить токарный станок по металлу. Такое желание объясняется тем, что при помощи подобного устройства, стоить которое будет совсем недорого, можно эффективно выполнять большой перечень токарных операций, придавая заготовкам из металла требуемые размеры и форму. Казалось бы, намного легче приобрести простейший настольный станок и использовать его в своей мастерской, но учитывая немалую стоимость такого оборудования, есть смысл потратить время на то, чтобы сделать его своими руками.
Самодельный токарный станок — это вполне реально
Использование токарного станка
Токарный станок, который одним из первых появился в линейке оборудования для обработки деталей из разных материалов, в том числе из металла, позволяет изготавливать изделия различных форм и размеров.
С помощью такого агрегата можно выполнять обточку наружных и внутренних поверхностей заготовки, высверливать отверстия и растачивать их до требуемого размера, нарезать наружную или внутреннюю резьбу, выполнять накатку с целью придания поверхности изделия желаемого рельефа.
Серийный токарный станок по металлу – это габаритное устройство, управлять которым не так просто, а его стоимость очень сложно назвать доступной. Использовать такой агрегат в качестве настольного оборудования нелегко, поэтому есть смысл сделать самостоятельно. Используя такой мини-станок, можно оперативно производить обточку заготовок, выполненных не только из металла, но также из пластика и древесины.
На таком оборудовании обрабатываются детали, имеющие круглое сечение: оси, рукоятки инструментов, колеса, конструктивные элементы мебели и изделия любого другого назначения. В подобных устройствах заготовка располагается в горизонтальной плоскости, при этом ей придается вращение, а излишки материала снимает резец, надежно зафиксированный в суппорте станка.
Несмотря на простоту своей конструкции, такой агрегат требует четкой согласованности движений всех рабочих органов, чтобы обработка выполнялась с предельной точностью и наилучшим качеством исполнения.
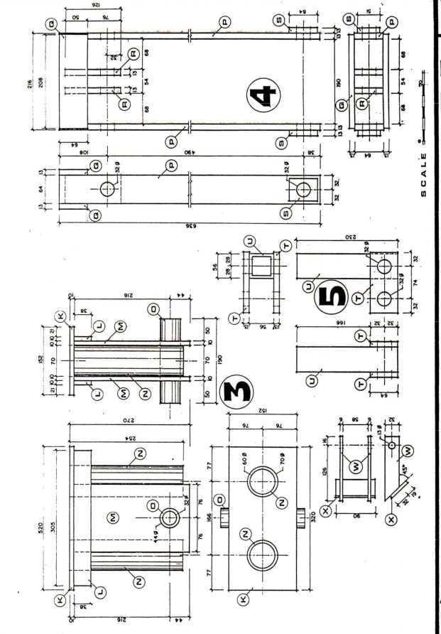
Пример самодельного токарного станка с чертежами
Рассмотрим подробнее один из рабочих вариантов собранного собственными силами токарного станка, довольно высокое качество которого по праву заслуживает самого пристального внимания. Автор данной самоделки даже не поскупился на чертежи, по которым данное устройство и было успешно изготовлено.
Конечно, далеко не всем требуется настолько основательный подход к делу, зачастую для домашних нужд строятся более простые конструкции, но в качестве донора для хороших идей данный станок подходит как нельзя лучше.
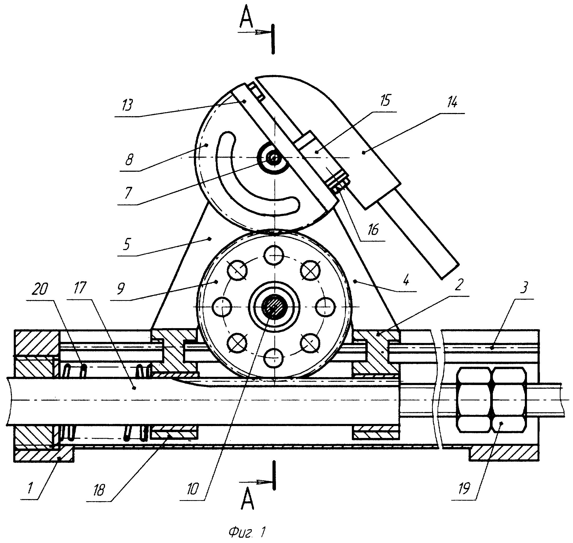
Внешний вид станка
Основные узлы
Суппорт, резцедержатель и патрон
Вид сбоку
Задняя бабка
Вид снизу на заднюю бабку
Направляющие валы
Конструкция суппорта
Привод от двигателя
Чертеж №1
Чертеж №2
Чертеж №3
Конструкционные узлы
Любой, в том числе и самодельный, токарный станок состоит из следующих конструктивных элементов: несущей рамы – станины, двух центров – ведущего и ведомого, двух бабок – передней и задней, шпинделя, суппорта, приводного агрегата – электрического двигателя.
На станине размещают все элементы устройства, она является основным несущим элементом токарного станка. Передняя бабка – это неподвижный элемент конструкции, на котором располагается вращающийся шпиндель агрегата. В передней части рамы находится передаточный механизм станка, с помощью которого его вращающиеся элементы связаны с электродвигателем.
Именно благодаря такому передаточному механизму вращение получает обрабатываемая заготовка. Задняя бабка, в отличие от передней, может перемещаться параллельно направлению обработки, с ее помощью фиксируют свободный конец обрабатываемой заготовки.
Самодельный токарный станок по металлу можно оснастить любым электродвигателем даже не слишком высокой мощности, но такой двигатель может перегреться при обработке крупногабаритных заготовок, что приведет к его остановке и, возможно, выходу из строя.
Обычно на самодельный токарный станок устанавливают электродвигатели, мощность которых находится в пределах 800–1500 Вт.
Даже если такой электродвигатель отличается небольшим количеством оборотов, проблему решают при помощи выбора соответствующего передаточного механизма. Для передачи крутящего момента от таких электродвигателей обычно используют ременные передачи, очень редко применяются фрикционные или цепные механизмы.
Токарные мини-станки, которыми оснащаются домашние мастерские, могут даже не иметь в своей конструкции такого передаточного механизма: вращающийся патрон агрегата фиксируется непосредственно на валу электродвигателя.
Существует одно важное правило: оба центра станка, ведущий и ведомый, должны располагаться строго на одной оси, что позволит избежать вибрации заготовки в процессе ее обработки. Кроме того, необходимо обеспечить надежную фиксацию детали, что особенно важно для моделей лобового типа: с одним ведущим центром. Решается вопрос такой фиксации при помощи кулачкового патрона или планшайбы.
По сути, токарный станок своими руками можно сделать и с деревянной рамой, но, как правило, для этих целей применяют профили из металла.
Высокая жесткость рамы токарного станка обязательна для того, чтобы на точность расположения ведущего и ведомого центра не оказывали влияние механические нагрузки, а его задняя бабка и суппорт с инструментом беспрепятственно перемещались вдоль оси агрегата.
Собирая токарный станок по металлу, важно обеспечить надежную фиксацию всех его элементов, обязательно учитывая нагрузки, которым они будут подвергаться в ходе работы. На то, какие габариты окажутся у вашего мини-станка, и из каких конструктивных элементов он будет состоять, станет оказывать влияние и назначение оборудования, а также размеры и форма заготовок, которые на нем планируется обрабатывать. От этих параметров, а также от величины планируемой нагрузки на агрегат будет зависеть и мощность электродвигателя, который вам необходимо будет использовать в качестве привода.
Для оснащения токарных станков по металлу не рекомендуется выбирать коллекторные электродвигатели, отличающиеся одной характерной особенностью.Количество оборотов вала таких электродвигателей, а также центробежная сила, которую развивает обрабатываемая заготовка, резко возрастают при уменьшении нагрузки, что может привести к тому, что деталь просто вылетит из патрона и может серьезно травмировать оператора.
Такие электродвигатели допускается использовать в том случае, если на своем мини-станке вы планируете обрабатывать некрупные и нетяжелые детали. Но даже в таком случае необходимо оснастить редуктором, который будет препятствовать бесконтрольному увеличению центробежной силы.
Уже доказано практикой и конструкторскими расчетами, что для токарных агрегатов, на которых будут обрабатываться заготовки из металла длиной до 70 см и диаметром до 10 см, лучше всего использовать асинхронные электродвигатели мощностью от 800 Вт. Двигатели такого типа характеризуются стабильностью частоты вращения при наличии нагрузки, а при ее снижении в них не происходит ее бесконтрольного увеличения.
Если вы собираетесь самостоятельно сделать мини-станок для выполнения токарных работ по металлу, то обязательно следует учитывать тот факт, что на его патрон будут воздействовать не только поперечные, но и продольные нагрузки.
Такие нагрузки, если не предусмотреть ременную передачу, могут стать причиной разрушения подшипников электродвигателя, которые на них не рассчитаны.
Если использовать ременную передачу нет возможности, и ведущий центр устройства напрямую соединяется с валом электродвигателя, то можно предусмотреть ряд мер, которые защитят его подшипники от разрушения. Подобной мерой может стать упор, ограничивающий продольное перемещение вала двигателя, в качестве которого можно использовать шарик, устанавливаемый между корпусом электродвигателя и задним торцом его вала.
В задней бабке токарного станка располагается его ведомый центр, который может быть неподвижным или свободно вращаться. Наиболее простую конструкцию имеет неподвижный центр: его несложно сделать на основе обычного болта, заточив и отшлифовав под конус ту его часть, которая будет соприкасаться с заготовкой. За счет вкручивания или откручивания такого болта, перемещающегося по резьбовому отверстию в задней бабке, можно будет регулировать расстояние между центрами оборудования, тем самым обеспечивая надежную фиксацию заготовки.
Обеспечивается такая фиксация и за счет перемещения самой задней бабки.
Чтобы обрабатываемая деталь беспрепятственно вращалась в таком неподвижном центре, заостренную часть болта, которая с ней соприкасается, нужно будет смазывать машинным маслом перед началом работы.
Сегодня не представляет сложности найти чертежи и фото токарных станков, по которым можно самостоятельно изготовить такое оборудование. Более того, несложно найти различные видео, демонстрирующие процесс их изготовления. Это может быть мини-станок с ЧПУ или очень простое устройство, которое, тем не менее, даст вам возможность оперативно и с минимальными трудозатратами изготавливать изделия из металла различной конфигурации.
Стойки простейшего токарного станка по металлу можно изготовить из древесины. Их необходимо будет надежно закрепить на станине агрегата при помощи болтовых соединений. Саму станину, если есть возможность, лучше изготовить из металлических уголков или швеллера, что обеспечит ей высокую надежность, но если их нет под рукой, можно также подобрать толстые деревянные бруски.
На видео ниже представлен процесс самостоятельного изготовления суппорта для токарного станка.
В качестве узла на таком станке, на котором будет фиксироваться и перемещаться режущий инструмент, выступит подручник, изготавливаемый из двух деревянных дощечек, соединенных под углом 90 градусов. На поверхности дощечки, где будет размещаться инструмент, необходимо зафиксировать лист металла, который защитит древесину от деформирования и обеспечит точное расположение резца по отношению к обрабатываемой детали. В опорной поверхности горизонтальной дощечки, перемещаемой по станине агрегата, необходимо сделать прорезь, за счет которой такое перемещение будет достаточно точным.
Для изготовления передней и задней бабки вашего самодельного токарного станка, необходимо будет подобрать металлические цилиндры соответствующего размера, которые размещают в подшипниковых узлах, установленных в деревянные стойки. Вращение, совершаемое обрабатываемой деталью, будет передаваться ей через передний центр, соединенный ременной передачей с электродвигателем.
Таким образом, заготовка, надежно зафиксированная между передним и задним центром, обрабатывается при помощи резца, установленного в подручнике оборудования.
Еще один вариант самодельного станка (нажмите для увеличения)
Общий вид
Передняя бабка
Суппорт и патрон
Не должно возникнуть никаких проблем и с поиском электродвигателя, которым следует оснастить токарный мини-станок. Даже если вам не удалось найти двигатель требуемой мощности (500–1000 Вт – для обработки мелких деталей, 1500–2000 Вт – для крупногабаритных заготовок), то вполне подойдет бывший до этого в употреблении агрегат, ранее установленный на бытовой швейной машинке. Кроме того, в качестве привода для компактных токарных станков допустимо применять электродрели или шлифовальные машины.
Станок токарный предназначается для того, чтобы изготавливать и обрабатывать изделия из металла. Профессиональные аппараты довольно дороги. Сэкономить возможно, если сделать самодельный токарный станок по металлу.
Осуществляется это различными методами.
Конструктивные особенности
Всякий токарный станок по металлу заключает в себе такие компоненты:
- привод – ключевой узел станка, от которого зависит мощность оборудования. Выбрать мотор достаточно сложно. В маленьких устройствах возможно применять движок от обыкновенной стиральной машинки, электродрели. Минимальная мощность привода должна составлять 200 Вт, число об/мин – 1500;
- станина – несущая рама устройства. Ее можно изготовить из брусков дерева, уголков из стали. Станина для токарного станка должна быть прочной. В противном случае устройство сломается из-за вибрационного воздействия;
- задняя бабка – материалом изготовления служит пластинка из стали, к которой приварен металлический уголок. Пластинка упирается в направляющие несущей рамы. Она предназначается для того, чтобы фиксировать заготовки из металла при обрабатывании;
- передняя бабка – аналогична задней, однако устанавливается на перемещающейся раме;
ведущий, ведомый центр; - суппорт – элемент упора для рабочей части.

Момент вращения от привода к рабочей части сообщается разными методами. Кто-то монтирует ее на приводной вал. Это делается для экономии пространства и денежных средств. Также момент вращения возможно сообщать посредством фрикционной/ременной/цепной передачи. У любого из данных способов имеются собственные минусы и плюсы.
Ременная передача для электропривода стоит дешевле всего, весьма надежна. Чтобы изготовить ее, примените ремень, который снят с иного агрегата . Минус подобной передачи заключается в том, что ремень постепенно изнашивается. Частота его замены зависит от интенсивности эксплуатации.
Цепная передача имеет более высокую цену, больше по размеру, однако располагает длительным эксплуатационным периодом. Фрикционная передача – средний вариант между цепной и ременной.
Собирая своими руками токарный станок, используйте ту передачу, которая считается подходящей для решения ваших задач. К примеру, в мини-токарном станке рабочую часть желательно монтировать прямо на вал.
Создание суппорта
Суппорт считается важнейшим элементом токарного станка. От него зависимо качество изготавливаемого изделия, количество сил и времени, которое вы затратите на его производство. Суппорт находится на особых салазках, перемещающихся по направляющим, которые установлены на несущей раме. Перемещение выполняется в 3 стороны:
- продольно. Рабочая часть устройства перемещается по длине детали. Данное движение применяется, чтобы вытачивать резьбу в изделиях, снимать металлический слой с детали;
- поперечно. Рабочая часть передвигается под углом в девяносто градусов относительно оси детали. Применяется, чтобы вытачивать канавки, отверстия;
- наклонно. Передвижение осуществляется под различными углами. Используется, чтобы вытачивать канавки на поверхности заготовки.
Изготавливая суппорт самодельного токарного станка по металлу своими руками, нужно помнить, что он подвергается изнашиванию из-за вибрационного воздействия. Крепежные элементы расшатываются, появляется люфт.
Качество производимых изделий ухудшается. Чтобы предотвратить это, нужно время от времени выполнять настройку суппорта.
Настраивать суппорт необходимо по промежуткам, люфту, сальникам. Убрать промежутки возможно, вставляя клинья промеж направляющих и каретки. Люфт заготовки устраняется специальным винтом.
Если в устройстве изношены сальники, их нужно хорошо помыть, смазать масляной жидкостью. При сильном изнашивании целесообразно поменять сальники на другие.
Как собрать устройство
Чтобы собрать токарный станок по металлу своими руками, нужно выполнить следующие действия:
- Сборка станочной рамы из балок, швеллерных элементов. Если вы намереваетесь осуществлять обрабатывание крупных заготовок, используйте материалы, способные выдержать значительную нагрузку. Например, если вы желаете обрабатывать детали из металла, имеющие длину больше 5 см, толщина материалов для рамы должна составлять минимум 0,3 см для уголков и 3 см для стержней.
- Установка продольных валов с направляющими на швеллерные элементы.
Присоединение валов осуществляется посредством сварочного аппарата либо болтов. - Изготовление передней бабки. Для этого применяется гидравлический цилиндр с толщиной стенок минимум 0,6 см. В него требуется запрессовать пару подшипников.
- Прокладывание вала. Применяются подшипники большого внутреннего диаметра.
- Заливка смазки в гидравлический цилиндр.
- Установка шкива и суппорта с направляющими.
- Монтаж электрического привода.
Если посмотреть на чертежи токарного станка, можно заметить, что для увеличения устойчивости держателя резца применяется подручник, внизу агрегата фиксируется тоненькая металлическая полоска. Она предназначается для того, чтобы защищать рабочую часть устройства от деформирования при обрабатывании заготовки.
Как выбрать электропривод
Самым значимым элементом сделанного своими руками токарного станка считается электропривод. Благодаря ему двигается рабочая часть устройства.
Следовательно, чем выше мощность привода, тем больше мощность всего станка. Выбирать движок необходимо, учитывая величину деталей из металла, которые вы намереваетесь обрабатывать.
Для обработки небольших заготовок оптимально использовать привод мощностью 1 кВт. Его возможно снять с ненужной швейной машинки. Для обрабатывания крупных деталей необходим движок мощностью 1,5 кВт.
Если вы используете схемы, собирая станок токарный по металлу своими руками, помните, что все электрические элементы должны иметь надежную изоляцию. Если вы не умеете обращаться с электричеством, обратитесь к профессионалу. Так вы точно не получите травму.
Как создать станок из дрели
Если вы желаете сэкономить и облегчить сборку станка, примените вместо движка обыкновенную электродрель. Так вы сможете:
- быстро собирать и разбирать токарный станок своими руками. Электродрель легко демонтируется со станины, может быть применена для сверления отверстий;
- без труда транспортировать устройство.
Особенно это актуально для тех, кто обрабатывает детали в гаражном помещении, на улице; - сэкономить деньги. Электродрель позволяет не задействовать передачу, применять заменяемые насадки в качестве рабочего инструмента.
Разумеется, данный аппарат обладает определенными минусами. Как сделать токарный станок по металлу на базе дрели, чтобы можно было обрабатывать большие заготовки? Ответ – практически никак. У электродрели довольно маленький момент кручения, большое количество оборотов. Возможно изменить данные показатели, если монтировать ременную передачу. Однако конструкция станет намного сложнее. Станок потеряет свое ключевое достоинство.
Изготавливать токарный станок на базе электрической дрели рекомендуется тем, кто намеревается обрабатывать только маленькие заготовки. Для создания устройства понадобится все то же, что и для обыкновенного станка, кроме привода и передней бабки. Несущей рамой может выступать обыкновенный стол, верстак. Электродрель фиксируется посредством хомута, струбцины.
Используя станок, в который установлен самодельный токарный патрон, возможно осуществлять вытачивание заготовок, их окрашивание, наматывание проволоки на трансформаторное устройство, создание спиральных насечек.
Особенности функционирования
Как и у всякого иного оснащения, у токарных/фрезерных станков своими руками имеются собственные особенности. Их нужно принимать во внимание, собирая и эксплуатируя устройство. Например, при обработке больших заготовок либо при применении мощного электромотора проявляется значительное вибрационное воздействие. Оно может довести до возникновения неточностей. Для того чтобы предотвратить это, ведущий и ведомый центры устройства нужно монтировать на одинаковой оси. Если вы намереваетесь монтировать лишь ведущий центр, прикрепите к нему кулачковый агрегат.
В собственноручно сделанные аппараты нежелательно ставить коллекторный движок. Он может самопроизвольно увеличивать количество оборотов. Это доводит до того, что заготовка вылетает, случаются различные травмы, портится оснащение.
Если вы все же установили подобный движок, не забудьте монтировать вместе с ним редуктор, понижающий обороты.
Наилучшим мотором считается асинхронный. Он не повышает количество оборотов при обрабатывании заготовки, стоек к высоким нагрузкам, дает возможность обрабатывать изделия из металла шириной до дециметра.
Техника безопасности
Эксплуатируя самодельное устройство, соблюдайте такие правила:
- Резец должен быть параллелен поверхности детали, которая обрабатывается, иначе станок сломается из-за соскакивания инструмента.
- При обработке торцов заготовка должна упираться в заднюю бабку.
- Используйте особый щиток либо очки для того, чтобы защитить органы зрения от летящей во все стороны стружки металла.
- После окончания обработки станок необходимо очищать, убирая стружку металла и иной производственный мусор. Не допускайте попадания мелких частичек в электрический движок самодельного токарного станка для обработки металлических заготовок.

В работах по металлу, для изготовления деталей цилиндрической (конической) формы, используется токарный станок. Существует множество моделей этого производственного устройства, и всем им присуща практически одинаковая компоновка из схожих узлов и деталей. Одним из таковых является суппорт станка.
Для лучшего понимания функций, который выполняет суппорт токарного станка, можно рассмотреть его работу на примере распространенной модели 16к20. Ознакомившись с этой информацией, возможно у некоторых домашних мастеров появится идея создать своими руками самодельный токарный станок для проведения работ по металлу.
1 Что такое суппорт станка?
Это достаточно сложный узел , невзирая на кажущуюся простоту. От того, насколько правильно он изготовлен, установлен, отрегулирован — зависит качество будущей детали, и количество времени, которое было затрачено на ее изготовление.
1.1 Принцип работы
Размещенный на станке 16к20 суппорт может передвигаться в следующих направлениях:
- поперечном — перпендикулярно оси вращающейся заготовки для углубления в нее;
- продольном — режущий инструмент передвигается вдоль поверхности заготовки для снятия лишнего слоя материала или протачивания резьбы;
- наклонном — для расширения доступа к поверхности обрабатываемой детали под нужным углом.

1.2 Устройство суппорта
Суппорт для станка 16к20 расположен на нижних салазках, которые передвигаются по направляющим, закрепленным на станине, и таким образом происходит продольное перемещение. Движение задается вращением винта, который преобразовывает вращательное усилие в поступательное движение.
На нижних салазках, суппорт передвигается и поперечно, но по отдельным направляющим (поперечным салазкам), расположенным перпендикулярно оси вращения детали.
К поперечным салазкам, специальной гайкой, крепится поворотная плита, на которой имеются направляющие для передвижения верхних салазок. Задавать движение верхним салазкам можно с помощью поворотного винта.
Поворот верхних салазок в горизонтальной плоскости происходит одновременно с плитой. Таким образом, происходит установка режущего инструмента, под заданным углом к вращающейся детали.
Станок оснащен резцовой головкой (резцедержателем), который закреплен на верхних салазках специальными болтами и отдельной рукояткой.
Движение суппорта происходит по ходовому винту, который расположен под ходовым валом. Такая подача осуществляется вручную.
1.3 Регулировки суппорта
В процессе работы на станке станка 16к20 происходит естественный износ, расшатывание, ослабление креплений суппорта. Это естественный процесс и его последствия необходимо постоянно контролировать путем регулярных подстроек и регулировок.
На суппорте станка 16к20 проводятся следующие регулировки:
- зазоров;
- люфта;
- сальников.
1.4 Регулировка зазоров
Во время поперечного и продольного движения суппорта станка 16к20 по салазкам, происходит износ винта и рабочей их поверхности вследствие постоянного трения.
Наличие такого свободного пространства приводит к неравномерному перемещению суппорта, заеданию, колебанию при возникающих боковых нагрузках. Удаляется излишний зазор при помощи клиньев, при помощи которых каретка прижимается к направляющим.
1.5 Регулировка люфта
Люфт появляется в винтовой передаче.
Избавиться от него можно без разборки с помощью закрепляющего винта, который находится на этом устройстве перемещения суппорта.
1.6 Регулировка сальников
При длительной работе по металлу на станке 16к20 происходит износ и засорение сальников, которые находятся на торцах выступа каретки. Визуально это определяется при появлении грязных полос во время продольного перемещения суппорта.
Для того, чтобы устранить такое явление без разборки узла, необходимо промыть войлочную набивку и пропитать ее машинным маслом. При полной непригодности изношенных сальников следует заменить их новыми.
1.7 Ремонт суппорта
Это устройство токарного станка с течением времени изнашивается при постоянных значительных нагрузках в работе по металлу.
Наличие значительного износа легко определяется по состоянию поверхности направляющих салазок. На них могут появиться небольшие впадины, что будет препятствовать свободному перемещению суппорта в заданном направлении.
При своевременном регулярном уходе такой ремонт может и не понадобиться, но в случае появления подобного рода дефекта следует заняться ремонтом, а при сильном износе — заменой.
Суппорт 16К20 достаточно часто требует ремонта каретки, который заключается в восстановлении нижних направляющих, которые взаимодействуют с направляющими станины. Особого внимания требует поддержание стабильной перпендикулярности расположения каретки.
При ремонте суппорта необходимо проводить проверку по обеим плоскостям при помощи строительного уровня.
2
Токарное устройство, при помощи которого выполняются работы по металлу, может быть очень простым. Собрать самодельный станок своими руками можно практически из подручных средств, которые берутся из пришедших в негодность механизмов.
Начать следует с металлической рамы сваренной из швеллера, которая будет станиной. С левого края на ней закрепляется передняя неподвижная бабка, а справа — устанавливается опора.
Самодельный станок, сделанный своими руками, предусматривает наличие уже готового шпинделя с патроном или планшайбой.
Шпиндель получает вращательный момент от электродвигателя через клиноременную передачу.
При работе станка по металлу, резец удержать своими руками невозможно (в отличие работы с деревом), поэтому потребуется суппорт, который будет передвигаться продольно. На нем устанавливается резцедержатель с возможностью его перемежения поперечно направлению движения самого суппорта.
Задается перемещение суппорта и резцедержателя на заданную величину при помощи винта с маховиком, на котором имеется кольцо с метрическими делениями. Маховик приводится в движение вручную.
2.2 Материалы и сборка
Для того чтобы собрать токарное устройство своими руками потребуются:
- цилиндр гидравлический;
- вал от амортизатора;
- уголок, швеллер, балка из металла;
- электродвигатель;
- два шкива;
- ременная передача.

Самодельный токарный станок своими руками собирается таким образом:
- Из двух швеллеров и двух металлических балок собирается рамная конструкция. При работе в будущем с деталями, имеющими длину более 50 мм, следует использовать материалы толщиной не менее 3мм для уголка и 30 мм для стержней.
- Продольные валы закрепляются на двух швеллерах направляющими с лепестками, каждый из которых имеет болтовое соединение или приварен сваркой.
- Для изготовления передней бабки используется гидравлический цилиндр, толщина стенки у которого должна быть не менее 6 мм. В нем запрессовываются два подшипника 203.
- Через подшипники, внутренний диаметр которых равен 17 мм, прокладывается вал.
- Гидравлический цилиндр заполняется смазывающей жидкостью.
- Под шкивом устанавливается гайка с большим диаметром, для предотвращения выдавливания подшипников.
- Готовый шкив берется из отслужившей стиральной машины.
- Суппорт изготавливается из пластины с приваренными к ней цилиндрическими направляющими.

- Патрон можно изготовить из отрезка трубы, подходящего диаметра, с наваренными на нем гайками и проделанными отверстиями для 4-х болтов.
- Приводом может служить электродвигатель той же стиральной машины (мощность 180 Вт), соединенный с передней бабкой ременной передачей.
Чертежи токарно-винторезного станка 1К62
Сведения о производителе токарно-винторезного станка 1К62
Производитель токарно-винторезного станка модели 1К62 – Московский станкостроительный завод “Красный пролетарий” им. А.И. Ефремова, основанный в 1857 году.
Станки, выпускаемые Московским станкостроительным заводом Красный пролетарий, КП
Спецификация основных узлов и органов управления токарным станком
Основные узлы и органы управления токарным станком 1к62
Основные узлы и органы управления токарным станком 1К62. Смотреть в увеличенном масштабе
Перечень органов управления токарного станка 1К62
- Рукоятка включения на подачу, резьбу, ходовой винт и архимедову спираль;
- Рукоятки установки чисел оборотов шпинделя;
- Рукоятка установки увеличенного, нормального шага резьбы и положения при делении на многоэаходные резьбы;
- Рукоятка установки правой и левой резьбы и подачи;
- Рукоятки установки чисел оборотов шпинделя;
- Кнопка включения реечной шестерни при нарезании резьбы;
- Рукоятка индексации и закрепления резцовой головки
- Рукоятка поперечной подачи суппорта;
- Кнопочная станция пуска и останова электродвигателя главного привода;
- Рукоятка подачи верхней части суппорта;
- Рукоятка управления быстрыми перемещениями каретки и суппорта;
- Рукоятка крепления пиноли задней бабки;
- Выключатель насоса охлаждения;
- Линейный выключатель;
- Рукоятка крепления задней бабки;
- Выключатель местного освещения;
- Маховичок перемещения пиноли задней бабки;
- Рукоятки включения, выключения и реверсирования шпинделя;
- Рукоятка включения маточной гайки;
- Маховичок ручного перемещения суппорта и каретки;
- Рукоятки включения, выключения и реверсирования шпинделя;
- Рукоятка установки величины подачи и шага резьбы.

Спецификация составных частей токарного станка 1К62
- Бабка передняя (коробка скоростей) – 1К62.02.01
- Станина – 1К62.01.01
- Фартук – 1К62.06.01
- Каретка – 1К62.05.01; Суппорт – 1К62.04.01
- Охлаждение – 1К62.14.01
- Бабка задняя – 1К62.03.01
- Моторная установка – 1К62.15.01
- Коробка подач – 1К62.07.01
- Электрооборудование – 1К62.18.01
- Приклон – 1К62.78.01; Шестерни сменные – 1К62.78.02
- Ограждение – 1К62.50.01
- Переключение – 1К62.11.01
Кинематика токарно-винторезного станка 1К62
Кинематическая схема токарно-винторезного 1к62
Кинематика токарно-винторезного станка 1К62. Смотреть в увеличенном масштабе
Читайте также: Расчет кинематической настройки токарно-винторезного станка 1К62
Схема установки подшипников на токарно-винторезном станке 1К62
Схема установки подшипников на токарно-винторезном станке 1к62
Схема установки подшипников на токарно-винторезном станке 1К62.
Смотреть в увеличенном масштабе
Читайте также: Описание конструкции токарно-винторезного станка 1К62
1К62.02.01. Передняя бабка (коробка скоростей) токарно-винторезного станка 1К62
Передняя бабка (коробка скоростей) токарно-винторезного станка 1к62
Передняя бабка (коробка скоростей шпинделя) токарно-винторезного станка 1К62. Смотреть в увеличенном масштабе
Развертка передней бабки токарно-винторезного станка 1к62
1. Развертка передней бабки токарно-винторезного станка 1К62. Смотреть в увеличенном масштабе
2. Развертка передней бабки токарно-винторезного станка 1К62. Смотреть в увеличенном масштабе
3. Развертка передней бабки токарно-винторезного станка 1К62. Смотреть в увеличенном масштабе
Передняя бабка (коробка скоростей) токарно-винторезного станка 1к62
Передняя бабка (коробка скоростей шпинделя) токарно-винторезного станка 1К62. Смотреть в увеличенном масштабе
Передняя бабка (коробка скоростей) токарно-винторезного станка 1к62
Передняя бабка (коробка скоростей шпинделя) токарно-винторезного станка 1К62.
Смотреть в увеличенном масштабе
Передняя бабка (коробка скоростей) токарно-винторезного станка 1к62
Передняя бабка (коробка скоростей шпинделя) токарно-винторезного станка 1К62. Смотреть в увеличенном масштабе
Передняя бабка (коробка скоростей) токарно-винторезного станка 1к62
Передняя бабка (коробка скоростей шпинделя) токарно-винторезного станка 1К62. Смотреть в увеличенном масштабе
Передняя бабка (коробка скоростей) токарно-винторезного станка 1к62
Передняя бабка (коробка скоростей шпинделя) токарно-винторезного станка 1К62. Смотреть в увеличенном масштабе
Передняя бабка (коробка скоростей) токарно-винторезного станка 1к62
Передняя бабка (коробка скоростей шпинделя) токарно-винторезного станка 1К62. Смотреть в увеличенном масштабе
Передняя бабка (коробка скоростей) токарно-винторезного станка 1к62
Передняя бабка (коробка скоростей шпинделя) токарно-винторезного станка 1К62.
Смотреть в увеличенном масштабе
Передняя бабка (коробка скоростей) токарно-винторезного станка 1к62
Передняя бабка (коробка скоростей шпинделя) токарно-винторезного станка 1К62. Смотреть в увеличенном масштабе
Передняя бабка (коробка скоростей) токарно-винторезного станка 1к62
Передняя бабка (коробка скоростей шпинделя) токарно-винторезного станка 1К62. Смотреть в увеличенном масштабе
Передняя бабка (коробка скоростей) токарно-винторезного станка 1к62
Передняя бабка (коробка скоростей шпинделя) токарно-винторезного станка 1К62. Смотреть в увеличенном масштабе
Приклон и гитара токарно-винторезного станка 1к62
Приклон и гитара токарно-винторезного станка 1К62. Смотреть в увеличенном масштабе
Приклон и гитара токарно-винторезного станка 1к62
Приклон и гитара токарно-винторезного станка 1К62. Смотреть в увеличенном масштабе
Передняя бабка (коробка скоростей) токарно-винторезного станка 1к62
Передняя бабка (коробка скоростей шпинделя) токарно-винторезного станка 1К62.
Смотреть в увеличенном масштабе
Передняя бабка (коробка скоростей) токарно-винторезного станка 1к62
Передняя бабка (коробка скоростей шпинделя) токарно-винторезного станка 1К62. Смотреть в увеличенном масштабе
Шпиндель токарно-винторезного станка 1к62
Чертеж шпинделя токарно-винторезного станка 1К62. Смотреть в увеличенном масштабе
Читайте также: Описание конструкции шпиндельной бабки токарно-винторезного станка 1К62
1К62.03.01. Задняя бабка токарно-винторезного станка 1К62
Задняя бабка токарно-винторезного станка 1к62
Задняя бабка токарно-винторезного станка 1К62. Смотреть в увеличенном масштабе
1К62.04.01. Суппорт токарно-винторезного станка 1К62
Суппорт токарно-винторезного станка 1к62
Суппорт токарно-винторезного станка 1К62. Смотреть в увеличенном масштабе
Суппорт токарно-винторезного станка 1к62
Суппорт токарно-винторезного станка 1К62.
Смотреть в увеличенном масштабе
Суппорт токарно-винторезного станка 1к62
Суппорт токарно-винторезного станка 1К62. Смотреть в увеличенном масштабе
Суппорт токарно-винторезного станка 1к62
Суппорт токарно-винторезного станка 1К62. Смотреть в увеличенном масштабе
Суппорт токарно-винторезного станка 1к62
Суппорт токарно-винторезного станка 1К62. Смотреть в увеличенном масштабе
1К62.06.01. Фартук токарно-винторезного станка 1К62
Фартук токарно-винторезного станка 1к62
Фартук токарно-винторезного станка 1К62. Смотреть в увеличенном масштабе
Фартук токарно-винторезного станка 1к62
Фартук токарно-винторезного станка 1К62. Смотреть в увеличенном масштабе
Фартук токарно-винторезного станка 1к62
Фартук токарно-винторезного станка 1К62. Смотреть в увеличенном масштабе
Фартук токарно-винторезного станка 1к62
Фартук токарно-винторезного станка 1К62.
Смотреть в увеличенном масштабе
Фартук токарно-винторезного станка 1к62
Фартук токарно-винторезного станка 1К62. Смотреть в увеличенном масштабе
Фартук токарно-винторезного станка 1к62
Фартук токарно-винторезного станка 1К62. Смотреть в увеличенном масштабе
Фартук токарно-винторезного станка 1к62
Фартук токарно-винторезного станка 1К62. Смотреть в увеличенном масштабе
Фартук токарно-винторезного станка 1к62
Фартук токарно-винторезного станка 1К62. Смотреть в увеличенном масштабе
Фартук токарно-винторезного станка 1к62
Фартук токарно-винторезного станка 1К62. Смотреть в увеличенном масштабе
Фартук токарно-винторезного станка 1к62
Фартук токарно-винторезного станка 1К62. Смотреть в увеличенном масштабе
Фартук токарно-винторезного станка 1к62
Фартук токарно-винторезного станка 1К62. Смотреть в увеличенном масштабе
Фартук токарно-винторезного станка 1к62
Фартук токарно-винторезного станка 1К62.
Смотреть в увеличенном масштабе
Читайте также: Описание конструкции фартука токарно-винторезного станка 1К62
1К62.06.01. Коробка подач токарно-винторезного станка 1К62
Коробка подач токарно-винторезного станка 1к62
Коробка подач токарно-винторезного станка 1К62. Смотреть в увеличенном масштабе
Коробка подач токарно-винторезного станка 1к62
Коробка подач токарно-винторезного станка 1К62. Смотреть в увеличенном масштабе
Коробка подач токарно-винторезного станка 1к62
Коробка подач токарно-винторезного станка 1К62. Смотреть в увеличенном масштабе
Коробка подач токарно-винторезного станка 1к62
Коробка подач токарно-винторезного станка 1К62. Смотреть в увеличенном масштабе
Коробка подач токарно-винторезного станка 1к62
Коробка подач токарно-винторезного станка 1К62. Смотреть в увеличенном масштабе
Коробка подач токарно-винторезного станка 1к62
Коробка подач токарно-винторезного станка 1К62.
Смотреть в увеличенном масштабе
Коробка подач токарно-винторезного станка 1к62
Коробка подач токарно-винторезного станка 1К62. Смотреть в увеличенном масштабе
Коробка подач токарно-винторезного станка 1к62
Коробка подач токарно-винторезного станка 1К62. Смотреть в увеличенном масштабе
Коробка подач токарно-винторезного станка 1к62
Коробка подач токарно-винторезного станка 1К62. Смотреть в увеличенном масштабе
Коробка подач токарно-винторезного станка 1к62
Коробка подач токарно-винторезного станка 1К62. Смотреть в увеличенном масштабе
Коробка подач токарно-винторезного станка 1к62
Коробка подач токарно-винторезного станка 1К62. Смотреть в увеличенном масштабе
Коробка подач токарно-винторезного станка 1к62
Коробка подач токарно-винторезного станка 1К62. Смотреть в увеличенном масштабе
Коробка подач токарно-винторезного станка 1к62
Коробка подач токарно-винторезного станка 1К62.
Смотреть в увеличенном масштабе
Читайте также: Описание конструкции коробки подач токарно-винторезного станка 1К62
Ремонт токарно-винторезного станка 1к62. Видеоролик
Технические данные и характеристики токарно-винторезного станка 1К62
| Наименование параметра | ДИП-200 (1д62м) | 1А62 | 1К62 | 16К20 |
|---|---|---|---|---|
| Основные параметры | ||||
| Класс точности по ГОСТ 8-82 | Н | Н | Н | Н |
| Наибольший диаметр заготовки, обрабатываемой над станиной, мм | 410 | 400 | 400 | 400 |
| Наибольший диаметр заготовки, обрабатываемой над суппортом, мм | 210 | 210 | 220 | 220 |
| Наибольшая длина заготовки, обрабатываемой в центрах (РМЦ), мм | 750, 1000, 1500 | 750, 1000, 1500 | 710, 1000, 1400 | 710, 1000, 1400, 2000 |
| Наибольшая длина обточки, мм | 650, 900, 1400 | 650, 900, 1400 | 640, 930, 1330 | 645, 935, 1335, 1935 |
| Высота оси центров над плоскими направляющими станины, мм | 202 | 215 | 215 | |
| Наибольшее расстояние от оси центров до до кромки резцедержателя, мм | 228 | 228 | 240 | |
| Высота от опорной поверхности резца до оси центров (высота резца), мм | 23 | 25 | 25 | 25 |
| Наибольшее сечение державки резца, мм | 25 х 25 | 25 х 25 | 25 х 25 | 25 х 25 |
| Наибольшая масса заготовки, обрабатываемой в патроне, кг | 500 | 200 | ||
| Наибольшая масса заготовки, обрабатываемой в центрах, кг | 1500 | 460, 650, 900, 1300 | ||
| Шпиндель | ||||
| Диаметр сквозного отверстия в шпинделе, мм | 38 | 36 | 38/ 47 | 52 |
| Наибольший диаметр прутка, проходящий через отверстие в шпинделе, мм | 37 | 34 | 36/ 45 | 50 |
| Число ступеней частот прямого вращения шпинделя | 18 | 21 | 24 | 24 |
| Частота вращения шпинделя в прямом направлении, об/мин | 11,5. .600 | 11,5..1200 | 12,5..2000 | 12,5..1600 |
| Число ступеней частот обратного вращения шпинделя | 9 | 12 | 12 | 12 |
| Частота вращения шпинделя в обратном направлении, об/мин | 18..760 | 18..1520 | 19..2420 | 19..1900 |
| Размер внутреннего конуса в шпинделе, М | Морзе 5 | Морзе 5 | Морзе 5/ 6 | Морзе 6 |
| Конец шпинделя фланцевого | М90х6 | М90х6 | М90х6/ 6 | 6К по ГОСТ 12593-72 |
| Торможение шпинделя | есть | есть | есть | |
| Материал шпинделя | Ст.45 | Ст.45 | ||
| Суппорт. Подачи | ||||
| Наибольшее перемещение продольной каретки суппорта от руки, мм | 650, 900, 1400 | 650, 900, 1400 | 640, 930, 1330 | |
| Наибольшее перемещение продольной каретки суппорта по валику и по винту, мм | 650, 900, 1400 | 650, 900, 1400 | 640, 930, 1330 | 645, 935, 1335, 1935 |
| Наибольшее перемещение поперечной каретки суппорта от руки, мм | 280 | 280 | 250 | 300 |
| Наибольшее перемещение поперечной каретки суппорта по валику и по винту, мм | 280 | 280 | 250 | |
| Продольное перемещение на одно деление лимба, мм | нет | 1 | 1 | 1 |
| Поперечное перемещение на одно деление лимба, мм | 0,05 | 0,05 | 0,05 | 0,05 |
| Поперечное перемещение на один оборот лимба (шаг винта поперечного суппорта), мм | 5 | 5 | ||
| Число ступеней продольных подач | 35 | 35 | 49 | |
| Пределы рабочих подач продольных, мм/об | 0,082. .1,59 | 0,082..1,59 | 0,07..4,16 | 0,05..2,8 |
| Число ступеней поперечных подач | 35 | 35 | 49 | |
| Пределы рабочих подач поперечных, мм/об | 0,027..0,522 | 0,027..0,522 | 0,035..2,08 | 0,025..1,4 |
| Скорость быстрых перемещений суппорта, продольных, м/мин | нет | нет | 3,4 | 3,8 |
| Скорость быстрых перемещений суппорта, поперечных, м/мин | нет | нет | 1,7 | 1,9 |
| Максимально допустимая скорость при работе по упорам, м/мин | 0,25 | |||
| Количество нарезаемых резьб метрических | 25 | 19 | 44 | |
| Пределы шагов метрических резьб, мм | 1..12 | 1..12 | 1..192 | 0,5..112 |
| Количество нарезаемых резьб дюймовых | 30 | 20 | 38 | |
| Пределы шагов дюймовых резьб, ниток/дюйм | 24. .2 | 24..2 | 24..2 | 56..0,5 |
| Количество нарезаемых резьб модульных | 12 | 10 | 20 | |
| Пределы шагов модульных резьб, модуль | 0,25..3 | 0,5..3 | 0,5..48 | 0,5..112 |
| Количество нарезаемых резьб питчевых | 24 | 24 | 37 | |
| Пределы шагов нарезаемых резьб питчевых | 96..7 | 95..7 | 96..1 | 56..0,5 |
| Выключающие упоры продольные | есть | есть | есть | есть |
| Выключающие упоры поперечные | нет | нет | нет | |
| Предохранение от перегрузки | есть | есть | есть | есть |
| Блокировка одновременного включения продольного и поперечного движения суппорта | есть | есть | есть | есть |
| Резьбоуказатель | нет | |||
| Наружный диаметр ходового винта, мм | 40 | 40 | ||
| Шаг ходового винта, мм | 12 | 12 | ||
| Диаметр ходового вала, мм | 30 | 30 | ||
| Резцовые салазки | ||||
| Наибольшее перемещение резцовых салазок, мм | 100 | 113 | 140 | 150 |
| Перемещение резцовых салазок на одно деление лимба, мм | 0,05 | 0,05 | 0,05 | 0,05 |
| Перемещение резцовых салазок на один оборот лимба (шаг винта резцовых салазок), мм | 5 | 5 | ||
| Наибольший угол поворота резцовых салазок, град | ±45° | ±90° | ±90° | ±90° |
| Цена деления шкалы поворота резцовых салазок, град | 1° | 1° | 1° | 1° |
| Число резцов в резцовой головке | 4 | 4 | 4 | 4 |
| Задняя бабка | ||||
| Диаметр пиноли задней бабки, мм | 65 | 70 | ||
| Конус отверстия в пиноли задней бабки по ГОСТ 2847-67 | Морзе 4 | Морзе 4 | Морзе 5 | Морзе 5 |
| Наибольшее перемещение пиноли, мм | 150 | 150 | 150 | 150 |
| Перемещение пиноли на одно деление лимба, мм | нет | нет | 0,05 | 0,1 |
| Величина поперечного смещения корпуса бабки, мм | ±15 | ±15 | ±15 | ±15 |
| Электрооборудование | ||||
| Количество электродвигателей на станке | 1 | 2 | 4 | 4 |
| Электродвигатель главного привода, кВт | 4,3 | 7 | 10 | 11 |
| Электродвигатель быстрых перемещений, кВт | нет | нет | 0,8 | 0,75 |
| Электродвигатель гидростанции, кВт | нет | нет | 1,1 | 1,1 |
| Электродвигатель насоса охлаждения, кВт | нет | 0,125 | 0,125 | 0,12 |
| Насос охлаждения (помпа) | ПА-22 | ПА-22 | ПА-22 | |
| Габариты и масса станка | ||||
| Габариты станка (длина ширина высота) (РМЦ = 1000), мм | 2650 х 1315 х 1220 | 2650 х 1580 х 1210 | 2812 х 1166 х 1324 | 2795 х 1190 х 1500 |
| Масса станка (РМЦ = 1000), кг | 1750 | 2105 | 2140 | 3005 |
- Токарно-винторезный станок 1К62.
Руководство по уходу и обслуживанию, КП, 1962, 1966 - Токарно-винторезный станок 1К62. Рабочие чертежи, КП, 1970
- Универсальный токарно-винторезный станок 1К62. Каталог запасных частей, Станкоимпорт,
- Ремонт токарно-винторезных станков моделей 1К62, 1К625 часть 1, часть 2, часть 3, Тула, 1974
- Ачеркан Н.С. Металлорежущие станки, Том 1, 1965
- Батов В.П. Токарные станки., 1978
- Белецкий Д.Г. Справочник токаря-универсала, 1987
- Денежный П.М., Стискин Г.М., Тхор И.Е. Токарное дело, 1972. (1к62)
- Денежный П.М., Стискин Г.М., Тхор И.Е. Токарное дело, 1979. (16к20)
- Модзелевский А. А., Мущинкин А.А., Кедров С. С., Соболь А. М., Завгородний Ю. П., Токарные станки, 1973
- Оглоблин А.Н. Основы токарного дела, 1967
- Пикус М.Ю. Справочник слесаря по ремонту станков, 1987
- Схиртладзе А.
Г., Новиков В.Ю. Технологическое оборудование машиностроительных производств, 1980 - Тепинкичиев В.К. Металлорежущие станки, 1973
- Чернов Н.Н. Металлорежущие станки, 1988
Список литературы:
Связанные ссылки
1К62 Паспорт токарно-винторезного станка, (djvu) 1,8 Мб, Скачать
1К62 Руководство по ремонту токарно-винторезных станков. Часть 1. Общее описание станков и чертежи узлов
1К62 Руководство по ремонту токарно-винторезных станков 1К62, 1К625. Часть 2. Сменяемые детали
1К62 Руководство по ремонту токарно-винторезных станков 1К62, 1К625. Часть 3. Маршрутная технология сборки-разборки
Лобзиковые станки своими руками, описание чертежей станков
Электролобзик – это инструмент, без которого сейчас многие работы по обработке древесины и материалов, в которых он применяется, выполнить просто невозможно.
Обладая компактностью и малой массой, ручной переносной лобзик способен выпиливать из заготовки изделия очень сложной геометрии.В работе лобзик очень удобный и к тому же он обеспечивает очень точный и тонкий распил. Если вы не хотите тратить денег на покупной лобзик, можете изготовить его своими руками в домашних условиях.
Самое легкое изделие
Сам стол для электролобзика можно смастерить своими руками за короткий промежуток часа. Достоинством изготовленной конструкции будет ее простота. Она легко сможет крепиться на столешнице или верстаке и при необходимости также легко разбираться. Недостатком самодельной конструкции можно считать ее малую площадь.Самое простое изделие состоит из таких частей:
- Фанера.
- Крепежные винты.
- Струбцины.
Рабочей основой станка может стать ламинированная фанера, в которой необходимо высверлить отверстия для установки крепежа и под саму пилку. Фанера должна быть толщенной не менее 10 миллиметров.
При этом в подошве вашего электроинструмента, возможно тоже придется сделать отверстия под крепежные винты.
Самодельную конструкцию можно прикрепить к верстаку с помощью струбцин. Учтите, что головки винтов для крепления должны быть утоплены в поверхности листа, чтобы во время работы они вам не мешали. Подобный станок может легко справиться с обработкой небольших заготовок толщиной до 30 миллиметров. Чертеж данного вида станка можно с легкостью найти в интернете, а далее своими руками собрать его у себя дома.
Другой вариант
Этот вариант состоит из таких частей:
- Станина, выполненная из ДСП.
- Трубка для пылесоса.
- Ламинированная фанера для крышки станка.
- Конфирманты.
Есть второй вариант стационарного приспособления для работы с древесным материалом, который собирается из большего количества запчастей, но изготовить его не составит труда. Станина изготавливается из ДСП и состоит из задней стенки и двух боковин.
Чтобы было нетрудно добраться до кнопки включения, передняя стенка у станка отсутствует.
В задней стенке необходимо своими руками высверлить отверстия для трубки пылесоса и шнура. Крышка для станка можно изготовить из ламинированной фанеры толщиной 10 миллиметров. Всю конструкцию можно стянуть конфирмантами. Лобзик можно закрепить таким же способом, как описано выше, в первом случае.
На станке, выполненном по этому варианту можно обрабатывать более массивные заготовки, однако,при выполнении работе с толстой заготовкой пила лобзика может уходить в обе стороны и отклоняться назад. При этом ухудшается точность реза. Этот недостаток легко можно устранить своими руками, установив на самодельный станок кронштейн, который будет служить упором.
Пила лобзика при этом будет двигаться между двумя 11-миллиметровыми подшипниками, которые необходимо прикрутить винтами к Г-образной полосе, выполненной из стали. Тыльная часть пилы будет упираться в стенку самого кронштейна.
Эта конструкция не даст полотну вашего лобзика отклониться от заданной траектории.
Кронштейн необходимо крепить к каркасу, изготовленный из брусков 50 на 50 миллиметров. Его можно опускать или поднимать в зависимости от длины и толщины обрабатываемой древесины. Для этого сам каркас вместе с упором необходимо крепить не намертво к боковине станка, а прижиматься к ней оргалитовой, стальной или текстолитовой пластиной. Устанавливаем вертикальную стойку каркаса между оргалитом и станиной.
Станок может быть более удобный, если монтировать на него дополнительную ограничительную планку, с помощью которой можно резать материал на заготовки, одинаковой длинны и толщины.
Ограничитель крепится к станку с помощью струбцин. Его изготавливают из деревянного бруса, алюминиевого или стального уголка. Можно также для удобства установить планку на салазки, которую необходимо закрепить по бокам или внизу столешницы.
Столик для лобзикового станка из ДСП
Для изготовления этого лобзикового стола вы должны иметь определенный столярный навык, так как при соединении его царг с ножками, должно производиться в шип-паз.
Сам шип-паз можно поменять на соединение с использованием шкантов, столярного клея и саморезов.Крышку станка необходимо сделать подъемной, для облегчения доступа к инструменту при его замене. Чтобы станок был многофункциональным, в нем необходимо предусмотреть место для монтажа фрезерной ручной машинки.
Стол собирается из таких материалов:
- брусок 80 на 80 миллиметров;
- брусок 40 на 80 миллиметров;
- ламинированная фанера или ЛДСП размерами 900 на 900 миллиметров.
Отмерьте расстояние между ножками, оно должно составлять от 60 до 70 сантиметров. Бруски для проножек и царг получатся, если продольно распилить брусья 80 на 80 миллиметров. Высоту самих ножек вы на свое усмотрение можете подобрать сами, все зависит от того, насколько будет вам удобно выполнять работы на станке.
На каждом торце проножек и царг необходимо высверлить по два отверстия для шкантов. Такие же отверстия необходимо сделать на боковинах ножек. Обмажьте шканты клеем на половину их длины и вставляйте в торцы.
После этого соберите полностью каркас. Он получится неразборной. После проверки и возможных исправлений он стягивается намертво.
Все поверхности в местах контактов до сборки необходимо промазать клеем. Используйте саморезы для дополнительной прочности конструкции, которые необходимо ввинчивать через отверстия заранее для них подготовленные.
Крышку необходимо крепить к одной из царг с помощью петель, для этого в ней надо проделать прорезь для облегчения снятия и установки лобзика. В столешнице с тыльной стороны необходимо прикрутить две планки с заранее выбранной четвертью, в которую должна войти подошва электроинструмента.
В планках необходимо выполнить отверстия, в которые затем необходимо установить болты или прижимные винты. Лобзик, закрепленный под столешницей, сможет распиливать более толстый материал, если для его подошвы будет выполнено углубление в крышке. Проще всего это углубление выполнить с помощью фрезерной машинки.
Стол в результате получится очень простой и просторный, поэтому необходимую прочность его крышке может обеспечить большая толщина ЛДСП или фанеры.
Используйте листы от 20 миллиметров и более толстые.
Лобзиковый станок с применением тонких пил
Так как при вырезании трудных узоров в фанере пила электролобзика, мало для этого приспособлена, необходимо взять тонкую пилочку. Ее можно приладить на ручной электроинструмент, с помощью оригинального приспособления.Лобзик также крепим к столешнице, а вот тонкую пилку необходимо натянуть, так как ее недостаточно будет просто установить на маятнике. Чтобы облегчить процесс натяжки пилки, необходимо из бруска изготовить коромысло.
Натяжение вашего полотна при этом обеспечивается с помощью пружины. Ее нижнюю петлю наденьте на поперечную шпильку. Верхнюю петлю необходимо вставить в регулировочный винт, который меняет силу натяжения демпфера. Все деревянные заготовки для самодельного станка выполняют из твердых пород дерева.
Так как в лобзиковом станке нет возможности крепления полотна тонкого сечения, можно переделать обломок старой пилы, предварительно высверлив в нем отверстие и доукомплектовав винтом с гайкой и зажимной пластиной.
В рычаге коромысла необходимо проделать вертикальную прорезь, в которую нужно вставить вторую стальную пластину. Ее крепят к коромыслу винтами. Крепление к ней верхней части пилки необходимо выполнить таким же способом, как и нижней. Чтобы вам было легче, можете взять для изготовления пластинки обрезки старого лобзика.
Оцените статью: Поделитесь с друзьями!Самодельный фуговальный станок: чертеж, основные этапы создания
Чтобы любая работа спорилась, необходимо иметь хорошее оборудование и инструменты. Это же утверждение подходит и для любителей (или профессионалов) «повозиться» с деревом. Мастера по изготовления мебели или других деревянных изделий всегда стараются обзавестись различными инструментами и приспособлениями, которые смогут помочь им в работе.
Например, фуговальный станок. Это устройство существенно повышает производительность и качество работ по дереву.
Но вот приобрести его получается не у всех любителей, ведь его цена довольно высокая. А как выйти из такой сложной ситуации? Решение есть, и оно довольно простое – это сделать настольный фуганок своими руками. А о самом процессе изготовления и будет рассказано в статье.
Для чего нужен фуговальный станок
В деревообрабатывающей мастерской могут находиться самые разные станки, но наиболее часто используемые (конечно, кроме циркулярной пилы) можно назвать фуговальные и рейсмусовые устройства. Эти два вида агрегатов немного схожи по своей функции, но отличаются по способу использования.
Если вам необходимо изготовить деревянную заготовку в виде доски, бруса или щита, то лучше воспользоваться рейсмусовым станком. Такое устройство, основным инструментом которого является все тот же нож, способно разрезать исходный материал на две параллельные части. При этом обе они будут подогнаны к определенным размерам.
Рейсмусовые станки выпускаются как одностороннего, так и двустороннего типа.
В первом случае за один проход обрабатывается только одна сторона заготовки. Более производительным является двусторонний рейсмусовый станок. Здесь на выходе уже получается практически готовая деталь.
У рейсмусовых станков вал расположен над столешницей. Причем последняя делается массивной, чтобы сгладить большие вибрации. Кроме этого, механизм оснащается специальным кожухом, который предназначен для погашения шумов.
У фуговального станка немного другая задача. Это устройство используется для создания гладкой, без существенных шероховатостей, поверхности на заготовке. Такой станок также как и предыдущий вариант оснащается валом с ножами, только в фуговальном он расположен под столешницей.
Заготовка подается на рабочую поверхность с одной стороны, выход с противоположной уже частично обработанной. Так слоем за слоем достигается нужная ровность. После обработки на фуговальном станке деталь можно подавать на рейсмусовый.
Основные понятия
В подобном оборудовании будут присутствовать многочисленные вращающиеся детали.
Отсюда можно сделать вывод, что выполнить такой станок своими руками будет не так уж просто. Поэтому приступая к его изготовлению нужно рассчитать свои силы. Если у вас уже имеется некоторый подобный опыт, то вы справитесь с задачей.
Стоит сразу отметить, что сделать фуговальный станок полностью из деталей собственного изготовления у вас не получится. Конечно, возможно в ваших «закромах» имеется большой ассортимент различных устройств, но такое бывает редко. В первую очередь это касается вала с ножами и подшипников. Их, скорее всего, придется докупать или даже заказывать. Но если все что нужно имеется в наличии, то можно смело приступать к проектированию.
Некоторые детали для фуговального станка: ножевой вал, подшипники ножи, придется покупать или заказывать
В первую очередь стоит понять, какую именно «комплектацию» вы желаете получить. Тут может быть несколько вариантов:
- просто фуговальный станок. Он будет выполнять только одну функцию;
- комплект из фуганка и циркулярной пилы. В этом случае функциональность станка увеличивается в два раза;
- оборудование способное выполнять роль и фуганка, и циркулярной пилы, и шлифовального устройства, и точильного и сверлильного станка. Такое приспособление будет очень полезным для вашей мастерской, но вот выполнить его своими руками будет сложно.
Самый оптимальный и простой в исполнении вариант – это изготовить фуганок и циркулярную пилу на одной станине. Плюс ко всему оба инструмента будут вращаться от одного электродвигателя. Такая особенность существенно облегчить нашу задачу.
Рассмотрим основные составляющие нашего будущего настольного фуговального станка. В него будут входить:
- Станина. Эта конструкция будет удерживать весь станок и установленное на нем оборудование. Для ее изготовления лучше всего использовать прочные швеллеры, с толщиной стенок в пределах 8-10 миллиметров. Станину можно выполнить как разборную, так и капитальную. В первом случае все ее составляющие будут соединяться при помощи болтов и гаек. Если переносной станок вам не нужен, то швеллеры можно закрепить между собой при помощи сварки. Такой вариант будет более надежным. Можно обойтись и без станины, если ее роль будет играть рабочий стол;
- Рабочий инструмент. Это одна из самых главных составляющих станка. Ножи фуганка и сама пила – именно с их помощью вы и будете распиливать, и обрабатывать доски. Ножи прочно крепятся на валу. Они должны быть выполнены из надежной и крепкой стали. Пилу для циркулярки с победитовыми напайками. Такой инструмент прослужит вам гораздо дольше;
- Ротор – именно к нему будут крепиться все инструменты. Без этой детали невозможно выполнить ни один станок, рейсмус или циркулярную пилу. Найти подходящий ротор бывает довольно сложно, поэтому его лучше заказать у профессионального токаря, предварительно снабдив его чертежами;
- Рабочий стол. Для нормально функционирующего станка вам понадобиться три поверхности. Одна будет служить рабочим столом для циркулярной пилы, а две других для фуговального станка. Толщина материала для рабочей поверхности должна быть не менее пяти миллиметров. Для этих целей подойдет многослойная фанера или металлические листы. При этом желательно сделать небольшую разницу по высоте для поверхностей, предназначенных для фугования. Та сторона, по которой будет подаваться заготовка должна быть на пару миллиметров ниже то, на которую перейдет уже обработанная сторона. Такой перепад облегчить работу и существенно снизит вибрацию.
Электропривод фуговального станка
Ну и конечно не забудьте про привод. Все механизмы должны вращаться. Это значит, что привод будет являться «сердцем» станка. Приведем некоторые рекомендации по этому элементу конструкции:
— в первую очередь приготовьте электродвигатель.
Электродвигатель для фуговального станка
Лучше всего для этих целей использовать трехфазный агрегат. Конечно, в этом случае вам возможно придется переделывать электрическую сеть в своей мастерской, то это того стоит. Трехфазные электродвигатели, работающие при напряжении в 380 В, способны развивать большую мощность. К тому же и крутящийся момент у таких устройств подходящий для наших целей. Минимальное значение по мощности должно быть 3 кВт, ну а максимальное по вашему усмотрению;
- для передачи вращательного момента от электродвигателя к рабочему валу должно осуществляться при помощи ремней. Лучше всего для этих целей подойдет двухручьевая клинообразная форма. Такие ремни более надежные;
- сам электродвигатель можно монтировать консольно, непосредственно внутри рамы станка. Такой способ поможет решить проблему, связанную с натяжением ремня. Если вы хотите укрепить двигатель более крепко, то нужно добавить в конструкцию салазки, с помощью которых будет проводиться регулировка;
- чтобы увеличить частоту вращения вала, стоит использовать два шкива. Один, большего диаметра, устанавливают на электродвигатель. Шкив с меньшим сечением монтируют на вал.
Очень внимательно отнеситесь к обеспечению питанию станка. Трехфазный ток подается по четырехжильному кабелю. При этом должно быть организовано надежное заземление. Эти требования помогут избежать несчастных случаев при работе на станке.
Чертеж. Основные этапы создания фуговального станка
Настольный фуговальный станок — чертеж
Настольный фуговальный станок — чертеж (часть2)
Фуговальный станок, самый простой его вариант без дополнительных функций, можно довольно легко изготовить своими руками. Общий ход работ в этом случае будет выглядеть следующим образом:
- вначале приготовьте все необходимые детали, инструменты и материалы;
- создаем чертеж будущего станка. Без этого «документа» нельзя начинать работу. С помощью чертежа вы сможете просчитать все нюансы и подготовиться к ним. Кроме того, наличие такого плана значительно облегчит и упростить задачу;
- далее, переносим все размеры будущих деталей на заготовку и изготавливаем их;
- очень важная деталь – это место для установки подшипников ротора. Его делают из нескольких заготовок.
При скреплении используется клей и прижим. Выемка должна идеально подходить по размерам подшипника;
- далее, проводим установку электродвигателя. Для этого, как уже отмечалось выше, можно использовать консольное крепление, или установить агрегат на салазки;
- следующим этапом будет сборка ротора с подшипником и установка их на свое место. Одновременно проводится подсоединение к электродвигателю при помощи ременной передачи. Проверьте, чтобы ротор свободно вращался в подшипнике;
- далее, проводится сборка и установка рабочей поверхности. Она будет состоять из двух частей – подающей и принимающей. При этом вторая должна быть на пару миллиметров выше первой. Рабочую поверхность можно выполнить из многослойной фанеры, а для большей прочности и увеличения срока службы оббить листовым железом.
После создания системы включение и выключения электродвигателя станок готов к использованию. Но чтобы ваш новый инструмент приносил только пользу и радость работы, стоит его правильно и безопасно эксплуатировать.
Рекомендации по использованию
Роторный станок, как и любой механизм, нуждается в правильной эксплуатации. Если не соблюдать определенные правила, то устройство может быстро выйти из строя. А в худшем случае вы сами получите травму. Поэтому при использовании следует соблюдать рекомендации от специалистов:
- чтобы станок работал надежно необходимо периодически проводить профилактические работы. В такой комплекс включают следующие мероприятия – проверка надежности расположении ножей на валу, шприцевание подшипников, проверка электродвигателя, осмотр ременной передачи на предмет достаточности ее натяжение, проверка всех контактов и так далее;
- вращающиеся детали всегда опасны. А если они еще оснащены острыми лезвиями, то риск получения трав очень велик. Чтобы повысить безопасность эксплуатации вал с ножами лучше закрывать кожухом. Он будет раскрываться при происхождении деревянной заготовки, и снова закрываться при простое;
- при работе на станке соблюдайте все меры безопасности. Особенно это касается качества освещения рабочего места. Над станком повесьте мощную лампу, да и само помещение вашей мастерской должно быть светлым. Также обратите внимание на качество пола. Если он слишком скользкий, то лучше установить деревянный помост или резиновый коврик;
- не стоит прибегать к чрезмерным усилиям во время строгания или резки материала. Лишняя сила не ускорит работу, а только испортить заготовку или приведет к поломкам самого станка;
- не стесняйтесь приглашать помощника при обработке длинных заготовок. Так работа будет выполнена быстрее, качественней и безопасней для вашего здоровья.
Конечно, стоит следить за чистотой рабочего стола. После окончания работы, при выключенном и обесточенном станке, проведите очистку устройства от стружки. То же самое нужно периодически нужно делать для выполнения больших объемов. Выключите станок и удалите все накопившиеся стружки из всех механизмов и поверхностей. Чистота облегчит вашу работу и поможет сохранить работоспособность установки на более длительный срок.
В видео будет подробно рассмотрен один из вариантов самодельного фуговального станка.
Видео: самодельный фуговальный станок
фрезерные, токарные и сверлильные станки для домашней мастерской (110 фото)
Использование фрезеровочного станка бывает различным. Некоторые могут выполнять одну функцию, некоторые – несколько. Однако его покупка может быть довольно дорогой для простого обывателя. Поэтому, если вы хотите сэкономить, то наилучшим вариантом для вас будет сделать его дома своими руками. В данной статье вы узнаете, как это сделать.
Обычно дерево обрабатывает по кривому и прямому контуру. Основную работу совершает металлическая головка ножа, которая с большой скоростью двигается вверх и вниз.
У фрезеров могут быть различные варианты строения (и у каждого есть как свои плюсы, так и минусы):
- Одношпиндельная (шпиндель установлен в вертикальном положении)
- Однишпиндельные с подвижным шпинделем (можно менять угол наклона)
- Копировальный вариант фразера (размещение верхнее)
- То же, что и предыдущее, только размещение горизонтальное
Содержимое обзора:
Как же изготовить токарный станок по дереву?
Намного проще, чем вы думаете. Но не без определенных сложностей и нюансов. Сделать его можно из дрели или с использованием электрического мотора, снятого с другого носителя. Мощность, однако, должна быть не выше 500 Вт. Для изготовления привода прекрасно подойдет дрель.
Перед началом работы создайте подробный чертеж изделия. Обратите внимание на все мелкие детали – они должны быть тщательно прорисованы. Особенно аккуратно отнеситесь к масштабу.
Из материалов, которые должны быть у вас, надо иметь:
- Станину из металла
- Подручник
- Заднюю бабку
- Электромотор
Аккуратно соедините все детали вместе, как показано на фото. Вот и все! Самодельный станок готов!
Изготовление ЧПУ станка
Изготовление ЧПУ станка немного отличается от технологии создания обычного станка тем, что здесь имеется программа, которая будет контролировать его работу. Однако, как и многие другие станки, в его основе лежит балка с прямоугольным сечением.
Важно для скрепления использовать не сваривание, а болты, так как это обеспечит большую прочность (вибрация на болты оказывает меньшее воздействие, чем на сварочные швы).
Постарайтесь предусмотреть возможность перемещения станка по вертикали. Это предоставит вам большее поле для экспериментов и использования вашей фантазии.
При сборке лучше всего начать с моторов. Они должны работать на электричестве и быть шагового типа. Прикреплять их надо прямо на ось, вертикально. Один будет двигать фрезер горизонтально, другой – вверх и вниз. После установки двигателей, переходите к прикреплению оставшихся частей конструкции.
Передаваться вращательные движения будут через систему ремней. Это обеспечит работу узловой системы.
Проверьте работоспособность фразера. Если все готова и нет дефектов, то можете подключать к нему программное обеспечение.
Какое оборудование нужно иметь?
Для того чтобы изготовить такой станок у себя дома, вам, в первую очередь, надо иметь три шаговых двигателя. Они будут определять движения вашего станка вверх, вниз и в стороны. Это является основой его функционала. Взять их можно из любого матричного принтера. Кроме них обязательно иметь в наличии пару железных стержней.
Конечно, иметь ровно 3 двигателя не обязательно – можно обойтись и двумя, имеющимися в матричном принтере. Но если вы хотите регулировать угол наклона, то третий двигатель вам обязательно понадобится.
К тому же, количество проводов управления значительно повышает количество операций, которые можно на станке выполнить. Учитывать также стоит градус поворота при одном шаге, обмоточное сопротивление и то, какое напряжение подается на двигатели.
Кроме всего вышеописанного, есть еще один вариант станка, который вы можете с легкостью изготовить в домашних условиях. Это шлифовальный станок.
Обычно делают ленточный станок – для обработки деталей тогда, когда они уже почти готовы. Изготовить его также сможет любой мастер. Главное – желание!
Итак, для начала, вам понадобится двигатель – его можно снять со старой стиральной машинки. Станину можно изготовить из листа металла. Обратите внимание, что стороны станины должны быть максимально ровными.
Затем вам понадобятся два вала. Сделать из можно и легкость из куска ДСП. Один из них должен иметь прямое соединение с электродвигателем, а второй быть закрепленным на оси с узлами из подшипников.
Затем закрепить ленту на валах. Они должна располагаться ровно посередине. Самый оптимальный материал для ее изготовления – наждачное полотно. Материал надо клеить очень близко друг к другу.
Подробнее с тем, как изготовить шлифовальный станок своими руками вы можете в видео в конце статьи. Таким образом, если вы хотите изготавливать какие-нибудь изделия из дерева дома, но не хотите тратиться на дорогостоящее оборудование, то можете с легкостью изготовить все в домашних условиях.
Фото станков по дереву своими руками
Также рекомендуем просмотреть:
самодельные кондукторы, матрицы и другие инструменты, изготовление из профтруб и не только; гибка, сварка, сборка; видео
Кованая настенная вешалка-полка, украшенная листьями и завитками. Фото Царская Ковка
Кованые завитки являются универсальными декоративными элементами, применяющимися для дополнения дизайна разнообразных по форме изделий. Для изготовления деталей подобного типа используется механизированное оборудование, а также ручные инструменты и приспособления. Некоторое оснащение продается по достаточно высоким ценам. Но существует также возможность изготовления (сборки) оборудования своими руками.
Изготовление самодельных вертикальных устройств из металла, профтрубы и других материалов, видео
Производство станков любого типа своими руками представляет собой сложное дело. Изготовление составных частей устройства, а также сборку следует осуществлять внимательно. Корректность гарантирует качество изготовляемых элементов и предметов из металла.
Как сделать улитку с электропроприводом и без, для холодной ковки и гибки завитков, волют, запятых
- Стол выполняется из стали, к нему с нижней части приваривается труба, к которой в свою очередь крепится подвижный рычаг, сделанный из профильной трубы 45х25, толщина стенок – 1,5 мм.
- Данная часть станка крепится к ножкам, опорам.
- К рычагу крепится дополнительная регулируемая часть, дополнительно усиленная угольником.
- В ровной поверхности, где предварительно сделаны отверстия, крепятся оправки (кондукторы), выполненные из квадратного прутка с сечением в 10 мм. и полосы.
- Изготовление оправок осуществляется по рисунку.
- Несколько отверстий позволяют располагать оправки разным образом, что позволяет гнуть элементы разных конфигураций и размера.
- Мастер демонстрирует процесс изготовления элементов.
Ручные инструменты и приспособления для изготовления кованых завитков
Изготовление ручных инструментов требует меньших затрат времени и расходных материалов. Подобные приспособления имеют более простое строение.
Матрица
- Для изготовления приспособления потребуется кусок швеллера длиной 25 см.: покупная или выточенная самостоятельно петля с диаметром 22 м. с втулкой из двух видов труб и элемента сложной формы, а также еще одной петли.
- Лекало подобного типа позволяет производить волюты разных размеров.
Кондуктор
- Для изготовления кондуктора потребуется полоса длиной 60 см. и шириной – 4 см.; кусок жести 16 на 16 см., толщина – 3 мм.; кусок угольника; небольшие вырезанные из рессоры элементы с закругленными углами и снятыми фасками. Из малых деталей сваривается деталь с углом в 90 градусов, для крепления заготовок при гибке.
- На полосе прорисовывается наклонная линия, часть заготовки позже будет удаляться.
- Полоса слегка гнется, к ней приваривается малый угольник, после этого гибка продолжается.
- Спираль крепится к основанию, к куску жести.
- Кондуктор фиксируется в тисках, лишняя часть обрезается болгаркой.
- С нижней части основания приваривается угольник, обеспечивающий крепление изделия в тисках.
Другое оборудование для ковки
Весь перечень оснащения для холодной ковки следует разделять на четыре отдельные категории, критерием для классификации выступает уровень автоматизации.
- Универсальное оборудование представляет собой автоматические или в некоторых случаях ручные установки, позволяющие обрабатывать заготовки с разным сечением. Такие многофункциональные машины служат заменой целому набору ручных устройств, использующихся для гибки профильных труб, квадратных и круглых прутков. Важным достоинством подобных машин является возможность выпуска различных по форме элементов.
Станок для ковки Ажур-1М. Фото КовкаПРО
- Станки для холодной ковки предназначены для облегчения ручного труда. В перечень устройств кроме улитки входят гнутик, волна, твистер, глобус. Каждый агрегат предназначен для изготовления определенного вида элементов. Рычажное (ручное) управление позволяет снизить трудозатраты, но не исключить их совсем. Ручные станки применяются мастерами, которые занимаются ковкой в качестве хобби, так как производительность данных устройств не слишком высока. Для улучшения технических характеристик необходимо оснастить агрегат электродвигателем.
Станок для холодной ковки типа Волна
- Инструменты представляют собой простые предметы, ковка выполняется вручную, посредством применения силы. К инструментам относятся тяжелый молоток (кувалда), клещи, вилки.
Вилка кузнечная
- Приспособления являются более сложными предметами, представляют собой механизмы, к которым относятся кондуктор, шаблоны, лекала, оправки.
Самодельные модели, изготовление, как сделать, размеры
Кроме устройства типа улитка возможно также изготовить самостоятельно и другие станки для холодной ковки: фонарик, волна и прочие, в том числе и электрические. Приспособления в большинстве случаев делают своими руками. Самодельные модели разных видов и размеров позволяют осуществлять процесс холодной ковки своими руками и выпускать элементы необходимых конфигураций.
Купить
Исполнители, не уверенные в собственных навыках, имеют возможность приобрести станки для ковки заводского производства. Предприятия предлагают широкий выбор моделей ручных устройств: улитки, волны, фонарики, твистеры, прессы, гнутики, а также универсального оснащения.
Разделы: Станки, Станки холодной ковки
Токарный станок по дереву своими руками, чертежи с размерами, видео
Вы находитесь здесь:
- Главная
- Архивы тегов: токарный станок по дереву своими руками
Простые токарные станки по дереву своими руками
Дерево является наиболее востребованным материалом для мастеров Кулибиных и прочих самодельщиков. Во многом его популярность обусловлена не только универсальностью в применении, но также доступностью и простотой обработки.
В большинстве случаев для работы с деревом можно использовать свой личный ручной инструмент, который у каждого найдется в наличии: ножовки по дереву, рубанки, стамески, шлифовальные бруски.
Применяются и различные виды электроинструмента: дрель, шуруповерт болгарка, ручной фрезер. Купить их может практически каждый, тем более если человек занимается деревообработкой.
Но в тех случаях, когда необходимо придать деревянной заготовке цилиндрическую форму, выточить ручки для инструмента, сделать шкивы, а также подсвечники и другие декоративные элементы, без токарного станка не обойтись.
Купить такое оборудование — не всегда по карману. Но всегда есть альтернативный вариант. Например, простой станочек при желании можно изготовить самому. Это не так уж и сложно, как может показаться сначала.
На нашем сайте представлены разные варианты самодельных токарных станков по дереву: от примитивных, несложных в изготовлении и бюджетных до универсальных конструкций. Благодаря такому разнообразию вариантов, вы можете выбрать то, что подходит именно вам.
Устройство токарного станка по дереву
Прежде чем приступить к изготовлению и сборке, важно для начала ознакомиться с конструктивными особенностями оборудования. Здесь можно выделить пять ключевых узлов.
Базой самоделки является основание (или правильно будет сказать — станина). На неподвижной площадке располагаются все другие конструктивные элементы, без которых невозможна работа станка.
Основание должно быть основательным (простите за тавтологию), прочным и надежным. Для станины мастера-самодельщики используют как металлические, так и деревянные площадки.
Еще одними важными конструктивными элементами являются так называемые бабки. Без них работа в принципе невозможна. Именно между ними фиксируется обрабатываемая заготовка.
Обратите внимание: от того, насколько ответственно вы подойдете к сборке и установке бабок токарного станка по дереву напрямую будет зависеть качество обработки заготовки. Поэтому рекомендуем сначала ознакомиться с основными нюансами. Важное и обязательное условие — их центра должны быть соосными.
Для их изготовления целесообразно использовать именно металл (чем толще, тем лучше), однако есть немало альтернативных конструкций, в которых они реализованы из фанеры или дерева.
Изготавливая для себя токарный станок по дереву своими руками, не стоит забывать об изготовлении подручника.
Это пятый конструктивный элемент, который хоть и не влияет непосредственно на работу станка, как предыдущие, но обязательно должен быть.
Регулируемый подручник служит опорой для токарных инструментов, а именно — столярных резцов, с помощью которых происходит обработка деревянной заготовки.
Есть и более сложные в изготовлении «домашние» конструкции — к примеру, работающие совместно с копиром. Их тоже можно сделать самостоятельно, но в данном случае потребуется определенный опыт, ну и умение работать с чертежами.
Возможности самодельного станка
Понятно, что гаражные мини «версии» заводских моделей отличаются от последних по многим параметрам. Тем не менее работать на них можно, и они неплохо справляются со своей задачей.
Выточить декоративный деревянный подсвечник или ручку для стамески и напильника — с этой операцией справится даже самый простецкий станок с приводом от электродрели, собранный из дерева.
Подробно о том, как собрать такой токарный станочек из бросовых материалов и на скорую руку, можно прочитать на нашем сайте в данной статье.
Если же вам требуется агрегат для более серьезных работ, то станину лучше изготовить основательную — из толстого металла.
На самодельных конструкциях можно без проблем вытачивать деревянные шкивы для каких-либо гаражных самоделок, разные цилиндрические детали, красивые пепельницы из дерева и др.
Еще раз хотим обратить ваше внимание на то, что собрать токарный станок для дерева своими руками будет выгодно, если вам необходимо обрабатывать (обтачивать) малогабаритные заготовки и в малых объемах. Для более серьезных и ответственных вещей лучше приобрести заводские конструкции.
Реализация привода
Многих мастеров и самодельщиков часто интересует даже не то, как сделать токарный станок по дереву, а какой привод выбрать.
Тут, конечно, все зависит от ваших возможностей, а также от того, что именно вы собираетесь делать, какие детали вытачивать.
Если речь идет о бюджетном варианте, для которого не требуются чертежи и серьезные расчеты, то с ролью привода вполне справится электродрель. Это один из наиболее часто применяемых вариантов.
Некоторые мастера используют вместо обычного привода из электродрели угловую шлифмашинку (болгарку), но широкого распространения такое конструктивное решение не получило.
Тем более, что использование болгарки без регулировки оборотов — вообще нецелесообразно. Подробнее об изготовлении токарного станка из УШМ читайте в нашей статье.
Если вам нужна конструкция, чтобы изготавливать разные поделки и детали из дерева, то имеет смысл использовать электродвигатель, который посредством ремня будет соединяться с приводными шкивами (причем они должны быть разного диаметра).
При это сам токарный станок, а точнее его основные элементы желательно изготавливать из металла. В данном случае конструкция получится не только надежной и основательной, но и безопасной, что тоже немаловажно.
Использование дрели
Как уже было написано ранее — одной из наиболее популярных конструкций для гаража и домашней мастерской является простейший токарный станочек на базе электродрели.
Изготовить его несложно, а работать на нем — просто. Для изготовления основных конструктивных элементов можно использовать то, что найдется у вас под рукой.
Например, станину можно сделать из куска металлической двутавровой балки. Также можно взять за основу швеллер или строительный уголок — очень много вариантов.
Сами бабки можно сделать из того же двутавра. Также необходимо будет сделать простой хомут для надежной жесткой фиксации электродрели на своем месте.
Такой мини токарный станок по дереву можно установить прямо на рабочем столе, а после окончания работ — убрать в угол мастерской, сняв с него дрель.
С мотором от стиралки
Если конструкции на базе сетевой электродрели пользуются популярностью из-за простоты сборки, то станки с приводом из электродвигателя привлекают внимание своей универсальностью.
Для изготовления подобного токарного станка можно уже отдельно разработать чертежи с основными узлами и подробными размерами. Это очень поможет при сборке.
Обратите внимание, что при использовании мотора от стиралки можно использовать несколько основных конструктивных решений.
Можно реализовать как прямой привод, когда на вал надевается специальная (часто — самодельная) насадка для фиксации заготовки, так и непрямой — когда вращение на шпиндель передается через систему шкивов и ременной передачи.
Задняя бабка крепится к подвижной площадке, что позволит легко перемещать ее по станине, подстраиваясь под размер обрабатываемой детали или заготовки.
Обязательно изготавливаем корпус из металла или дерева, внутри которого будет находиться электродвигатель.
И на лицевую сторону корпуса можно вывести кнопку включения. Дополнительно, если есть возможность, можно установить плату регулировки оборотов.
Какое дерево можно обрабатывать
Подойдут любые породы дерева: дуб, береза, ясень, граб, и тем более — сосна или другие хвойные. Склеенные заготовки из березовой фанеры тоже можно обтачивать на самодельном токарном станке.
А используя вспомогательный копировальный инструмент, можно изготавливать очень классные вещи.
Поэтому касательно выбора древесины можно особо не заморачиваться — самодельная конструкция справится с обработкой любых небольших заготовок из дерева.
Правила использования и техника безопасности
При работе на любом оборудовании важно соблюдать элементарные правила ТБ. В первую очередь, необходимо обязательно использовать средства личной защиты — маску или очки.
Собирая для себя токарный станок по дереву своими руками, важно заранее предусмотреть для него подходящее место, где он будет надежно установлен.
Место должно быть ровным и прочным. И рабочий стол в принципе подойдет для этого. Также можно изготовить отдельное место.
Также крайне важно, чтобы над тем местом, где будет находиться станок, было организовано хорошее освещение.
Перед началом работы необходимо убедиться в надежном креплении обрабатываемых деревянных заготовок, а также в работоспособности всех узлов конструкции.
Сделать своими руками деревообрабатывающий токарный станок совсем несложно — мы поделились с вами простыми решениями, которые под силу реализовать каждому мастеру.
Машинный чертеж – Технический чертеж
Чертежник должен уметь понимать значение каждой линии на машинном чертеже. Он также должен понимать основную терминологию и лексику, используемую в связи с машинными чертежами.
Машинные чертежи компонентов могут включать любые геометрические принципы и конструкции, описанные в этой книге, а также принятые стандарты чертежей, охватываемые BS 8888.
Рисунок 7.15 иллюстрирует многие функции, обнаруженные на чертежах машины, а в примечаниях, которые следуют ниже, даются дополнительные пояснения и комментарии к редакциям.
ф II II
Пример алмазной накатки
Пример прямой накатки
Пример алмазной накатки
Угловой размер – обратите внимание, что круговая размерная линия берется из пересечения центральных линий элементов. Острие стрелки – острие стрелки должно касаться линии или поверхности проекции, оно должно быть аккуратным и легко читаемым и обычно имеет длину не менее 3 мм.
Вспомогательный размер – размер, указанный в информационных целях, но не используемый в фактическом производственном процессе.
Бобышка – выступ, обычно круглой формы в поперечном сечении, часто встречается на отливках и поковках. Бобышка вала может обеспечивать дополнительную опору подшипника, например, или бобышка может использоваться на тонкой литой поверхности для увеличения ее толщины с целью приспособления к резьбе винта. Центральная линия – длинная пунктирная узкая линия, которая используется для обозначения осей отверстий, компонентов и круглых деталей. Длинная штриховая пунктирная широкая линия – используется для обозначения поверхностей, которые должны соответствовать специальным спецификациям и которые отличаются от остальной части компонента.
Фаска – фаска обрабатывается для удаления острого края. Угол обычно составляет 45 °. Часто называется скошенной кромкой. Канавка стопорного кольца – канавка для стопорного кольца. Стопорное кольцо может быть изготовлено из проволоки, листа или пластины из пружинной стали, подвергнутых закалке и отпуску и примененных в сборке
обеспечивает внутреннюю или внешнюю силу для размещения компонента 13 внутри отверстия или корпуса.
9 Отверстие с зазором – термин, используемый в сборке для описания конкретного отверстия, которое немного больше и очищает болт или шпильку, проходящую через него.14
10 Зенковка – отверстие с зенковкой можно использовать для размещения гайки или головки болта, чтобы она не выступала над поверхностью. Он обработан так, чтобы нижняя поверхность большего отверстия была перпендикулярна оси 15 отверстий.
11 Зенковка – Отверстие с конической выемкой 16 для размещения головки заклепки или винта, так чтобы головка лежала на том же уровне, что и окружающая поверхность.
12 Плоскость сечения или плоскость сечения – это альтернативные термины, используемые для определения положений плоскостей, из которых 17 проецируются отметки и планы сечения.
Размерная линия – это узкая непрерывная линия, которая по возможности размещается за пределами контура объекта. Стрелки касаются линий проекции. Размер не касается линии, а располагается по центру над ней. Увеличенный вид – если детали очень малы или недостаточно места для размеров или примечаний, можно нарисовать частичный вид с увеличенной шкалой размеров.
Круглый – этот термин часто используется для описания внешнего радиуса.
Скругление – это термин, обозначающий радиусы внутренних углов.Часто встречается на отливках, где его функция заключается в предотвращении образования трещин под напряжением, которые могут возникать из-за острых углов. В местах пересечения трех поверхностей на отливке радиусы скругления будут сферическими.
Фланец– это термин для описания выступающего обода или кромки, которые используются для придания жесткости или для
.крепление. В данном примере просверлено отверстие под винты с потайной головкой.
18 Штриховка – обратите внимание, что штриховка компонента на плоскости сечения выполняется узкими непрерывными линиями под углом 45 °.Расстояние между линиями штриховки зависит от размера компонента, но не должно быть меньше 4 мм.
19 Скрытая деталь – обозначена узкой пунктирной линией. Штрих 3 мм и промежутки 2 мм имеют разумные пропорции.
20 Накатка – Обработка поверхности с квадратным или ромбовидным узором. Может использоваться в декоративных целях или для улучшения сцепления.
21 Выноска. Выноски используются для обозначения областей применения размеров или примечаний и отображаются в виде узких непрерывных линий, оканчивающихся стрелками или точками.Стрелка всегда должна заканчиваться на линии; точки должны быть в пределах контура объекта.
22 Локальный раздел – Локальный раздел может быть нарисован, если полный раздел или половина раздела неудобны. Локальный излом вокруг разреза представляет собой сплошную узкую неправильную линию.
23 Обрабатывающий центр – точно просверленное отверстие с хорошей чистовой обработкой на каждом конце детали, которое позволяет размещать заготовку во время операции обработки на токарном станке.
24 Символ обработки – если требуется указать, что конкретная поверхность должна быть обработана, без дальнейшего определения фактического процесса обработки или чистоты поверхности, к линии, представляющей поверхность, добавляется символ, перпендикулярный линии.Включенный угол символа составляет примерно 60 °. К чертежу, где все поверхности должны быть обработаны, может быть добавлено общее примечание:
25 Чистота поверхности – если поверхность должна быть обработана и требуется текстура поверхности определенного качества, то к чертежу добавляется стандартный символ обработки с номером, который дает максимально допустимую шероховатость, выраженную численно в микрометрах.
26 Чистота поверхности – если требуются максимальная и минимальная степени шероховатости, то обе цифры добавляются к символу обработки.
27 Диаметр делительной окружности – окружность, проходящая через центры ряда отверстий. Круг нарисован длинной пунктирной узкой пунктирной линией.
28 Выемка – полый элемент, который используется для уменьшения общего веса компонента. Также можно использовать выемку для установки ответной детали.
29 Прорезь – термин, альтернативный обозначению прорези, паза, канала или отверстия.
30 Втулка – это круговой выступ, который обрабатывается для обеспечения точного расположения между собранными компонентами.
31 Шлицевой вал – вращающийся элемент, который может передавать крутящий момент на сопряженный компонент. Сопрягаемый компонент может перемещаться в осевом направлении вдоль шлицев, которые по внешнему виду похожи на шпоночные пазы на поверхности шпинделя.
32 Квадрат – Диагональные линии показывают плоскую поверхность квадрата и различают вал круглого и квадратного сечения. Такое же соглашение используется для обозначения лыски гаечного ключа на валу.
33 Конус – термин, используемый в связи с уклоном или уклоном.Скорость конуса также может определять коническую форму.
34 Символ конуса – символ конуса показан здесь в прямоугольном поле, которое также включает в себя информацию о размерах, касающуюся степени конусности по диаметру.
35 Наружная резьба – альтернативный термин, используемый для обозначения наружной резьбы. На рисунке показано условное обозначение резьбы.
36 Внутренняя резьба – альтернативный термин для обозначения внутренней резьбы. На приведенном здесь рисунке показаны условные обозначения для резьбового отверстия с внутренней резьбой.
37 Выточка – круговая канавка в нижней части резьбы, позволяющая производить сборку без столкновения со скругленным углом.Обратите внимание на иллюстрацию, что элемент можно навинтить по резьбе M20 до конической части.
38 Шпонка Вудраффа – шпонка, имеющая форму круглого диска, который входит в паз для круглой шпонки конического вала. Шпонка может поворачиваться в круглой выемке, чтобы приспособиться к любой конусности ответной ступицы.
39 Ключ – небольшой металлический блок квадратного или прямоугольного сечения, который устанавливается между валом и ступицей и предотвращает движение по окружности.
40 Шпоночная канавка – прорезь в валу или ступице для установки шпонки.
Читать здесь: Масштаб для чертежей
Была ли эта статья полезной?
чертежей машиниста – строительные нормы и правила
Машинисты обычно используют прецизионные станки, такие как токарные, расточные, фрезерные станки, а также цилиндрические или плоскошлифовальные станки для формования таких материалов, как сталь, латунь, железо, бронза, алюминий, титан и пластмассы, а также для производства компонентов в соответствии со спецификациями клиентов. .
Детальный чертеж обработки содержит всю информацию, необходимую для изготовления конкретной детали, и используется для обработки отливки в готовую деталь.Обычно на каждом чертеже подробно описывается только одна часть. Детали обработки обычно используются при обработке черновой детали в готовую деталь; на чертеже детали обработки будут указаны обрабатываемые поверхности, отверстия для болтов и их расположение, контрольные точки, геометрические размеры и допуски (GD & T) и другие обрабатываемые области. Чертежи обработки содержат важную информацию для традиционного станка или машиниста с ЧПУ (с числовым программным управлением), которая может включать углы, контрольные точки, качество поверхности и т. Д.После завершения эта обработанная деталь должна соответствовать и подходить к другим обрабатываемым деталям, как определено на сборочном / подробном чертеже. Детали, которые обычно не нужно вытягивать, являются стандартными деталями – теми, которые можно купить у внешнего источника с меньшими затратами, чем затраты на производство. Такие детали могут включать винты, гайки, болты, ключи и штифты. Хотя их не нужно рисовать, они, тем не менее, должны быть включены как часть информации на каждом листе. Считыватель чертежей должен четко понимать форму, размер, материал и качество поверхности детали, необходимые производственные операции и пределы точности, которые должны соблюдаться на чертеже детали.На рис. 7.12 приведен пример типового чертежа детали.
Обычно чертежи деталей содержат информацию, которую можно разделить на три группы:
1. Описание формы: описывает и объясняет или изображает форму компонента
2. Изображение размера: показывает размер и расположение элементов компонента
3. Технические характеристики: относится к таким позициям, как материал и отделка
Детальные чертежи машин должны включать всю или большую часть следующей информации:
• Виды компонента, необходимые для визуализации
• Материал, из которого изготовлен компонент
• Размеры
• Общие примечания и особая информация о производстве
• Идентификация названия проекта, детали и номера детали
• Имя или инициалы тех, кто работал над рисунком или с ним
• Любые технические изменения и соответствующая информация
- Рисунок 7.12 Типичный чертеж детали машины (источник: Ближневосточный технический университет).
Полный сборочный чертеж – это представление продукта или конструкции вместе, показывая различные компоненты в их рабочих положениях. Отдельные компоненты поступают в сборочный цех после завершения процесса изготовления, где собираются вместе по сборочным чертежам.
Многие продукты состоят из более чем одной части или компонента. Список материалов (BOM) или список компонентов часто включается в сборочный чертеж, чтобы облегчить сборку, а также необходимые размеры и маркировку компонентов (Рисунок 7.13). Трехмерное изображение полностью собранной единицы поможет читателю понять окончательную форму сборки. Виды спереди, сбоку и сверху могут иметь решающее значение для сообщения читателю размеров или форм. Если сборочный чертеж на самом деле является одним из нескольких узлов, это должно быть указано на печати в основной надписи или спецификации. Перемещения компонентов на чертеже сборочной детали следует обозначать пунктирными линиями.
- Рисунок 7.13 Сборочный чертеж в разрезе с таблицей спецификаций (источник: Инженерный колледж, Университет штата Огайо).
Сборочные чертежи бывают различных типов и версий, в том числе:
• Макетные сборочные чертежи, изначально использованные при разработке нового продукта.
• Сборочные чертежи в разобранном виде, наглядно показывающие детали, расположенные в правильном порядке сборки, которые можно найти в каталогах оборудования, предназначенных для домовладельцев или поставщиков для заказа деталей (Рисунок 7.14).
• На схемах сборочных чертежей используются условные обозначения и они используются для обозначения примерного расположения и / или последовательности компонентов, которые необходимо собрать или разобрать.
• Рабочие сборочные чертежи имеют размеры и отмечены. Применительно к очень простым продуктам они могут выступать в качестве альтернативы детальным чертежам.
• Монтажно-сборочные чертежи используются, чтобы показать, как устанавливать крупные компоненты оборудования.
Как упоминалось ранее, сборочный чертеж – это чертеж различных частей машины или конструкции в их относительных рабочих положениях.Сборочный чертеж по существу передает законченную форму продукта, а также его общие размеры, взаимное расположение различных частей и функциональную взаимосвязь его компонентов. Когда все детали изготовлены с использованием соответствующих чертежей обрабатываемых деталей –
- Рис. 7.14A Сборочный чертеж в разобранном виде, типичный для чертежей в каталогах машинного оборудования, показывающий различные компоненты, расположенные в их правильном порядке сборки (источник: StoneAge, Inc. .).
На сборочном чертеже представлена информация, необходимая устройству считывания печати для сборки компонентов. Спецификация, которая в основном представляет собой список в виде таблицы, может быть размещена либо на сборочном чертеже, либо на отдельном листе. В списке содержится важная информация, такая как номера деталей, названия, количества, номера чертежей деталей материалов, а иногда и размеры запасов сырья и т. Д. Термин «спецификация материалов» обычно используется в структурных и архитектурных чертежах, тогда как термин « перечень деталей »используется в практике машинного волочения.
Трехмерное изображение полностью собранной единицы помогает читателю визуализировать окончательную форму сборки (рис. 7.15). Виды спереди, сбоку и сверху могут потребоваться, чтобы сообщить читателю размеры или форму. Если этот сборочный чертеж на самом деле является одним из нескольких чертежей подсборки, на распечатке это должно быть указано в основной надписи или спецификации.
Аналогичным образом, специалисту по техническому обслуживанию обычно требуются сборочные чертежи на рабочем месте, чтобы оценить наилучшую последовательность демонтажа конкретного оборудования, чтобы найти детали, которые должны быть ас-
- Рис.14B Сборочный чертеж в разобранном виде и фотография компенсатора Flexmaster (источник: Snyder Industries, Inc.).
болты или крепежные болты из тех, которые должны быть сняты, а также предоставить подробную информацию о компонентах, разобранных для ремонта. Наконец, технику необходимо точно определить правильное расположение компонентов при повторной сборке.
Клиенты, которые имеют дело с потребительскими товарами, такими как электронные товары, также обычно требуют использования чертежей САПР с разнесением деталей, чтобы помочь понять взаимосвязь между собранными деталями.Детализированные чертежи незаменимы для ряда отраслей обрабатывающей промышленности. При создании сборочных чертежей включаются проверки критических пересечений, чтобы гарантировать, что вся сборка интегрирована, что позволяет сэкономить огромное количество времени и средств на этапе создания прототипа.
Компьютерное черчение значительно экономит время при создании сборочного чертежа. Сегодня существует большое количество сложных программ и оборудования САПР, и подавляющее большинство производителей теперь используют эти программы для возмещения высоких начальных производственных затрат.Хотя многие сборочные чертежи не требуют размеров, могут быть включены общие размеры и расстояния между центрами или от части к части различных деталей, чтобы прояснить взаимосвязь частей друг с другом. Однако самое главное, чтобы сборочный чертеж был легко читаемым и не перегружен деталями.
Использование программ САПР также позволяет объединять детали отдельных компонентов для создания сборочного или рабочего чертежа компонента (ов). С помощью систем CAD можно создавать трехмерные (3-D) модели, которые позволяют накладывать изображения и графически измерять зазоры.Когда детали были спроектированы или нарисованы неправильно, ошибки часто будут выделяться, чтобы можно было внести соответствующие исправления. Это повышает эффективность составителя чертежей и помогает сделать детали окончательного отпечатка точными, а полученные детали будут функционировать должным образом.
Информация, обычно необходимая для общих сборочных чертежей, включает:
• Детали вытягиваются в рабочем положении
• Перечень деталей (или ведомость материалов), включая номер позиции, описательное название, материал и количество, необходимое на единицу машины
• Выноски с выносками, нарисованными вокруг номеров деталей
• Механические и сборочные операции и критические размеры, связанные с работой станка
Этапы создания сборочного чертежа включают следующее:
1.Проанализируйте геометрию и размеры различных деталей, чтобы понять этапы сборки и общую форму объекта.
2. Выберите соответствующий вид объекта.
3. Выберите основные компоненты – компоненты, которые требуют сборки из нескольких частей.
4. Нарисуйте вид основных компонентов в соответствии с выбранным направлением обзора.
5. Добавьте подробные виды остальных компонентов в их рабочих положениях.
6. Добавьте позиции, примечания и размеры по мере необходимости.
7. Создайте спецификацию.
Сборочные чертежи могут требовать одного, двух, трех или более видов, хотя они должны быть сведены к необходимому минимуму. Следует выбрать хорошее направление обзора, которое представляет все (или большинство) деталей, собранных в их рабочем положении.
Рис. 7.15. Диаграмма, показывающая, как несколько частей сочетаются друг с другом, а также перечень материалов и графическое изображение собранного объекта (источник: Инженерный колледж Университета штата Огайо).
1. ФОТО 2. В РАЗОБРАННОМ СОСТОЯНИИ 3. ИНФОРМАЦИЯ
Рис. 7.15. Диаграмма, показывающая, как несколько частей сочетаются друг с другом, а также перечень материалов и графическое изображение собранного объекта (источник: Инженерный колледж, Университет штата Огайо).
При сопряжении деталей двумя основными факторами являются чистовая обработка поверхности и допуск (особенно размер и геометрия). Под чистовой обработкой подразумевается степень шероховатости поверхности. Его основное предназначение – контроль точности позиционирования и плотности между сопрягаемыми частями.Другая цель – уменьшить трение, особенно для частей, которые движутся относительно других частей.
Читать здесь: Темы
Была ли эта статья полезной?
Машиностроение: машинный чертеж
| Добавить заголовок |
(а) Чертеж
(б) Технический чертеж
(c) Художественный рисунок и
(d) Машинный чертеж.
Решение.
а) Рисование – Рисование может быть определено как представление объекта систематические линии. Обычно слово «рисунок» выражает графическое изображение, в котором объект представлен так, как его видят глаза. А графический вид показывает только внешний вид объекта.
(б) Инженерный чертеж – Инженерный чертеж – это графический язык, который есть свои правила. Дает полное описание объекта или часть машины в отношении формы, размера и всех других внутренних деталей из которые он может быть построен или изготовлен.
(c) Художественный рисунок – это искусство изображения объекта художника в соответствии с его воображением или удерживая объект перед собой таким как живопись, рекламный щит и др.
(г) Машинный чертеж – Машинный чертеж может быть определен как представление детали машины или машины по линиям в соответствии с определенным набором правила. Машинный чертеж обычно дает все внешние и внутренние детали детали машины, из которой она может быть изготовлена.В символы обработки, допуски, спецификация материалов и т. д. указаны на рисование. Относительное положение различных компонентов и сделать сборочный чертеж. IS: 696-1972 – это код BIS. для машинного рисования.
Пример 1.2 Определите следующее:
(а) Сборочный чертеж
(ii) Чертеж детали
(c) Рабочий чертеж
(d) Каталожный чертеж
(e) схематический чертеж и
(t) Патентный рисунок.
Решение.
а) Сборочный чертеж – сборочный чертеж показывает весь полный чертеж данная машина с указанием взаимного расположения различных компонентов собраны вместе.
(б) Чертеж детали – чертеж детали показывает количество видов каждого отдельного часть машины для облегчения ее изготовления. Он должен дать все размеры, пределы, допуски и специальная отделка; если есть.
(c) Заводской чертеж – Заводской чертеж включает чертеж детали, сборку и полная сборка изделия для изготовления.
(d) Чертеж каталога. Чертеж каталога показывает только контуры сборочного чертежа в целях иллюстрации.
(е) Схематический чертеж – схематический чертеж представляет собой упрощенную иллюстрацию. машины или системы, заменив все элементы их соответствующими условные представления, чтобы понять принцип работы.
(J) Патентный чертеж – Патентный чертеж дает правильное и полное особенности новой технологии или инновации, принятой для машины или система.Рисунки имеют наглядный характер и не требуют пояснений, но не пригоден для производственных целей.
Пример 1.3 Каковы стандартные размеры чертежных листов? Нарисуйте макет чертежного листа.
Решение. Стандартные размеры чертежных листов приведены в таблице 1.1.
Внешний вид чертежного листа показан на рис. 1.1.
Пример 1.4. Какие типы масштабов используются в машинном черчении? Укажите стандартные масштабы.
Решение.
В машинном черчении используются различные типы шкал:
.1. Полная шкала
2. Уменьшенный масштаб. и
3. Увеличенный масштаб.
Стандартные шкалы приведены в таблице L2.
Решение. Основные требования к надписи –
.1. Разборчивость 2. Единообразие 3. Легкость написания и 4. Быстрота исполнение. Одинарные буквы соответствуют этим требованиям и повсеместно используется. Все буквы должны быть заглавными, кроме нижних. Для сокращений в международном использовании принимаются регистровые буквы.Хорошо надпись должна соответствовать однородности толщины, стиля, объема, размера и интервал.
(a) Современный римский – см. рис. 1.2.
(b) Коммерческая готика – см. рис. 1.3.
(c) Вертикальные одинарные буквы – см. рис. 1.4.
Пример 1.5 Укажите стандартную высоту букв.
Ответ Стандартная высота букв, указанная BIS, приведена в таблице 1.4.
Таблица 1.4 Стандартная высота букв.
Пример 1.6 Зачем нужно условное представление компонентов машины? Как условно представлены компоненты машин?
Решение. Когда полный чертеж компонента машины требует много времени или пространство, его можно нарисовать в обычной форме для представления фактического компонент машины. Условное представление различных компонентов приведено в таблице
Таблица 1.5 Условное представление общих функций.
Пример 1.7 Как условно представлены различные материалы?
Решение. А различные материалы используются для изготовления деталей машин. это поэтому предпочтительнее следовать разным условным обозначениям секционной футеровки. для различных материалов, как указано в таблице 1.6.
Таблица 1.6 Условное представление материалов
Пример 1.8 Что вы понимаете под измерением? Какие бывают размеры?
Решение.Каждый рисунок, помимо изображения истинной формы объекта, должен содержать
это точная длина, ширина, высота, размеры и положение отверстий, канавок, и т. д. Порядок представления этой информации на листе чертежа называется расчетом размеров. Линии, символы, цифры и примечания используются для с этой целью.
На чертеже должны быть показаны два типа размеров:
j) Размер или функциональный размер и
(ii) Расположение или исходные размеры, обозначенные буквами S и L соответственно.Размер
Размер указывает размер, такой как длина, ширина, высота, диаметр и т. д.
Размер расположения показывает расположение или точное расположение различных конструкций
детали внутри объектов.
На рис. 1.6 показаны габариты и размеры расположения.
Пример 1.9. Какие бывают типы размерных линий? Объясните различные размерные линии с помощью аккуратной схемы.
Решение. Различные типы размерных линий:
1.Размерная линия – это тонкая непрерывная линия, оканчивающаяся стрелкой, касающейся
.контуры, выносные линии или центральные линии.
2. Выносная линия – это тонкая линия, проведенная снаружи и вдоль контура. Есть
Между выносной линией и контуром должен быть зазор около 1 мм.
3. Линия выноски. Линия выноски или указатель – это тонкая линия, соединяющая заметку или
.размерная фигура с элементом, к которому она применяется. Один конец лидера
прекращается либо стрелкой, либо точкой.Острие стрелки касается контура, в то время как точка помещается внутри контура объекта. Другой конец выноски заканчивается горизонтальной линией на нижнем уровне первая или последняя буква примечания.
4. Стрелка – стрелки помещаются на каждом конце размерной линии. Его заостренный конец касается контура, выносной линии или центральной линии. В длина наконечника стрелы должна быть примерно в три раза больше максимальной ширины. В ширину следует выбирать в зависимости от размера рисунка.В треугольник стрелки должен быть полностью закрашен.
Эти различные типы линий показаны на рис. 1.7.
Пример 1.10. Объясните два метода размещения размеров.
Решение. Двумя способами размещения размеров являются:
1. Согласованная система и
2. Однонаправленная система.
1. Выровненная система – в выровненной системе размеры расположены выше размерные линии и могут читаться как снизу, так и с правая часть чертежа, как показано на рис.1.8.
2. Однонаправленная система – В однонаправленной системе все измерения размещаются относительно низа чертежа, независимо от расположение размерной линии. В системе размерность линии разорваны, чтобы вставить их размеры, как показано на рис. 1.9. Этот система предпочтительна для больших чертежей, особенно когда это неудобно чтобы прочитать размер с правой стороны или в любом другом направлении.
Пример 1.11. Объясните следующее:
(а) прогрессивное определение размеров и (б) непрерывное определение размеров.
Решение.
1. Прогрессивные размеры – в этом методе определения размеров все размеры на чертеже показаны от общей базовой линии, как показано на Рис. 1.10. Этот метод позволяет избежать накопительной ошибки.
2. Непрерывное определение размеров – в этом методе размеры располагаются в виде прямая линия. Общий размер размещен за пределами меньшего измерение. Один из меньших размеров обычно не указывается, а именно: наименее важно, как показано на рис.1.11.
Пример 1.12 Укажите общие правила определения размеров.
Решение. При расчете размеров следует соблюдать следующие правила:
1. Следует использовать стандартные размеры букв и цифр.
2. Все размеры должны быть указаны в мм. Использование мм должно быть их можно избежать, сделав общую пометку «Все размеры в мм».
3. По возможности размеры должны быть вынесены за пределы видов.
4. Размерные линии не должны проходить в направлении, указанном заштрихованной областью.
5. Размеры следует снимать по видимым контурам, а не по пунктирным линиям.
6. Размеры должны быть даны от базовой линии, центральной линии, важное отверстие или готовая поверхность, которую можно легко установить.
7. Размеры следует указывать только один раз в одном ракурсе.
8. Габаритные размеры должны быть вынесены за пределы промежуточных размеров.
9. Размеры следует указывать вне разреза.
10.Ноль должен предшествовать десятичной запятой, если размер меньше единицы.
11. Размерная линия не должна пересекаться. Также не должны пересекаться размерные и выносные линии.
12. При наличии нескольких размерных линий меньший размер должен быть ближе к виду.
13. Лидеры нельзя рисовать изогнутыми или делать развязанными руками.
14. Не используйте контуры для размеров.
Пример 1.13. Проиллюстрируйте методы определения размеров общих элементов.
Решение. 1. Диаметр –
В диаметры цилиндра обычно следует указывать в прямоугольном виде предпочтительнее, чем вид, в котором он представлен в виде кругов. Никогда не давай радиус цилиндра. [Рисунок. 1.12 (а)]
(ii) Размеры диаметров должны сопровождаться символом или D или сокращение «DIA» только там, где не очевидно, что размер представляет диаметр.
(iii) Круги должны иметь размеры, как показано на рис. 1.12 (b).
2.Радиусы—
(р) Размеры малых радиусов следует указывать вне контура объект, после которого следует буква R. заканчивают размерную линию радиуса на контуре и без стрелки должен находиться на размерной линии радиуса, касающейся центра [Рис. 1.13 (а)].
(ii) Радиус сферической поверхности должен иметь размеры, как показано на рис. 1.13 (b).
3. Отверстия – расположение отверстий должно быть рассчитано, где это возможно, на виде отверстий сверху, как показано на рис.1.14.
4. Гнутые детали – метод определения размеров гнутых деталей показан на Рис.
.5. Хорды, дуги и углы – хорды, дуги и углы должны иметь размеры, как показано на рис. 1.16 и 1.17.
6. Зенковка и цековка – размеры рассчитываются исходя из максимального диаметра
.и включенный угол, как показано на рис. 1.18.
7. Точечная поверхность – размер точечного отверстия может быть таким, как показано на рис. 1.19.
8.Фаска – фаска определяется длиной и углом на фаске, как показано на рис. 1.20.
9. Винтовая резьба – метрическая винтовая резьба обозначается буквой M, за которой следует внешний диаметр.
10. Конус – конусность определяется как изменение единицы указанной длины. измеряется вдоль оси в случае вала и базовой линии или центра линия в случае плоских деталей, как показано на рис. 1.21.
Машинное черчение и черчение | Инженеры Edge
Связанные ресурсы: разработка
Машинное черчение и черчение
Инженерные чертежи и ресурсы руководства по составлению проектов
Машинное черчение и черчение
К.Л. Нараяна
П. Каннайя
К. Венката Редди
474 страницы
Открытие: машинное черчение и черчение
Требуется бесплатное членство
Введение
Технический специалист может использовать графический язык как мощное средство общения с другими для передачи идей по техническим вопросам. Однако для эффективного обмена идеями с другими инженер должен владеть (i) языком, как письменным, так и устным, (ii) символами, связанными с фундаментальными науками, и (iii) графическим языком.Инженерный чертеж – подходящий графический язык, на котором любой обученный человек может визуализировать требуемый объект. Поскольку инженерный чертеж отображает точное изображение объекта, он, очевидно, передает одни и те же идеи каждому натренированному глазу.
Независимо от языкового барьера, рисунки могут эффективно использоваться в других странах, помимо страны, в которой они подготовлены. Таким образом, инженерный рисунок – универсальный язык всех инженеров.
Инженерный рисунок возник где-то в 500 г. до н.э. при правлении египетского царя Фароса, когда символы использовались для передачи идей среди людей.
TOC
Введение
1.1 Графический язык 1
1.1.1 Общие 1
1.1.2 Важность графического языка 1
1.1.3 Необходимость правильных чертежей 1
1.2 Классификация чертежей 2
1.2.1 Машинный чертеж 2
1.2.2 Производственный чертеж 2
1.2.3 Детальный чертеж 2
1.2.4 Сборочный чертеж 3
Принципы рисования
2.1 Введение 10
2.2 Чертеж 10
2.2.1 Размеры листов 10
2.2.2 Обозначение типоразмеров 10
2.2.3 Основная надпись 11
2.2.4 Границы и рамки 11
2.2.5 Центрирующие метки 12
2.2.6 Метрическая эталонная градация 12
2.2.7 Система отсчета сетки (зонирование) 13
2.2.8 Метки обрезки 13
2.3 Весы 13
2.3.1 Обозначение 13
2.3.2 Рекомендуемые весы 13
2.3.3 Спецификация весов 13
2.4 Строки 14
2.4.1 Толщина линий 15
2.4.2 Порядок приоритета совпадающих линий 16
2.4.3 Окончание линий выноски 17
2.5 Надпись 18
2.5.1 Размеры 18
2.6 Разделы 19
2.6.1 Штриховка секций 20
2.6.2 Режущие плоскости 21
2.6.3 Измененная или удаленная статья 23
2.6.4 Половина секции 24
2.6.5 Местный отдел 24
2.6.6 Расположение последовательных секций 24
2.7 Условное представление 24
2.7.1 Материалы 24
2.7.2 Компоненты машины 24
2.8 Определение размеров 25
2.8.1 Общие принципы 25
2.8.2 Метод исполнения 28
2.8.3 Прекращение действия и указание происхождения 30
2.8.4 Методы указания размеров 30
2.8.5 Расположение размеров 32
2.8.6 Особые показания 33
2.9 Стандартные сокращения 37
2.10 Примеры 38
Ортографические проекции
3.1 Введение 43
3.2 Принцип первого угла проекции 43
3.3 метода получения ортогональных изображений 44
3.3.1 Вид спереди 44
3.3.2 Вид сверху 44
3.3.3 Вид сбоку 44
3.4 Представление просмотров 45
3.5 Обозначение и относительное расположение видов 45
3.6 Расположение объекта 46
3.6.1 Скрытые линии 47
3.6.2 Криволинейные поверхности 47
3.7 Выбор ракурсов 47
3.7.1 Чертежи в одном виде 48
3.7.2 Чертежи в двух проекциях 48
3.7.3 Чертежи с тремя видами 49
3.8 Развитие отсутствующих просмотров 50
3.8.1 Построение обзора слева из двух данных видов 50
3.9 Интервал между видами 50
3.10 Примеры 51
Виды в разрезе
4.1 Введение 64
4.2 Полный раздел 64
4.3 Половина секции 65
4.4 Вспомогательные секции 66
4.5 Примеры 67
Крепежные детали резьбовые
5.1 Введение 77
5.2 Номенклатура винтовой резьбы 77
5.3 формы резьбы 78
5.3.1 Другие профили резьбы 79
5.4 Серия резьбы 80
5.5 Обозначение резьбы 81
5.6 Многозаходная резьба 81
5.7 Правая и левая резьба 81
5.7.1 Стяжная гайка 82
5.8 Представление потоков 82
5.8.1 Изображение деталей с резьбой в сборке 84
5.9 Болтовое соединение 85
5.9.1 Методы вытяжки гайки с шестигранной головкой (головка болта) 85
5.9.2 Метод вытяжки квадратной гайки (головки болта) 87
5.9.3 Болты с шестигранной и квадратной головкой 88
5.9.4 Шайбы 89
5.9.5 Болты других форм 89
5.9.6 Орехи других форм 91
5.9.7 Винты с головкой под ключ и крепежные винты 92
5.9.8 Установочные винты 93
5.10 Запорные устройства для гаек 94
5.10.1 Контргайка 94
5.10.2 Блокировка с помощью шплинта 95
5.10.3 Фиксация замковой гайкой 95
5.10.4 Контргайка Wile’s 96
5.10.5 Блокировка установочным винтом 96
5.10.Шестигранная гайка 96
5.10.7 Блокировка винтом 96
5.10.8 Блокировка пластиной 97
5.10.9 Блокировка пружинной шайбой 97
5.11 Фундаментные болты 98
5.11.1 Болт с проушиной 98
5.11.2 Болт изогнутого фундамента 98
5.11.3 Болт для фундамента 98
5.11.4 Фундаментный болт Льюиса 99
5.11.5 Фундаментный болт 100
Шпонка, шплинты и штифты
6.1 Введение 103
6.2 Ключи 103
6.2.1 Седельные ключи 103
6.2.2 Утопленные ключи 104
6.3 Пружинные шарниры 109
6.3.1 Плинтус со стяжкой 111
6.3.2 Пружинное соединение с головкой под торцевой ключ 111
6.3.3 Пружинное соединение с шипом 111
6.4 Штифтовые соединения 112
6.4.1 Поворотный сустав 113
Муфта вала
7.1 Введение 115
7.2 Жесткие муфты 115
7.2.1 Муфты с муфтой или муфтой 115
7.2.2 Фланцевые соединения 117
7.3 гибких муфты 119
7.3.1 Фланцевая муфта с втулкой и пальцем 119
7.3.2 Компрессионная муфта 120
7.4 Отсоединяющие муфты 120
7.4.1 Кулачковая муфта 120
7.4.2 Конусная муфта 122
7.5 Невыровненные муфты 123
7.5.1 Универсальная муфта (шарнир Hooke) 123
7.5.2 Муфта Oldham 124
7.5.3 Амортизирующая муфта 125
Соединения труб
8.1 Введение 127
8.2 Соединения для паровых труб 127
8.2.1 Соединения для чугунных труб 128
8.2.2 Соединения для медных труб 129
8.2.3 Соединения для труб из кованого железа и стали 130
8.3 Соединения для гидравлических труб 130
8.3.1 Гнездо и гладкое соединение 131
8.3.2 Фланцевое соединение 131
8.4 Специальные соединения труб 131
8.4.1 Юнион Джойнт 131
8.4.2 Деформационный шов 133
8.5 Фитинги 134
8.5.1 Фитинги GI 135
8.5.2 Трубные фитинги CI 136
8.5.3 Трубы и фитинги из ПВХ 136
8.6 Схема расположения труб 140
Шкивы
9.1 Введение 142
9.2 Шкивы с ременным приводом 142
9.2.1 Шкивы с плоским ремнем 142
9.2.2 Шкивы клинового ремня 145
9.2.3 Канатный шкив 147
Заклепочные соединения
10.2 Заклепки и клепки 150
10.2.1 Заклепка 150
10.2.2 Клепка 150
10.2.3 Конопатка и фуллеринг 151
10.3 Головки заклепок 151
10.4 Определения 151
10.4,1 Участок 151
10.4.2 Маржа 152
10.4.3 Цепная клепка 152
10.4.4 Зигзагообразная клепка 152
10.4.5 Шаг между рядами 152
10.4.6 Шаг по диагонали 152
10.5 Классификация заклепочных соединений 152
10.5.1 Конструкционные соединения 152
10.5.2 Соединения котла 154
Соединения сварные
11.1 Введение 161
11.2 Сварные соединения и символы 161
11.2.1 Расположение символов сварных швов на чертежах 162
11.2.2 Условные обозначения 166
11.2.3 Расположение сварных швов 166
11.2.4 Положение стрелки 166
11.2.5 Положение опорной линии 167
11.2.6 Положение символа 167
11.3 Определение размеров сварных швов 168
11.3.1 Размеры угловых швов 168
11.4 Подготовка кромок сварных швов 168
11.5 Чистота поверхности 169
11.6 Правила, которые необходимо соблюдать при нанесении символов 169
11.7 Обозначения процесса сварки (сокращения) 171
11.8 Примеры 171
Подшипники
12.1 Введение 176
12.2 Подшипники скольжения 176
12.2.1 Подшипники скольжения 176
12.3 Роликовые (антифрикционные) подшипники 183
12.3.1 Радиальные подшипники 184
12.3.2 Упорные подшипники 185
Цепи и шестерни
13.1 Введение 189
13.2 Цепные передачи 189
13.3 Роликовые цепи 189
13.4 Перевернутый зубец или бесшумные цепи 190
13.5 звездочек 190
13.6 Конструкция приводов роликовых цепей 190
13,7 Шестерни 191
13.8 Типы шестерен 191
13.9 Номенклатура передач 191
13.10 Профили зубов 192
13.10.1 Эвольвентный профиль зуба 192
13.10.2 Примерное построение профиля зуба 193
13.11 Зубчатые передачи 195
13.11.1 Цилиндрическая зубчатая передача 195
13.11.2 Прямозубое зацепление 195
13.11.3 Цилиндрическая шестерня 196
13.11.4 Цилиндрическая передача 196
13.11,5 Коническая шестерня 196
13.11.6 Коническая передача 197
13.11.7 Червячно-червячная передача (колесо) 197
Приспособление и приспособления
14.1 Введение 200
14.2 Представление детали 200
14.3 Компоненты кондуктора 200
14.3.1 Корпус кондуктора 200
14.3.2 Расположение устройств 201
14.3.3 Зажимные устройства 201
14.3.4 Втулки 201
14.4 Различные типы приспособлений 203
14.4.1 Канальный зажим 203
14.4.2 Ящик-приспособление 204
14.5. Компоненты приспособления 204
14.5.1 Основание приспособления 204
14.5.2 Зажимы 204
14.5.3 Установка блоков 205
14.6 Типы приспособлений 205
14.6.1 Фрезерное приспособление индексируемого типа 205
14.6.2 Токарное приспособление 205
14.6.3 Сварочное приспособление 206
Пределы, допуски и посадки
15.1 Введение 208
15.2 Система пределов 208
15.2.1 Допуск 208
15.2.2 Пределы 208
15.2.3 Отклонение 208
15.2.4 Фактическое отклонение 208
15.2.5 Верхнее отклонение 208
15.2.6 Нижнее отклонение 209
15.2.7 Надбавка 209
15.2.8 Базовый размер 209
15.2.9 Расчетный размер 209
15.2.10 Фактический размер 209
15.3 Допуски 209
15.3.1 Основные допуски 212
15.3.2 Основные отклонения 212
15.3.3 Метод установки предельных размеров (с допуском отдельных размеров) 225
15.4 Подходит 227
15.4.1 посадка с зазором 227
15.4.2 Переходная посадка 227
15.4.3 Посадка с натягом 228
15.5 Допуски формы и положения 232
15.5.1 Введение 232
15.5.2 Вариант формы 232
15.5.3 Вариация позиции 232
15.5.4 Геометрический допуск 232
15.5.5 Зона допуска 232
15.5.6 Определения 232
15.5.7 Указание геометрических допусков на чертеже 234
15.5.8 Индикация контролируемой функции 234
15.5.9 Стандарты, которым следуют в промышленности 235
Шероховатость поверхности
16.1 Введение 242
16.2 Шероховатость поверхности 242
16.2.1 Фактический профиль, Af 243
16.2.2 Эталонный профиль, Rf 243
16.2.3 Базовый профиль, Df 243
16.2.4 Средний профиль, Mf 243
16.2.5 Высота от пика до впадины, Rt 243
16.2.6 Средний индекс шероховатости Ra 243
16.2.7 Число шероховатости поверхности 243
16.3 Обозначения обработки 245
16.4 Индикация шероховатости поверхности 245
16.4.1 Индикация особых характеристик шероховатости поверхности 246
16.4.2 Индикация припуска на обработку 248
16.4.3 Обозначение символов шероховатости поверхности на чертежах 248
Чтение чертежей
17.1 Введение 251
17.2 Примеры 251
17.2.1 Задний инструментальный столб 251
17.2.2 Корпус насоса 252
17.2.3 Крышка коробки передач 254
17.2.4 Паровой запорный клапан 254
17.3 упражнения 257
17.3.1 Корпус червячной передачи 257
17.3.2 Разъем 258
17.3.3 Квадратная стойка для инструмента 259
17.3.4 Приспособление для фрезерования 261
Сборочные чертежи
18.1 Введение 264
18.2 Детали двигателя 265
18.2.1 Сальник 265
18.2.2 Крейцкопф 265
парового двигателя
18.2.3 Крейцкопф 265
18.2.4 Конец шатуна парового двигателя 265
18.2.5 Конец шатуна судового двигателя 267
18.2.6 Поршень 270
18.2.7 Узел радиального двигателя 271
18.2.8 Эксцентрик 273
18.2.9 Роторный шестеренчатый насос 273
18.2.10 Воздушный клапан 276
18.2.11 Топливная форсунка 276
18.2.12 Однодисковое сцепление 276
18.2.13 Многодисковая фрикционная муфта 279
18.3 Детали и принадлежности станков 284
18.3.1 Одиночный резцедержатель 284
18.3.2 Квадратная стойка для инструмента 284
18.3.3 Блок заслонки 285
18.3.4 Слайд 287
для формообразующей головки инструмента
18.3.5 Токарный станок Задняя бабка 289
18.3.6 Фрезерный станок Задняя бабка 289
18.3.7 Вращающийся центр 291
18.3.8 Плавающий держатель развертки 294
18.3.9 Машинные тиски 294
18.3.10 Поворотные машинные тиски 294
18.3.11 Сверлильный кондуктор 298
18.3.12 Шаблонное приспособление для индексирования 299
18.3.13 Самоцентрирующийся патрон 299
18.3.14 Четырехкулачковый патрон 299
18.4 Клапаны и крепления котла 303
18.4.1 Задвижка 303
18.4.Запорный клапан с 2 винтами 306
18.4.3 Обратный клапан (легкий режим) 306
18.4.4 Обратный клапан 306
18.4.5 Воздушный кран 310
18.4.6 Выпускной кран 310
18.4.7 Обратный клапан подачи 310
18.4.8 Клапан сброса давления 314
18.4.9 Рычажный предохранительный клапан 315
18.4.10 Пружинный предохранительный клапан 318
18.4.11 Предохранительный клапан Рамсботтома 318
18.5 Прочие детали 321
18.5.1 Головка и гладкое соединение 321
18.5.2 Поворотный сустав 322
18.5.3 Защищенная фланцевая муфта 323
18.5.4 Фланцевая муфта с втулкой и пальцем 323
18.5.5 Муфта Олдхема 324
18.5.6 Универсальная муфта 326
18.5.7 Пламмер 327
18.5.8 Поворотная опора 329
18.5.9 Подшипник ступеньки 329
18.5.10 С-образный зажим 331
18.5.11 Крюк крановый 332
18.5.12 Клиноременная передача 334
18.5.13 Домкрат винтовой 335
18.5.14 Тиски 335
18.5.15 Редуктор скорости 335
Чертежи деталей
19.1 Введение 355
19.2 Детали двигателя 356
19.2.1 Шатун бензинового двигателя 356
19.2.2 Конец шатуна судового двигателя 357
19.2.3 Конец шатуна парового двигателя 357
19.2.4 Свеча зажигания 357
19.2.5 Крейцкопф парового двигателя 357
19.2.6 Автомобильная коробка передач 362
19.2.7 Эксцентрик с разъемным шкивом 366
19.3 Детали и принадлежности для станков 366
19.3.1 Стойка для инструмента 366
19.3.2 Опора суппорта токарного станка 366
19.3.3 Редуктор скорости токарного станка 368
19.3.4 Задняя бабка фрезерного станка 370
19.3.5 Подставка для токарного станка 370
19.3.6 Самоцентрирующиеся тиски 370
19.3.7 Приспособление для фрезерования 376
19.3.8 Индексирующее сверлильное приспособление 376
19.3.9 Инструмент для прокалывания и заглушки 376
19.4 Прочие детали 376
19.4.1 Выпускной кран 376
19.4.2 Запорный клапан пара 381
19.4.3 предохранительный клапан рамсботтома 381
19.4.4 Мембранный регулятор 381
19.4.5 Угловой отвес 381
19.4.6 Роликовое колесо 388
19.4.7 Редуктор скорости 388
Чертежи Peoduction
20.1 Введение 389
20.2 Типы производственных чертежей 389
20.2.1 Детали или чертежи деталей 389
20.2.2 Чертежи рабочих сборок 392
20.2.3 Детальные чертежи и методы изготовления 392
20.3 Пример 393
20.3.1 Шатун бензинового двигателя 393
Компьютерное черчение
21.1 Введение 397
21.2 Обзор 397
21.3 Необходимое оборудование 397
21.3.1 Компьютер 397
21.3.2 Терминал 398
21.3.3 Клавиатура 398
21.3.4 Электронно-лучевая трубка (ЭЛТ) 398
21.3.5 Плоттеры 398
21.3.6 Принтеры 398
21.3.7 Дигитайзеры 398
21.3.8 Локаторы и селекторы 398
21.4 Технология отображения 398
21.4.1 Построение чертежей 399
21.5 Основы операционной системы 399
21.6 Запуск AutoCAD 399
21.6.1 Вызов команд AutoCAD 400
21.6.2 Интерактивные методы 400
21.7 Планирование чертежа 402
21.7.1 Система координат 402
21.7.2 Основные геометрические команды 403
21.7.3 Чертеж Entity-POINT 403
21.7.4 Чертеж Entity-LINE 404
21.7.5 Чертеж Entity-ELLIPSE 405
21.7.6 Чертеж Entity-POLYGON 405
21.7.7 Объект чертежа – ПРЯМОУГОЛЬНИК 406
21.7.8 Чертеж Entity-CIRCLE 406
21.7.9 Элемент чертежа – ARC 407
21.8 Выбор объекта 407
21.8.1 Команды редактирования 408
21.8.2 Команда масштабирования 409
21.8.3 Штриховка и заполнение узором 410
21.8.4 Служебные команды 410
21.9 Типы моделирования 411
21.9.1 2D каркас 411
21.9.2 Трехмерный каркас 411
21.9.3 Моделирование поверхности 411
21.9.4 Твердое моделирование 411
21.10 Обзорная площадка 412
21.10.1 Отображение координат точки V 413
21.11 Просмотр портов 413
21.12 Создание трехмерных примитивов 414
21.12.1 Построение цилиндра 414
21.12.2 Рисование конуса 415
21.12.3 Как нарисовать прямоугольник 415
21.13 Создание композитных твердых тел 415
21.13.1 Создание регионов 415
21.13.2 Твердое моделирование 416
21.13.3 Массовая собственность 416
21.14 Вид в разрезе 416
21.15 Изометрический чертеж 417
21.15.1 Настройка изометрической сетки и привязки 417
21.16 Основные размеры 417
21.16.1 Основы определения размеров 418
21.16.2 Методы определения размеров 418
21.16.3 Линейные размеры 419
21.16.4 Продолжение линейных размеров 419
21.16.5 Пример определения размеров 420
21.17 Ломаная (плоская) 421
21.18 Смещение 422
21.19 Высота и толщина 423
21.20 Изменить опору 424
21.21 Экструзия 424
© Copyright 2000-2021, Engineers Edge, LLC www.engineersedge.com
Все права защищены
Отказ от ответственности | Обратная связь | Реклама
| Контакты
Дата / Время:
Что такое инженерный рисунок | Основы машинного чертежа
Инженерный чертеж – это язык инженеров. Он предназначен для передачи его идей, мыслей и замыслов другим.Чертеж, нарисованный инженером, имеющим инженерные знания, для инженерных целей, является инженерным чертежом. Инженерный чертеж является отправной точкой для всех инженерных отраслей – механической, производственной, гражданской, электротехнической, электронной, коммуникационной, компьютерной, химической, текстильной, транспортной, металлургической, приборостроения, автомобильной, архитектурной, сельскохозяйственной, авиационной, морской, горнодобывающей и т. Д.
Это универсальный графический язык инженеров, на котором говорят, читают и пишут по-своему.У каждого языка есть свои правила грамматики. Инженерный рисунок также имеет свою грамматику в теории проекций, свои идиомы в общепринятой практике, свои пунктуации в типах линий, свои сокращения, символы и свои описания в конструкциях.
Студенты не должны путать инженерный рисунок с художественным. Последний обычно используется художниками в коммерческих целях, например, для рисования, рекламных щитов и т. Д.
Геометрический рисунок:
Геометрический рисунок является основой всех инженерных рисунков.Это предмет, который сложно выучить или преподавать без помощи хорошего учебника. Должна быть достигнута хорошая скорость рисования, потому что в отрасли «время – деньги». В инженерном чертеже большое значение имеют точность, аккуратность и разборчивость.
Геометрический чертеж состоит из:
1. Простой геометрический чертеж и
2. Сплошной геометрический чертеж.
Геометрический рисунок – это искусство изображения геометрических объектов, таких как квадрат, прямоугольник, цилиндр, конус, сфера и т. Д.на листе чертежа.
Плоский геометрический рисунок – это искусство изображения объектов, имеющих два измерения, то есть длину и ширину, такие как квадрат, прямоугольник, четырехугольник и т. Д., На листе чертежа.
Сплошной геометрический рисунок – это искусство изображения объектов трех измерений, то есть длины, ширины и высоты, таких как куб, цилиндр, сфера и т. Д., На листе чертежа. Объяснение технического чертежа
Подробный технический чертеж должен включать следующее:
Подробные чертежи должны содержать информацию, достаточную для изготовления детали.
• Достаточно ортогональных видов: видов, достаточных для адекватного описания компонента.
• Размеры: Должны быть равномерно распределены, структурированы и не дублированы.
• Масштаб: На чертеже должен быть указан масштаб, используемый для размещения компонента на листе чертежа.
• Тип проекции : Третий угол проецирования является обязательным в ENGG1960.
• Стандарт оформления (AS1100): Фактически это отражено в предписанных текстах.
• Имя или заголовок чертежа: Как называется компонент?
• Номер чертежа: Какой номер (внутренняя система) компонента?
• Используемые единицы измерения: мм, м, дюймы, футы и т. Д.
• Допуски: Каковы производственные допуски для каждой части компонента.
• Текстура поверхности (или шероховатость): Насколько гладкой / шероховатой должна быть каждая часть компонента.
• Обработки (покрытия, закалки и т. Д.): Требуются ли для компонента защитные покрытия?
• Ссылка на сборочный чертеж: Во что вписывается мой компонент?
• Материал: Из какого материала изготовлен компонент?
• Составитель (нарисовавший), Проверяющий (проверявший), Утверждающий (утвердивший) и даты
• Зоны: Где на чертеже вы имеете в виду?
• Редакция: Что было изменено, почему и какая редакция представляет собой этот чертеж?
• Размер листа: A4, A3, A2, A1 или A0
• Компания: Школа AMME, Сиднейский университет
• Справочные материалы (например,Лист 1 из 3): Когда требуется более одного листа.
Аренда внештатных услуг по машинному черчению для вашей компании
Мы помогаем компаниям связываться с проверенными специалистами по машинному рисованию для конфиденциальной экспертизы
Как правило, рисунок обычно рассматривается как вид искусства, такой как иллюстрация, анимация или даже наброски – просто подумайте о невероятных эскизах Пикассо. В этом смысле рисунок предназначен для творчества, иллюстрации чего-то в воображении.Рисование, конечно, требует технических навыков, но оно также служит выходом для творческого самовыражения.
Практика машинного рисования действительно имеет некоторые из этих характеристик, но при этом отличается в других отношениях. Возможно, самое главное различие между иллюстрацией и машинным рисунком – это их цель. То есть машинное рисование в основном функционирует как наука, такая как инженерия, а не как средство художественного мастерства.
Всякий раз, когда компании или организации необходимо построить машину любого типа, они используют технические чертежи и услуги машинного чертежа.Люди используют эти рисунки на самых разных этапах производства или производственного процесса. Однако цель остается неизменной на протяжении всей операции. Задача, конечно же, состоит в том, чтобы произвести данную машину как можно более качественно и эффективно. В свою очередь, машина должна выглядеть и функционировать так, как это предполагали инженерные службы и проектировщики САПР. Из-за этого технические чертежи должны быть точными и полными, без каких-либо недостатков в технических характеристиках или деталях.
Учитывая эти требования, производители требуют, чтобы их техническая документация составлялась специалистами по машинному черчению. Специалисты по машинному черчению и составители чертежей должны общаться четко и недвусмысленно. Их чертежи должны включать все, что необходимо для изготовления машины, которая будет построена сборочной линией или группой машин. Таким образом, черчение еще называют «инженерным черчением». Такая фраза может напомнить о более научном характере машинного рисунка по сравнению с его художественными собратьями в иллюстрации или даже живописи.
Таким образом, чертежи машин также должны соответствовать всем отраслевым стандартам, необходимым в данной области. Некоторые стандарты являются местными или национальными, а другие – международными, например Международной организацией по стандартам (ISO). Из-за этого не должно иметь значения, какая компания или страна подготовила документы. Если такие стандарты внедрены, чертежи и проектные документы могут быть прочитаны и интерпретированы людьми во всем мире без каких-либо затруднений или путаницы.
В то время как важно, чтобы машина в целом четко и точно описывалась во всех без исключения чертежных документах, части машины требуют такого же обращения. Таким образом, чертежи машин рассматривают не только машину в целом, но и многие составляющие ее части. Это буквально «гайки и болты» любой конкретной машины. Специалисты по машинному рисованию разрабатывают каждую деталь с такой же научной точностью и вниманием к деталям, как и любую другую деталь.Точность – это название игры.
Наши составители CAD являются экспертами во всем производстве
Как подразумевается, чертежи машин в основном используются на этапе производства компонента или разработки машины. Любой набросок или серия эскизов могут быть использованы для проектирования машины или любой ее части. Эти вытяжки можно использовать во время изготовления машины или любой ее отделки или окончательной сборки в законченное и работающее целое.
Информация, содержащаяся в чертежах машины, необходима на всем пути.В различных точках его можно использовать для настройки станков или инструментов. В других областях эти проекты могут быть использованы (без каламбура) для аудита и инспекции мер контроля качества. Даже отдельные лица или группы в отделах обслуживания или продаж могут использовать чертежи машин в своей работе. Важность таких сервисных документов по машинному черчению трудно переоценить.
Каждый, кто участвует в производстве машины, вероятно, когда-нибудь будет иметь дело с чертежами машины.Это почти неизбежно в производственных предприятиях. При этом в некоторых случаях повышается автоматизация от вытяжки к машине.
В этих случаях сами чертежи машин могут быть переведены в компьютер, который обрабатывает информацию. Это может быть выполнено во многих случаях без необходимости вмешательства человека или интерпретации. Даже в этом случае сами документы должны быть, как всегда, совершенно разборчивыми и недвусмысленными, независимо от того, будет ли их читать, интерпретировать или отображать человек или компьютер.
В конечном итоге чертежи машин состоят из визуальных изображений, схем и границ. Услуги по машинному черчению должны выполнять все чертежи деталей и узлов любой сконструированной машины или изготовленного устройства. Рассмотрим объекты, которые выстилают стены, пол, потолок и столы комнат и офисов по всему миру: посудомоечные машины, фены, холодильники, потолочные вентиляторы, электродвигатели любого типа, компьютерные и фотопринтеры, даже автомобили и самолеты. Все это требует создания чертежей машин и их продажи на рынке.Имея это в виду, довольно легко понять, сколько отраслей и областей используют услуги машинного чертежа для своих производственных нужд. (Подсказка: это все они.)
Как выполняются услуги по машинному черчению?
Специалисты по машинному волочению должны обладать высокой квалификацией в инженерной части данного процесса. Им также требуются опыт и навыки в технической составляющей проектов, над которыми они работают. Фактическая работа по машинному черчению чаще всего создается с использованием таких программ автоматизированного проектирования, как Autodesk AutoCAD для черчения и проектирования.У Autodesk также есть множество других программных пакетов, более подходящих для различных отраслей, таких как архитектура, патентный дизайн или даже 3D-рендеринг. Из-за этого Autodesk стал отраслевым стандартом, в соответствии с которым выполняется большинство услуг по машинному черчению. (Рисование вручную – еще один вариант, хотя и требует гораздо больше времени.)
Независимо от того, как нарисованы чертежи, необходимо выполнить несколько шагов, чтобы получить технические чертежи высочайшего качества.
Для начала конструкторам, инженерам и чертежникам необходимо определить, какие виды являются наиболее важными для производства самой машины. Конечно, это будет зависеть от машины. Например, для бытовых фотопринтеров потребуются чертежи, отличные от промышленных 3D-принтеров. Все технические чертежи должны быть сосредоточены на соответствующем документе, оставляя место для добавления размеров при необходимости. Эти виды могут включать как внешние, так и внутренние аспекты устройства, особенно если определенную область трудно легко измерить.В этом случае, вероятно, также потребуются разрезы и подробные виды.
Кроме того, линии построения понадобятся на каждом виде, независимо от его типа. Они относятся к центру чертежа, а также к тому, как плоскости и линии пересекаются, чтобы указать симметрию в самой машине. Линии построения также используются для определения центра отверстий или круговых узоров на объекте. Конечно, на всех этих этапах необходимы измерения, при этом наиболее важные из них получают приоритет и высший счет.Наряду с этим следует указать размер, расположение и длину всех измерений. Допуски на любые грани, которые могут потребовать большей точности, чем позволяет стандартная точность, также должны быть включены в необходимые чертежи.
В конечном итоге основная надпись будет заполнена любой соответствующей информацией и деталями. Любые требования, выходящие за рамки стандартной практики, например особая отделка различных поверхностей. Наконец, любое удаление заусенцев (это зачистка шероховатой кромки, обычно металлической) должно быть указано в примечаниях к самим техническим чертежам.
Кому нужны услуги машинного волочения?
Как очевидно из приведенного выше описания чертежей машин и того, как работает работа в этой области, почти любая организация или компания, использующая производство каким-либо образом, может использовать услуги машинного чертежа. Эти редакционные документы в основном используются в процессе производства, как обсуждалось ранее. Таким образом, понятно, что эти филиалы компаний будут использовать их больше, чем любые другие. Тем не менее, высшее руководство также, вероятно, должно будет подписать их во многих случаях, особенно в отношении сложных (т.е., «дорогостоящая») инженерия.
Рассмотрим лишь несколько примеров из приведенного выше списка. Для правильной работы электродвигателя требуется множество различных деталей и компонентов. В любом конкретном электродвигателе первичной частью является ротор, который перемещает и вращает вал для обеспечения механической энергии. В свою очередь, в роторе довольно часто устанавливаются проводники, облегчающие прохождение воздуха.
Он взаимодействует с еще одним элементом, называемым статором, для производства фактической энергии, которая перемещает сам вал.Это лишь небольшая часть деталей, необходимых для конструкции электродвигателя. Можно продолжать и продолжать, но суть ясна. Электродвигатель должен иметь подробный чертеж машины, чтобы быть сконструированным и работоспособным. Кроме того, каждая из составных частей электродвигателя также должна иметь свою проектную документацию, и все это должны выполнять опытные техники по чертежам машин.
Чтобы немного подняться по лестнице сложности, рассмотрим другой пример: автомобиль. В автомобилях, конечно же, есть электродвигатели, для которых уже были показаны чертежи машин.Однако, конечно же, автомобиль в целом составляет гораздо больше деталей и компонентов. Каждая из этих отдельных частей требует чертежей машины, которые должны быть сконструированы и собраны в соответствии с конструкцией и назначением.
Без таких технических чертежей сборка станка, независимо от его размера или общей сложности, просто невозможна. Как людям, так и компьютерам нужны чертежи машин для создания и сборки машин и устройств любого типа, будь то отдельный двигатель или целый автомобиль.
Как Cad Crowd может помочь
Привлечение Cad Crowd к вашему проекту по оказанию услуг по машинному черчению означает, что вы можете работать с эксклюзивной группой лучших мировых фрилансеров практически во всех существующих областях инженерии или дизайна.У нас есть сообщество технических чертежников и женщин, дизайнеров и специалистов по машинному черчению по всему миру, имеющих многолетний опыт работы с широким спектром программного обеспечения в самых разных сферах деятельности. Какими бы ни были ваши патентные потребности, Cad Crowd может помочь вам получить именно то, что вам нужно. Мы можем предложить любое решение по оказанию услуг по машинному черчению, независимо от области или объема проекта.
Мы можем помочь вам, используя ряд самых последних программ. Наша сеть состоит из лучших специалистов, использующих современное программное обеспечение для автоматизированного проектирования высочайшего качества.Просто дайте нам знать, если есть конкретное приложение, которое вы хотите, чтобы мы использовали, и мы найдем для вашего проекта идеального художника, дизайнера или инженера, оказывающего услуги по машинному рисованию.
Easy Sewing Machine Карандашный рисунок
Результат изображения для чертежа швейной машины Чертеж швейной машины
Эскиз швейной машины Поиск в Google Чертеж швейной машины
Ручной рисунок швейной машины Набросок вашего запаса Иллюстрация 514331902
Как рисовать чертеж швейной машины Youtube
Эскиз швейной машины Ручной рисунок Изолированный сток Иллюстрация
Чертеж старинной швейной машины на Getdrawings Скачать бесплатно
Швейная машина Рисование вручную эскиз Вектор Иллюстрация
Научитесь рисовать швейную машину Бытовая техника шаг за шагом
Singer Sewing Machine Clipart
Простые швейные проекты для начинающих Швейная машина Рисунок
Шаг 10 Как нарисовать швейную машину
Винтажный чертеж швейной машины в Getdraw ings Free Download
Vectores Imagenes Y Arte Vectorial De Stock Sobre Sewing Machine
Tailor Drawing at Paintingvalley Com Изучите коллекцию из
Научитесь рисовать швейную машину за 6 шагов Рисунок швейной машины
Как сшить юбку-карандаш 12 шагов с Изображения Wikihow
Amazon Com Amazonbasics Набор карандашей для рисования и эскизов 17
4 пенала для карандашей своими руками, которые можно сделать менее чем за 30 минут Руководство по шитью
Как нарисовать части швейной машины Youtube
Рисунок швейной машины в Paintingvalley Com Изучите коллекцию
Значок от Йогешраджа Художник о дизайне вышивки S Ручная вышивка
10 лучших материалов для создания эскизов Независимый
Идеи для простых абстрактных рисунков Идеи для рисования карандашом Карандаш
Amazon Com Raylans 12шт. Красочный эскиз для рисования Угольным карандашом
Карандаш для рисования на машине Silai
Набор цветных карандашей с деревянным стержнем 72 цветов с коробкой для художественного рисования
Как сшить юбку-карандаш 12 шагов с изображениями Wikihow
Доступное длинное квилтинг Машинка
Карандашные рисунки сердечек Рисунки роз и сердечек Сердечки и
Сделать карандашный рулон всего за десять минут Моя кукла делает
50 швейных проектов для начинающих Хобби
3 способа сделать пенал Wikihow
Последний дизайн шеи Карандашный рисунок Вышивка Дизайн шеи Эскиз
Faber Castell 9000 Графитовый рисунок Набор для рисования 12 Карандаш
Цветочный дизайн Рисунок Рисование цветов карандашом Em broidery
Сделайте рулон карандашей всего за десять минут Моя тарелка сделает
Как перенести рисунки вышивания на вашу ткань Badass Cross
Amazon Com Nicpro 6шт Механические карандаши Металлические автоматические
Draft Sew Легкая юбка-карандаш Руководство по шитью своими руками
12 шт., 4 цвета, эскиз, угольные карандаши, офис, школа, творческий
, как рисовать Махатма Ганди, чаркха, или прялка Youtube,
, 20 шт., Hb 2b, карандаш из чистого дерева, эскиз, художественный карандаш для рисования, детский
, создание глаз, Snapdragon Life
, 3 способа сделать пенал Wikihow
Quick Stitch Color Pencil Sketch Triple Run Digital Etsy
Как сделать красивую легкую эластичную юбку-карандаш
Thornton S Art Supply Premium Coloured P Набор для рисования encil 50 шт.
Как рисовать узор спирографа Искусство в круге Учебное пособие по геометрии
Рисунок швейной машины карандашом
Реалистичный рисунок лисы графитовыми карандашами Очень просто для
Amazon Com Caran D Ache Заточная машина для карандашей 455 200
Еще Карандашный рисунок Life Techniques
Как нарисовать собаку Dr Odd Pencil Цветные карандашные рисунки в
Новый продукт Montmarte International Pty Ltd
Рисунок старинной швейной машины на Getdrawings Скачать бесплатно
72 цвета Рисунок Цветным карандашом Профессионалы Художественные карандаши
Essentials For Набор инструментов для создания модных эскизов Нитки
Q Nique 15 Квилтинговые машины
Техника сухой кисти и портретный рисунок
Цветные карандаши Crayola Signature Blend Shade Цветные карандаши 24 карата
Amazon Com Koh I Noor Polycolor Drawing Pencil Pack из 12 шт.
Staedtler Mars Lumograph 100 Рисование Художественный набор для рисования 12 Графит
Техника натюрморта Карандашный рисунок
Балерина Симпатичная мандала Рисунок Design Crafts Design
10 лучших материалов для набросков The Independent
Список лучших материалов для рисования для начинающих Rapidfireart
Рисунок границы на Getdrawings Скачать бесплатно
5 лучших угольных карандашей 2020 года Secretasianman Com
Disney рисует мои идеи Путешествие Disney Pencil Drawing
Простой цветочный рисунок на бумаге Рисунки для вышивания Карандаш
Amazon Com Gultmee Чехлы на передние сиденья автомобиля Автомобиль P rotector Mat
Youth Art Classes Creative Arts Inc Art Studio
Рисование на ручной швейной машине
Axidraw Writing and Drawing Machines
4 пеналов для карандашей своими руками, которые можно сделать менее чем за 30 минут Руководство по шитью
10 Лучший механический карандаш для рисования Обзор 2020 Руководство по покупке
Рисунки роз Карандашный рисунок розы Skytiger На Deviantart
Как сделать сумку для карандашей 9 шагов с изображениями Wikihow
Карандашный рисунок Техники натюрморта
Рисование рисунков с бордюрами Простая ручная вышивка Бордюр сари
Легкое шитье Крышка машины Craftbits Com
Https Www Bernina Com En Us Resources Support Produktkataloge Pdf En Bernina Gesamtkatalog En
Loew Cornell Simply Art Coloured Pe ncils 36pc Createforless
Набор инструментов для рисования из 29 предметов с
Как сшить юбку-карандаш 12 шагов с изображениями Wikihow
Подлинная ручка Marley Sketch Pen C7350 Easy To Cut Paper Pole Sketch
12 Карандаши для рисования Tri Write Карандаши для рисования 2 Hb 12 Box Etsy
Amazon Com Black 12шт Профессия художника Нетоксичный деревянный
Самый продаваемый высококачественный карандаш для рисования углем для художников
Простые карандашные рисунки с цветами
Карандашные рисунки павлинов Легкие карандашные рисунки Рисунок павлина
Сделать карандашный рулон Всего за десять минут моя кукла делает
14 наборов рисунков Art Art Pencil Sketch Pencil Set
Qili Ql C150 150 цветов Деревянные цветные карандаши Художник Живопись маслом в цвете r
Easy Diy Pencil Case A Great Back to School Craft Idea
Простые карандашные рисунки с цветами
Search Q Милый рисунок на швейной машинке Tbm Isch
Graph Gear 1000 Механический чертеж Pentel Of America Ltd
Техника натюрморта Карандашный рисунок
Staedtler Mars Lumograph Black Drawing Pencils Blick Art Materials
Mohanlal Drawing Villan Pencil Drawings Joker Drawings Stencil Art
Theeasygadgets В Твиттере Qupida 0 5 мм Металл Механический
Https Www Bernina Com En Us Ресурсы Поддержка Produktkataloge
Лучший механический карандаш для рисования в 2020 году Обзор Руководство по покупке.


Для этого можно использовать рашпиль, прижимая его плоскостью
Количество оборотов вала таких электродвигателей, а также центробежная сила, которую развивает обрабатываемая заготовка, резко возрастают при уменьшении нагрузки, что может привести к тому, что деталь просто вылетит из патрона и может серьезно травмировать оператора.
Присоединение валов осуществляется посредством сварочного аппарата либо болтов.
Особенно это актуально для тех, кто обрабатывает детали в гаражном помещении, на улице;




.600
.1,59
.2
Руководство по уходу и обслуживанию, КП, 1962, 1966
Г., Новиков В.Ю. Технологическое оборудование машиностроительных производств, 1980