Станок фермер 2: Фермер-2 Станок деревообрабатывающий комбинированный. Паспорт, схемы, описание, характеристики
alexxlab | 12.06.2020 | 0 | Разное
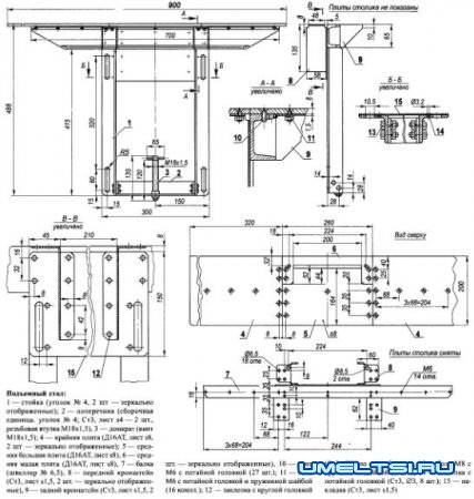
Бытовой деревообрабатывающий станок Фермер-3
Бытовой деревообрабатывающий станок Фермер-3Бытовой стационарный деревообрабатывающий
станок Фермер-3
|
ВОЗМОЖНЫЕ ОПЕРАЦИИ 1. Пиление продольное. 2. Пиление поперечное. 3. Пиление под углом. 4. Фугование. 5. Сверление горизонтальное. 6. Сверление под углом. 7. Долбёжка пазов. 8. Фрезерование концевыми фрезами. 9. Фрезерование конструкционное. 10. Фрезерование декоративное. 11. Выборка пазов. 12. Выборка четверти. 13. Резка металла, пластика и т.д. 14. Заточка металла.
|
Недорогой качественный стационарный станок. Возможна комплектация блоком фазосдвигающих конденсаторов,
для подключения станка на 220В. При этом следует иметь в виду, что мощность упадет до 2,2 кВт.
Для транспортировки станок оборудован четырьмя съемными металлическими ручками. (на фоторгафии демонтированы)
Фуговальный вал оборудован тремя ножами, а не
двумя, как в настольных станках.
|
Характеристики Питание , В……………………………………………………………….380 Мощность, кВт………………………………….………………..3,0 (3-х фазн.) Частота вращения вала, об/мин,………………………………..4000 Ширина фугования, мм…………………….……………………..….250 Глубина фугования мм, макс,……..…..……………………………5 Глубина пиления, мм, макс.,………………………….…………….180
Масса станка, кг, не
более. Габариты, мм, не более……………………………..…..800/800/900 |
Дополнительная комплектация 1. Устройство прижимное “УП-2”. Служит для прижима обрабатываемых заготовок к фуговальному валу. 2. Фреза наборная 40 мм. Служит для конструкционного и декоративного фрезерования и для выборки четверти Продаётся в комплекте с плоскими резцами. В отдельной продаже имеются различные профили фигурных резцов. |
Мельница ФЕРМЕР-2, ОАО «ПЕНЗТЕКСТИЛЬМАШ» Б/У
- Доска объявлений
- Сельскохозяйственная техника и оборудование
- Зерноперерабатывающее оборудование
- Зернодробилки и измельчители
Объявление не актуально!
Мельница ФЕРМЕР-2, ОАО «ПЕНЗТЕКСТИЛЬМАШ»
Местоположение: Иркутская область, Зиминский район, с.
Кимильтей,
ИМУЩЕСТВО РЕАЛИЗУЕТСЯ ТОЛЬКО В ТОМ СОСТАВЕ, В КОТОРОМ ОНО ПРЕДСТАВЛЕНО!
Если Вас заинтересовало данное имущество поможем приобрести с максимальной выгодой для Вас. Цена не окончательна. Покупка регистрируется официально договором от представителя государства. Данный объект продается уже ниже рыночной стоимости. Агентский договор. Договор Купли – Продажи, Вы становитесь собственником на прямую без посредников
ПОЗВОНИТЕ И УЗНАЙТЕ, КАК ПРИОБРЕСТИ МАКСИМАЛЬНО ДЕШЕВО!
Создано 05.03.2019 Изменено 16.04.2019
Дробилка для зерна
Похожие объявления
Мельница
Состояние: Б/У Год выпуска: 2010
Брянск (Россия)
350 000
Мельницу вальцовую ОПМ-06 ” Фермер”
Состояние: Новый Производитель: Украина-Италия (Украина)
В наличии
Саки (Россия)
1 600 000
Мельница Р1 БМВ
Состояние: Б/У Год выпуска: 1993 Производитель: ОАО Мельинвест (Россия)
Нижний Новгород (Россия)
2 300 000
Мельница мвс-2
Состояние: Б/У
Нижний Новгород (Россия)
2 700 000
Интересные статьи партнеров
Как вы думаете, что делает мастер из этого швеллера?
Необычное применение обычного деревянного плинтуса
Оцилиндровка бревна на станке?! Вручную круче получается!
Отзывы о компании Станкофф
Поставка и запуск оптоволоконного лазера с труборезом LF3015CNR/3000 Raycus в Шебекино
Как быстро снять фаску и исправить испорченную резьбу
Постройте лучшую строгальную скамью своими руками [Чертежи]
Кофейный столик из нержавеющей стали своими руками [чертежи прилагаются]
Как сделать шахматную доску с фигурами на лазерном станке? [Подробная инструкция]
Вы недавно смотрели
Все просмотренные объявления →
1928.
57 – Охрана сельскохозяйственной полевой техники, усадебного оборудования, хлопкоочистительных машин.- По стандартному номеру
- 1928.57 – Охрана сельскохозяйственной полевой техники, усадебного оборудования и хлопкоочистительных машин.
1928.57 (а)
Общий –
1928.57 (а) (1)
Назначение . Целью этого раздела является обеспечение защиты работников от опасностей, связанных с движущимися частями сельскохозяйственного полевого оборудования, сельскохозяйственного оборудования и хлопкоочистителей, используемых в любой сельскохозяйственной деятельности.
1928.57 (а) (2)
Объем . Параграф (а) этого раздела содержит общие требования, которые применяются ко всему покрытому оборудованию. Кроме того, параграф (b) этого раздела применяется к сельскохозяйственному полевому оборудованию, параграф (c) этого раздела применяется к сельскохозяйственному оборудованию, а параграф (d) этого раздела применяется к хлопкоочистителям.
1928.57 (а) (3)
Заявка . Этот раздел применяется ко всему сельскохозяйственному полевому оборудованию, сельскохозяйственному оборудованию и хлопкоочистителям, за исключением пунктов (b)(2), (b)(3) и (b)(4), (ii)(A) и (c). )(2), (c)(3) и (c)(4) (ii)(A) не применяются к оборудованию, изготовленному до 25 октября 19 г.76.
1928.
57 (а) (4)
Дата вступления в силу . Этот раздел вступает в силу 25 октября 1976 г., за исключением пункта (d) этого раздела, вступающего в силу 30 июня 1977 г.
1928.57 (а) (5)
Определения – Хлопкоочистители представляют собой системы машин, которые кондиционируют хлопок-сырец, отделяют волокна от семян, транспортируют материалы и упаковывают хлопок-волокно.
Сельскохозяйственное полевое оборудование означает тракторы или орудия, включая самоходные орудия, или любое их сочетание, используемое в сельскохозяйственных работах.
Фермерское оборудование означает сельскохозяйственное оборудование, обычно используемое стационарно. Это включает, но не ограничивается, погрузочно-разгрузочное оборудование и аксессуары для такого оборудования, независимо от того, является ли оборудование неотъемлемой частью здания.
Компоненты с наземным приводом — это компоненты, которые приводятся в движение за счет вращательного движения колеса, когда оборудование перемещается по земле.
Защитный кожух или щиток — это барьер, предназначенный для защиты сотрудников от контакта с опасностью, создаваемой движущейся частью механизма.
Валы отбора мощности — это валы и поворотные кулаки между трактором или другим источником энергии и первой шестерней, шкивом, звездочкой или другими компонентами оборудования, приводимого в движение валом отбора мощности.
1928.57 (а) (6)
Инструкция по эксплуатации . При первоначальном назначении и по крайней мере ежегодно после этого работодатель должен инструктировать каждого работника по безопасной эксплуатации и обслуживанию всего застрахованного оборудования, с которым он работает или будет работать, включая как минимум следующие методы безопасной эксплуатации:
1928.
57 (а) (6) (я)
Держите все ограждения на месте во время работы машины;
1928.57 (а) (6) (ii)
Не допускать наездников на сельскохозяйственном полевом оборудовании, кроме лиц, необходимых для обучения или помощи в эксплуатации машины;
1928.57(а)(6)(iii)
Остановите двигатель, отсоедините источник питания и подождите, пока все движения машины прекратятся, прежде чем выполнять обслуживание, регулировку, очистку или устранение засоров оборудования, за исключением случаев, когда машина должна работать для надлежащего обслуживания или технического обслуживания, и в этом случае работодатель должен инструктировать сотрудников обо всех шагах и процедурах, необходимых для безопасного обслуживания или обслуживания оборудования;
1928.
57 (а) (6) (iv)
Перед запуском двигателя, включением питания или эксплуатацией машины убедитесь, что никто не находится рядом с механизмами;
1928.57 (а) (6) (в)
Отключите электропитание перед выполнением технического обслуживания или обслуживания сельскохозяйственного оборудования.
1928.57 (а) (7)
Методы охраны . Если иное не предусмотрено настоящей частью, каждый работодатель должен защищать работников от контакта с опасностями, создаваемыми движущимися частями машин, следующим образом:
1928.57 (а) (7) (я)
Путем установки и использования ограждения или щита или ограждения по месту;
1928.
57 (а) (7) (ii)
Всякий раз, когда охрана, или щит, или охрана по месту невозможна, с помощью ограждения или забора.
1928.57 (а) (8)
Прочность и конструкция ограждений .
1928.57 (а) (8) (я)
Если для обеспечения защиты, требуемой настоящим разделом, используются ограждения, они должны быть спроектированы и расположены так, чтобы защитить от непреднамеренного контакта с ограждаемой опасностью.
1928.57 (а) (8) (ii)
Если не указано иное, каждое ограждение и его опоры должны выдерживать силу, с которой человек весом 250 фунтов, опираясь на ограждение или падая на него, оказывает на него воздействие.
1928.
57(а)(8)(iii)
Ограждения не должны иметь заусенцев, острых краев и углов и должны быть надежно прикреплены к оборудованию или зданию.
1928.57 (а) (9)
Охрана по месту . Компонент охраняется по месту во время эксплуатации, технического обслуживания или ремонта, если из-за его расположения ни один сотрудник не может непреднамеренно соприкоснуться с опасностью во время такой эксплуатации, технического обслуживания или обслуживания. Если работодатель может доказать, что любое воздействие опасностей является результатом поведения работника, которое представляет собой изолированное и непредвиденное событие, компонент также считается охраняемым по местонахождению.
1928.57 (а) (10)
Ограждение перилами .
Ограждения или ограждения должны защищать от непреднамеренного проникновения сотрудников в опасную зону.
1928.57 (а) (11)
Ремонт и техническое обслуживание . Всякий раз, когда движущаяся часть машины представляет опасность во время обслуживания или технического обслуживания, двигатель должен быть остановлен, источник питания отключен, и все движения машины должны быть остановлены перед выполнением обслуживания или технического обслуживания, за исключением случаев, когда работодатель может установить, что:0009
1928.57 (а) (11) (я)
Оборудование должно работать, чтобы его можно было обслуживать или обслуживать должным образом;
1928.57 (а) (11) (ii)
Оборудование нельзя обслуживать или обслуживать, пока установлены ограждение или ограждения, требуемые настоящим стандартом; и
1928.
57(а)(11)(iii)
Обслуживание или техническое обслуживание можно безопасно выполнять.
1928.57 (б)
Сельскохозяйственное полевое оборудование –
1928.57 (б) (1)
Защита коробки отбора мощности .
1928.57 (б) (1) (я)
Все валы отбора мощности, включая задние, средние или боковые валы, должны быть ограждены либо главным щитом, как это предусмотрено в пункте (b)(1)(ii) настоящего раздела, либо другим защитным охрана.
1928.57(б)(1)(ii)
Все тракторы должны быть оборудованы главным щитком сельскохозяйственного трактора на задней коробке отбора мощности, за исключением случаев, когда снятие главного щитка трактора разрешено пунктом (b)(1)(iii) настоящего раздела.
Основной щит должен иметь достаточную прочность, чтобы предотвратить необратимую деформацию щита, когда оператор весом 250 фунтов садится или слезает с трактора, используя щит в качестве ступеньки.
1928.57(б)(1)(iii)
Оборудование с приводом от коробки отбора мощности должно быть ограждено для защиты от контакта персонала с вращающимися элементами системы силового привода с принудительным приводом. Если оборудование с приводом от коробки отбора мощности имеет конструкцию, требующую снятия главного щитка трактора, оборудование также должно иметь защиту той части вала отбора мощности трактора, которая выступает из трактора.
1928.57(б)(1)(iv)
На видных местах тракторов и оборудования, приводимого в действие коробкой отбора мощности, должны быть размещены знаки, указывающие, что защитные экраны системы силового привода должны оставаться на месте.![]()
1928.57 (б) (2)
Другие компоненты силовой передачи .
1928.57(б)(2)(и)
Зацепление или точки захвата всех зубчатых колес, ремней, цепей, шкивов, шкивов, звездочек и натяжных роликов должны быть ограждены.
1928.57(б)(2)(ii)
Все вращающиеся валы, включая такие выступы, как болты, шпонки или установочные винты, должны быть ограждены, за исключением гладких концов вала, выступающих менее чем на половину наружного диаметра вала, и средств его блокировки.
1928.57(б)(2)(iii)
Компоненты с наземным приводом должны быть ограждены в соответствии с пунктами (b)(2)(i) и (b)(2)(ii) настоящего раздела, если какой-либо сотрудник может подвергаться их воздействию во время движения приводов.
1928.57 (б) (3)
Функциональные компоненты . Функциональные компоненты, такие как измельчающие или лущильные вальцы, разбрасыватели и измельчители соломы, режущие брусы, цеповые роторы, роторные битеры, смесительные шнеки, подающие вальцы, транспортирующие шнеки, ротационные культиваторы и аналогичные узлы, которые должны быть открыты для надлежащего функционирования, должны быть ограждены. в максимальной степени, которая не будет существенно мешать нормальному функционированию компонента.
1928.57 (б) (4)
Доступ к движущимся частям .
1928.57(б)(4)(и)
Ограждения, щиты и дверцы доступа должны быть на месте, когда оборудование находится в эксплуатации.
1928.57(б)(4)(ii)
Если при снятии ограждения или дверцы доступа работник подвергается воздействию какого-либо компонента, который продолжает вращаться после отключения питания, работодатель должен обеспечить в непосредственной близости следующее:
1928.57(б)(4)(ii)(А)
Легко видимый или звуковой сигнализатор вращения; и
1928.57(б)(4)(ii)(Б)
Знак безопасности, предупреждающий работника:
1928.57(б)(4)(ii)(В)(1)
Посмотрите и прислушайтесь к свидетельству вращения; и
1928.57(б)(4)(ii)(В)(2)
Не снимайте ограждение или дверцу доступа, пока все компоненты не остановятся.
1928.57 (с)
Фермерское оборудование –
1928.57 (с) (1)
Защита коробки отбора мощности .
1928.57 (с) (1) (я)
Все валы отбора мощности, включая задние, средние или боковые валы, должны быть защищены либо главным щитом, как предусмотрено в пункте (b)(1)(ii) настоящего раздела, либо другим защитным ограждением.
1928.57 (с) (1) (ii)
Оборудование с приводом от коробки отбора мощности должно быть ограждено для защиты от контакта персонала с вращающимися элементами системы силового привода с принудительным приводом.
Если оборудование с приводом от коробки отбора мощности имеет конструкцию, требующую снятия главного щитка трактора, оборудование также должно иметь защиту той части вала отбора мощности трактора, которая выступает из трактора.
1928.57 (с) (1) (iii)
На видных местах оборудования, приводимого в действие коробкой отбора мощности, должны быть размещены знаки, указывающие, что защитные экраны системы силового привода должны оставаться на месте.
1928.57 (с) (2)
Другие компоненты силовой передачи .
1928.57 (с) (2) (я)
Зацепление или точки захвата всех приводных шестерен, ремней, цепей, шкивов, шкивов, звездочек и натяжных роликов должны быть ограждены.
1928.57 (с) (2) (ii)
Все вращающиеся валы, включая такие выступы, как болты, шпонки или установочные винты, должны быть ограждены, за исключением:
1928.57 (с) (2) (ii) (А)
Гладкие валы и концы валов (без каких-либо выступающих болтов, шпонок или установочных винтов), вращающиеся со скоростью менее 10 об/мин, на оборудовании для обработки кормов, используемом на верхней поверхности материалов в хранилищах сыпучих материалов; и
1928.57 (с) (2) (ii) (В)
Гладкие концы вала, выступающие менее чем на половину наружного диаметра вала, и средства его блокировки.
1928.57 (с) (3)
Функциональные компоненты .
1928.57 (с) (3) (я)
Функциональные компоненты, такие как измельчители, роторные битеры, смесительные шнеки, подающие валки, транспортирующие шнеки, разбрасыватели зерна, перемешивающие шнеки, подметальные шнеки и подающие шнеки, которые должны быть открыты для надлежащего функционирования, должны быть ограждены в максимально возможной степени. не будет существенно мешать нормальному функционированию компонента.
1928.57 (с) (3) (ii)
Механизмы сбора материала подметальной стрелой, используемые на верхней поверхности материалов в силосных конструкциях, должны быть ограждены. Нижняя или передняя кромка ограждения должна располагаться не более чем в 12 дюймах над поверхностью материала и не менее чем в 6 дюймах перед передней кромкой вращающегося элемента механизма сбора. Защитный кожух должен быть параллелен механизму сбора материала и простираться на максимально возможную длину.
1928.57 (с) (3) (iii)
Открытые лопасти шнека на переносных зерновых шнеках должны быть ограждены либо решетчатыми ограждениями, либо крышками в виде твердых дефлекторов следующим образом:
1928.57 (с) (3) (iii) (А)
Наибольшие размеры или отверстия в ограждениях решетчатого типа, через которые должны проходить материалы, должны составлять 4¾ дюйма. Площадь каждого отверстия должна быть не более 10 квадратных дюймов. Отверстие должно быть расположено не ближе 2,5 дюймов к вращающемуся витку.
1928.57 (с) (3) (iii) (В)
Прорези в крышках со сплошными перегородками должны быть не шире 1½ дюйма или ближе 3½ дюймов к выступающим виткам.
1928.
57 (с) (4)
Доступ к движущимся частям .
1928.57 (с) (4) (я)
Ограждения, щиты и дверцы доступа должны быть на месте, когда оборудование находится в эксплуатации.
1928.57 (с) (4) (ii)
Если при снятии ограждения или входной двери работник подвергается воздействию какого-либо компонента, который продолжает вращаться после отключения питания, работодатель должен обеспечить в непосредственной близости следующее:
1928.57 (с) (4) (ii) (А)
Легко видимый или звуковой сигнализатор вращения; и
1928.57(с)(4)(ii)(В)
Знак безопасности, предупреждающий работника:
1928.
57 (с) (4) (ii) (В) (1)
Посмотрите и прислушайтесь к свидетельству вращения; и
1928.57 (с) (4) (ii) (В) (2)
Не снимайте ограждение или дверцу доступа, пока все компоненты не остановятся.
1928.57 (с) (5)
Электрические разъединители .
1928.57 (с) (5) (я)
Подача электроэнергии из места, не находящегося под непосредственным и исключительным контролем работника или работников, обслуживающих или обслуживающего оборудование, должна быть предотвращена:
1928.57 (с) (5) (я) (А)
Предоставление эксклюзивных средств принудительной блокировки главного выключателя, которыми может управлять только работник или работники, выполняющие техническое или сервисное обслуживание; или
1928.
57 (с) (5) (я) (Б)
В случае погрузочно-разгрузочного оборудования, расположенного в сооружении бестарного хранения, путем физического размещения на оборудовании электрических или механических средств для отключения питания.
1928.57 (с) (5) (ii)
Все устройства защиты цепей, включая те, которые являются неотъемлемой частью двигателя, должны быть с ручным перезапуском, за исключением случаев, когда:
1928.57 (с) (5) (ii) (А)
Работодатель может установить, что из-за характера операции, необходимых расстояний и количества времени, обычно проводимого работниками в зоне пострадавшего оборудования, использование устройства ручного сброса было бы невозможным;
1928.57 (с) (5) (ii) (В)
В пределах 15 футов (15 футов) от оборудования, на котором проводится техническое или сервисное обслуживание, имеется электрический выключатель; и
1928.
57 (с) (5) (ii) (С)
Рядом с каждым опасным компонентом на видном месте размещена табличка, предупреждающая сотрудника о том, что, если не использовать электрический выключатель, двигатель может автоматически перезапуститься, пока сотрудник работает с опасным компонентом.
1928.57 (г)
Оборудование для очистки хлопка –
1928.57 (д) (1)
Компоненты силовой передачи .
1928.57 (д) (1) (я)
Главный привод и прочие приводы стендов для джина должны быть полностью закрыты, ограждены по месту или ограждены перилами (в соответствии с требованиями пункта (а)(7) настоящего раздела). Проходы между стойками джина должны быть ограждены, чтобы предотвратить доступ в пространство между машинами.
1928.57 (г) (1) (ii)
При ограждении перилами любой опасный компонент в пределах 15 горизонтальных дюймов от перил должен быть полностью огражден. Высота поручней должна составлять примерно 42 дюйма от пола, платформы или другой рабочей поверхности, а средняя часть поручня находится между верхним поручнем и рабочей поверхностью. Промежуточные поручни можно заменить панелями из материалов, соответствующих требованиям таблицы D-1 или эквивалентных. Ограждения должны быть достаточно прочными, чтобы выдерживать усилие не менее 200 фунтов на верхнее ограждение.
1928.57 (г) (1) (iii)
Ремни, огражденные перилами, должны проверяться на наличие дефектов не реже одного раза в день. Машину нельзя эксплуатировать, пока не будут заменены все неисправные ремни.
Таблица D-1 – Примеры минимальных требований к материалам защитной панели
| Материал | Расстояние от подвижной части во всех точках (в дюймах) | Наибольшая допустимая ячейка или отверстие (в дюймах) | Минимальный калибр (стандарт США) или толщина |
|---|---|---|---|
| Плетеная проволока | До 2 лет | 3 ⁄ 8 | 16 |
| от 2 до 4 | ½ | 16 | |
| от 4 до 15 | 2 | 12 | |
| Расширенный металл | До 4 лет от 4 до 15 | ½ 2 | 18 13 |
| Перфорированный металл | До 4 лет от 4 до 15 | ½ 2 | 20 14 |
| Листовой металл | До 4 лет | 22 | |
| от 4 до 15 | 22 | ||
| Пластик | До 4 лет | ( 1 ) | |
| от 4 до 15 | ( 1 ) |
1 Прочность на растяжение 10 000 фунтов/дюйм 2
1928.
57 (д) (1) (iv)
Шкивы клиноременных приводов должны быть полностью закрыты или ограждены по месту, независимо от наличия перил. Открытый конец защитного кожуха шкива должен находиться не менее чем в 4 дюймах от периферии шкивов.
1928.57 (д) (1) (в)
Цепи и звездочки должны быть полностью закрыты, за исключением того, что они могут быть ограждены по месту, если подшипники упакованы или если используются доступные удлинительные смазочные фитинги.
1928.57 (д) (1) (vi)
Если полное закрытие компонента может привести к пожару из-за чрезмерных отложений ворса, требуется только лицевая часть защитного кожуха и шкивов. Защитный кожух должен выступать не менее чем на 6 дюймов за край шкива на входной и выходной сторонах ремня и не менее чем на 2 дюйма от обода и поверхности шкива во всех других направлениях.
1928.57(г)(1)(vii)
Выступающие концы вала, не защищенные в зависимости от местоположения, должны иметь гладкую кромку и конец, должны быть защищены невращающимися крышками или предохранительными втулками и не должны выступать более чем на половину наружного диаметра вала.
1928.57(г)(1)(viii)
На электростанциях и в помещениях для развития энергетики, где доступ ограничен уполномоченным персоналом, вместо ограждений или ограждений по месту можно использовать ограждения. Уполномоченные сотрудники, имеющие доступ к электростанциям и помещениям для развития энергетики, должны быть проинструктированы по безопасной эксплуатации и техническому обслуживанию оборудования в соответствии с параграфом (а)(6) настоящего раздела.
1928.
57 (г) (2)
Функциональные компоненты .
1928.57 (д) (2) (я)
Стойки для джинов должны быть снабжены постоянно установленным ограждением, предназначенным для предотвращения контакта с пилами для джинов во время движения. Пильные диски в ящике для вальцов считаются защищенными по месту, если они не проходят через ребра волокноволокна в ящик для вальцов, когда грудь находится в открытом положении.
1928.57 (г) (2) (ii)
Движущиеся пилы на очистителях ворса, которые имеют дверцы, обеспечивающие доступ к пилам, должны быть ограждены стационарными барьерными ограждениями или их эквивалентами, которые предотвращают прямой контакт пальцев или рук с пилами во время движения пил.
1928.
57 (д) (2) (iii)
На всех пресс-подборщиках должна быть установлена блокировка, чтобы верхние ворота нельзя было открыть во время работы трампера.
1928.57 (д) (2) (iv)
Верхние панели экстракторов грата должны быть шарнирными и снабжены надежной защелкой.
1928.57 (д) (2) (в)
Все доступные винтовые конвейеры должны быть ограждены массивными крышками или решетками, либо желобным ограждением с перевернутыми горизонтальными прорезями, которое предотвратит контакт работников с винтовым конвейером. Такие ограждения могут состоять из горизонтальных стержней, расположенных так, чтобы обеспечить подачу материала на конвейер, и поддерживаться арками, расстояние между которыми не превышает 8 футов. Винтовые конвейеры под стойками для джина считаются охраняемыми по месту.
1928.57 (г) (3)
Сигнализатор . Во всех джинах должно быть установлено предупреждающее устройство для подачи звукового сигнала, указывающего работникам на то, что некоторые или все машины, входящие в состав джина, вот-вот будут запущены. Сигнал должен быть достаточно громким, чтобы его слышали работники, и должен звучать каждый раз перед запуском джина.
[41 ФР 10195, 9 марта 1976 г.; 41 ФР 11022, 16, 19 марта76; 41 FR 22268, 2 июня 1976 г., в редакции 41 FR 46598, 22 октября 1976 г.]
Послевоенные технологии Вместо этого бум усовершенствовал и расширил многие открытия, сделанные до и во время войны.Федеральное правительство участвует в финансировании сельскохозяйственных исследований с момента принятия Закона о колледже Моррила в 1862 году. В 1887 году Конгресс создал систему государственных сельскохозяйственных экспериментальных станций, а в 1914 году создал Службу распространения знаний, чтобы фермеры знали о результатах всех исследовательская работа. К 1940 году почти 40 процентов всех денег, потраченных правительством на исследования и разработки (НИОКР), пошли на сельское хозяйство. В долларах это означало, что 29,1 миллиона долларов из 74,1 миллиона долларов были связаны с сельским хозяйством. Вторая мировая война изменила систему исследований и разработок США. Во-первых, Конгресс присваивал все больше и больше денег, но большая часть прироста шла в другие области, такие как оборона, исследование космоса, здравоохранение и общие науки. Кроме того, большая часть этого увеличения пошла на частный бизнес, а не на колледжи, предоставляющие землю, и сельскохозяйственные экспериментальные станции. Тем не менее, даже в долларах с поправкой на инфляцию, деньги на сельскохозяйственные исследования продолжали расти. В 1946 году Конгресс принял Закон об исследованиях и маркетинге от 1946, который расширил исследования Министерства сельского хозяйства, включив в них маркетинг, транспортировку и распределение сельскохозяйственной продукции. В законе также особое внимание уделялось исследованиям в области питания человека и пищевой ценности сельскохозяйственных товаров. Исследования, проводимые частными компаниями, также продолжали расти. Сегодня частные компании инвестируют в пищевые и сельскохозяйственные исследования больше, чем федеральное правительство и правительства штатов вместе взятые. Более трети денег, выделяемых на частные исследования, пошли на улучшение сельскохозяйственной техники. Для фермеров привлекательность новых машинных технологий заключалась не в том, насколько больше они могли выращивать, а в том, как они могли выполнять работу с меньшим количеством людей. Они усвоили уроки Второй мировой войны. Помощь на ферме была трудной и дорогой. Тракторы и другие машины были дешевле и обычно надежнее. Между 1948 и 1960 годами затраты труда — сумма денег, которую фермер должен был потратить на помощь людям, — уменьшились на 35 процентов.Гарри Ханкель называет исследования одним из самых больших изменений в сельском хозяйстве, которые он видел, и говорит, что они заставили самих фермеров измениться. «Сегодня для того, чтобы заниматься сельским хозяйством, вы должны быть почти обучены [как ученый]». Интересно, что большая часть инноваций, появившихся в результате всех этих исследований сельскохозяйственной техники, привела к созданию более совершенных машин, а не совершенно новых типов машин. Тракторы, например, следовали тем же основным принципам проектирования, что и модели 1940 года. Сегодняшние модели выглядят в основном так же, как старые модели. Однако они стали крупнее и мощнее. Современные машины полезнее, безопаснее и, прежде всего, удобнее. Например, Тракторный журнал штата Небраска после войны был заполнен рекламой мягких сидений для тракторов. До войны типичное тракторное сиденье представляло собой кусок твердой стали. После войны многие компании рекламировали мягкие сиденья, специально «разработанные для вашего оборудования»… им не нужно было упоминать, для какой части вашего оборудования они предназначены. Опять же, это не такое маленькое улучшение, как может показаться на первый взгляд. Многочасовая работа на тракторе утомляет фермера, а небольшие удобства приводят к тому, что в течение дня он выполняет больше работы. В конце концов, полностью закрытые кабины с кондиционером выполнили обещание, положившее начало мягким сиденьям. Безопасность была еще одной серьезной проблемой для исследователей машин. Как только конструкции тракторов действительно хорошо зарекомендовали себя при выполнении необходимых работ, безопасность стала главным приоритетом и маркетинговым ходом.![]() |


………………………………………….125
Вместо этого бум усовершенствовал и расширил многие открытия, сделанные до и во время войны.
Они усвоили уроки Второй мировой войны. Помощь на ферме была трудной и дорогой. Тракторы и другие машины были дешевле и обычно надежнее. Между 1948 и 1960 годами затраты труда — сумма денег, которую фермер должен был потратить на помощь людям, — уменьшились на 35 процентов.
Это были небольшие изменения, произошедшие после Второй мировой войны, но они оказали огромное влияние на производительность среднего фермера.