Вгт 110 технические характеристики: Выключатель ВГТ-110 элегазовый колонковый (У1, УХЛ1*)
alexxlab | 23.12.1986 | 9 | Разное
ВГТ-110 колонковый
+7 499 501 44 51 117148, г. Москва, ул. Брусилова, д. 33, корп. 1, этаж 1, помещение IV, комната 2
ВГТ-110 (У1, УХЛ1*) Выключатель элегазовый колонковый (трехполюсное/однополюсное исполнение)
Назначение
Выключатели серии ВГТ изготавливаются как в трехполюсном так и в однополюсном исполнении предназначены, для выполнения коммутационных операций (включений и отключений), а также циклов АПВ при заданных условиях в нормальных и аварийных режимах в сетях трехфазного переменного тока 50 Гц с номинальным напряжением 110 кВ с заземленной нейтралью.
Конструкция
- Выключатель состоит из трех полюсов (колонн), установленных на общей раме и управляемых одним пружинным приводом ППрМ или пружинно-гидравлическим приводом ППрГ-2. Возможно исполнение в однополюсном исполнении с управлением приводом ППрМ.
- Конструкция взрывобезопасного исполнения.
- Низкий уровень утечек — не более 0,5% в год.

- Современные технологические и конструкторские решения в области применения и обработки материалов.
- Стальные части выключателя и опорные металлоконструкции имеют коррозионно-стойкие покрытия.
- Базовое исполнение выключателей без опорных металлоконструкций. Выключатели могут поставляться по заказу с высокими заводскими опорными стойками, а также с укороченными заводскими стойками для замены маломаслянных выключателей серии ВМТ.
- Сохранение электрической прочности изоляции выключателя при напряжении равном 84 кВ в случае потери избыточного давления газа в выключателе.
- Отключение емкостных токов без повторных пробоев, низкие перенапряжения.
- Низкий уровень звуковых шумов при срабатывании.
- Наличие в приводе автоматического управления двух ступеней обогрева (антиконденсатный и основной) шкафа привода и контроль их исправности.
- Комплектующие изделия (приборы), в том числе высококачественные покрышки, закупаются у ведущих, хорошо зарекомендовавших себя отечественных и зарубежных производителей.

- Конструкция выключателя позволяет осуществлять поставку Заказчику продукции в удобной таре минимальных объемов при минимальных транспортных затратах, а также обеспечить удобный и оперативный монтаж и ввод в эксплуатацию. Монтаж и ввод в эксплуатацию выполняется под руководством шеф-инженера.
Преимущества:
- Сохранение электрической прочности изоляции выключателя при напряжении равном 84 кВ в случае потери избыточного давления газа в выключателе.
- Отключение емкостных токов без повторных пробоев, низкие перенапряжения.
- Низкий уровень звуковых шумов при срабатывании (соответствует природоохранным требование).
- Низкие динамические нагрузки на фундаментные опоры.
- Надежность и безопасность пружинного привода ППрМ подтверждена многолетним опытом управления колонковыми выключателями.
- Наличие в приводе автоматического управления двух ступеней обогрева (антиконденсатный и основной) шкафа привода и контроль их исправности.

- Комплектующие изделия закупаются у ведущих, зарекомендовавших себя отечественных и зарубежных производителей.
- Блочно-модульная конструкция выключателя позволяет осуществлять поставку заказчику продукции в удобной таре с минимальным объемом при минимальных транспортных затратах, а также обеспечить удобный и оперативный монтаж и ввод в эксплуатацию, которые выполняются под руководством шеф-инженера.
Технические характеристики:
| Номинальное напряжение, кВ | 110 |
| Наибольшее рабочее напряжение, кВ | 126 |
| Номинальный ток, А | 2000/3150 |
| Номинальный ток отключения, кА | 40 |
| Нормированное процентное содержание апериодической составляющей, % не более | 45 |
| Нормированные параметры тока включения, кА · наибольший пик · начальное действующее значение периодической составляющей | 102 40 |
| Нормированные параметры сквозного тока короткого замыкания, кА: · наибольший пик (ток электродинамической стойкости), кА · среднеквадратичное значение тока за время его протекания, кА · время протекания тока короткого замыкания, с | 102 40 3 |
| Нормированный ток отключения не нагруженной воздушной линии, А | 31,5 |
| Нормированный ток отключения конденсаторной батареи, А | 320 |
| Собственное время отключения, при номинальном напряжении на элементах управления, мс, не более | 38 |
| Полное время отключения, при номинальном напряжении на элементах управления, мс, не более | 55 |
| Собственное время включения, при номинальном напряжении на элементах управления, мс, не более | 60 |
| Нормированная бестоковая пауза при АПВ, с | 0,3 |
| Разновременности замыкания и размыкания контактов полюсов с, не более · при включении · при отключении | 0,0018 0,0015 |
| Удельная длина пути утечки, см/кВ | 2,5 |
| Допустимый уровень утечки газа в год, % не более | 0,5 |
| Давление элегаза (SF6) исполнения У1 или газовой смеси (SF6 +CF4) исполнение УХЛ1* приведенное к 20°С, МПа, избыточное: · номинальное (заполнения) · срабатывания предупредительной сигнализации · блокировки управления (или автоматического отключения с блокировкой включения) | Sf6 SF6+CF4 0,4 0,6 0,35 0,52 0,32 0,5 |
| Номинальное напряжение электромагнитов включения и отключения, В, постоянное | 220/110 |
| Номинальное напряжение питание электродвигателя привода, В, · трехфазное переменное · однофазное переменное · постоянное переменное | 400 или 230 230 220 |
| Ток электромагнитов включения и отключения при номинальном напряжении, А, не более | 3/5 |
| Номинальное напряжение питания устройств подогрева, В, переменное однофазное | 230 |
| Число пар коммутирующих контактов для внешних цепей: · нормально открытых; · нормально закрытых. ![]() | 12 12 |
| Температура включения устройств основного подогрева привода, °С | 5 ± 2 |
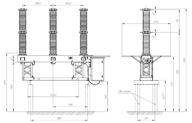
| Габариты (без сборной опорной конструкции), мм, длина, ширина, высота трехполюсное / однополюсное исполнение | 4180х870х3790 / 1637х871х4396 |
| Масса выключателя, кг (трехполюсное / однополюсное исполнение) | 1570/925 |
МоскваУлица Брусилова, 33к1 на карте Москвы — Яндекс.Карты
Инструкция по эксплуатации элегазового выключателя ВГТ (З) – 110 II*
1. Общая часть
Настоящая инструкция разработана на основании:
1.1. « Правил технической эксплуатации электрических станций и сетей Российской Федерации (УДК 621.311.004.24)»;
1.2. Технических описаний и инструкций по эксплуатации элегазовых выключателей ВГТ (З)110 II* – 40/2500 У1(ХЛ1)и приводов ППРк, разработанных заводами изготовителями.
1.
3. Настоящая инструкция определяет основные положения по эксплуатации и ремонту элегазовых выключателей ВГТ (З)110 II* – 40/2500 У1(ХЛ1).
1.4. Эксплуатация оборудования распределительных устройств подстанции заключается в следующем:
– надзор за работой оборудования путем производства осмотров;
– своевременное выявление дефектов и неполадок оборудования;
– своевременное проведение ремонтов и профилактических испытаний оборудования;
– ведение оперативно – технической документации.
1.5. Инструкция по эксплуатации рассчитана на обслуживающий персонал (ремонтный и оперативно ремонтный), прошедший обучение и обладающий знаниями, изложенными в нормативно-технической и заводской документации на элегазовые выключатели ВГТ (З)110 II* – 40/2500 У1(ХЛ1).
1.6. Все работы выполняются при строгом соблюдении “МПОТ” в части приближения к токоведущим частям, находящихся под напряжением (таб.1.1.МПОТ).
2. Назначение
2.
1. Выключатель предназначен для коммутации электрических цепей при нормальных и аварийных режимах, а также работы в цикле АПВ в сетях трехфазного переменного тока частоты 50Гц с номинальным напряжением 110кВ
2.2. Длина пути утечки внешней изоляции соответствует нормам для подстанционной изоляции, категория исполнения II*: на 110кВ – не менее 280 см.
Технические данные выключателя:
Наименование параметра | Норма | |
ВГТ(З) – 110 II* – 40/2500 У1
| ВГТ – 110 II* – 40/2500ХЛ1
| |
Наибольшее рабочее напряжение, кВ | 126 | 126 |
Номинальный ток, А | 2500 | 2500 |
Номинальный ток отключения, кА | 40 | 40 |
Ток нагрузки, отключаемый при отсутствии избыточного давления элегаза (при Рабс=0,1Мпа), А | 2500 | 2500 |
Полное время отключения, с | 0,055 – 0,005 | 0,055 – 0,005 |
Собственное время включения, с , не более | 0,062 – 0,018 | 0,062 – 0,018 |
Расход элегаза на утечки в год, % от массы элегаза, не более | 1,0 | 0,5 |
Избыточное давление элегаза, приведенное к +200С, МПа (кг/кв. – давление заполнения (номинальное) – давление предупредительной сигнализации – давление блокировки – запрета оперирования |
0,5 (5,0)
0,42 (4,2) |
0,7 (7) 0,62 (6,2)
0,6 (6,0) |
Масса выключателя (с приводом ), кг | 1740 | 1650 |
Масса, кг при климатическом исполнении У1 – элегаза – тетрофторметана |
6,3 – |
5 3 |
2.
3. Допустимое для каждого полюса выключателя без осмотра и ремонта дугогасительных устройств число операций отключения (ресурс по коммутационной стойкости) составляет:
– при токах в диапазоне свыше 60 до 100% I ном.откл. – 20 операций;
– при токах в диапазоне свыше 30 до 60% I ном.откл. – 50 операций;
– при рабочих токах , равных номинальному току , – 3000 операций.
Ресурс по механической стойкости до капитального ремонта – 5000 циклов “В – tп – О».
Отключение выключателя К.З. с последующим неуспешным АПВ считается как отключение 3-х К.З.
2.4. Выключатели серии ВГТ (З) -110 У1 относятся к электрическим коммутационным аппаратам высокого напряжения, в которых гасящей и изолирующей средой является элегаз ( SF6 ). Буква (З) обозначает, что данный выключатель в виду его уменьшенного габарита за счёт расположения корпуса отключающей пружины не вдоль выключателя, а под углом 90 град. к полу, предназначен для закрытых распредустройств (ЗРУ).
Эксплуатация выключателя рассчитана при температуре окружающего воздуха от + 40 град. С до – 45 град.С.
2.5. Выключатели серии ВГТ -110 ХЛ 1 относятся к электрическим коммутационным аппаратам высокого напряжения, в которых гасящей и изолирующей средой является смесь газов (50% элегаз и 50% тетрафторметан). Эксплуатация выключателя рассчитана при температуре окружающего воздуха от + 40 до – 55 град.С.
2.6. Выключатель состоит из трех полюсов (колонн), установленных на общей раме и механически связанных друг с другом. Все три полюса выключателя управляются одним пружинным приводом типа ППрК-2000У1 С ХЛ1 или ППрК-2400У1 С ХЛ1 с автоматическим обогревом, 1-я ступень включается при 0 град. С, 2-я ступень включается при -20 град.С.
2.7. Выключатели имеют следующие показатели надежности и долговечности:
– ресурс по механической стойкости до первого ремонта – 10000 циклов (В – tп – О).
– срок службы до первого ремонта – не менее 25 лет, если до этого срока не исчерпаны ресурсы по механической или коммутационной стойкости;
– срок службы 40 лет.![]()
2.8. Принцип работы выключателей основан на гашении электрической дуги потоком элегаза, который создается за счет перепада давления, обеспечиваемого тепловой энергией дуги, а также поршневым устройством. Включение выключателя осуществляется за счет пружин привода, а отключение – за счет энергии пружины отключающего устройства выключателя.
2.9. Электроконтактный сигнализатор давления показывающего типа у выключателей серии ВГТ (З) -110 У 1 снабжен устройством температурной компенсации, приводящим показания давления к температуре +20С0, и двумя парами нормально разомкнутых контактов. Первая пара контактов замыкается при снижении давления до 0,44 Мпа (4,4 кг/кв. см), подавая сигнал о необходимости пополнения полюса, вторая пара замыкается при давлении 0,42 Мпа (4,2 кг/кв.см) для блокировки подачи команды на электромагниты управления.
2.10. Электроконтактный сигнализатор давления с газовым заполнением у выключателей серии ВГТ -110 ХЛ 1 показывающего типа снабжен тремя парами контактов с магнитной фиксацией, замыкающих контрольные цепи, а также устройством температурной компенсации, приводящим показания давления к температуре +20 С0.
На циферблате сигнализатора нанесена маркировка состава газа “SF4/CF4”. Одна пара контактов (предупредительная сигнализация) размыкается при снижении давления до 0,62 МПа (6,2 кгс/см2) , подавая сигнал о необходимости пополнения полюса. Две другие пары контактов предназначены для блокировки подачи команды на электромагниты управления. Они замыкаются при снижении давления 0,6 МПа (6,0 кгс/см2). Эти же контакты могут быть использованы для принудительного отключения выключателя с запретом на его отключение.
3. Работа привода
3.1. Привод (привод пружинный с кулачковым заводом пружин, работа включения – 2000 и 2400 Дж, специального исполнения, предназначен для дистанционного и местного управления выключателем с собственными отключающими пружинами и работой статического включения).
3.2. Однократный завод пружин привода обеспечивает включение выключателя, удержание его во включенном положении и освобождение подвижных частей выключателя для его отключения.
Краткие технические данные привода:
Наименование характеристики, параметра | ППрК-2000 | ППрК-2400 |
Энергия, передаваемая выключателю при максимальном натяжении пружин, Дж | 2000 | 2400 |
Номинальное напряжение постоянного тока электромагнитов управления, В | 220 | 220 |
Асинхронный двигатель завода рабочих пружин привода | 1,1кВт 1500об/мин | 1,1 кВт 1500об/мин |
Время завода рабочих пружин привода при номинальном напряжении 220/380 В и при температуре +20грд.С , сек, не более | 15 | 15 |
Суммарная мощность подогревательных устройств (включаются автоматически при снижении температуры в шкафу привода до +1±1С0и отключаются при +8±2С0), кВт | 1,6 | 1,6 |
Объем жидкости ПСМ-200 в буфере отключения, л | 0,225 | 0,225 |
Объем трансформаторного масла в буфере включения. | 0,08 | 0,08 |
Объем масла И-20А (допускается И-30А, И-40А, И-50А) в редукторе, л | 0,64 | 0,64 |
Мощность противоконденсатного подогрева (включен постоянно), Вт | 50 | 50 |
3.3. В работе привода можно выделить четыре основных этапа:
– завод рабочих пружин;
– включение выключателя;
– отключение выключателя;
– медленное оперирование контактами выключателя.
3.4. Кинематическая схема, представленная на рисунке 2, соответствует положению элементов привода, предшествующему заводу пружин при отключенном выключателе. Электрические схемы изображены в состоянии, соответствующем отключенному положению выключателя, разряженному состоянию пружин привода, и положению взводящего пружины кулака, при котором его палец 48 (см.
рисунок 2) не воздействует на рычаг 50, управляющий блоком контактов 8Н2-8А5-80.2.
3.5. Завод пружин:
Завод пружин привода может выполняться тремя способами:
а) в ручную;
б) с помощью электродвигателя, управляемого в ручную;
в) электродвигателем, работающим в автоматическом режиме.
3.6. Вручную, пружины взводятся, как правило, при отсутствии электропитания электродвигателя, например, при подготовке привода к первому включению выключателя на подстанции (тупиковой), трансформатор собственных нужд которой запитан от управляемой этим же выключателем линии. Завод осуществляется путем вращения червячного вала редуктора (с помощью ручки) по ходу часовой стрелки. Вращать вал нужно до момента переключения блока контактов SН2-SА5-SQ2 (см. рисунок 2), т.е. до достижения кулаком 40 положения, при котором он не будет мешать включению.
3.7. Завод пружин с помощью электродвигателя, управляемого вручную (кнопкой ПУСК), чаще всего используется при регулировочных работах и ремонте.
Перед заводом пружин нужно перевести переключатель SА4 в положение РУЧ и включить автомат SF1. Двигатель запустится, и пружины начнут взводиться при нажатой кнопке ПУСК. При отпускании кнопки двигатель останавливается.
3.8. Завод пружин автоматический имеет место при нормальной эксплуатации привода в межремонтный период, когда автомат SF1 включен, а переключатель SА4 находится в положении АВТ. Электродвигатель завода пружин включается в начале процесса включения управляемого выключателя, когда траверса 10 (см. рисунок 3) опустится настолько, что контакты блока SQ3-SA6-Sh5, управляемого кулачковой частью рычага-указателя 11 состояния пружин, переключатся в исходное положение.
3.9. При этом контакты SQ3 замкнутся, что обеспечит подачу напряжения на катушку пускателя КМ и, следовательно, на обмотки двигателя. Вращение ротора двигателя через редуктор 2 и цепную передачу передастся кулаку, но помешать включению кулак не сможет, поскольку оно завершится прежде, чем рабочая поверхность кулака придет в контакт с роликом 35 ведущего рычага.
3.10. Как только рабочая поверхность кулака придет в контакт с роликом (при любом способе завода пружин) – рабочие пружины 46 начнут взводиться, т.к. расстояние между траверсами 49 и 10 начнет увеличиваться. В определенный момент рычаг-сцепитель 31 встретит Г-образный упор 36, который переведет его в рабочее положение (подведет рабочую поверхность рычага-сцепителя под ролик 33 ведомого рычага 19). Тумблерные пружины 32 зафиксируют рычаг-сцепитель в этом положении относительно ведущего рычага 7.
3.11. В это же время зуб 8 ведущего рычага встречает удерживающую ось рычага 18. и под ее воздействием поворачивается против часовой стрелки, не препятствуя вращению рычага 7. По переходе за ось зуб 8 под действием своей пружины вернется в исходное положение. В момент выхода линии, контакта ролика 35 с кулаком 40 на высшую точку профиля последнего (R =130 мм), происходит реверс вращения рычага 7. При дальнейшем вращении кулака 40 зуб 8 упрется в удерживающую ось рычага 18, чем зафиксирует рычаг 7 в положении, соответствующем взведенному состоянию пружин.
3.12. Необходимо заметить, что еще до полного завода пружин верхняя траверса 10 встретит рычаг-указатель 11 и к концу завода повернет его так, что он своей кулачковой частью разомкнет контакты SQ3. Но двигатель будет продолжать работать, так как катушка пускателя КМ будет запитана по цепи, содержащей замкнутые контакты SQ2. Последние разомкнутся, и электродвигатель остановится только тогда, когда кулак 40 встанет в положение, не препятствующее включению выключателя. При этом палец 48 кулака будет удерживать рычаг 50 в нижнем положении, и, следовательно, контакты SQ2 останутся разомкнутыми, а SА5 замкнутся, что подготовит цепь электромагнита YA2 к приему команды на включение.
3.13. Процесс завода пружин завершен. При этом ничто не мешает включению выключателя:
– контакты SА5,SА6 и SАЗ замкнуты;
– механическая блокировка против включения “вхолостую” не мешает повороту собачки 13 устройства управления включением, поскольку ведомый рычаг 19, находясь в отключенном положении, удерживает сухарь 54 в отклоненном от собачки положении.
3.14. Включение выключателя:
– Оперативное включение выключателя осуществляется подачей напряжения на катушку электромагнита YА2. Неоперативное включение может быть выполнено, кроме того, еще и нажатием на кнопку YА2 вручную либо от кнопки ВКЛ при установленном в положение М переключателе SА8 .
– . При этом собачка 13 (см. рисунок 2) выбивается из-под ролика рычага 18. Последний, получив возможность вращения, отклоняется под действием зуба 8 в. Этим процесс включения завершается.
3.15. Кроме того, ведомый рычаг 19 через шлицевый вал 3 связан с рычагом 4, последний, поворачиваясь при включении выключателя против часовой стрелки, вначале вращается свободно. Затем, упершись в болт 5, вовлекает во вращение и рычаг, состоящий из щек 2 и 23, и следовательно, приводит в движение в направлении вращения часовой стрелки и тем самым освобождает ведущий рычаг 7. Рычаг 7 под действием рабочих пружин 46 поворачивается против часовой стрелки, увлекая за собой ведомый рычаг 19, и производит включение выключателя.
3.16. В начале поворота рычагов в направлении включения действие траверсы 10 на рычаг-указатель 11 состояния пружин снимается. Последний под действием своей пружины поворачивается против часовой стрелки и снимает воздействие своей тыльной кулачковой части на блок контактов SQ3-SА6-SН4 (см. рисунок 3). При этом контакты SQ3 замыкают цепь катушки пускателя КМ, обеспечивая включение электродвигателя завода пружин.
3.17. При вращении рычагов 7 и 19 валик 24, постоянно связанный с ведомым рычагом 19 посредством кулисы 17, поворачивается и переключает: с помощью кулачка 22 – блок контактов SА2-SА2-SQ4-SАЗ, а с помощью рычага 20 – контакты SА1 и SА7.
3.18. В конечной зоне поворота рычагов 7 и 19 в направлении включения правое плечо рычага – сцепителя 31 встречается с болтом 30, от чего рычаг-сцепитель поворачивается по часовой стрелке, и его левое плечо выходит из контакта с роликом 33. Рыча-ги 7 и 19 расцепляются. Расцепление их происходит в положении, гарантирующем западание зуба 26 за удерживающую ось рычага 14.![]()
3.19. Ведущий рычаг 7 продолжает вращение против часовой стрелки, но после встречи ролика 6 с плунжером буфера 5 затормаживается последним и останавливается.
3.20. Ведомый рычаг 19, на который после его расцепления с ведущим рычагом’ 7 рабочие пружины 46 привода не действуют, после некоторого инерционного “выбега” останавливается, а затем, под действием отключающих пружин выключателя, начинает вращаться по часовой стрелке, пока его зуб 26 не упрется в удерживающую ось рычага 14. Рычаг 4 (см. рисунок- 8), связанный с ведомым рычагом 19 через шлицевый вал 34, поворачиваясь при включении выключателя против часовой стрелки, вначале вращается свободно. Затем, упершись в болт 5, вовлекает во вращение и рычаг, состоящий из щек 2 и 23, и, следовательно, приводит в движение поршень со штоком 9 буфера. При этом рабочая жидкость буфера из штоковой его полости и пространства между корпусом 13 и стаканом 12 через отверстия в стакане и обратный клапан поршня перетекает в поршневую полость.
Шток 9 буфера занимает положение показанное на рисунке 8,а. Этим процесс включения выключателя завершается.
Примечание. Во включенном положении ведомого рычага привода пружина 11 буфера не сжата. На “перелете” ведомого рычага 19 за включенное положение, (который необходим и всегда имеет место при включении выключателя “с посадкой на защелку”), пружина 11 несколько сжимается, а потом, при посадке зуба 26 (рисунок 3) на удерживающую ось рычага 14, снова принимает исходное (ненапряженное) состояние.
1 2 3
ВГТ-110 (У1, УХЛ1*) Выключатель элегазовый колонковый — farforelectro.ru
Категория: Выключатели колонковые
Назначение
Предназначены для коммутации электрических цепей при нормальных и аварийных режимах, а также работы в циклах АПВ в сетях трехфазного переменного тока частотой 50 Гц с номинальным напряжением 110 кВ.
Конструкция
Выключатели состоят из трех полюсов (колонн), установленных на общей раме и управляемых одним пружинным приводом ППрМ.
Конструкция взрывобезопасного исполнения.
Пониженные усилия оперирования выключателем. Энергия, необходимая для гашения токов короткого замыкания, частично используется из самой дуги за счет специальной конструкции узлов управления потоком газа, что существенно уменьшает нагрузку привода и повышает надежность. Использование четырех ступеней уплотнений совместно с гидравлическим затвором в узле уплотнения вала поворотного механизма обеспечивает стабильно низкий уровень утечек: не более 0,5% в год.
Современные технологические и конструкторские решения в области применения и обработки материалов, применение надежных комплектующих, в том числе высококачественных покрышек ведущих зарубежных фирм.
Стальные части выключателя и опорные металлоконструкции имеют коррозионно-стойкие покрытия.
Выключатели могут поставляться по заказу с укороченными заводскими опорными стойками, а также с высокими опорными стойками или без них.
Преимущества:
- Сохранение электрической прочности изоляции выключателя при напряжении равном 84 кВ в случае потери избыточного давления газа в выключателе.

- Отключение емкостных токов без повторных пробоев, низкие перенапряжения.
- Низкий уровень звуковых шумов при срабатывании (соответствует природоохранным требование).
- Низкие динамические нагрузки на фундаментные опоры.
- Надежность и безопасность пружинного привода ППрМ подтверждена многолетним опытом управления колонковыми выключателями.
- Наличие в приводе автоматического управления двух ступеней обогрева (антиконденсатный и основной) шкафа привода и контроль их исправности.
- Комплектующие изделия закупаются у ведущих, зарекомендовавших себя отечественных и зарубежных производителей.
- Блочно-модульная конструкция выключателя позволяет осуществлять поставку заказчику продукции в удобной таре с минимальным объемом при минимальных транспортных затратах, а также обеспечить удобный и оперативный монтаж и ввод в эксплуатацию, которые выполняются под руководством шеф-инженера.
Технические характеристики
| Номинальное напряжение, кВ: | 110 |
| Наибольшее рабочее напряжение, кВ: | 126 |
| Номинальный ток, А | 2000, 3150 |
| Номинальный ток отключения, кА | 40 |
| Нормированное процентное содержание апериодической составляющей, % не более | 45 |
Нормированные параметры тока включения, кА
|
102 40 |
Нормированные параметры сквозного тока короткого замыкания, кА:
|
102 40 3 |
| Нормированный ток отключения ненагруженной воздушной линии, А | 31,5 |
| Нормированный ток отключения конденсаторной батареи, А | 320 |
| Собственное время отключения, при номинальном напряжении на элементах управления, мс, не более | 38 |
| Полное время отключения, при номинальном напряжении на элементах управления, мс, не более | 55 |
| Собственное время включения, при номинальном напряжении на элементах управления, мс, не более | 60 |
| Нормированная бестоковая пауза при АПВ, с | 0,3 |
Развновременности замыкания и размыкания контактов полюсов с, не более при включении при отлючении |
0,0018 0,0015 |
| Удельеная длина пути утечки, см/кВ | 2,5 |
| Допустимый уровень утечки газа в год, % не более | 0,5 |
Давление газа (SF6), приведенное к плюс 20ºС, МПа, избыточное:
|
0,4 0,35 0,32 |
| Номинальное напряжение катушек включения и отключения, В, постоянное | 220/110 |
Номинальное напряжение питания электродвигателя привода, В, переменное
|
400 или 230 230 220 |
| Ток катушек включения и отключения при номинальном напряжении, А, не более | 3/5 |
| Номинальное напряжение питания устройств подогрева, В, переменное | 230 |
Число пар коммутирующих контактов для внешних цепей:
|
12 12 |
| Температура включения устройств подогрева, ºС | 1±1 |
| Масса, кг | 1570 |
|
Заглавная страница
КАТЕГОРИИ: Археология ТОП 10 на сайте Приготовление дезинфицирующих растворов различной концентрации Техника нижней прямой подачи мяча. Франко-прусская война (причины и последствия) Организация работы процедурного кабинета Смысловое и механическое запоминание, их место и роль в усвоении знаний Коммуникативные барьеры и пути их преодоления Обработка изделий медицинского назначения многократного применения Образцы текста публицистического стиля Четыре типа изменения баланса Задачи с ответами для Всероссийской олимпиады по праву Мы поможем в написании ваших работ! ЗНАЕТЕ ЛИ ВЫ? Влияние общества на человека Приготовление дезинфицирующих растворов различной концентрации Практические работы по географии для 6 класса Организация работы процедурного кабинета Изменения в неживой природе осенью Уборка процедурного кабинета Сольфеджио. Все правила по сольфеджио Балочные системы. |
⇐ ПредыдущаяСтр 8 из 9Следующая ⇒
Принцип работы и устройство элегазовых выключателей серии ВГТ Выключатели серии ВГТ относятся к электрическим коммутационным аппаратам высокого напряжения, в которых гасящей и изолирующей средой является элегаз (SF6). Выключатель ВГТ-110II* состоит из трех полюсов (колонн), установленных на общей раме и механически связанных друг с другом. Все три полюса выключателя управляются одним пружинным приводом типа ППрК-1800С. В выключателе ВГТ-220II* каждый полюс имеет раму и управляется своим приводом. Принцип работы выключателей основан на гашении электрической дуги потоком элегаза, который создается за счет перепада давления, обеспечиваемого автогенерацией, т.е. за счет тепловой энергии самой дуги. Включение выключателей осуществляется за счет энергии включающих пружин привода, а отключение – за счет энергии пружины отключающего устройства выключателя.
Каталог высоковольтной аппаратуры АО “НИИ Уралэлектротяжмаш”
Таблица 24 ЭЛЕГАЗОВЫЕ ВЫКЛЮЧАТЕЛИ СЕРИИ ВГУ НАРУЖНОЙ УСТАНОВКИ
Рис. Каталог высоковольтной аппаратуры АО “НИИ Уралэлектротяжмаш” Таблица 25 ТЕХНИЧЕСКИЕ ХАРАКТЕРИСТИКИ ВАКУУМНЫХ ВЫКЛЮЧАТЕЛЕЙ
НАЗНАЧЕНИЕ Выключатели предназначены для эксплуатации в сетях трехфазного переменного тока частоты 50 и 60 Гц. Выключатели серии ВБУ на 35-110 кВ разработаны для внутренней установки (УЗ) на подстанциях питания электродуговых сталеплавильных печей. Выключатели серий ВБЦ, ВБСЕ на 35 кВ разработаны для внутренней установки (УЗ) на передвижных комплектных трансформаторных подстанциях, подстанциях питания руднотермических и электродуговых печей. Выключатели серий ВВК и ВБН на 27,5 и 35 кВ наружной установки (УХЛ2) предназначены для подстанций промышленных предприятий и тяговых подстанций железных дорог. Каталог продукции Кушвинского Электромеханического Завода (КУЭМЗ) Таблица 26 ⇐ Предыдущая123456789Следующая ⇒ Читайте также: Где возникла философия и почему? Относительная высота сжатой зоны бетона Сущность проекции Гаусса-Крюгера и использование ее в геодезии Тарифы на перевозку пассажиров |
|||||||||||||||||||||||||||||||||||||||||||||||||||||||||||||||||||||||||||||||||||||||||||||||||||||||||||||||||||||||||||||||||||||||||||||||||||||||||||||||||||||||||||||||||||||||||||||||||
|
Последнее изменение этой страницы: 2021-05-27; просмотров: 218; Нарушение авторского права страницы; Мы поможем в написании вашей работы! infopedia. |
||||||||||||||||||||||||||||||||||||||||||||||||||||||||||||||||||||||||||||||||||||||||||||||||||||||||||||||||||||||||||||||||||||||||||||||||||||||||||||||||||||||||||||||||||||||||||||||||||
Технические данные разъединителей и заземлителей 110кВ. Пс 110/ 10кВ «Ольховка».
Введение
В данном отчете мной рассматривается ПС-110/10 кВ «Ольховская». Приведена ее главная схема, состав основного оборудования, такого как трансформаторы ТМН-6300/110-80У1, ТМ-40/10 У1, ТФНД-110
, НКФ-110-II-У1, технические характеристики, мероприятия по его эксплуатации
Состав основного оборудования ПС 110/10 «Ольховская»
ПС Ольховка 110/10кВ является двухтрансформаторной подстанцией.
К 1 секции шин 110кВ подключены ЛЭП-110кВ №469 и через ОД-110 Т-1,
КЗ-110
Т-1 трансформатор Т-1. Ко 2 секции шин
110кВ подключены ЛЭП-110кВ № 466 и через
ОД-110 Т-2, КЗ-110 Т-2 трансформатор Т-2.
1 и 2
секции шин замыкаются через СВ-110кВ или
через межлинейную перемычку 110кВ.
Оперативные цепи (±ШУ) автоматики
СВ-110кВ, защит линий 110кВ и защит
трансформаторов Т-1, Т-2 выполнены на
выпрямленном оперативном токе и запитаны:
– от ТСН-10кВ через блоки УСН и УПНС;
– от выносных трансформаторов тока 110кВ через блоки БПТ.
Такая организация оперативных цепей (±ШУ) при близких КЗ и глубоком снижении напряжения в сети, позволяет защитам линий 110кВ работать на отключение СВ-110кВ. Оперативные цепи отключения СВ-110кВ от защит линий 110кВ, от защит Т-1(Т-2), а также цепи включения КЗ-110кВ и отключения ОД-110кВ трансформаторов, запитаны от ТСН через блоки заряженных конденсаторов.
Питание
оперативных цепей (ШУ) отходящих
присоединений КРУН-10кВ с выключателями
типа ВК-10 и ВВ/TEL выполнено
на переменном оперативном токе от ТСН.
Питание оперативных цепей (ШУ) В-10
Т-1(Т-2) и СВ-10 оборудованных выключателями
типа ВВ/TEL и микропроцессорной
защитой типа БЭМП выполнено на выпрямленном
оперативном токе.
Рассмотрим подробнее некоторое основное оборудование.
На ПС110/10 кВ «Ольховка» установлены силовые масляные трансформаторы типа ТМН-6300/110-80 У1(Т-1) и ТМН-6300/110 (Т-2) ), ТМ-40/10/0,4 (ТСН-1 и ТСН-2).
Технические данные силовых трансформаторов, установленных
ПС 110/10 «Ольховка».
№№ | Наименование параметра | Технические данные | |
Т-1 | Т-2 | ||
1 | Тип | ТМН-6300/110-80У1 | ТМН-6300/110 У1 |
2 | Завод – изготовитель | ЗТЗ | ЧТЗ |
3 | Заводской номер | 131955 | 1023 |
4 | Год изготовления | 1987 | 1990 |
5 | Год ввода в эксплуатацию | 1987 | 1996 |
6 | Номинальная мощность, кВА Sн ВН/НН | ||
6300/6300 | 6300/6300 | ||
7 | Номинальное напряжение, кВ Uн ВН Uн НН | ||
115±9х1,78 | 115±9х1,78 | ||
11 | 11 | ||
8 | Номинальный ток, кА Iн ВН Iн НН | 31,6 | 31,6 |
331 | 331 | ||
9 | Испытательное напряжение нейтрали, кВ | 100 | 100 |
Изоляция нейтрали | – | – | |
10 | Схема и группа соединения обмоток | Yо/ Δ -11 | Yо/ Δ -11 |
11 | Напряжение КЗ, % Ек ВН-НН | 11,4 | 11,2 |
12 | Ток ХХ, % Iхх | 0,85 | 1,3 |
13 | Потери КЗ, кВт ΔРкз | 43,4 | 44,4 |
14 | Потери ХХ, кВт ΔРхх | 10,25 | 10,4 |
15 | Тип РПН | РС-4 | РС-9 |
16 | Тип газового реле | BF-80/Q | РГЧЗ-66 У1 |
17 | Тип вводов ВН | ГТТА-60-110/800-У1 | ГТТБ-60-110/800 У1 |
18 | Система охлаждения | «М» | «М» |
19 | Общий вес, т | 27,5 | 27,133 |
20 | Вес масла, т | 9,96 | 9,6 |
21 | Вес активной части, т | – | – |
22 | Транспортный вес, т | – | – |
Технические
данные ТСН-10 кВ.
ПС 110/10 «Ольховка».
№№ | Наименование параметра | Технические данные | ||||
1 | Диспетчерское наименование | ТСН-I-10 | ТСН-II-10 | |||
2 | Тип | ТМ-40/10 У1 | ТМ-40/10 У1 | |||
3 | Завод – изготовитель | Г. Барнаул | Г. | |||
4 | Заводской номер | 846 | 848 | |||
5 | Год изготовления | 2002 | 2002 | |||
6 | Год ввода в эксплуатацию | 2003 | 2003 | |||
7 | Номинальная мощность, кВА | 40 | 40 | |||
8 | Номинальное напряжение, В | ВН | НН | ВН | НН | |
+5% | 400 | +5% | 400 | |||
+2,5% | +2,5% | |||||
10 000 | 10 000 | |||||
-2,5% | -2,5% | |||||
-5% | -5% | |||||
9 | Номинальный ток, А | 2,31 | 57,73 | 2,3 | 57,7 | |
10 | Схема и группа соединения обмоток | Y/Yо -0 | Y/Yо -0 | |||
11 | Напряжение КЗ, % | 4,29 | 4,33 | |||
12 | Масса масла, кг | – | – | |||
13 | Масса, кг | – | – | |||
ЭЛЕГАЗОВЫЕ
ВЫКЛЮЧАТЕЛИ 110 кВ.
На подстанции установлены элегазовые выключатели марки ВГТ-110 II – 40/2500 У1с приводом ППрК-1800 СУ1
Технические данные элегазового выключателя СВ-110кВ.
ПС 110/10 «Ольховка». ВГТ-110II*-40/2500 У1.
Наименование параметра | Ед.изм. | Технические данные |
Год выпуска/ Год ввода/Завод.№ | 2001 / 2002 / 360 | |
Тип | ВГТ-110II*-40/2500 У1 | |
Номинальное рабочее напряжение, | кВ | 110 |
Максимальное рабочее напряжение, | кВ | 126 |
Номинальный ток, | А | 2500 |
Ток отключения, | кА | 40 |
Собственное время включения | сек. | 0,062-0,018 |
Собственное время отключения | сек. | 0,035-0,055 |
Время цикла мгновенного АПВ, | сек. | 0,3 |
Тип привода | ППрК-1800С | |
Год выпуска/ Год ввода/Завод.№ | 2001 / 2002 / 360 | |
Расход элегаза на утечки в год, | % | 0,5 |
Абсолютное давление элегаза, приведенное к +200С: | ||
– давление заполнения, | Мпа (кГс/см2) | 0,5 (5,0) |
– давление
предупред. | 0,44 (4,4) | |
–давление блокировки запрета оперирования | 0,42 (4,2) | |
Номинальное напряжение электромагнита привода | В | 220 |
Вес выключателя с приводом | т. | 1,65 |
Масса элегаза | т. | 0,0042 |
Диапазон рабочих напряжений электромагнитов управления в % от Uном | ||
– включающего | % | 80 – 110 |
– отключающего | % | 65 – 120 |
Iном при: – 220/110 В постоянного тока | А | 1/2 |
-220 переменного тока | А | 10 |
Uном
переменного тока эл. | В | 380/220 |
Мощность эл. двигателя завода рабочих пружин | кВт | 0,75 |
Время завода рабочих пружин привода не более | сек. | 15 |
Uном переменного тока подогревательных устройств | В | 220 |
Суммарная мощность подогревательных устройств | кВт | 0,8 |
Объем жидкости ПМС-200 в буфере отключения | дм3 | 0. |
Объем масла трансформаторного в буфере включения | дм3 | 0,08 |
Объем масла И-21А в редукторе | дм3 | 0,64 |
Масса привода | кг | ≤270 |
Выключатель предназначен для эксплуатации:
– при верхнем значении температуры окружающего воздуха + 400С
– при нижнем значении температуры окружающего воздуха – 450С
Выключатели
типа ВГТ-110-II
имеют высокие ресурсы по коммутационной
и механической стойкости и при правильной
эксплуатации не требуют ремонта до 25
лет рока службы.
На ОРУ ПС установлены разъединители, отделители и короткозамыкатели 110 кВ:
– разъединители типа РДЗ-2-110/1000НУХЛ1, РДЗ-1-110/1000НУХЛ1 с приводами типа ПР-05-2Б УХЛ1,;
– отделители типа ОДЗ-1-110/1000-УХЛ1 с приводом ПРО-1ХЛ1;
– короткозамыкатель типа КЗ-110-УХЛ1 с приводом ШПКМ- IХЛ1.
Технические данные отделителей 110 кВ и короткозамыкателей110кВ.
ПС110/10 кВ «Ольховка».
Наименование параметра | Техн. данные | Техн. данные | Техн. данные | Техн. данные |
ОД-110-Т-1 | ОД-110-Т-2 | КЗ-110-Т-1 | КЗ-110-Т-2 | |
Тип | ОД-110/1000-УХЛ1 | ОД-110/1000-УХЛ1 | КЗ-110М-У1 | КЗ-110М-У1 |
Завод изготовитель | Великолукский з-д Высоковольтной аппаратуры | Великолукский з-д Высоковольтной аппаратуры | Великолукский з-д Высоковольтной аппаратуры | Великолукский з-д Высоковольтной аппаратуры |
№ полюсов А В С | – – – | – – – | – | – |
Год выпуска/ввода | -/1987 | -/1987 | -/1996 | -/1996 |
Тип изоляторов | ИОС-110-600 У1 | ИОС-110-600 У1 | ИОС-110-600 У1 | ИОС-110-600 У1 |
Номинальное напряжение, кВ | 110 | 110 | 110 | 110 |
Наибольшее рабочее напряжение, кВ | 126 | 126 | 126 | 126 |
Ном. | 1000 | 1000 | 1000 | 1000 |
Предельный ток термической устойчивости:, кА | 31,5 | 31,5 | 20 | 20 |
Амплитуда предельного сквозного тока, кА | 80 | 80 | 51 | 51 |
Время протекания предельного тока термическойстойкости: | ||||
-для
главных ножей, сек. | 3 | 3 | 3 | 3 |
-для заземляющеего ножа, сек. | 1 | 1 | – | – |
Время отключения отделителя с приводом (время от подачи команды на отключение до полного расхождения главных ножей) без гололеда, сек., не более | 0,38 | 0,38 | 0,14 | 0,14 |
Время
отделителя с приводом при гололеде
до 15 мм, сек. | 0,45 | 0,45 | 0,2 | 0,2 |
Вес полюса, кг | 290 | 290 | 150 | 150 |
Тип привода | ПРО-1У1 | ПРО-1У1 | ШПКМ- IХЛ1 | ШПКМ- IХЛ1 |
Год выпуска / № привода | – / – | – / – | – / – | – / – |
Вес привода, кг | 87 | 87 | 120 | 120 |
Техн. | |||||||||||
Наименование параметра | ЛР-ЛЭП-469 | СР-ЛЭП-469 | ШР-1-СВ-110 | ТР-110-Т-1 | ЛР-ЛЭП-466 | СР-ЛЭП-466 | ШР-2-СВ-110 | ТР-110-Т-2 | ЗОН-110-Т-1 | ЗОН-110-Т-1 | РПГ-110 |
Тип | РДЗ-2-110/1000НУХЛ1 | РДЗ-2-110/1000НУХЛ1 | РДЗ-2-110/1000НУХЛ1 | РДЗ-1-110/1000НУХЛ1 | РДЗ-2-110/1000НУХЛ1 | РДЗ-2-110/1000НУХЛ1 | РДЗ-2-110/1000НУХЛ1 | РДЗ-1-110/1000НУХЛ1 | ЗОН-110Б-IIУХЛ1 | ЗОН-110Б-IIУХЛ1 | РДЗ-2-110/1000НУХЛ1 |
№ полюсов А, В, С | 1246 1248 1247 | 1312 1310 1311 | 1315 1314 1313 | 1389 1388 1390 | 1323 1322 1324 | 1333 1331 1332 | 1199 1197 1198 | 1380 1379 1381 | – | – | – – – |
Завод изготовитель | ЗАО
«ВЗВА» г. | ЗАО «ВЗВА» г.Великие Луки | ЗАО «ВЗВА» г.Великие Луки | ЗАО «ВЗВА» г.Великие Луки | ЗАО «ВЗВА» г.Великие Луки | ЗАО «ВЗВА» г.Великие Луки | ЗАО «ВЗВА» г.Великие Луки | ЗАО «ВЗВА» г.Великие Луки | ЗАО «ВЗВА» г.Великие Луки | ЗАО «ВЗВА» г.Великие Луки | ЗАО «ВЗВА» г.Великие Луки |
Год выпуска | 2001 | 2001 | 2001 | 2001 | 2001 | 2001 | 2001 | 2001 | – | – | 2001 |
Год ввода | 2002 | 2002 | 2002 | 2002 | 2002 | 2002 | 2002 | 2002 | – | – | 2002 |
Тип изоляторов | С-4-450 1-02 | С-4-450 1-02 | С-4-450 1-02 | С-4-450 1-02 | С-4-450 1-02 | С-4-450 1-02 | С-4-450 1-02 | С-4-450 1-02 | УСТ-110 | УСТ-110 | С-4-450 1-02 |
Номинальное напряжение, кВ | 110 | 110 | 110 | 110 | 110 | 110 | 110 | 110 | 110 | 110 | 110 |
Наибольшее рабочее напряжение, кВ | 126 | 126 | 126 | 126 | 126 | 126 | 126 | 126 | 126 | 126 | 126 |
Ном. | 1000 | 1000 | 1000 | 1000 | 1000 | 1000 | 1000 | 1000 | 400 | 400 | 1000 |
Ток электродин. стойкости, кА | 63 | 63 | 63 | 63 | 63 | 63 | 63 | 63 | 16 | 16 | 63 |
Ток термической устойчивости, кА | 25 | 25 | 25 | 25 | 25 | 25 | 25 | 25 | 6,3 | 6,3 | 25 |
Время протекания тока термической стойкости, сек | – | – | – | – | – | – | – | – | – | – | – |
-для
гл. | 3 | 3 | 3 | 3 | 3 | 3 | 3 | 3 | – | – | 3 |
-для зазем.ножа | 1 | 1 | 1 | 1 | 1 | 1 | 1 | 1 | 3 | 3 | 1 |
Тип привода | ПР-05-2Б УХЛ1 | ПР-05-2Б УХЛ1 | ПР-05-2Б УХЛ1 | ПР-06-2Б УХЛ1 | ПР-05-2Б УХЛ1 | ПР-05-2Б УХЛ1 | ПР-05-2Б УХЛ1 | ПР-06-2Б УХЛ1 | ПРН-11 У1 | ПРН-11 У1 | ПР-05-2Б УХЛ1 |
Год
выпуска/Завод. | 2001/359 | 2001/475 | 2001/477 | 2001/- | 2001/369 | 2000/590 | 2001/470 | 2001/- | – / – | – / – | 2001/- |
Вес полюса, кг | 182/162 | 182/162 | 182/162 | 162/154 | 182/162 | 182/162 | 182/162 | 162/154 | 152 | 152 | 182/162 |
Вес привода, кг | 22 | 22 | 22 | 22 | 22 | 22 | 22 | 22 | 8,7 | 8,7 | 22 |
На
ОРУ-110 кВ ПС “Ольховка” установлены
измерительные трансформаторы тока и
напряжения 110 кВ.
Трансформаторы тока типа 110 кВ ТФЗМ-110Б-IV-У1 и ТФНД-110 и трансформаторы напряжения НКФ-110-II-У1 предназначены для эксплуатации при следующих температурах окружающего воздуха:
– верхний предел – плюс 450С;
– нижний предел – минус 500С.
Технические данные трансформаторов тока 110 кВ.
ПС 110/10 «Ольховка»
Наименование параметра | Технические данные | Технические данные | Технические данные | Технические данные |
Дисп. наименование | ТТ-110-Т-1 | ТТ-110-Т-2 | ТТ-1-СВ-110 | ТТ-2-СВ-110 |
Тип трансформатора | ТФНД-110 ТФНД-110 | ТФНД-110 ТФНД-110 | ТФЗМ-110Б-IV У1 ТФЗМ-110Б-IV У1 ТФЗМ-110Б-IV У1 | ТФЗМ-110Б-IV У1 ТФЗМ-110Б-IV У1 ТФЗМ-110Б-IV У1 |
Завод изготовитель | Украина, ЗТЗ | Украина, ЗТЗ | Украина, ЗТЗ | Украина, ЗТЗ |
Год выпуска: | ||||
Фаза «А» | 1982 | 1982 | 2001 | 2001 |
Фаза «В» | 2001 | 2001 | ||
Фаза «С» | 1982 | 1982 | 2001 | 2001 |
Заводской номер: | ||||
Фаза «А» | – | – | 12505 | 12675 |
Фаза «В» | 12512 | 12596 | ||
Фаза «С» | – | – | 12513 | 12676 |
Номинальный ток:, А | ||||
– первичный | 300 | 300 | 600 | 600 |
– вторичный | 5 | 5 | 5 | 5 |
Напряжение:, кВ | ||||
– номинальное | 110 | 110 | 110 | 110 |
– наибольшее рабочее | 126 | 126 | 126 | 126 |
Класс точности | 0,5 (5Р-10Р) | 0,5 (5Р-10Р) | 0,5 (5Р-10Р) | 0,5 (5Р-10Р) |
Трансформаторное масло марки | ТКп
ТУ38. | ТКп ТУ38.101.890-81 | ТКп ТУ38.101.890-81 | ТКп ТУ38.101.890-81 |
Масса, кг | – | – | 505 | 505 |
Технические данные трансформаторов напряжения 110 и 10 кВ.
ПС 110/10 «Ольховка».
Наименование параметра | Технические данные | Технические данные | Технические данные | Технические данные |
Диспет. | ТН-1-110 | ТН-2-110 | ТН-1-10 | ТН-2-10 |
Тип трансформатора А В С | НКФ-110-II-У1 | НКФ-110-II-У1 | НАМИТ-10-1 | НАМИ-10-66-У2 |
НКФ-110-II-У1 | НКФ-110-II-У1 | |||
НКФ-110-II-У1 | НКФ-110-II-У1 | |||
Завод изготовитель | Свердловский трансформаторный з-д | Свердловский трансформаторный з-д | Свердловский трансформаторный з-д | Свердловский трансформаторный з-д |
Год выпуска: | ||||
Фаза «А» | 2001 2001 2001 | 2001 2001 2001 | 2001 | 1985 |
Фаза «Б» | ||||
Фаза «С» | ||||
Заводской номер: | 2002 | |||
Фаза «А» | 3448 3419 3386 | 3559 3560 3334 | 1019 | 64532 |
Фаза «Б» | ||||
Фаза «С» | ||||
Номинальное напряжение, кВ | ||||
Первичной обмотки | 110: √3 | 110: √3 | 10 | 10 |
Вторичной обмотки | 0,1: √3 | 0,1: √3 | 0,1 | 0,1 |
Вторичной дополнительной | 0,1 | 0,1 | – | – |
Класс точности | 0,5/1,0/3,0 | 0,5/1,0/3,0 | 0,5 | 0,2 |
Трансформаторное масло марки | ТУ38. | ТУ38.101.281-80 | ТУ38.101.281-80 | ТУ38.101.281-80 |
Масса, кг | – | – | 110 | 110 |
. В КРУН-10 установлены шкафы серии К-47 У1, К-59 У1, служащие для питания потребителей и нагрузок собственных нужд подстанции.
Краткая характеристика КРУН–10 кВ.
КРУН -10кВ серии К-59 предназначены для работы при температуре окружающей среды от минус 40˚С до плюс 40˚ С.
Проектирование районной подстанции транзитной мощностью 80000 кВА, страница 5
Окончательно выбираем выключатель ВГТ-110II, удовлетворяющий
всем параметрам.
5.10. Выбор разъединителей на стороне СН.
Предварительно выбираем разъединитель РНД3-110
Таблица 10 – Технические характеристики разъединителя РНД3-110
Ном. напряжение, кВ | Ном. ток, А | Пред. сквозной ток, кА | , кА/с | |
Амплит. | Действ. | |||
110 | 1000 | 80 | 20 | 31/3 |
Проверка по напряжению электроустановки:
110=110 кВ
По длительному рабочему току утяжеленного режима:
0,236<1 кА
По динамической стойкости:
2,29 < 20 кА
6,17 < 80 кА
По термической стойкости:
1,47 < 3123=2883 кА2с
Окончательно выбираем разъединитель РНД3-110,
удовлетворяющий всем параметрам.
5.11. Выбор трансформаторов тока на стороне СН.
В качестве трансформаторов тока на стороне среднего напряжения выбираем однотипные трансформаторы для различных присоединений ТФЗМ 110М-17.
Таблица 11 – Технические характеристики ТФЗМ 110М-17
UН | I1Н | I2Н | Z2Н | Iдин | It/tt |
кВ | А | А | Ом | кА | кА/с |
110 | 300 | 5 | 0,8 | 100 | 34/3 |
Трансформаторы тока выбираются по следующим условиям:
По конструкции и классу точности:
Выбираем ТТ с классом точности 0,5
По напряжению электроустановки:
110=110 кВ
По рабочему току утяжеленного режима:
236<300 А
По вторичной нагрузке:
К ТТ подключаются:
· амперметр 1шт.
· ваттметр 1шт.
· варметр 1шт.
· ваттметр регистрирующий 2шт.
;
– сопротивление контактов
– сопротивление приборов
Находим сечение соединительных проводов:
где – удельное сопротивление алюминия
– фактическая длина соединительного провода от ТТ до измерительных приборов.
Схема соединения – звезда
По электродинамической стойкости:
– кратность электродинамической стойкости.
22,22 < 42,4 кА
По термической стойкости:
Выбор трансформаторов тока на отходящих линиях 110 кВ.
По рабочему току утяжеленного режима:
105 < 300 А
По вторичной нагрузке:
К ТТ подключаются: амперметр 1шт.
;
– сопротивление контактов
– сопротивление приборов
Находим сечение соединительных проводов:
5.12. Выбор
трансформаторов напряжения на стороне СН.
Выбираем трансформатор НКФ-110-57
Таблица 12 – Технические характеристики НКФ-110-57
U1Н | U2Н | SН |
кВ | В | ВА |
110 | 100 | 400 |
Трансформатор выбирают:
По конструкции и классу точности:
Выбираем ТН с классом точности 0,5
По напряжению электроустановки:
110=110 кВ
По величине вторичной нагрузке:
К ТН подключаются:
· вольтметр регистрирующий 1шт.
· вольтметр 1шт.
· частотомер 1шт.
· ваттметр 2шт.
· варметр 2шт.
· счетчик активной мощности 2шт.
30,27 < 400 ВА
Рисунок 3 – Измерительные приборы трансформаторной подстанции
6. Выбор и расчет релейной защиты и автоматики электроустановки.
6.1. Защита трансформаторов.
Дифференциальная и газовая защита
– наиболее важные защиты. Релейная защита (РЗ) трансформаторов осуществляется с
помощью нескольких типов защит, дополняющих друг друга – такое резервирование
называется ближним. Но защита должна действовать и при КЗ, т.е. осуществляется
дальнее резервирование – действие при КЗ в сети низкого напряжения в случаях
отказа собственной защиты или выключателя поврежденного элемента. Осуществлять
дальнее резервирование способны лишь защиты с относительной селективностью.
К
ним относятся: максимальная токовая защита от внешних КЗ и специальная защита
нулевой последовательности от однофазных КЗ на землю.
Технические характеристики Hyundai Matrix 1.5 CRDi VGT Manual, 110hp, 2006
Объяснение: IncladeUnAvailableOptional-Infrformation отсутствует
Engine & PerformancenceImensions & WeightErderInterFeatRessaFety & Security Other
Двигатель и производительность
Двигатель
Спецификация двигателя
Power
81 KW
HorsePower
110705.
81 KW
Horsepower
110 HP (109 BHP)
HorsePower
110,1000
81 к.п.0005
Rev. At Max Power
4000 об / мин
Крутящий момент
235 нм
Крутящий момент
173 фунт-футов
Rev. При максимальном крутящем моменте
2000 об / мин
.
10W-30
Полусинтетическое масло (вязкость)
5W-30
Моторное масло, объем
5 L
Конфигурация двигателя
Дисметрой
1 493 CC / 1,5 L
DISLAINDERS
1 493 CC / 1,5 L
1 4
5
4 цил.
/ 4 В на цилиндр.
Bore
75 mm
Stroke
84.5 mm
Compression Ratio
17.8 :1
Engine Configuration
Inline
Turbocharger
Yes
Synchronization
Timing Chain
Service Intervals
Air Фильтр
45 000 км / 3 года
Топливный фильтр
30 000 км / 2 года
Тормозная жидкость
2 года
Изменение масла и фильтр двигателя
15 000 км / 1 годы
Охлаждающая жидкость двигателя
30 000 км / 2 года
Внутренний фильтр
30 000 км / 2 года
тормоза
парковка
9000 9000 40005
9000 9000 4000955 90009999
9000 9000 40005959
9000 9000 4000959 9000
4 9000
4900059
Рычаг
Материал
Пластик
Кожа
Дополнительно
Передние тормоза
Дисковые тормоза
Охлаждение
Вентилируемые
Задние тормоза0005
Drum Brakes
Suspensions
Spring, Front
Coil
Suspension, Front
Independent
MacPherson Strut
Spring, Rear
Coil
Suspension, Rear
Independent
Multi -link
Топливо
Общее
Топливо
Дизель
Объем бака
55 л
Выбросы
Выбросы Стандарт
Euro 4
Fuel Consumption NEDC
City
6.
3 l/100km
Highway
4.5 l/100km
Combined
5.2 l/100km
Emission NEDC
CO₂, Combined
136 g/ KM
Производительность
Top Speed
170 км/ч
Ускорение, 0-100 км/ч
13,9 СЕД
ИЗМЕНЕНИЯ И ВЕС
ВНЕШЕ
Длина
4,060 мм
004 Width
1,740 mm
Height
1,685 mm
Track, Front
1,485 mm
Track, Rear
1,485 mm
Wheel Base
2,600 mm
Turning Circle
10.4 m
Weight
Weight
1,380 кг
Валовый вес
1 840 кг
MAX Trailer Trait, Brained 12%
1,300 кг
Max Trailer, бреть 8%
1,60000 кг
.0005
Max Trailer Load, unbraked
750 kg
Cargo Capacity
460 kg
Max Roof Load
70 kg
Max Towbar Download
52 kg
Exterior
Chassis & Body
Chassis
Шасси
Минивэн
Стойки
A-D
Конструкция шасси
Цельный кузов
Двери
Количество дверей
4 5 0
004 Conventional
Rear Doors
Conventional
Platform
Hyundai-Kia Platforms
J Platform (J3)
Equipment
Side Mirrors
Mirror Type
Conventional
Adjustments
Electrical
Heated
Да
Цвет дома
Как у автомобиля
Стеклоочистители ветрового стекла
Задний стеклоочиститель
Да
Задний омыватель
Да
Окна
Стеклоподъемники, передние
С электроприводом
Стеклоподъемники, задние
С электроприводом
Окна с подогревом
Задние
Передние окна 004 |0004 Теплоизоляция Первый ряд | Второй ряд | Задняя частьТонированные окна
Опция
Второй ряд
Опция
Заднее стекло
Опция
Другое оборудование
Люк в крыше
Опция
0005
Fixed
Antenna
Whip
Mud Flaps
Optional
Rear
Optional
Lights
Main Beam
Halogen
Low Beam
Halogen
Rear Lights
Halogen
Fog Lights
Да
Передние
Галогенные
Специальные функции
Регулировка угла наклона фар
Руководство
Диски и шины
Количество болтов
4
Расстояние болта
114,3
Гаек/болт.
Дисковое колесо
Размеры шин
| Рекомендуемые размеры | |||
| Шины | Обод | Давление в шинах (бар) FN (FF) / 75 9 9 0 | 5.5×15 ET46 | 2.3 (2.5) / 2.3 (2.5) |
|---|---|---|---|
| 185/65R14 | 5.5×14 ET46 | 2.3 (2.5) / 2.3 (2.5) | |
| 195/50R16 | 6×16 ET40 | – | |
Interior
Equipment
Instrument Cluster
Trip Computer
Yes
Display
Yes
Type
Monochrome
Speedometer
Аналог
Тахометр
Аналог
Дайром топлива
Аналог
Давление масла
Аналог
Climate Control
Климат -контроль
Руководство
Да
9000 40004.
9000 4000 40004 Да
9000 40004.9000 4000 4000 40004.
Подготовка радио
Да
Динамики
Общее количество динамиков
4
Сабвуфер
Yes
Number of Subwoofers
2
Interior Storage
Storage Compartments
Glove Compartment
Yes
Armrest Hatch
Back
Back Pocket
Yes
Sunglass Compartment
Yes
Под сиденьями
Передняя часть
Дверь
Со стороны водителя | Пассажирская сторона | Задние
Подстаканники
Да
Передние
Да
Задняя
Да
Фары
Лампа чтения
Передняя
Направляющая лампа
Да
Другое оборудование Боковое зеркало
Макияж Со стороны пассажира
Часы
Да
Цифровой
Центральный дисплей | Комбинация приборов
Розетка 12 В
Передняя панель
Ковры
Дополнительно
Пепельница
Да
Прикуриватель
Да
Рулевое колесо
Усилитель руля
Да
Регулировки
Наклон | Телескоп
Материал
Пластик
Color
Black
Грузовидный механизм
Стойка и шестерня
Trunk
задний багаж
Глубина
670 мм
Глубина, заднее сиденье сложено
1,040 мм
Крышка
СЛАДНЯЯ
Барьерная сеть/сетка
Да
Плоская поверхность
Да
Light
Да
Дизайн
Материал интерфейного декора
Пластик
Сиденья
Общие
Количество сидений
5
Цвет и материал
Обивка
Ткань
Прошивка
Черный
5 Черный0005
Регулирование, драйвер
Глубина сиденья
Руководство
Высота сиденья
Руководство
Угол для спинки
Руководство
, Высота
ДИНЕВНАЯ
40004.
Угол спинки
Руководство
Подголовник, высота
Руководство
Подогрев сидений
Дополнительно
Заднее сиденье
Строка второго сиденья
Сважится
Руководство
Коэффициент разделения сгиба
60/40
Количество сидений
3
Тип сиденья
Особенности
Seange & Security
Airbacks
. Подушки безопасности
Подушка безопасности для пешеходов
№
Дверные подушки безопасности
№
Подушка безопасности ремня безопасности
№
Подушка сиденья0004 №
Ремень безопасности
Регулируемый высота реглактор
Да
Руководство
Да
Тип ремня
ДА
ДА
ЗАДНЯЯ ЗАДНАЯ СЕДА
Да
Да
ЗАДНЯ Цвет
Черный
Тормозные системы
Антиблокировочная тормозная система (ABS)
Да
Электронная система распределения тормозных усилий (EBD)
Да
Электронная система помощи при торможении (BA/EBA)
Yes
Other Features
Immobiliser
Yes
Anti-theft Alarm
Yes
Central Locking
Remote
Child Safety Locks
Manual
Airbags
| Driver | Пассажирский | Задний | |
|---|---|---|---|
| Фронтальная подушка безопасности | – | ||
| Боковая грудная подушка безопасности | 999999999– | ||
| Side Head Airbag | – | ||
| Side Pelvis Airbag | |||
| Knee Airbag | |||
| Curtain Airbag | |||
| Center Airbag |
Ремень безопасности
| Водитель | Пассажир | Задний | |
|---|---|---|---|
| Seat Belt Reminder | – | ||
| Belt Pretensioner | – |
Child Protection
| Passenger | Rear | ||
|---|---|---|---|
| Isofix | – |
Другое
Идентификация
Расположение VIN
Моторный отсек, переборка
Слева
ДВИГАТЕЛЬНАЯ БОПАРТИЯ, Внутреннее крыло
ПРАВА
Классификация автомобилей
Британская классификация
MINI MPV
Европейский сегмент
M-сегмент
CAR.
INFO Классификация
Маленький MPV
UTINITITION | 6Р 110
- 4-цилиндровые двигатели John Deere FT PowerTech™
- Двигатель, л.с.: макс. 121 л.с./110 л.с.1046
- Трансмиссия AutoQuad™ или IVT
- Кат. Сцепка 2/3N с грузоподъемностью более 7900 фунтов.
Создайте свой собственный
Функции
Функции
Развернуть всеСвернуть все
Технологии, возможности подключения и автоматизация
Центр управления
Центр управления John Deere объединяет все данные по управлению фермой в одном месте. Простые для понимания интегрированные инструменты помогают вам принимать агрономические решения и помогают получать максимальную урожайность и стабильное качество почвы при значительном снижении затрат. Центр операций — это то, как вы превращаете ценную агрономическую информацию в разумные решения и легко определяете корректирующие действия.
Другие интегрированные инструменты позволяют создавать предписания с переменной нормой для конкретного участка и позволяют вам сотрудничать с агрономическими консультантами, предоставляя им права доступа для конкретного поля. Документирование вашей работы для клиентов также становится легкой задачей благодаря легко создаваемым, распечатываемым и общедоступным отчетам. Более того, учетную запись Центра операций можно использовать бесплатно независимо от масштабов вашей деятельности.
iTEC™ Pro
Intelligent Total Equipment Control объединяет системы автоматического рулевого управления AutoTrac™ и системы управления навесным оборудованием для управления скоростью трактора, передним и задним навесным оборудованием, включением блокировки дифференциала и другими параметрами. Это позволяет выполнять повороты без помощи рук, уменьшая уплотнение почвы, что приводит к идеальной картине поворотных полос и стабильному росту урожая.
Система JDLink™
Посмотрите, где находятся ваши машины и что они делают с помощью JDLink
JDLink показывает, где находятся машины, что они делают и как работают.
Вы или ваш дилер можете удаленно помогать операторам в настройке и эксплуатации машины, используя удаленный доступ к дисплею (RDA). Возможности подключения JDLink дополнительно включают беспроводную передачу данных (WDT) для беспрепятственного обмена данными между машиной и офисом.
- Удобная передача данных и сотрудничество с доверенными консультантами
- Более эффективное принятие решений на основе данных
- Отчет о выполненной работе точно и своевременно
- Увеличьте время безотказной работы машины с помощью Connected Support с помощью услуг удаленного мониторинга и диагностики
- Получите быструю поддержку на месте с RDA
- Удаленное управление машинами и сотрудниками, чтобы вы могли понять, как они работают
Решения для навигации
AutoTrac ready
Система John Deere AutoTrac обеспечивает управление без помощи рук, помогая повысить эффективность работы в поле и значительно снижая утомляемость оператора.
Трактор 6R поставляется с завода в готовом для AutoTrac виде, который включает в себя программное обеспечение, датчики и клапаны, чтобы обеспечить интегрированное решение для производителя (приемник и активация приобретаются отдельно). Это позволяет производителям получать информацию о системе навигации без установки трудоемких комплектов.
Автоматизация поворота AutoTrac
Автоматизация поворота AutoTrac контролирует весь поворот на разворотной полосе и управляет всеми функциями трактора и навесного оборудования, включая изменение скорости движения вперед и переключение коробки отбора мощности (ВОМ). Он поднимает или опускает сцепку или активирует селективные регулирующие клапаны (SCV) точно в нужное время и в нужном положении на поле, чтобы гарантировать идеально равномерный рост урожая на разворотной полосе.
Система AutoPath™
AutoPath автоматически создает направляющие линии для машин разной ширины на основе данных, собранных при первом проходе почвообрабатывающего орудия или сеялки.
Он берет на себя управление вашей направляющей линией, защищая инвестиции в питательные вещества и помогая вам выполнять каждый проход с уверенностью и точностью. Если вы используете навесное оборудование разной ширины для посева, опрыскивания или сбора урожая, AutoPath гарантирует, что шины всегда будут следовать за посаженными рядами и не касаться урожая. При уборке комбайн всегда направляется в правильную начальную точку, а направляющие линии рассчитываются автоматически на основе ширины жатки.
Станция оператора
Вид кабины
Рабочее место оператора
Кабина трактора 6R обеспечивает комфорт и удобство независимо от области применения. Благодаря круговому обзору и простым в использовании элементам управления 6R идеально подходит для вашей работы. Все тракторы 6R оснащены дисплеем на угловой стойке с современной электронной приборной панелью, которая хорошо сочетается с узкой правой стойкой кабины. Это обеспечивает всю важную информацию о машине и улучшенную видимость.
Кроме того, в стандартную комплектацию тракторов 6R входят функции премиум-класса, такие как автоматический климат-контроль, сиденье инструктора и педаль газа.
Элементы управления CommandARM™ и дисплей CommandCenter™ 4-го поколения
Дисплей CommandARM и CommandCenter поколения 4
Консоль CommandARM имеет интуитивно понятный интерфейс. Все элементы управления, необходимые для повседневной работы, находятся у вас под рукой: селективные регулирующие клапаны (SCV), автоматическое рулевое управление AutoTrac™, управление машиной iTEC™, кондиционер, освещение, радио, полный привод (4WD) и контроль глубины сцепки. . Установленный на CommandARM дисплей CommandCenter 4-го поколения имеет простую в использовании функцию прокрутки, как на планшете, и отслеживает все, что вам нужно для продуктивной и эффективной работы.
Управление CommandPRO™
Джойстик CommandPRO
Джойстик CommandPRO сочетает в себе уникальную стратегию вождения с реконфигурируемыми органами управления.
Все элементы управления, необходимые для повседневной работы, находятся у вас под рукой: скорость движения, реакция на ускорение, реконфигурируемые кнопки и кулисные переключатели, а также кнопка активации.
Дисплей CommandCenter 4-го поколения с расширенным монитором
Расширенный монитор четвертого поколения
Расширенный монитор Gen 4 удваивает площадь экрана, поэтому вы можете одновременно отслеживать больше функций и иметь прямой доступ для внесения изменений при необходимости. Например, вы можете просматривать функции управления машиной на основном дисплее и приложения Precision Ag на расширенном мониторе.
Комфорт и маневренность
Управляйте трактором 6R с легкостью
Комфорт оператора
Трехрычажная подвеска (TLS™)
Приостановка TLS
Система TLS Plus обеспечивает оптимальную тягу и производительность в полевых условиях, поддерживая контакт «земля-шина», что позволяет передавать больше мощности на землю.
Это также обеспечивает повышенный комфорт оператора, снижает утомляемость оператора и повышает производительность, а рулевое управление с переменным передаточным числом улучшает маневренность в поле.
Подвеска кабины
Система подвески кабины
Интеллектуальная гидропневматическая подвеска кабины повышает комфорт при вождении в поле и на дороге. Входной сигнал от датчика ускорения и датчика TLS заставляет контроллер подвески кабины увеличивать или уменьшать количество масла в штоке амортизатора. Эта полуактивная система обеспечивает максимальный комфорт в любой ситуации.
Рулевое управление с переменным передаточным числом
Рулевое управление с переменным передаточным числом
Рулевое управление с переменным передаточным числом включено
Рулевое управление с переменным передаточным числом повышает комфорт оператора, требуя меньшего количества движений рук и меньшего усилия на рулевое управление при повороте на разворотной полосе или в ограниченном пространстве.
Это приводит к более быстрому повороту рулевого колеса и увеличению гидравлического потока, что приводит к более быстрому отклику шин. Систему можно активировать или деактивировать на дисплее CommandCenter™, и она доступна для всех тракторов 6R.
Характеристики двигателя
Двигатель
Высокая выходная мощность 4-цилиндрового двигателя John Deere объемом 4,5 л (274,6 куб. дюйма) и 6-цилиндрового двигателя объемом 6,8 л (415 куб. дюйма) стала возможной благодаря , четырехклапанная технология Common Rail высокого давления (HPCR) с давлением впрыска до 2500 бар (36 259,4 фунтов на кв. дюйм). Двигатель PVS в моделях 6R 175, 6R 195 и 6R 215 оснащен турбокомпрессором с изменяемой геометрией (VGT), который последовательно повышает производительность и эффективность на всем протяжении кривой крутящего момента. В двигателях PSS (6R 230 и 6R 250) используется двухступенчатая система турбонаддува, в которой VGT увеличивает давление, создаваемое неподвижно-лопастным турбонагнетателем.
Интеллектуальное управление питанием (IPM)
Интеллектуальное управление питанием (IPM) — это функция для многих типичных сельскохозяйственных операций, в которых используется задний механизм отбора мощности (ВОМ) в приложениях с высокой мощностью или трактор в качестве транспортного средства. Операторы, которые ищут больше мощности в нестационарных ВОМ и транспортных приложениях, будут заинтересованы в функции IPM. В приложениях с высоким задним ВОМ, таких как кормоуборочные комбайны, культиваторы, оборудование для уборки свеклы или картофеля, а также в случаях, когда тяжелые прицепы, тележки или навесное оборудование перемещаются в различные места и из них, эта функция обеспечивает значительные дополнительные возможности. Решение повышает производительность за счет более стабильной скорости движения, более быстрого ускорения и способности лучше поддерживать желаемую транспортную скорость. Все тракторы 6R имеют IPM в базовой комплектации. Гидравлический IPM доступен в качестве отдельной опции для использования IPM в приложениях, связанных с высокими гидравлическими нагрузками.
Реверсивный вентилятор
Реверсивный вентилятор
Оптимизируйте работу двигателя в условиях запыленности, используя дополнительную технологию реверсивного вентилятора, доступную на всех тракторах 6R. Реверсивный вентилятор позволяет оператору быстро очищать экраны радиатора, не выходя из кабины. При ручной активации системы с помощью переключателя в кабине лопасти вентилятора радиатора выдувают пыль и мусор из радиатора. Это позволяет двигателю работать с меньшим охлаждением, что приводит к экономии топлива, сокращению времени простоя и общему повышению эффективности.
Гидравлика
Гидравлическая система
Гидравлическая система с компенсацией давления и расхода с закрытым центром в тракторах 6R была спроектирована для обеспечения максимальной долговечности и надежности за счет оптимизации количества гидравлических компонентов и соединений, что также делает ее чрезвычайно эффективной.
Система в 6R 230 и 6R 250 обеспечивает мощность 160 л/мин (42,3 гал/мин) при 1500 об/мин с улучшенными рабочими характеристиками. В тракторе 6R вы получаете до шести электрогидравлических селективных регулирующих клапанов (SCV) с рычагом сброса давления, логически сгруппированных и поддерживающих все функции iTEC™. Вы можете легко контролировать расход и время из кабины с помощью дисплея CommandCenter™.
Гидравлическое интеллектуальное управление мощностью (IPM)
В дополнение к механизмам отбора мощности (ВОМ) и транспортным приложениям, интеллектуальное управление мощностью также обеспечивает дополнительную мощность для навесного оборудования с гидравлическим приводом. Гидравлический IPM поддерживает постоянную скорость вращения колес трактора при работе с энергоемкими орудиями с гидравлическим приводом, такими как цистерны для навозной жижи, опрыскиватели или разбрасыватели навоза.
Ассортимент трансмиссий
Трансмиссия AutoQuad™
6R Трактор
Трансмиссия AutoQuad обладает всеми преимуществами трансмиссии PowrQuad™ PLUS с дополнительным удобством автоматического переключения передач.
Он доступен в версиях 20F/20R и 24F/24R. С опцией EcoShift транспортная скорость 40 км/ч (25 миль/ч) поддерживается всего при 1533 об/мин, что снижает расход топлива и выбросы.
Трансмиссия Enhanced AutoPowr™ — бесступенчатая регулировка скорости в любых ситуациях
Трансмиссия AutoPowr/IVT
AutoPowr/IVT — это гидромеханическая трансмиссия, обеспечивающая бесступенчатую и непрерывную передачу мощности на скоростях от 40 до 50 км/ч (от 25 до 31 мили в час). Трансмиссия AutoPowr поддерживает выбранную скорость, автоматически реагируя на изменение условий нагрузки. При движении с максимальной скоростью обороты двигателя автоматически падают до минимального уровня, необходимого для поддержания этой скорости, что снижает уровень шума и экономит топливо. Скорость 50 км/ч (31 миля/ч) поддерживается при 1630 об/мин, а скорость 40 км/ч (25 миль/ч) поддерживается при 1300 об/мин с помощью джойстика CommandPRO™.
Трансмиссия DirectDrive — эталон безупречной эффективности
Трансмиссия DirectDrive
Специально разработанная для тракторов 6R, DirectDrive представляет собой восьмиступенчатую трехдиапазонную коробку передач, разработанную и спроектированную John Deere для тяжелых сельскохозяйственных работ.
Сверхэффективная технология двойного сцепления всегда включает следующую передачу, поэтому во время переключений не теряется импульс, снижается расход топлива и обеспечивается легкость управления. Во время транспортировки DirectDrive снижает частоту вращения двигателя до 1550 об/мин при 40 км/ч (25 миль/ч) и 1600 об/мин при 50 км/ч (31 миль/ч), тем самым снижая расход топлива. Кроме того, функция AutoClutch позволяет остановить трактор, не нажимая сцепление.
Применение погрузчика
Погрузчики серии R
Фронтальные погрузчики John Deere серии R имеют конструкцию с автоматической защелкой, что делает установку погрузчика и навесного оборудования очень эффективной. Погрузчики John Deere созданы для повышения производительности и требуют минимального обслуживания. В сочетании с маневренностью и технологией тракторов 6R операторы получают удовольствие от качественной обработки материала и подачи в любых условиях. Дополнительный технологический пакет повышает вашу производительность благодаря функции «Возврат в положение» и дополнительно повышает точность с помощью системы динамического взвешивания, предотвращая потери материала благодаря электронной функции «Уровень к горизонту».
Электронное управление с реверсом
Дополнительное электронное управление
Джойстик на консоли CommandARM™
Тракторы John Deere 6R имеют дополнительное электронное управление со встроенным реверсом. Панель управления погрузчиком имеет пять реконфигурируемых кнопок и тумблер для функций трактора и ISOBUS.
Технология погрузчика
Система динамического взвешивания
Повышайте точность на ходу. Система динамического взвешивания предоставляет оператору информацию о весе в режиме реального времени, что позволяет оператору загружать погрузчик до желаемого веса. Это обеспечивает эффективность за счет сокращения ненужных поездок к источнику корма и позволяет операторам эффективно управлять правильным сочетанием материалов в рационах.
Вернуться на место
Повысьте производительность при выполнении повторяющихся задач.
С функцией «Возврат в положение» вы можете сохранить до четырех положений навесного оборудования для быстрого и удобного вызова с помощью управления погрузчиком.
Уровень до горизонта
Функциональность от уровня до горизонта
Предотвратите потери материала, сохраняя при этом скорость, с помощью функции «Выравнивание по горизонтали», которая удерживает навесное оборудование погрузчика на одном уровне на неровной местности.
Показать больше Показать меньше
Характеристики
Технические характеристики
ДОБАВИТЬ МОДЕЛЬ –Пожалуйста, выберите–Добавить модель
ДОБАВИТЬ МОДЕЛЬ –Выберите–Экспорт в Excel
Основные характеристики
| Описание двигателя | John Deere PowerTech™ PSS | |||
|---|---|---|---|---|
| Объем двигателя | 4,5 л 275 куб. дюймов | |||
| Номинальная мощность двигателя | ||||
| Максимальная мощность двигателя | ||||
| Номинальная мощность двигателя PS (л.с. по ISO) при номинальной частоте вращения двигателя (EU 2016/1628) | 97/68EC: 81 кВт 110 л.с. | |||
| Максимальная мощность двигателя PS (л.с. по ISO) при максимальной частоте вращения двигателя (EU 2016/1628) | 97/68EC: 89 кВт 119 л.с. | |||
Номинальная мощность ВОМ (л. с. по SAE) | 62 кВт 83 л.с. | |||
| Максимальная мощность ВОМ | ||||
| Тип коробки передач | ||||
| Номинальная мощность гидравлического насоса | Стандарт: насос 45 см3: 114 л/мин 30 гал/мин | |||
| Категория задней сцепки (обозначение SAE) | Стандарт: Категория 2/3N: 3600 кг 7937 фунтов Дополнительно: Категория 2/3N: 4100 кг 9039 фунтов | |||
| Масса базовой машины | 6000 кг 13 228 фунтов |
Характеристики двигателя
| Описание | John Deere PowerTech™ PSS | |||
|---|---|---|---|---|
| Тип двигателя | Дизель, рядный, 4-цилиндровый, с мокрыми гильзами цилиндров, с четырьмя клапанами в головке | |||
| Семейство двигателей | NJDXL06. 8324 | |||
| Номинальная скорость | 2100 об/мин | |||
| Аспирация | Турбонаддув, первая ступень с фиксированной геометрией, вторая ступень с изменяемой геометрией, промежуточное охлаждение воздух-воздух и рециркуляция охлажденных отработавших газов | |||
| Гильзы цилиндров | ||||
| Уровень выбросов | Последний уровень 4 | |||
| Тип после обработки | ДОК/ДПФ/СКР | |||
| Рабочий объем | 4,5 л 275 куб. дюймов |
Мощность двигателя
| Номинальная мощность | ||||
|---|---|---|---|---|
| Номинальная мощность двигателя PS (л.с. по ISO) при номинальной частоте вращения двигателя (EU 2016/1628) | 97/68EC: 81 кВт 110 л.с. | |||
| Номинальная мощность ВОМ (л.с. по SAE) | 62 кВт 83 л.с. | |||
| Максимальная мощность ВОМ | ||||
| Интеллектуальное управление питанием (IPM) | Транспортные и/или мобильные ВОМ Дополнительная мощность двигателя (л. с. по ISO) при 2100 об/мин: 14,9 кВт 20 л.с. | |||
| Повышение мощности | 10 процентов | |||
| Максимальная мощность двигателя | ||||
| Максимальная мощность двигателя PS (л.с. ISO) при максимальной частоте вращения двигателя (EU 2016/1628) | 97/68EC: 89 кВт 119 л.с. | |||
| Максимальный крутящий момент двигателя | При 1600 об/мин: 515 Нм 380 фунто-футов | |||
| Дышло | ||||
| Повышение крутящего момента ВОМ | 40 процентов | |||
| Система впрыска топлива и управление | ||||
| Воздухоочиститель типа |
Трансмиссия
| Тип | Стандарт: IVT, 0,05–42 км/ч 0,03–26 миль/ч Дополнительно: IVT, 0,05–50 км/ч 0,03–31 миль/ч 24-ступенчатая AutoQuad PLUS ECO (40K) | |||
|---|---|---|---|---|
| Реверс | Левый электрический реверс | |||
| Сцепление; мокрый/сухой | ||||
| Крипер | Доступен с AutoQuad |
Гидравлическая система
| Тип | С закрытым центром, с компенсацией давления и расхода | |||
|---|---|---|---|---|
| Номинальная производительность насоса | Стандарт: насос 45 см3: 114 л/мин 30 гал/мин | |||
| Доступный расход на один задний SCV | 100 л/мин 26 гал/мин | |||
| Доступный поток на передних SCV | ||||
| Количество задних селективных регулирующих клапанов (SCV) | Стандарт: три соединителя ISO Дополнительно: от трех до пяти соединителей ISO | |||
| Количество средних селективных регулирующих клапанов (SCV) | До трех | |||
| Количество передних селективных регулирующих клапанов (SCV) | ||||
| Джойстик управления SCV | В наличии | |||
| Вспомогательные гидравлические элементы | ||||
| Управление SCV | Стандарт: механический Дополнительно: электронный |
Задняя сцепка
| Регулятор тяги сцепки с датчиком нагрузки | ||||
|---|---|---|---|---|
| Имеются клапаны дистанционного управления | В наличии: Переключатель дистанционного управления | |||
| Категория сцепки (обозначение SAE) | Стандарт: Категория 2/3N: 3600 кг 7937 фунтов Дополнительно: Категория 2/3N: 4100 кг 9039 фунтов | |||
| Максимальная грузоподъемность за точками подъема | 4100 кг 9039 фунтов | |||
| Грузоподъемность на стандартной раме | ||||
| Тип датчика | Электрогидравлический | |||
| Блокировка дифференциала заднего моста | Электрогидравлический |
Дышло
| Категория дышла | Категория 2 | |||
|---|---|---|---|---|
| Максимальная вертикальная нагрузка | Категория 2: 1400-2450 кг 3085-5400 фунтов Максимальная вертикальная нагрузка зависит от положения дышла |
Задний механизм отбора мощности (ВОМ)
| Тип | Независимый Стандартный: 540, 540E, 1000 об/мин реверсивный вал: 35 мм 1,375 дюйма | |||
|---|---|---|---|---|
| Число оборотов двигателя (при номинальных скоростях ВОМ) | Двигатель 1967 об/мин при 540 об/мин ВОМ Двигатель 1496 об/мин при 540E об/мин ВОМ Двигатель 1962 об/мин при 1000 об/мин ВОМ | |||
| Экономичные скорости ВОМ | ||||
| Скорости заднего ВОМ | ||||
| Доступность многоскоростного ВОМ | ||||
| Доступность опции ВОМ скорости относительно земли | ||||
| Включение механизма отбора мощности | Электрическая модуляция |
Передняя сцепка
| Категория | Категория 3N | |||
|---|---|---|---|---|
| Электроэнергия | Семиштыревая электрическая розетка Дополнительно: Трехконтактная розетка и розетка ISOBUS | |||
| Стандартная грузоподъемность | На концах крюка: 3300 кг 7275 фунтов | |||
| Передний механизм отбора мощности (ВОМ) | 1000 об/мин, вращение по часовой стрелке (из положения водителя) | |||
| Скорость ВОМ | Двигатель при частоте вращения ВОМ (1000): 1969 об/мин |
Задний мост
| Тип | Стандарт: фланец, 1552 мм 61 дюйм Дополнительно: рейка и шестерня, 2550 мм 100,4 дюйма Рейка и шестерня, 2438 мм 96 дюймов | |||
|---|---|---|---|---|
| Конечная передача типа | Внутренняя планетарная передача с тремя шестернями | |||
| Управление дифференциалом | Электрогидравлический с полной блокировкой | |||
| Тип оси | ||||
| Тормоза, тип и управление | ||||
| Блокировка заднего дифференциала | ||||
| Грузоподъемность |
Передний мост
| Тип | ||||
|---|---|---|---|---|
| Блокировка дифференциала переднего моста | MFWD: Ограниченное скольжение TLS: Ограниченное скольжение TLS с тормозами: Электрогидравлический с полной блокировкой | |||
| Грузоподъемность |
Шины
| Передний | ||||
|---|---|---|---|---|
| Задний | 420/85R30 (16,9R-30) | |||
| Диапазон протектора колеса | MFWD: 1524–2235 мм 60–88 дюймов TLS: 1524–2235 мм 60–88 дюймов | |||
| Радиус поворота с тормозами | ||||
| Радиус поворота без тормозов | ||||
| Центральная система подкачки шин (CTIS) |
Гусеницы
| Шаг протектора | ||||
|---|---|---|---|---|
| Тип привода | ||||
| Ширина колеи | ||||
| Промежуточные ролики |
Рулевое управление
| Тип | Гидростатическая мощность |
|---|
Тормоза
| Основной тормоз (ножной) | ||||
|---|---|---|---|---|
| Вспомогательный тормоз | ||||
| Парковочный замок | ||||
| Торможение MFWD | ||||
| Тормоза переднего моста | ||||
| Вспомогательные тормоза | ||||
| Гидравлические тормоза прицепа | ||||
| Пневматические тормоза прицепа |
Электрическая система
| Размер генератора | Стандарт: 120 А Дополнительно: 250 А | |||
|---|---|---|---|---|
| Дополнительные батареи | 12 В | |||
| Рабочие фары | Стандарт: 14 галогенных ламп Доступно: 12 светодиодов плюс два галогенных лампы | |||
| Тип лампы в фаре (галоген, зенон, светодиод) | Стандарт: галогенная лампа мощностью 65 Вт Дополнительно: светодиод | |||
| Тип лампы маяка (галоген, зенон, светодиод) | ||||
| дБ(А) мощность для резервной сигнализации | ||||
| Суммарный ток холодного пуска | 1200 ССА |
Станция оператора
| Конструкция защиты от опрокидывания, OOS | ||||
|---|---|---|---|---|
| Сиденье | Степень поворота сиденья, левая CommandARM: 7,5 градуса Степень поворота сиденья, правая CommandARM: 30 градусов Стандарт: пневматическая подвеска Дополнительно: пневматическая подвеска Deluxe | |||
| Подвеска кабины | Дополнительно: Адаптивная гидравлическая подвеска кабины Plus (HCS Plus) | |||
| Сиденье для инструкторов | Стандартный | |||
| Дисплей | ||||
| Радио | Дополнительно | |||
| Внутренний объем кабины | 3,33 м 3 117,59 куб. футов | |||
| дБ(А) рейтинг | 71 дБ | |||
| Стекло кабины | 6,11 м 2 65,77 кв. футов | |||
| Класс безопасного стекла | ||||
| Обзор спереди |
Размеры
| Колесная база | Передний привод: 2580 мм 102 дюйма | |||
|---|---|---|---|---|
| Общая ширина | 1680 мм 66,1 дюйма | |||
| Общая длина | 4533 мм 178,5 дюйма | |||
| Общая высота | 2861 мм 112,6 дюйма | |||
| Зазор дышла | ||||
| Центр передней оси | 481 мм 18,9 дюйма | |||
| Приблизительный вес брутто, открытая; кабина | 6000 кг 13 228 фунтов |
Вес
| Вес базовой машины | Передний мост 2400 кг 5291 фунтов Задний мост 3600 кг 7936 фунтов Всего TLS, AutoQuad, 600/65R38, 540/65R24, транспортировочное топливо, опора переднего веса: 5470 кг 65R24, транспортировочное топливо, передняя опора груза: 6091 кг 13 428 фунтов 6000 кг 13 228 фунтов | |||
|---|---|---|---|---|
| Максимальный уровень балласта | ||||
| Максимально допустимый вес | 8950 кг 19 731 фунт |
Вместимость
| Объем масла в картере | 16 л 4,2 галлона США. ![]() | |||
|---|---|---|---|---|
| Топливный бак | 195 л 51,5 галлона США. | |||
| Бачок жидкости для выхлопных газов дизельных двигателей (DEF) | 13 л 3,4 галлона США | |||
| Система охлаждения | 28 л 7,4 галлона США. | |||
| Трансмиссия-гидравлическая система | IVT: 60 л 15,9 галлона США. AutoQuad: 53 л 14 галлонов США. |
Удобство обслуживания
| Интервал замены моторного масла | 500 часов | |||
|---|---|---|---|---|
| Интервал замены гидравлического/трансмиссионного масла | 1500 часов | |||
| Интервал замены охлаждающей жидкости двигателя | 6000 часов |
Погрузчики
| Погрузчик | 620Р 640Р | |||
|---|---|---|---|---|
| Грузоподъемность на полной высоте | 620R: 2577 кг 5861 фунт 640R: 2181 кг 4808 фунтов | |||
| Максимальная высота подъема | 620R: 4124 мм 162 дюйма 640R: 4151 мм 163 дюйма | |||
| Регулируемый тип |
Precision AG
| Руководство | ||||
|---|---|---|---|---|
| Телематический | ||||
| Дистанционная диагностика |
Разное
| AutoTrac готов | ||||
|---|---|---|---|---|
| ISOBUS готов | ||||
| Видеовходы CommandCenter | ||||
| Иммобилайзер | ||||
| Боковой уклон | ||||
| Класс подъема/спуска | ||||
| Страна производитель | Германия |
Дополнительная информация
| Дата сбора | 12 ноября 21 |
|---|
Показать больше Показать меньше
Предложения и скидки
Предложения и скидки
Развернуть всеСвернуть все
Фиксированная ставка 0,9% годовых на 36 месяцев†
на некоторые новые тракторы John Deere 6 серии M & R.
†Для получения полной информации об этом предложении выберите соответствующую ссылку ниже.
Просмотреть подробности предложения
Показать большеСкрыть
Сопутствующие товары
6Р 110 Универсальный трактор
6Р 120 Универсальный трактор
6Р 130 Универсальный трактор
6Р 140 Универсальный трактор
6Р 145 Трактор
6Р 155 Трактор
6Р 165 Трактор
6Р 230 Трактор
6р 250 Трактор
6105Е Универсальный трактор
6110М Универсальный трактор
6120Е Универсальный трактор
6120М Универсальный трактор
6130М Универсальный трактор
6135Е Универсальный трактор
6140М Универсальный трактор
6145М Трактор
6155М Трактор
6175М Трактор
6195М Трактор
Hyundai Sonata 2.
0 CRDi VGT StyleVersion 2008 Автоматическая 4 двери характеристики Найдем ваш автомобиль Select makeAbarthAiwaysAlfa RomeoAlpineAsia MotorsAston MartinAudiAustinAutobianchiBentleyBMWBugattiBuickCadillacCarverChevroletChryslerCitroenCorvetteCupraDaciaDaewooDaihatsuDaimlerDatsunDodgeDonkervoortDSFerrariFiatFiskerFordFSOGalloperHondaHummerHyundaiInfinitiInnocentiIvecoJaguarJeepJosseKiaLadaLamborghiniLanciaLand RoverLandwindLexusLincolnLotusMarcosMaseratiMaybachMazdaMcLarenMegaMercedes-BenzMercuryMGMiniMitsubishiMorganMorrisNissanNobleOpelPeugeotPGOPolestarPontiacPorschePrincessRenaultRolls-RoyceRoverSaabSeatSkodaSmartSpectreSsangyongSubaruSuzukiTalbotTeslaThinkToyotaTriumphTVRVolkswagenVolvoYugoSelect model
Выберите годПоиск по кузову
- Внедорожники
- кабриолет
- автомобили купе
- автомобили с кузовом хэтчбек
- автомобили седан
- легковые автомобили универсал
- Минивэны
- Легковые автомобили
- Автомобили с дизельным двигателем
- Гибрид/электрический
- Роскошный автомобиль
- все автомобили
- org/BreadcrumbList”>
- Дом >
- Хендай >
- Хендай Соната >
- Хендай Соната 2008 >
- Hyundai Sonata 2.0 CRDi VGT StyleВерсия 2008
Hyundai Sonata 2.0 CRDi VGT StyleVersion — модель седана 2008 года выпуска с 4-ступенчатой автоматической коробкой передач. С мощностью 110 кВт вы можете разогнаться до 100 км/ч всего за 11,6 секунды и развить максимальную скорость 200 км/ч при городском расходе 9,7 л/100 км. Двигатель имеет мощность 1991 куб.
см, 4 рядных цилиндра и 4 клапана на цилиндр.
Также эта модель имеет вес передней подвески с винтовыми пружинами и задней подвески с винтовыми пружинами.GENERAL | |
|---|---|
| Price: | € 36.990 |
| New Price Roadworthy: | n/a |
| Road Tax / 3 Months: | € 428 – € 455 |
| Тип кузова: | 4-дверный, седан |
| Трансмиссия: | 4-ступенчатая автоматическая |
DRIVE | |
|---|---|
| Drive Wheel : | front |
| Engine/motor Type: | fuel engine |
| Fuel Type: | diesel |
| Power: | 110 kw ( 150 л.с.) |
| Итого Макс. Мощность (кВт): | 110 |
PERFORMANCE | |
|---|---|
| Top Speed: | 200 km/h |
| Acceleration 0-100 Km / H: | 11,6 s |
| Practice Consumption Monitor: | n. b. |
Топливный двигатель | ||||||||||||||||||||||||||||||||||||||||||||||||||||||||||||||||||||||||||||||||||||||||||||||||||||||||||||||||||||||||||||||||||||||||||||||||||||||||||||||||||||||||||||||||||||||||||||||||||||||||||||||||||||||||||||||||||||||||||||||||||||||||||||||||||||||||||||||||||||||||||||||||||||||||||||||||||||||||||||||||||||||||||||||||||||||||||||||||||||||||||||||||||||||||||||||||||||||||||||||||||||||||||||||||||||||||||||||||||||||||||||||||||||||||||||||||||||||||||||||||||||||||||||||||||||||||||||||||||||||||||||||||||||||||||||||||||||||||||||||||||||||||||||||||||||
|---|---|---|---|---|---|---|---|---|---|---|---|---|---|---|---|---|---|---|---|---|---|---|---|---|---|---|---|---|---|---|---|---|---|---|---|---|---|---|---|---|---|---|---|---|---|---|---|---|---|---|---|---|---|---|---|---|---|---|---|---|---|---|---|---|---|---|---|---|---|---|---|---|---|---|---|---|---|---|---|---|---|---|---|---|---|---|---|---|---|---|---|---|---|---|---|---|---|---|---|---|---|---|---|---|---|---|---|---|---|---|---|---|---|---|---|---|---|---|---|---|---|---|---|---|---|---|---|---|---|---|---|---|---|---|---|---|---|---|---|---|---|---|---|---|---|---|---|---|---|---|---|---|---|---|---|---|---|---|---|---|---|---|---|---|---|---|---|---|---|---|---|---|---|---|---|---|---|---|---|---|---|---|---|---|---|---|---|---|---|---|---|---|---|---|---|---|---|---|---|---|---|---|---|---|---|---|---|---|---|---|---|---|---|---|---|---|---|---|---|---|---|---|---|---|---|---|---|---|---|---|---|---|---|---|---|---|---|---|---|---|---|---|---|---|---|---|---|---|---|---|---|---|---|---|---|---|---|---|---|---|---|---|---|---|---|---|---|---|---|---|---|---|---|---|---|---|---|---|---|---|---|---|---|---|---|---|---|---|---|---|---|---|---|---|---|---|---|---|---|---|---|---|---|---|---|---|---|---|---|---|---|---|---|---|---|---|---|---|---|---|---|---|---|---|---|---|---|---|---|---|---|---|---|---|---|---|---|---|---|---|---|---|---|---|---|---|---|---|---|---|---|---|---|---|---|---|---|---|---|---|---|---|---|---|---|---|---|---|---|---|---|---|---|---|---|---|---|---|---|---|---|---|---|---|---|---|---|---|---|---|---|---|---|---|---|---|---|---|---|---|---|---|---|---|---|---|---|---|---|---|---|---|---|---|---|---|---|---|---|---|---|---|---|---|---|---|---|---|---|---|---|---|---|---|---|---|---|---|---|---|---|---|---|---|---|---|---|---|---|---|---|---|---|---|---|---|---|---|---|---|---|---|---|---|---|---|---|---|---|---|---|---|---|---|---|---|---|---|---|---|---|---|---|---|---|---|---|---|---|---|---|---|---|---|---|---|---|---|---|---|---|---|---|---|---|---|---|---|---|---|---|---|---|---|---|---|---|---|---|---|---|---|---|---|---|---|---|---|---|---|---|---|---|---|---|---|---|---|---|---|---|---|---|---|---|---|---|---|---|---|---|---|---|---|---|---|---|---|---|---|---|---|---|---|---|---|---|---|---|---|---|---|---|---|---|---|---|---|---|---|
| Цилиндры: | 4, в линии | |||||||||||||||||||||||||||||||||||||||||||||||||||||||||||||||||||||||||||||||||||||||||||||||||||||||||||||||||||||||||||||||||||||||||||||||||||||||||||||||||||||||||||||||||||||||||||||||||||||||||||||||||||||||||||||||||||||||||||||||||||||||||||||||||||||||||||||||||||||||||||||||||||||||||||||||||||||||||||||||||||||||||||||||||||||||||||||||||||||||||||||||||||||||||||||||||||||||||||||||||||||||||||||||||||||||||||||||||||||||||||||||||||||||||||||||||||||||||||||||||||||||||||||||||||||||||||||||||||||||||||||||||||||||||||||||||||||||||||||||||||||||||||||||||||
| КЛАНД на цилиндр: | 4 | 9475.04641991 куб.см | ||||||||||||||||||||||||||||||||||||||||||||||||||||||||||||||||||||||||||||||||||||||||||||||||||||||||||||||||||||||||||||||||||||||||||||||||||||||||||||||||||||||||||||||||||||||||||||||||||||||||||||||||||||||||||||||||||||||||||||||||||||||||||||||||||||||||||||||||||||||||||||||||||||||||||||||||||||||||||||||||||||||||||||||||||||||||||||||||||||||||||||||||||||||||||||||||||||||||||||||||||||||||||||||||||||||||||||||||||||||||||||||||||||||||||||||||||||||||||||||||||||||||||||||||||||||||||||||||||||||||||||||||||||||||||||||||||||||||||||||||||||||||||||||||||
| Отверстие X Ход поршня: | 83,0 x 92,0 мм | |||||||||||||||||||||||||||||||||||||||||||||||||||||||||||||||||||||||||||||||||||||||||||||||||||||||||||||||||||||||||||||||||||||||||||||||||||||||||||||||||||||||||||||||||||||||||||||||||||||||||||||||||||||||||||||||||||||||||||||||||||||||||||||||||||||||||||||||||||||||||||||||||||||||||||||||||||||||||||||||||||||||||||||||||||||||||||||||||||||||||||||||||||||||||||||||||||||||||||||||||||||||||||||||||||||||||||||||||||||||||||||||||||||||||||||||||||||||||||||||||||||||||||||||||||||||||||||||||||||||||||||||||||||||||||||||||||||||||||||||||||||||||||||||||||
| Степень сжатия: | 17,3 :4 9046 вид все характеристики
| |||||||||||||||||||||||||||||||||||||||||||||||||||||||||||||||||||||||||||||||||||||||||||||||||||||||||||||||||||||||||||||||||||||||||||||||||||||||||||||||||||||||||||||||||||||||||||||||||||||||||||||||||||||||||||||||||||||||||||||||||||||||||||||||||||||||||||||||||||||||||||||||||||||||||||||||||||||||||||||||||||||||||||||||||||||||||||||||||||||||||||||||||||||||||||||||||||||||||||||||||||||||||||||||||||||||||||||||||||||||||||||||||||||||||||||||||||||||||||||||||||||||||||||||||||||||||||||||||||||||||||||||||||||||||||||||||||||||||||||||||||||||||||||||||||



см.)
Л
Определение реакций опор и моментов защемления

сост., кА
– время протекания тока термической стойкости (время
короткого замыкания), с
6
su Все материалы представленные на сайте исключительно с целью ознакомления читателями и не преследуют коммерческих целей или нарушение авторских прав. Обратная связь – 161.97.168.212 (0.008 с.)
Барнаул
Сигн.
двигателя завода
пружин
225
Ток, А
, не более
данные
Великие Луки
ток, А
ножа.
№
101.890-81
Наименование
101.281-80
дюймов
с. по SAE)
8324
дюймов
с. по ISO) при 2100 об/мин: 14,9 кВт 20 л.с.
футов
b.
Полезная нагрузка:

5 CRDi VGT 2005
5 CRDi VGT в комбинированном режиме (совмещение движения по городу и трассе) составляет 4,7 л на 100км (21,3 км/л) – это самый экономичный Киа РИО 2005 – 2009 г.в. . Емкость топливного бака 45 литров , а это значит, что вы сможете проехать без дозаправки до 940 километров в городском цикле и даже до 1080 километров по трассе.
4 TDCi 2005 Сравнить Kia Rio 1.5 CRDi VGT с Ford Fiesta 1.4 TDCi 2005 
5 CRDi VGT
март 2007 г. — январь 2009 г.
5 SX CRDi VGT
5 SX CRDi VGT
5 SX CRDi VGT
Д. –
мощность
0
Широкая задняя часть с черной отделкой. Кабина полностью ориентирована на спорт.
0 цвета Satin Black. Ясно одно: модели 718 не предназначались для гаража. Они созданы для безудержного удовольствия от вождения. Так что естественно линии на дверях направляют воздушный поток к большим боковым воздухозаборникам. Для оптимального снабжения двигателей воздухом и создания мощной тяги.
В моделях 718 GTS 4.0 выхлопные трубы разделены на задней панели, уникальной для GTS 4.0.
0 с отделкой Race-Tex вместе с множеством других элементов интерьера, характерных для GTS. Комбинация приборов включает в себя три круглых прибора со встроенным 4,6-дюймовым цветным экраном. Типично для Porsche: тахометр посередине.
Он развивает 300 л.с. при 6500 об/мин. Максимальный крутящий момент: 280 фунт-фут. С Porsche Doppelkupplung (PDK) 718 Boxster и 718 Cayman разгоняются от 0 до 60 миль в час всего за 4,9 секунды.секунд, а максимальная скорость составляет 170 миль в час.
Максимальный крутящий момент: 309 фунт-фут. Максимальная скорость на треке: 182 мили в час.
дюйм), также доступен для моделей 718 GTS 4.0.
Это позволяет еще более спортивно настроить шасси, двигатель и трансмиссию. И поднимет вас к небывалым спортивным высотам. С помощью переключателя режимов на рулевом колесе, заимствованного у 918 Spyder. Можно выбрать один из четырех режимов, не отрывая руки от руля: «Нормальный», «Спорт», «Спорт плюс» и «Индивидуальный», что позволяет более точно настроить автомобиль в соответствии с вашим личным стилем вождения.
моноблочные фиксированные тормозные суппорты красного цвета. Тормозные диски имеют диаметр 350 мм спереди и 330 мм сзади. Чтобы сделать их более жесткими, но легкими и обеспечить более быструю реакцию даже при экстремальных нагрузках, тормозные суппорты имеют закрытую моноблочную конструкцию. Ход педали короткий, а точка зацепа точная. Тормозные диски перфорированы и имеют внутреннюю вентиляцию, что помогает обеспечить улучшенное торможение на мокрой дороге и оптимальное охлаждение.
Как только вы беретесь за ручку двери или ваша рука приближается к гербу на передней крышке багажника или логотипам сзади, Porsche Entry & Drive проверяет код доступа, хранящийся в ключе. Если это правильно, дверь или крышка багажника отпираются. После этого двигатель можно запустить и выключить с помощью выключателя стартера с электронным зажиганием.
Результатом является звук высочайшего уровня, специально согласованный с вашим 718 Boxster или 718 Cayman.
Porsche Connect — ваш умный второй пилот в повседневной жизни, обеспечивающий уникальные впечатления от спортивного автомобиля. До, во время и после путешествия.
Наряду с адресом и контактными данными также отображаются отзывы других посетителей, если установлено подключение для передачи данных.
Функция динамического освещения поворотов поворачивает фары внутрь поворота, чтобы освещать большую часть дороги на крутых поворотах и поворотах. Короче говоря: дорога впереди освещается в тот момент, когда вы начинаете поворачивать.
Система выдает визуальный предупреждающий сигнал в окантовке оконного треугольника всякий раз, когда автомобиль приближается к вашему автомобилю сзади или входит в одну из ваших слепых зон.
Полностью воплощено буквой T, означающей Touring, на логотипе.
0.
с.
Дилер устанавливает фактическую цену продажи.
крутящий момент
9 in
1)
диски
Porsche Dynamic Light System (PDLS) со встроенными 4-точечными светодиодными дневными ходовыми огнями
0464
Siri®
. Доступно в 48 континентальных штатах США, округ Колумбия и Пуэрто-Рико (с ограничениями). Некоторые услуги, контент и функции зависят от возможностей устройства, наличия активного подключения для передачи данных в автомобиле и доступности местоположения. Все сборы, контент и функции могут быть изменены. SiriusXM, Pandora и соответствующие логотипы являются товарными знаками Sirius XM Radio Inc. и ее соответствующих дочерних компаний.