Вру габариты: Продукция DEKraft – Вводно распределительное устройство ВРУ-1
alexxlab | 20.02.2023 | 0 | Разное
Продукция DEKraft – Вводно распределительное устройство ВРУ-1
Все результаты поиска
8 (800) 200 64 46
Москва:+7 (495) 777 99 88
Главная / Типовые решения / Вводно распределительное устройство ВРУ-1
Вводно распределительное устройство ВРУ-1
Описание
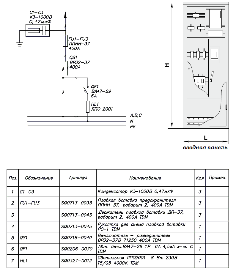
Вводно-распределительные устройства ВРУ1 для жилых и общественных зданий предназначены для приема, распределения и учета электроэнергии трехфазного переменного тока напряжением 380/220В частотой 50Гц с глухозаземленной нейтралью, а также для защиты линий при перегрузках и коротких замыканиях. Корпус ВРУ имеет напольное исполнение, одностороннее обслуживание и сделан из листовой стали. Возможна поставка изделий с цокольным основанием. Ввод кабеля осуществляется снизу. Максимальное число и сечение жил проводов или кабелей, присоединяемых к одному вводному зажиму: 200А и 250А – 4х95 мм2, на 400А – 4х150 мм2. Степень защиты IР31 (со стороны дна IР00) по ГОСТ 14254-80
- Технические
характеристики - Схемы и
спецификации
Струтура условного обозначения
Технические характеристики ВРУ-1 | |
Номинальное напряжение, В | ~380/220 |
Номинальный ток, А | 100-630 |
Номинальная частота, Гц | 50 |
Допустимый ток к.з., кА | 20 |
Система заземления | TN-C, TN-S, TN-C-S |
Габаритные размеры (ВхШхГ), мм | 1800х800х450 |
Степень защиты | IP31 |
Климатическое исполнение | УХЛ3 |
Тип оборудования | Общий вид | Схема | Спецификации |
---|---|---|---|
ВРУ-1-11-10, 13-20 | скачать | ||
ВРУ-1-11-10А, 13-20А | скачать | ||
ВРУ-1-12-10, 14-20 | скачать | ||
ВРУ 1-12-10A, 14-20A | скачать | ||
ВРУ-1-15-30, 15-30А | скачать | ||
ВРУ-1-16-40, 16-40А | скачать | ||
ВРУ-1-17-70, 18-80 ,19-90 АВР на контакторах | скачать | ||
ВРУ-1-17-70, 18-80, 19-90 с блочным АВР | |||
ВРУ-1-21-10, 21-10А | скачать | ||
ВРУ-1-22-5Х, 22-5ХА | скачать | ||
ВРУ-1-23-5Х, 23-5ХА | скачать | ||
ВРУ-1-24-5Х, 24-5ХА | скачать | ||
ВРУ-1-25-6Х, 25-6ХА | скачать | ||
ВРУ-1-26-6Х, 26-6ХА | скачать | ||
ВРУ-1-27-6Х, 27-6ХА | скачать | ||
ВРУ-1-28-6Х, 28-6ХА | скачать | ||
ВРУ-1-29-6Х, 29-6ХА | скачать | ||
ВРУ 1-4Х-0Х | скачать | ||
ВРУ 1-4Х-0ХA | скачать | ||
ВРУ 1-50-0Х | скачать | ||
ВРУ 1-50-0ХA | скачать |
ВРУ 1Э и ВРУ 3Э Вводно- распределительные устройства
Главная > Продукция > Щитовое оборудование > Низковольтные комплектные устройства для распределения электроэнергии > ВРУ 1Э и ВРУ 3Э
ВРУ 1Э и ВРУ 3Э Скачать и посмотреть схемы, документацию, техническую информацию, а так же опросный лист для формирования ТЗ можно здесь >>>>> |
||||||||||||||||||||||||||||||||||||
Основные характеристики Вводно распределительного устройства | ||||||||||||||||||||||||||||||||||||
Достоинства ВРУ-1Э, ВРУ-3Э
Производитель: Россия, собственное производство |
||||||||||||||||||||||||||||||||||||
Вводно- распределительные устройства ВРУ 1Э и ВРУ 3Э Вводно-распределительные устройства (ВРУ) 1Э используются для приема и передачи электрической энергии, а также они делают все устройства устойчивыми к перегрузкам и коротким замыканиям в сетях с переменным током 380/220 вольт и частотой 50 герц. ![]() Блоки автоуправления и ручного управления системами освещения в общественных местах и жилых зданиях монтируются в панели ВРУ 1Э на 8, 14 и 30 секций. Блоки дают возможность управления электроосвещением через фотореле (зависит от освещения) или через программное реле (зависит от времени). Вся аппараты для ведения учета и сбора информации (трансформаторы и счетчики) помещаются в отдельной секции. Структура условного обозначения ВРУ-1Э ВРУ могут быть вводными (ведение учета электроэнергии), распределительными (распределение энергии) и вводно-распределительные (применяются вместе с вводными ВРУ).
Заказывая ВРУ 1Э, покупатель обязан представить для корректного монтажа следующую информацию:
Вводно-распределительные устройства ВРУ-1Э и ВРУ-3ЭВводно-распределительные устройства ВРУ-1Э и ВРУ-3Э используется для приема и передачи энергии, защиты аппаратуры от коротких замыканий и перегрузок в сетях с переменным током, использующим напряжение 380/220 Вольт, с частотой 50 и 60 Гц. Вводно-распределительные устройства состоят из панелей с односторонним обслуживанием и выполняются в однопанельном и многопанельном вариантах. Панели для ВРУ-ЗЭ могут заменяться панелями от ВРУ-1Э, имеют меньший вес, размер и лучше скомпонованы. Скачать и посмотреть схемы, документацию, техническую информацию, а так же опросный лист для формирования ТЗ можно здесь >>>>> Технические характеристики Вводно-распределительные устройства состоят из панелей с односторонним обслуживанием и выполняются в однопанельном и многопанельном вариантах. В панелях вмонтированы специальные аппараты, которые ведут постоянный учет энергии. Для управления в сетях общего пользования (к примеру, для управления освещением) применяются узлы и блоки автоматического и неавтоматического контроля за освещением. |
- Главная
- О компании
- Контакты
+7 (495) 565-35-40
Оптовая продажа светотехники по РФ
стальные опоры, мачты освещения
Москва
8 (495) 565-35-40
Санкт-Петербург
8 (812) 332-52-96
Нижний Новгород
8 (831) 262-15-28
Екатеринбург
8 (343) 351-70-04
Казань
8 (843) 210-07-76
- Информационный
раздел
Правильно организованное освещение центральной пешеходной улицы способно буквально преображать городское пространство, подчеркивать исторические, архитектурные и ландшафтные достоинства территории. Далее.
22.03.2017
все новости
*
*
*
Комментарий
Я говорю правду, но я лгу Бэсси Икпи, Мягкая обложка
Из фраз, которые могут остановить и напугать, вот только одна.
«Моя мать любит и ненавидит, исцеляет и причиняет боль одними и теми же руками». Известный мастер устной речи написал книгу эссе, представляющую собой мемуары… Спасибо, что написали это». — Скотт Саймон, NPR
«Икпи не первая, кто пишет о психических заболеваниях, но я не могу сказать, что когда-либо читал о них такое повествование… Да, ее сочинения поэтичны и лиричны с нежностью и задумчивостью, но тоже смешно. Она чертовски смешная, а ее остроумие часто делает ее эссе столь же юмористическими, сколь и душераздирающими… Вы хотите болеть за ее благополучие. Вы хотите больше понимать других. А для некоторых из нас к концу 9 года0006 Я говорю правду, но я лгу , вы можете осознать, что не менее виновны в том, что рассказываете себе определенные истории, чтобы справиться с травмой, секретами и стыдом. — Майкл Арсено, Essence
«Бэсси Икпи — это человеческое чудо, и я хочу кричать о своей радости с крыш, что нам позволено испытать ее путешествие (как художницу, как чернокожую женщину, как чернокожую женщину, имеющую дело с психическое заболевание!) в ее великолепной книге».
— Саманта Ирби, автор Мы никогда не встретимся в реальной жизни и Митти
«Лирические мемуары в эссе Бэсси Икпи просят нас переосмыслить то, как мы думаем о воспоминаниях, истории, которые мы рассказываем себе, истории, которые мы рассказываем другим людям, истории мы никогда не говорим, и всеми другими способами, которыми мы пытаемся понять, кто мы в этом мире». — GOOP
«Написание в Я говорю правду, но я лгу совершенно искренне и последовательно предвзято. Это так сложно снять. Ни один писатель в стране не делает так много коротких задушевных предложений, как Бэсси Икпи. Мы не будем думать или говорить о психическом здоровье или нормальной жизни одинаково после прочтения этого важного арт-объекта, подрабатывающего колоссальным сборником эссе». – Кизе Леймон, автор Heavy
«Сокровенная, необыкновенная книга, которая должна изменить наше представление о психическом здоровье и то, как мы говорим о нем. Эссе Бэсси Икпи, при всей их грубой честности, пульсируют силой и изяществом — я бросаю вызов любому, кто читает ее работы без изменений».
— Николь Чанг, автор книги All You Can Ever Know
«Наполненная строками, абзацами и отрывками, которые одновременно интригуют и шокируют… по сути, коллекция рисует личную картину нормальности психического заболевания… используя висцеральные снимки воспоминаний. от детства [Икпи] до ее взрослых лет». — Люди.ком
” Я говорю правду, но я лгу – это богатство слоев, вознаграждающее читателя независимо от того, какая конкретная нить привела вас сюда: опыт африканца, родившегося и выросшего в Америке, грядущее о одаренном писателе и исполнителе, прослеживающем родословную психических заболеваний на протяжении нескольких поколений, или о конкретизации буквальных взлетов и падений биполярного расстройства II типа. Подобно кудзу, симптомы расцветают и пронизывают достижения и горести Икпи, лишая ее средств к существованию (еды, друзей, сна). Ее яркие, душераздирающие главы о живых, дышащих моментах биполярного расстройства, особенно «Это то, что происходит», будут назначены в курсовой работе на долгие годы.
Произведение Бэсси Икпи — это откровение, волнение, разрушительное и бурное, живое в точном изображении отсутствия границ между ужасным и веселым. Я говорю правду — это подвиг, и скоро он станет любимой книгой многих. Это уже одно из моих». — Тарана Берк, основательница движения «Я тоже»
«Этот умопомрачительный сборник эссе изменит ваш взгляд на психические заболевания, поскольку Икпи изо всех сил пытается объяснить, что вы чувствуете, когда ваш мозг начинает работать со сбоями. Это поставит под вопрос, насколько надежно любой из нас может доверять своим собственным историям, и бросит вызов читателям, чтобы они приняли радикальную честность». — Хорошая уборка
«Уже более десяти лет Бэсси Икпи был жизненно важным голосом для тех из нас, кто живет с нейродивергенцией. Ее слова и работа были с нами в самые темные моменты нашей жизни, шепча, чтобы мы позволили себе утро, а ее дебютная коллекция «Я говорю правду, но я лгу » собирает жизненный опыт в жгучее тело работа.
Эти правдивые истории поглотят вас, выжмут ваше сердце и наполнят вашу грудь светом. Письмо острое, точное и вызывающее воспоминания, блестящее и изящное, поскольку оно формулирует воплощение, которое было искажено и слишком долго оставалось незамеченным в нашей культуре. Бэсси — рассказчик до мозга костей, и это видно. Прочтите эту книгу. Скажите всем, кого вы знаете, чтобы они прочитали эту книгу. Вы не представляете, скольким людям нужны эти слова». — Акваке Эмези, автор Freshwater
«Бэсси Икпи» выражает невесомость и бестелесность уязвимости, неврозов и депрессии с легкостью тумана, просеивающего небо. Я говорю правду, но я вру вас точно разобьет. Вероятно. Определенно. Но Бэсси такой одаренный, такой настоящий, такой волшебный, что вы даже не потрудитесь попросить клей». — Дэймон Янг, автор книги «Что тебя не убивает, делает тебя чернее»
«Я прочитал первую половину… за день и рыдал от узнавания…. Были нюансы описания детства и семейной динамики, которые, я думаю, не испытывал никто другой.
Прекрасное исследование историй, которые мы рассказываем себе, чтобы понять, кто мы есть». — Чашка Джо
«Я давно знаю Бэсси Икпи как талантливую писательницу, но я поражен тем, чего она достигла с помощью Я говорю правду, но я лгу. В этом безупречном сборнике эссе Бэсси пишет о таком сложном предмете с помощью великолепной прозы, легкого остроумия, обжигающего уровня честности и уязвимости в сочетании с уровнем самосознания, которого вы жаждете от неотразимых мемуаристов. Работа Бэсси всегда казалась раем, но своим потрясающим дебютом она превзошла себя. Многим от этого станет лучше». — Майкл Арсено, автор Я не могу встречаться с Иисусом
«Лирично, твердо и откровенно. “ — Кэролайн Кепнес, автор книг You и Hidden Bodies
«Ikpi представляет сборник эссе, в котором читатели отправляются в путешествие из Нигерии в Стиллуотер, штат Оклахома, в Бруклин; от детства до взрослой жизни; от депрессии и мании биполярного расстройства II типа и психического расстройства до начала стабилизации.
Письма интимные, интенсивные, а иногда душераздирающие и вызывающие клаустрофобию… Письмо Икпи поэтично. Он скачет, бьется, тонет, взлетает и течет в зависимости от событий и состояния ее психического здоровья. Интуитивные и тревожные, эти эссе нелегко забыть. Обязательно к прочтению». — Журнал библиотеки , обзор со звездочкой
«Долгожданная, эта коллекция сырая, смелая и тревожная…. Преследующий и утверждающий». — Booklist
«В этих эссе исследуются и реконструируются тяжелые воспоминания… откровенно рассказывающие о том, как одна женщина столкнулась со своими демонами и победила их». — Publishers Weekly
«Бэсси Икпи пишет об отчуждающих последствиях ее борьбы с психическим здоровьем…. Читателям, интересующимся этой темой, понравится ее смелый и честный подход к этой книге». — Книжный
От издателя
Из фраз, которые могут остановить и напугать, вот только одна. «Моя мать любит и ненавидит, исцеляет и причиняет боль одними и теми же руками».
Скотт СаймонИзвестный мастер устной речи написал книгу эссе, представляющую собой мемуары… Спасибо, что написали это.
Я говорю правду, но я лгу — это богатство слоев, вознаграждающее читателя независимо от того, какая конкретная нить привела вас сюда: опыт африканца, родившегося и выросшего в Америке, появление одаренный писатель и исполнитель, прослеживающий родословную психических заболеваний на протяжении нескольких поколений или конкретизацию буквальных взлетов и падений биполярного расстройства II типа. Подобно кудзу, симптомы расцветают и пронизывают достижения и горести Икпи, лишая ее средств к существованию (еды, друзей, сна). Ее яркие, душераздирающие главы о живых, дышащих моментах биполярного расстройства, особенно «Это то, что происходит», будут назначены в курсовой работе на долгие годы. Произведение Бэсси Икпи — это откровение, волнение, разрушительное и бурное, живое в точном изображении отсутствия границ между ужасным и веселым.
Тарана БеркЯ говорю правду — это подвиг, и скоро он станет любимой книгой многих. Это уже один из моих.
Бэсси Икпи — человеческое чудо, и я хочу кричать от радости с крыш, что нам разрешено испытать ее путешествие (как художницу, как чернокожую женщину, как чернокожую женщину, страдающую психическим заболеванием!) в ее великолепной книге.
Саманта Ирби
Икпи не первая, кто пишет о душевных болезнях, но я не могу сказать, что когда-либо читала о ней такое повествование… Да, она поэтична и лирична с нежностью и задумчивостью, но и забавна. Она чертовски смешная, а ее остроумие часто делает ее эссе столь же юмористическими, сколь и душераздирающими… Вы хотите болеть за ее благополучие. Вы хотите больше понимать других. А для некоторых из нас к концу 9 года0006 Я говорю правду, но я лгу , вы можете обнаружить, что не менее виновны в том, что рассказываете себе определенные истории, чтобы справиться с травмой, секретами и стыдом.
Майкл Арсено
Надпись в «Я говорю правду, но я лгу » совершенно искренна и постоянно предвзята. Это так сложно снять. Ни один писатель в стране не делает так много коротких задушевных предложений, как Бэсси Икпи. Мы не будем думать или говорить о психическом здоровье или нормальной жизни одинаково после прочтения этого важного арт-объекта, подрабатывающего колоссальным сборником эссе.
Кизе Леймон
Сокровенная, необычная книга, которая должна изменить наше представление о психическом здоровье и то, как мы говорим о нем. Эссе Бэсси Икпи, при всей их грубой честности, пульсируют силой и изяществом — я бросаю вызов любому, кто читает ее работы без изменений.
Николь Чанг
Этот умопомрачительный сборник эссе изменит ваше представление о психических заболеваниях, поскольку Икпи изо всех сил пытается объяснить, что вы чувствуете, когда ваш мозг начинает работать со сбоями.
Хорошая уборкаЭто поставит под вопрос, насколько надежно любой из нас может доверять своим собственным историям, и бросит вызов читателям, чтобы они приняли радикальную честность».
Наполненная строками, абзацами и пассажами, которые одновременно интригуют и шокируют… по сути, коллекция рисует личную картину нормальности психического заболевания… используя интуитивные снимки воспоминаний от детства [Икпи] до ее взрослой жизни.
People.com
Более десяти лет Бэсси Икпи был жизненно важным голосом для тех из нас, кто живет с нейродивергенцией. Ее слова и работа были с нами в самые мрачные моменты нашей жизни, шепча, чтобы мы позволили себе утро, и ее дебютная коллекция Я говорю правду, но я лгу собирает жизненный опыт в жгучую работу. Эти правдивые истории поглотят вас, выжмут ваше сердце и наполнят вашу грудь светом. Письмо острое, точное и вызывающее воспоминания, блестящее и изящное, поскольку оно формулирует воплощение, которое было искажено и слишком долго оставалось незамеченным в нашей культуре.
Акваке ЭмезиБэсси — рассказчик до мозга костей, и это видно. Прочтите эту книгу. Скажите всем, кого вы знаете, чтобы они прочитали эту книгу. Вы не представляете, скольким людям нужны эти слова.
Лирические мемуары в эссе Бэсси Икпи просят нас переосмыслить то, как мы думаем о воспоминаниях, историях, которые мы рассказываем себе, историях, которые мы рассказываем другим людям, историях, которые мы никогда не рассказываем, и всех других способах, которыми мы пытаемся осмыслить их. кто мы в мире.
ГООП
Bassey Ikpi выражает невесомость и бестелесность уязвимости, неврозов и депрессии с легкостью тумана, просеивающего небо. Я говорю правду, но я лгу разобьет вас, конечно. Вероятно. Определенно. Но Бэсси такой одаренный, такой настоящий, такой волшебный, что вы даже не потрудитесь попросить клей.
Дэймон Янг
Лирический, суровый и откровенный.
Кэролайн Кепнес“
Прочитал первую половину… за день и рыдал от узнавания…. Были нюансы описания детства и семейной динамики, которые, я думаю, не испытывал никто другой. Замечательное исследование историй, которые мы рассказываем себе, чтобы понять, кто мы есть.
Чашка Джо
Бэсси Икпи пишет об отчуждающих последствиях ее борьбы с психическим здоровьем…. Читателям, интересующимся этой темой, понравится ее смелый и честный подход к этой книге.
Книжный
Долгожданная, эта коллекция сырая, смелая и тревожная… Навязчивая и утверждающая.
Список книг
Долгожданная, эта коллекция сырая, смелая и тревожная… Навязчивая и утверждающая.
Список книг
2019-05-27
«Представьте, что вы никуда не годитесь, даже в своей голове»: нигерийский иммигрант и писатель-дебютант пишет о психических заболеваниях и связанных с ними ошеломляющих проблемах.Catapult Сотрудничающий редактор Икпи начинает с предположения, что разбитые воспоминания, которые следуют в ее мемуарах, могут быть или не быть правдой. «Хитрость лжи, — пишет она, — состоит в том, чтобы сказать людям, что ты плохой лжец, потому что тогда они поверят тому, что ты говоришь». То, что она говорит, иногда душераздирающе, поскольку она рассказывает о поиске надежных воспоминаний, когда их у нее так мало. «Мне нужно доказать вам, что я не пришла в мир разбитой», — пишет она, прежде чем признать скудость фактов в водовороте впечатлений и ощущений. Что она знает, так это то, что она не знает. От нее что-то скрывали, семейные факты забывали, генеалогии стирали, а неприятные истины отбрасывали. Мелочи оказались ошеломляющими: открытие, например, что «близнецы из моего любимого фильма, Ловушка для родителей , на самом деле были одним человеком». Если расстояние от Нигерии до Оклахомы было велико, скачок во взрослую жизнь в Нью-Йорке был больше. Депрессия, биполярное расстройство и тревога оказались грозными противниками, постоянная изоляция даже в окружении миллионами людей.
Одна из самых впечатляющих частей книги — это простая, напоминающая дневник реконструкция долгого дня, начавшегося и закончившегося полетом на самолете, дня бессонницы, голода и беспокойства («это не случается с нормальными люди”). Другие сильные моменты в этом безжалостно честном повествовании рассказывают о неудавшейся любви (“он был единственным, о ком я сожалею, что была слишком разбита”), о стыде за то, что она не добилась иммигрантского успеха, на который надеялись ее родители, и о стремлении к целостности. среди изобилия лекарств, нацеленных на длинный список проблем, которые она выражает просто: «Я плохо себя чувствую».0004
Глубокие истины лежат в основе этого фрагментарного, захватывающего повествования, которое заставляет читателей желать только лучшего его измученному автору.
Киркус Отзывы
★ 01.06.2019
Нигерийский американский писатель и защитник психического здоровья Икпи (HBO Def Poetry Jam , редактор Catapult ; основатель Siwe Project) представляет сборник эссе, в котором читатели отправляются в путешествие из Нигерии в Стилуотер, ОК, в Бруклин; от детства до взрослой жизни; от депрессии и мании биполярного расстройства II типа и психического расстройства до начала стабилизации.
Библиотечный журналПисьма интимные, интенсивные, а иногда душераздирающие и вызывающие клаустрофобию. Икпи изо всех сил пытается быть «нормальной» и доказать себе и всем остальным, что с ней все в порядке. Но это не так. Автор целыми днями не ест и не спит, а когда наконец засыпает, просыпается с разочарованием. Когда наконец Икпи оказывается помощь, подобрать правильную комбинацию лекарств оказывается непросто. Она перестает принимать лекарства и попадает в больницу на неделю. Одиночество от осознания того, что что-то не так, но невозможности это исправить, пугает, отчаяние удушает. Письмо Икпи поэтично. Он скачет, бьется, тонет, взлетает и течет в зависимости от событий и состояния ее психического здоровья. ВЕРДИКТ Интуитивные и тревожные, эти эссе нелегко забыть. Обязательна к прочтению. — Стефани Холлмихель, Университет. of St. Thomas Law Lib., Миннеаполис
Изобретение лжи (2009)
- Награды
- 1 Номинация
Видео.

Смотреть Изобретение лжи: “Есть сообщения?”
Интервью 0:42
Смотрите изобретение лжи
Интервью 0:55
Смотрите изобретение лжи
of Lying
Photos100
Top cast
Ricky Gervais
- Mark Bellison
Jennifer Garner
- Anna McDoogles
Jonah Hill
Louis C.K.
Jeffrey Tambor
- Anthony
Fionnula Flanagan
- Martha Bellison
Rob Lowe
- Brad Kessler
Tina Fey
- Shelley
Donna Sorbello
- Anna’s Mother
Стефани Марч
- Блондинка
Рубен Сантьяго-Хадсон
- Арендодатель
Джон Ходжман
- Свадебный надзиратель
Nate Corddry
- News Reporter
Jimmi Simpson
Martin Starr
- Waiter #1
Jason Bateman
- Doctor
Christopher Guest
- Nathan Goldfrappe
Alton Fitzgerald White
- Анджело Бэдсмит
- Рики Жерве
- Мэтью Робинсон
- Рики Жерве
- Matthew Robinson
- All cast & crew
- Production, box office & more at IMDbPro
More like this
Ghost Town
After Life
Ricky Gervais: Humanity
Derek
Special Correspondents
Extras
Рики Джервейс: SuperNature
Приквел: Рассвет лжи
Дэвид Брент: Жизнь в пути
Жизнь слишком коротка
Идиот за границей
Да, Человек
Сюжетная линия
.

Вместе с Жерве мы многое узнаем об обществе и видим всем присущий юмор. Этот юмор на самом деле имеет довольно много уровней. С одной стороны, человечество очень низменно, но самое замечательное во лжи то, что мы на самом деле достигаем уровня, на котором можем находить в людях хорошее. Этот фильм для всех, кого когда-либо называли низкорослыми, толстыми или уродливыми, и для всех тех людей, которые видят, что всегда красивые люди получают все, что хотят в этом мире. Но Жерве сейчас здесь, чтобы заступиться за нас, и просто дайте нам посмеяться.
«Изобретение лжи» наполнено остротами, умным остроумием и абсолютной истиной нашего мира. В нем также много узнаваемых актеров, и все они делают фильм ярче и ярче. Дженнифер Гарнер в какой-то момент говорит нашему герою: «Мне нравится, как ты видишь мир». Что ж, я тоже, мистер Жерве, я тоже.
Details
- Release date
- October 2, 2009 (United States)
- United States
- Official site
- Ricky Gervais – Blog
- English
- Также известен как
- Эта сторона правды
- Места съемок
- Лоуэлл, Массачусетс, США
- Производственные компании
- Warner Bros.
- Warner Bros.